Купить трехкомнатную квартиру в кирпично-монолитном доме в арт-квартале «Зарядье» в Воронеже — 3 объявления от агентств и собственников по продаже квартир по цене от 9 066 223 ₽ до 10 000 000 ₽ на Яндекс Недвижимости. В нашем каталоге предложения площадью от 78,9 м² до 92 м² в новостройках и вторичном жилье — фото, планировки и характеристики.
Арт-квартал «Зарядье» — это новый микрорайон, который расположен на пересечении улиц Электросигнальной и Дружинников. Арт-квартал находится в тихой части Коминтерновского района рядом с крупнейшей городской артерией — Московский проспект. Помимо транспортной доступности в районе активно развита инфраструктура. «Зарядье» — это новый центр притяжения, комплекс с собственным парком, который сочетает в себе современную архитектуру и атмосферу уюта.
ПРОДАЕТСЯ ТРЕХКОМНАТНАЯ КВАРТИРА В ЖК ЗАРЯДЬЕ!!! ЦЕНА ГОРАЗДО ДЕШЕВЛЕ, ЧЕМ У ЗАСТРОЙЩИКА!!! СДАЧА КОНЕЦ 2026Г !!! КВАРТИРА С БОЛЬШОЙ КУХНЕЙ !!! «Зарядье» это новый центр притяжения. Жилой Комплекс с собственным парком, который сочетает в себе
Продается квартира без комиссии с покупателя. Скидки до 18% Жилой комплекс «Зарядье» расположен в Коминтерновском районе, на пересечении улиц Электросигнальной и Дружинников, в пяти минутах ходьбы от остановки «Политехнический институт». Микрорайон
Отличие: материал дома не указан.
РАСПРОДАЖА! ЦЕНА АКТУАЛЬНАЯ ДО КОНЦА МЕСЯЦА!!! СПЕШИТЕ! По стоимости ниже застройщика продается ТРЕХкомнатная квартира с БОЛЬШОЙ КУХНЕЙ в строящемся доме в ЖК "Зарядье"! Сдача дома - конец 2026 года! ЦЕНА - РЕАЛЬНАЯ, ПРОДАЖА - СРОЧНАЯ! Доступна
Отличие: материал дома не указан.
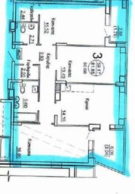
Арт. 127589117 Представьте дом, где у каждого есть личное пространство, но при этом Вы всегда вместе. Это не просто жилье это фундамент для Вашей семейной истории в одном из лучших районов города! Вы приобретаете квартиру площадью 134,7 кв.м. в доме
Мечтаете о просторной квартире в новом комплексе с развитой инфраструктурой и природой под боком? ЖК "Молодежный" ваш идеальный выбор! Представляем вашему вниманию светлую и теплую 3-комнатную квартиру, в которой никто еще не жил. Это не просто
Внесён ЗАДАТОК. Комфорт и престиж: 1-комнатная квартира в легендарном ЖМ "Олимпийский" сердце Воронежа! Просторная, светлая 1-комнатная квартира 43,7 м (+ застекленная лоджия 4,8 м) в ЖМ "Олимпийский" лучшем жилом комплексе в Черноземье! Это ваш
Арт. 118955788 Впервые выставлена на продажу ОТЛИЧНАЯ 3-х комнатная квартира по адресу ул Чапаева д.118, 10 минут до центра. 10/10-этажного панельного дома, сверху есть техэтаж, площадь 72/40/11, состояние очень хорошее - чистая, уютная, заезжай и
Apт.2501559. Продается 1-комн. квартира с отделкой в ЖК "ИНСТЕП. БАБЯКОВО" на 5 этаже. Общая площадь: 36.97 кв.м., жилая: 11.59 кв.м., площадь просторной кухни-столовой: 15.84 кв.м. Все окна выходят на одну сторону. В квартире одна лоджия, один
Арт. 125886938 Продам 4-х комнатную квартиру в спальном районе. Мебель остается по договоренности. В шаговой доступности детский садик, школа, магазины, почта. Два взрослых собственника, без обременения. Звоните и записывайтесь на просмотр!!
«Дом на Фридриха Энгельса» престижная локация с исключительной инфраструктурой. Особая атмосфера исторического центра. В жилом доме предусмотрено 8 секций, 309 эксклюзивных квартир по технологии монолитного домостроения Переменная этажность: 6 17
Арт. 127202544 ВНИМАНИЕ! ОТЛИЧНЫЙ ВАРИАНТ НЕДОРОГОЙ «ДВУШКИ» ДЛЯ МОЛОДОЙ СЕМЬИ!Общая площадь 53,8 кв.м. + площадь лоджииУдобная функциональная планировка просторный правильной формы комнаты: зал 19 кв.м., спальня 14 кв.м., кухня 9 кв.м.Для новых
В жилом комплексе, расположенном в 4 километрах от исторического центра Воронежа, продается 2-комнатная квартира площадью 71.70 кв. м с черновой отделкой. Квартира расположена на 13 этаже корпуса №10908586 (ЖК "Суворов Сити 2" (1-й этап, ПОЗИ жилого
Продажа от собственникаАдрес: г.Воронеж, ул.Калининградская,дом 100 Отделка и ремонт Премиум класса для Премиум покупателя! Продается отличная двухкомнатная квартира 5/10 53, 5 кв.м (без мебели), с новым, продуманным, качественным евроремонтом в
В продаже квартира площадью 56.43 кв. м с черновой отделкой. Квартира расположена на 8 этаже 15 этажного дома, в новом жилом квартале «Авиапарк». Идеальное сочетание природности и городского комфорта теперь по доступной цене! Новый жилой комплекс
Арт. 110334147 Продам трехкомнатную квартиру по улице Владимира Невского 40 .Квартира находится в экологически чистом районе .Рядом лес. Развитая инфраструктура : ТЦ ЛИНИЯ,ТЦ АРЕНА, школы ,сады .Храм Ксении Петербургской., Квартира требует ремонта.
Жилой комплекс "Май" - это атмосферные зеленые локации, уютные зоны для работы и отдыха. Новый квартал открывает Воронеж с западной стороны и задает ему новую энергию развития. Проект с оригинальными архитектурными решениями. Дома переменной
Арт. 72166260 ВНИМАНИЕ! ПРОСТОРНАЯ КВАРТИРА ПОВЫШЕННОЙ КОМФОРТНОСТИ ДЛЯ ДРУЖНОЙ СЕМЬИ! КАЧЕСТВЕННЫЙ СОВРЕМЕННЫЙ РЕМОНТ! 1. Общеполезная площадь, зарегистрированная в ЕГРН 92,4 кв.м. + площадь лоджии. Удобная функциональная планировка: Кухня 15
В жилом доме, расположенном в историческом центре на первой линии реки Воронеж, продается 2-комнатная квартира площадью 60.84 кв. м с черновой отделкой. Квартира расположена на 2 этаже жилого дома бизнес-класса «Эклипс» от федерального застройщика ГК
Арт. 66828293 ПРОДАЮ уникальную квартиру в КИРПИЧНОМ доме. Благоустроенная ДЕТСКАЯ площадка. ВСЕГДА есть место для авто. Развитая инфраструктура. НИЗКИЕ коммунальные платежи. УЮТНАЯ, планировка, на две стороны. БОЛЬШОЙ тамбур на 2 квартиры. КОМНАТЫ
В продаже квартира площадью 35.99 кв. м с черновой отделкой. Квартира расположена на 3 этаже 18 этажного дома, в жилом комплексе комфорт-класса «Квартал 45». «Квартал 45» это амбициозный проект будущего сердца Московского проспекта, в котором
Арт. 93202316 Трёх комнатная квартира в спальном районе. Всё в шаговой доступности. Требуется ремонт, но при необходимости можно заезжать и жить
Продается двухкомнатная квартира № 138 в новостройке Клубный дом «Люмен» по адресу Воронежская область, Воронеж, пр-т Труда, д. 117. Общая площадь квартиры 44.61 кв. м., этаж 15 из 17, секция 1. Тип проекта, по которому построен дом монолит,
Арт. 124631574 Продаётся большая трёхкомнатная квартира "Сталинка" на остановке Клиническая с видом на тихий Ботанический переулок. Квартира светлая, высокие потолки, окна пластиковые, заменена подводка на пластик в санузлах, три кладовки, два
В продаже квартира площадью 33.00 кв. м с черновой отделкой. Квартира расположена на 4 этаже 8 этажного дома, в новом жилом комплексе «Заря» от федерального застройщика «Развитие». Жилой Комплекс «Заря» это стильный, комфортный и современный проект
Арт. 54917333 Комфорт и уют, продаем теплую 2- комнатную квартиру в кирпичном доме 58 кв. м. на 6 этаже ул. Урывского д 13, .Просторные комнаты 17. 5 кв. м. и 15 кв. м. , Кухня 10. 5кв. м. , раздельный санузел, удобный холл и кладовая , душевая
Функциональность это качество, создающее истинную ценность квартиры, этим и отличаются евро-планировки. Кухня здесь увеличена по сравнению с классической планировкой и получает еще одну функциональную зону гостиную. Такая кухня-гостиная становится
