Агенту — комиссия 70% без рутины, собственникам — технологичный сервис бесплатно
Купить квартиру-студию с панорамными окнами на улице Расула Гамзатова во Владивостоке — 113 объявлений от агентств и собственников по продаже квартир-студий по цене от 5 504 739 ₽ до 7 853 645 ₽ на Яндекс Недвижимости. В нашем каталоге предложения площадью от 23,8 м² до 28,6 м² в новостройках и вторичном жилье — фото, планировки и характеристики.
Остались вопросы?
На Яндекс Недвижимости в продаже на улице Расула Гамзатова во Владивостоке 113 квартир 113 объявлений от застройщиков
Чтобы купить квартиру - студию с панорамными окнами на улице Расула Гамзатова во Владивостоке, воспользуйтесь тепловой картой для оценки инфраструктуры и транспортной доступности в выбранном районе на улице Расула Гамзатова во Владивостоке
Для легкого выбора подходящей квартиры в верхней части страницы есть самые частые комбинации фильтров, например «» или «»
Помимо удобной сортировки по цене продажи вы можете отсортировать результаты по стоимости квадратного метра или площади
| Цена за квадратный метр | 196 233 — 278 585 ₽ |
| Площадь | 24 — 29 м² |
| Самый дорогой объект | 7,85 млн ₽ |
Продается студия с черновой отделкой в ЖК «Гринхилс». Общая площадь квартиры 28.5 кв. м, этаж 5 из 23. Тип дома монолитный. Цена указана при 100% оплате. ЖК «Гринхилс» жилой квартал комфорт-класса в выгодной локации микрорайона Зеленый угол:
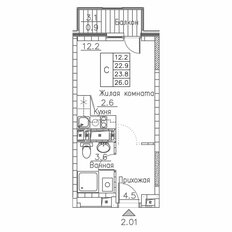
Продается студия с отделкой под ключ в ЖК «Гринхилс». Общая площадь квартиры 26 кв. м, этаж 18 из 19. Тип дома монолитный. Цена указана при 100% оплате. ЖК «Гринхилс» жилой квартал комфорт-класса в выгодной локации микрорайона Зеленый угол:
Продается студия с предчистовой отделкой в ЖК «Гринхилс». Общая площадь квартиры 25.7 кв. м, этаж 20 из 21. Тип дома монолитный. Цена указана при 100% оплате. ЖК «Гринхилс» жилой квартал комфорт-класса в выгодной локации микрорайона Зеленый угол:

Продается студия с предчистовой отделкой в ЖК «Гринхилс». Общая площадь квартиры 25.7 кв. м, этаж 18 из 21. Тип дома монолитный. Цена указана при 100% оплате. ЖК «Гринхилс» жилой квартал комфорт-класса в выгодной локации микрорайона Зеленый угол:
Продается студия с предчистовой отделкой в ЖК «Гринхилс». Общая площадь квартиры 27.2 кв. м, этаж 20 из 21. Тип дома монолитный. Цена указана при 100% оплате. ЖК «Гринхилс» жилой квартал комфорт-класса в выгодной локации микрорайона Зеленый угол:
Продается студия с отделкой под ключ в ЖК «Гринхилс». Общая площадь квартиры 25 кв. м, этаж 18 из 21. Тип дома монолитный. Цена указана при 100% оплате. ЖК «Гринхилс» жилой квартал комфорт-класса в выгодной локации микрорайона Зеленый угол:
Продается студия с отделкой под ключ в ЖК «Гринхилс». Общая площадь квартиры 27.3 кв. м, этаж 13 из 21. Тип дома монолитный. Цена указана при 100% оплате. ЖК «Гринхилс» жилой квартал комфорт-класса в выгодной локации микрорайона Зеленый угол:
Продается студия с предчистовой отделкой в ЖК «Гринхилс». Общая площадь квартиры 27.3 кв. м, этаж 9 из 21. Тип дома монолитный. Цена указана при 100% оплате. ЖК «Гринхилс» жилой квартал комфорт-класса в выгодной локации микрорайона Зеленый угол:
Продается студия с отделкой под ключ в ЖК «Гринхилс». Общая площадь квартиры 27.3 кв. м, этаж 11 из 21. Тип дома монолитный. Цена указана при 100% оплате. ЖК «Гринхилс» жилой квартал комфорт-класса в выгодной локации микрорайона Зеленый угол:
Продается студия с отделкой под ключ в ЖК «Гринхилс». Общая площадь квартиры 27.2 кв. м, этаж 13 из 21. Тип дома монолитный. Цена указана при 100% оплате. ЖК «Гринхилс» жилой квартал комфорт-класса в выгодной локации микрорайона Зеленый угол:
Продается студия с предчистовой отделкой в ЖК «Гринхилс». Общая площадь квартиры 27.2 кв. м, этаж 10 из 21. Тип дома монолитный. Цена указана при 100% оплате. ЖК «Гринхилс» жилой квартал комфорт-класса в выгодной локации микрорайона Зеленый угол:
Продается студия с предчистовой отделкой в ЖК «Гринхилс». Общая площадь квартиры 27.3 кв. м, этаж 10 из 21. Тип дома монолитный. Цена указана при 100% оплате. ЖК «Гринхилс» жилой квартал комфорт-класса в выгодной локации микрорайона Зеленый угол:
В новостройке
На что обратить внимание, как проверить надежность застройщика и как устроена система умного дома

Продается студия с отделкой под ключ в ЖК «Гринхилс». Общая площадь квартиры 27.3 кв. м, этаж 12 из 21. Тип дома монолитный. Цена указана при 100% оплате. ЖК «Гринхилс» жилой квартал комфорт-класса в выгодной локации микрорайона Зеленый угол:
Продается студия с предчистовой отделкой в ЖК «Гринхилс». Общая площадь квартиры 26.2 кв. м, этаж 20 из 23. Тип дома монолитный. Цена указана при 100% оплате. ЖК «Гринхилс» жилой квартал комфорт-класса в выгодной локации микрорайона Зеленый угол:
Продается студия с предчистовой отделкой в ЖК «Гринхилс». Общая площадь квартиры 26.4 кв. м, этаж 19 из 21. Тип дома монолитный. Цена указана при 100% оплате. ЖК «Гринхилс» жилой квартал комфорт-класса в выгодной локации микрорайона Зеленый угол:
Продается студия с отделкой под ключ в ЖК «Гринхилс». Общая площадь квартиры 25.8 кв. м, этаж 16 из 19. Тип дома монолитный. Цена указана при 100% оплате. ЖК «Гринхилс» жилой квартал комфорт-класса в выгодной локации микрорайона Зеленый угол:

Продается студия с отделкой под ключ в ЖК «Гринхилс». Общая площадь квартиры 25.7 кв. м, этаж 19 из 21. Тип дома монолитный. Цена указана при 100% оплате. ЖК «Гринхилс» жилой квартал комфорт-класса в выгодной локации микрорайона Зеленый угол:

Продается студия с отделкой под ключ в ЖК «Гринхилс». Общая площадь квартиры 25.7 кв. м, этаж 17 из 19. Тип дома монолитный. Цена указана при 100% оплате. ЖК «Гринхилс» жилой квартал комфорт-класса в выгодной локации микрорайона Зеленый угол:
Продается студия с отделкой под ключ в ЖК «Гринхилс». Общая площадь квартиры 26.4 кв. м, этаж 20 из 21. Тип дома монолитный. Цена указана при 100% оплате. ЖК «Гринхилс» жилой квартал комфорт-класса в выгодной локации микрорайона Зеленый угол:
Продается студия с предчистовой отделкой в ЖК «Гринхилс». Общая площадь квартиры 26.3 кв. м, этаж 18 из 19. Тип дома монолитный. Цена указана при 100% оплате. ЖК «Гринхилс» жилой квартал комфорт-класса в выгодной локации микрорайона Зеленый угол:

Проектные декларации на https://наш.дом.рф
Юридическая поддержка по правовым вопросам: help@realty.yandex.ru