Агенту — комиссия 70% без рутины, собственникам — технологичный сервис бесплатно
Купить квартиру рядом с морем в Сочи — 2 832 объявления от агентств и собственников по продаже квартир по цене от 1 700 000 ₽ до 897 410 432 ₽ на Яндекс Недвижимости. В нашем каталоге предложения площадью от 12 м² до 500 м² в новостройках и вторичном жилье — фото, планировки и характеристики.
Остались вопросы?
На Яндекс Недвижимости в продаже в Сочи 2832 квартиры, из них 126 объявлений от собственников, 1662 объявления от агентств, 1044 объявления от застройщиков
Чтобы купить квартиру рядом с морем в Сочи, воспользуйтесь тепловой картой для оценки инфраструктуры и транспортной доступности в выбранном районе в Сочи
Для легкого выбора подходящей квартиры в верхней части страницы есть самые частые комбинации фильтров, например «2-комнатные» или «1-комнатные»
Помимо удобной сортировки по цене продажи вы можете отсортировать результаты по стоимости квадратного метра или площади
| Цена за квадратный метр | 80 952 — 4,35 млн ₽ |
| Площадь | 12 — 500 м² |
| Самые популярные запросы | «2-комнатные», «1-комнатные», «3-комнатные» |
| Самый дорогой объект | 897,41 млн ₽ |
Расположенная всего в 200 метрах от берега Черного моря, эта уютная квартира идеально подходит как для постоянного проживания, так и в качестве отличного варианта для сдачи в аренду. Находясь на 2 этаже 9-этажного дома в микрорайоне Курортный
Продаётся уютная двухкомнатная квартира на улице Авроры в микрорайоне Лазаревское, Сочи. Вас ждёт комфортное проживание в тихом районе, всего в 900 метрах от моря - дорога к пляжу займёт всего 15 минут пешком. В квартире остаётся вся новая мебель, а
Мы рады представить вам отличное предложение - уютная 2-комнатная квартира в самом сердце Сочи, всего в 500 м от моря. Площадь квартиры составляет 52 кв. м, что делает ее прекрасным вариантом для комфортного проживания. Этаж расположения - 2 из 5,

Редкое предложение! Сталинка на ул. Яна Фабрициуса. Общая площадь 60 М2. Мы рады представить вам эту уникальную квартиру в историческом районе Хостинского района Сочи. Квартира расположена на 4 этаже. Сверху имеется тех. этаж, который используется
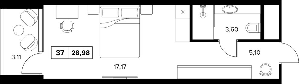
В продаже номер площадью 28.98 м на 6 этаже в премиальном экокомплексе Белые Ночи. Проект «Белые ночи» предлагает человеку образ жизни, в котором сама окружающая среда поддерживает долголетие. Всё устроено так, чтобы телу было легко включаться в
Внимание! Квартира с отделкой и мебелью в современном доме бизнес-класса, расположен в историческом центре г. Сочи. В квартире выполнен новый ремонт, есть все необходимое для комфортного проживания, полностью готова к заселению. Безопасность и
Apт.2545941. «Greenmont» Rsidences la mer авторский курорт с атмосферой французской Ривьеры, где каждый день как увлекательное путешествие. Курортный комплекс «Greenmont» создан для тех, кто путешествует по миру в поисках идеального места, где
Продается уютная квартира с современном ремонте в светлых тонах, комнаты раздельные. Окна на восход солнца. В этом доме крайне редко продажи. Двор огорожен и на территории клумбы с цветами, детская площадка и парковка, Расположение дома самое
Резиденция с балконом, а также одним санузлом. Из окон открывается вид во внешний двор, на образовательный центр Сириус. Высота потолков составляет 3,1 метра. Отделка под ключ
Представляем вашему вниманию уютную однокомнатную квартиру, расположенную в самом центре Адлера на улице Просвещения. С общей площадью 36 м на 4 этаже 6-этажного дома, этот объект станет отличным выбором как для проживания, так и для инвестиционных
В продаже номер площадью 48.72 м на 6 этаже в премиальном экокомплексе Белые Ночи. Проект «Белые ночи» предлагает человеку образ жизни, в котором сама окружающая среда поддерживает долголетие. Всё устроено так, чтобы телу было легко включаться в
В новостройке
На что обратить внимание, как проверить надежность застройщика и как устроена система умного дома

Продается 2-х комнатная квартира в Центральной части города в шаговой доступности ко всей инфраструктуре и лучшего пляжа! Квартира с просторными светлыми комнатами, распланирована очень удобно, большая спальня и кухня гостиная, встроенные гардеробные
Продается уютная 1-комнатная квартира на 13 этаже современного 17-этажного дома на Депутатской улице. Общая площадь - 41,3 м. Дом расположен всего в 800 метрах от моря, рядом находятся цирк, дендрарий и набережная, что делает локацию идеальной как
В продаже номер площадью 28.85 м на 5 этаже в премиальном экокомплексе Белые Ночи. Проект «Белые ночи» предлагает человеку образ жизни, в котором сама окружающая среда поддерживает долголетие. Всё устроено так, чтобы телу было легко включаться в

Отличное предложение, готовый апартамент, с ремонтом под ключ, в 200 метрах от моря. Небольшой клубный дом, закрытая территория, абсолютно ровное место. Хорошо подойдет для круглогодичной сдачи в аренду, как долгосрочно так и посуточно. Собственность.

В продаже номер площадью 69.71 м на 6 этаже в премиальном экокомплексе Белые Ночи. Проект «Белые ночи» предлагает человеку образ жизни, в котором сама окружающая среда поддерживает долголетие. Всё устроено так, чтобы телу было легко включаться в
Продаётся новая дизайнерская квартира в центре Сочи с шикарным видом на море. Описание квартиры: - Расположение: центр Сочи - Стильный дизайн интерьера, выполненный профессиональным дизайнером. - Большие окна, обеспечивающие потрясающий вид на море и

от 56 760 000 ₽
Поляна Пик
Проектные декларации на https://наш.дом.рф
Юридическая поддержка по правовым вопросам: help@realty.yandex.ru