Агенту — комиссия 70% без рутины, собственникам — технологичный сервис бесплатно
Купить квартиру комфорт класса в новостройке в Смоленске — 359 объявлений от агентств и собственников по продаже квартир по цене от 3 370 000 ₽ до 10 511 000 ₽ на Яндекс Недвижимости. В нашем каталоге предложения площадью от 24 м² до 100,1 м² в новостройках и вторичном жилье — фото, планировки и характеристики.
Остались вопросы?
На Яндекс Недвижимости в продаже в Смоленске 359 квартир, из них 22 объявления от агентств, 337 объявлений от застройщиков
Чтобы купить квартиру комфорт класса в новостройке в Смоленске, воспользуйтесь тепловой картой для оценки инфраструктуры и транспортной доступности в выбранном районе в Смоленске
Для легкого выбора подходящей квартиры в верхней части страницы есть самые частые комбинации фильтров, например «1-комнатные» или «2-комнатные»
Помимо удобной сортировки по цене продажи вы можете отсортировать результаты по стоимости квадратного метра или площади
| Цена за квадратный метр | 77 915 — 159 800 ₽ |
| Площадь | 24 — 100 м² |
| Самые популярные запросы | «1-комнатные», «2-комнатные» |
| Самый дорогой объект | 10,51 млн ₽ |
Новый жилой комплекс «Патриот» комфорт-класс в районе Академии ПВО! Идеальный выбор для жизни и инвестиций! Уютный 1-подъездный дом с закрытой территорией и индивидуальным отоплением. Район с развитой инфраструктурой: всё, что нужно для комфортной
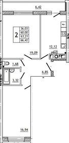
Продается трехкомнатная квартира № 10 без отделки в ЖК «Загорье» площадью 63.25 на 3 этаже от застройщика Консоль девелопмент. Жилой комплекс «Загорье» располагается в тихом и экологически чистом районе Смоленска в районе конно-спортивной школы в
Новостройка от застройщика
Квартира № 96 в кирпичном доме от застройщика
Квартира № 38 в кирпичном доме от застройщика
ГОТОВАЯ квартира от Застройщика в СДАННОМ доме, находящемся в тихом зеленом уголке центра города по адресу 3-й Запольный переулок, дом 8 (пересечение ул. Твардовского и ул. Чаплина). Квартира подходит под военную, семейную ипотеку 6% и ИТ! -
В продаже есть двухкомнатная квартира в сданном доме. Дом девятиэтажный, общая площадь квартиры 67,86 кв. м. Квартира находится на девятом этаже. Жилой комплекс «Самолет» отличается удачным расположением. Вокруг него находится зелёная зона
Продается однокомнатная квартира № 106 с черновой отделкой в ЖК «Среда» площадью 39.39 на 15 этаже от застройщика Консоль девелопмент. Преимущества комплекса Статус: лучший жилой комплекс-новостройка в Смоленской области (ТОП ЖК 2025 г.) Основные
Квартира №20 в кирпичном доме от проверенного застройщика
Квартира №126 в кирпичном доме от застройщика
Продается квартира №1 в кирпичном доме
Квартира № 44 в кирпичном доме от застройщика
Квартира № 41 в кирпичном доме от надежного застройщика
№1 в кирпичном доме

Квартира № 82 в кирпичном доме от застройщика
Квартира №100 в кирпичном доме от застройщика
Квартира № 91 в кирпичном доме от застройщика
Квартира № 104 в кирпичном доме от застройщика

от 3 695 000 ₽
Алтуховка
от 4 007 000 ₽
Новосельцы
Проектные декларации на https://наш.дом.рф
Юридическая поддержка по правовым вопросам: help@realty.yandex.ru