Агенту — комиссия 70% без рутины, собственникам — технологичный сервис бесплатно
Купить квартиру площадью 26 кв.м. у станции Морской проспект в Северодвинске — 90 объявлений от агентств и собственников по продаже квартир по цене от 2 370 000 ₽ до 5 400 000 ₽ на Яндекс Недвижимости. В нашем каталоге предложения площадью от 23,4 м² до 28,5 м² в новостройках и вторичном жилье — фото, планировки и характеристики.
Остались вопросы?
На Яндекс Недвижимости в продаже у станции Морской проспект в Северодвинске 90 квартир, из них 6 объявлений от агентств, 84 объявления от застройщиков
Чтобы купить квартиру площадью 26 кв.м. у станции Морской проспект в Северодвинске, воспользуйтесь тепловой картой для оценки инфраструктуры и транспортной доступности в выбранном районе у станции Морской проспект в Северодвинске
Для легкого выбора подходящей квартиры в верхней части страницы есть самые частые комбинации фильтров, например «Студии» или «»
Помимо удобной сортировки по цене продажи вы можете отсортировать результаты по стоимости квадратного метра или площади
| Цена за квадратный метр | 87 778 — 194 946 ₽ |
| Площадь | 23 — 29 м² |
| Самые популярные запросы | «Студии» |
| Самый дорогой объект | 5,4 млн ₽ |
Код объекта: 1314584. Продаётся уютная 1-комнатная квартира в Северодвинске! Год постройки: 1993. Материал постройки: кирпичный дом. Перекрытия: железобетонные плиты. Отопление: центральное. Этажность: 9 этажей. Лифт: пассажирский. Квартира находится
Отличие: общая площадь: 27.00 м².
Горизонты-5 - это пятый дом в комплексной застройке. На берегу Белого моря идет возведение целого квартала, в котором будет своя инфраструктура: школа, детское дошкольное учреждение, физкультурно-оздоровительный комплекс с бассейном.
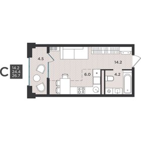
Отличие: общая площадь: 26.70 м².
В прямой продаже уютная просторная СТУДИЯ в Новом городе. Квартира подойдет для комфортного проживания или под аренду. Квартира расположена на 2 этаже кирпичного дома, высокий цоколь. Общая площадь без учета балкона - 28,2 м. Просторный застекленный
Отличие: общая площадь: 28.20 м².

Акции месяца от Группы Аквилон: Рассрочка с первым взносом 1% ДАРИМ отделку! СКИДКИ до 32%! Субсидированная ипотека. ПСК: 24,025-29,852%. Ставка 12,4% для всех! Арктическая ипотека! Семейная ипотека. Дополнительная СКИДКА 1%! Доп.СКИДКА 2% при 100%
Отличие: общая площадь: 27.47 м².
Код объекта: 1898708. Ну очень приятная готовая студия в ЖК ""Нордика"". !! Сразу после сделки вы можете получать пассивный доход от сдачи в аренду 20-25 тыс. в месяц. !! А может уже сегодня позаботиться о будущем вашего ребенка и грамотно вложить
Отличие: общая площадь: 24.80 м².
Акции месяца от Группы Аквилон: Рассрочка с первым взносом 1% ДАРИМ отделку! СКИДКИ до 32%! Субсидированная ипотека. ПСК: 24,025-29,852%. Ставка 12,4% для всех! Арктическая ипотека! Семейная ипотека. Дополнительная СКИДКА 1%! Доп.СКИДКА 2% при 100%
Отличие: общая площадь: 23.44 м².
Мы агентство Ваш дом! Каждый день мы проводим сделки: без первого взноса, с материнским капиталом без доп. вложений, с минимальным взносом 20%. . Каждый день мы одобряем ипотеку 2%; участникам сво (действующим и бывшим), одиноким родителям, молодым
Отличие: общая площадь: 25.00 м².
Акции месяца от Группы Аквилон: СКИДКИ до 30% на готовые квартиры! Ключи сразу! Субсидированная ипотека. ПСК: 24,025-29,852%. Ставка 12,4% для всех! Семейная ипотека. Дополнительная скидка 1%! Арктическая ипотека! Доп.СКИДКА 2% при 100% оплате! Отдел
Отличие: общая площадь: 26.20 м².
Акции месяца от Группы Аквилон: Рассрочка с первым взносом 1% СКИДКИ до 32%! Субсидированная ипотека. ПСК: 24,025-29,852%. Ставка 12,4% для всех! Арктическая ипотека! Семейная ипотека. Дополнительная СКИДКА 1%! Доп.СКИДКА 2% при 100% оплате! Отдел
Отличие: общая площадь: 26.77 м².
Горизонты-5 - это пятый дом в комплексной застройке. На берегу Белого моря идет возведение целого квартала, в котором будет своя инфраструктура: школа, детское дошкольное учреждение, физкультурно-оздоровительный комплекс с бассейном.
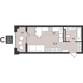
Отличие: общая площадь: 28.00 м².
Горизонты-5 - это пятый дом в комплексной застройке. На берегу Белого моря идет возведение целого квартала, в котором будет своя инфраструктура: школа, детское дошкольное учреждение, физкультурно-оздоровительный комплекс с бассейном.
Отличие: общая площадь: 26.70 м².
Акции месяца от Группы Аквилон: Рассрочка с первым взносом 1% СКИДКИ до 32%! Субсидированная ипотека. ПСК: 24,025-29,852%. Ставка 12,4% для всех! Арктическая ипотека! Семейная ипотека. Дополнительная СКИДКА 1%! Доп.СКИДКА 2% при 100% оплате! Отдел
Отличие: общая площадь: 25.99 м².
В новостройке
На что обратить внимание, как проверить надежность застройщика и как устроена система умного дома

Горизонты-5 - это пятый дом в комплексной застройке. На берегу Белого моря идет возведение целого квартала, в котором будет своя инфраструктура: школа, детское дошкольное учреждение, физкультурно-оздоровительный комплекс с бассейном.
Отличие: общая площадь: 28.00 м².
Горизонты-5 - это пятый дом в комплексной застройке. На берегу Белого моря идет возведение целого квартала, в котором будет своя инфраструктура: школа, детское дошкольное учреждение, физкультурно-оздоровительный комплекс с бассейном.
Отличие: общая площадь: 28.00 м².
Горизонты-5 - это пятый дом в комплексной застройке. На берегу Белого моря идет возведение целого квартала, в котором будет своя инфраструктура: школа, детское дошкольное учреждение, физкультурно-оздоровительный комплекс с бассейном.
Отличие: общая площадь: 26.70 м².
Горизонты-5 - это пятый дом в комплексной застройке. На берегу Белого моря идет возведение целого квартала, в котором будет своя инфраструктура: школа, детское дошкольное учреждение, физкультурно-оздоровительный комплекс с бассейном.
Отличие: общая площадь: 26.70 м².

Горизонты-5 - это пятый дом в комплексной застройке. На берегу Белого моря идет возведение целого квартала, в котором будет своя инфраструктура: школа, детское дошкольное учреждение, физкультурно-оздоровительный комплекс с бассейном.
Отличие: общая площадь: 26.70 м².

Горизонты-5 - это пятый дом в комплексной застройке. На берегу Белого моря идет возведение целого квартала, в котором будет своя инфраструктура: школа, детское дошкольное учреждение, физкультурно-оздоровительный комплекс с бассейном.
Отличие: общая площадь: 26.70 м².
Горизонты-5 - это пятый дом в комплексной застройке. На берегу Белого моря идет возведение целого квартала, в котором будет своя инфраструктура: школа, детское дошкольное учреждение, физкультурно-оздоровительный комплекс с бассейном.
Отличие: общая площадь: 28.00 м².
Горизонты-5 - это пятый дом в комплексной застройке. На берегу Белого моря идет возведение целого квартала, в котором будет своя инфраструктура: школа, детское дошкольное учреждение, физкультурно-оздоровительный комплекс с бассейном.
Отличие: общая площадь: 26.70 м².
Горизонты-5 - это пятый дом в комплексной застройке. На берегу Белого моря идет возведение целого квартала, в котором будет своя инфраструктура: школа, детское дошкольное учреждение, физкультурно-оздоровительный комплекс с бассейном.
Отличие: общая площадь: 28.50 м².

Проектные декларации на https://наш.дом.рф
Юридическая поддержка по правовым вопросам: help@realty.yandex.ru