Купить однокомнатную квартиру в ипотеку в ЖК «Горизонты» в Северодвинске — 138 объявлений от агентств и собственников по продаже квартир по цене от 4 246 280 ₽ до 7 176 192 ₽ на Яндекс Недвижимости. В нашем каталоге предложения площадью от 34 м² до 57,9 м² в новостройках и вторичном жилье — фото, планировки и характеристики.
ЖК «Горизонты» с панорамными видами на залив Белого моря и теплыми лоджиями. На первом этаже предусмотрены велосипедные и колясочные. Стены дома из «тёплой керамики» с эффективным современным утеплителем, обеспечивающего лучшее сохранение тепла. Территория озеленена, обустроена спортивная площадка.
Остались вопросы?
На Яндекс Недвижимости в продаже в ЖК «Горизонты» в Северодвинске 138 однокомнатных квартир 138 объявлений от застройщиков
Чтобы купить 1-комнатную квартиру в ипотеку в ЖК «Горизонты» в Северодвинске, воспользуйтесь тепловой картой для оценки инфраструктуры и транспортной доступности в выбранном районе в ЖК «Горизонты» в Северодвинске
Для легкого выбора подходящей квартиры в верхней части страницы есть самые частые комбинации фильтров, например «» или «»
Помимо удобной сортировки по цене продажи вы можете отсортировать результаты по стоимости квадратного метра или площади
| Цена за квадратный метр | 116 714 — 144 484 ₽ |
| Площадь | 34 — 58 м² |
| Самый дорогой объект | 7,18 млн ₽ |
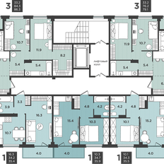
Горизонты-3 - это третий дом в комплексной застройке. На берегу Белого моря идет возведение целого квартала, в котором будет своя инфраструктура: школа, детское дошкольное учреждение, физкультурно-оздоровительный комплекс с бассейном.
Горизонты-3 - это третий дом в комплексной застройке. На берегу Белого моря идет возведение целого квартала, в котором будет своя инфраструктура: школа, детское дошкольное учреждение, физкультурно-оздоровительный комплекс с бассейном.
Горизонты-3 - это третий дом в комплексной застройке. На берегу Белого моря идет возведение целого квартала, в котором будет своя инфраструктура: школа, детское дошкольное учреждение, физкультурно-оздоровительный комплекс с бассейном.
Горизонты-5 - это пятый дом в комплексной застройке. На берегу Белого моря идет возведение целого квартала, в котором будет своя инфраструктура: школа, детское дошкольное учреждение, физкультурно-оздоровительный комплекс с бассейном.
Горизонты-5 - это пятый дом в комплексной застройке. На берегу Белого моря идет возведение целого квартала, в котором будет своя инфраструктура: школа, детское дошкольное учреждение, физкультурно-оздоровительный комплекс с бассейном.
Горизонты-5 - это пятый дом в комплексной застройке. На берегу Белого моря идет возведение целого квартала, в котором будет своя инфраструктура: школа, детское дошкольное учреждение, физкультурно-оздоровительный комплекс с бассейном.
Горизонты-5 - это пятый дом в комплексной застройке. На берегу Белого моря идет возведение целого квартала, в котором будет своя инфраструктура: школа, детское дошкольное учреждение, физкультурно-оздоровительный комплекс с бассейном.
Горизонты-5 - это пятый дом в комплексной застройке. На берегу Белого моря идет возведение целого квартала, в котором будет своя инфраструктура: школа, детское дошкольное учреждение, физкультурно-оздоровительный комплекс с бассейном.
Горизонты-3 - это третий дом в комплексной застройке. На берегу Белого моря идет возведение целого квартала, в котором будет своя инфраструктура: школа, детское дошкольное учреждение, физкультурно-оздоровительный комплекс с бассейном.
Горизонты-5 - это пятый дом в комплексной застройке. На берегу Белого моря идет возведение целого квартала, в котором будет своя инфраструктура: школа, детское дошкольное учреждение, физкультурно-оздоровительный комплекс с бассейном.
Горизонты-5 - это пятый дом в комплексной застройке. На берегу Белого моря идет возведение целого квартала, в котором будет своя инфраструктура: школа, детское дошкольное учреждение, физкультурно-оздоровительный комплекс с бассейном.
Горизонты-5 - это пятый дом в комплексной застройке. На берегу Белого моря идет возведение целого квартала, в котором будет своя инфраструктура: школа, детское дошкольное учреждение, физкультурно-оздоровительный комплекс с бассейном.
Горизонты-5 - это пятый дом в комплексной застройке. На берегу Белого моря идет возведение целого квартала, в котором будет своя инфраструктура: школа, детское дошкольное учреждение, физкультурно-оздоровительный комплекс с бассейном.
Горизонты-5 - это пятый дом в комплексной застройке. На берегу Белого моря идет возведение целого квартала, в котором будет своя инфраструктура: школа, детское дошкольное учреждение, физкультурно-оздоровительный комплекс с бассейном.
Горизонты-5 - это пятый дом в комплексной застройке. На берегу Белого моря идет возведение целого квартала, в котором будет своя инфраструктура: школа, детское дошкольное учреждение, физкультурно-оздоровительный комплекс с бассейном.
Горизонты-3 - это третий дом в комплексной застройке. На берегу Белого моря идет возведение целого квартала, в котором будет своя инфраструктура: школа, детское дошкольное учреждение, физкультурно-оздоровительный комплекс с бассейном.
Горизонты-5 - это пятый дом в комплексной застройке. На берегу Белого моря идет возведение целого квартала, в котором будет своя инфраструктура: школа, детское дошкольное учреждение, физкультурно-оздоровительный комплекс с бассейном.
Горизонты-5 - это пятый дом в комплексной застройке. На берегу Белого моря идет возведение целого квартала, в котором будет своя инфраструктура: школа, детское дошкольное учреждение, физкультурно-оздоровительный комплекс с бассейном.
Горизонты-5 - это пятый дом в комплексной застройке. На берегу Белого моря идет возведение целого квартала, в котором будет своя инфраструктура: школа, детское дошкольное учреждение, физкультурно-оздоровительный комплекс с бассейном.
Горизонты-5 - это пятый дом в комплексной застройке. На берегу Белого моря идет возведение целого квартала, в котором будет своя инфраструктура: школа, детское дошкольное учреждение, физкультурно-оздоровительный комплекс с бассейном.
