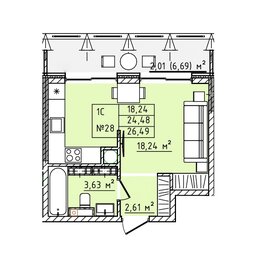
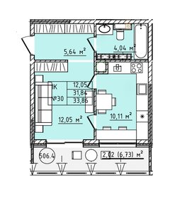
Купить однокомнатную квартиру c 3D-туром в ЖК «Олимпия 2.0» в Севастополе — 32 объявления от агентств и собственников по продаже квартир по цене от 6 352 000 ₽ до 8 742 300 ₽ на Яндекс Недвижимости. В нашем каталоге предложения площадью от 26,5 м² до 38,6 м² в новостройках и вторичном жилье — фото, планировки и характеристики.
«Олимпия 2.0» — это уютное пространство для тех, кто стремится жить в городской среде с необходимой инфраструктурой и одновременно проводить больше времени у моря в кругу самых близких людей.
Остались вопросы?
На Яндекс Недвижимости в продаже в ЖК «Олимпия 2.0» в Севастополе 32 однокомнатных квартиры 32 объявления от застройщиков
Чтобы купить 1-комнатную квартиру c 3D-туром в ЖК «Олимпия 2.0» в Севастополе, воспользуйтесь тепловой картой для оценки инфраструктуры и транспортной доступности в выбранном районе в ЖК «Олимпия 2.0» в Севастополе
Для легкого выбора подходящей квартиры в верхней части страницы есть самые частые комбинации фильтров, например «» или «»
Помимо удобной сортировки по цене продажи вы можете отсортировать результаты по стоимости квадратного метра или площади
| Цена за квадратный метр | 200 000 — 250 000 ₽ |
| Площадь | 26 — 39 м² |
| Самый дорогой объект | 8,74 млн ₽ |
