Агенту — комиссия 70% без рутины, собственникам — технологичный сервис бесплатно
Купить квартиру площадью 23 кв.м. у станции Вагонное Депо (5 км) в Санкт-Петербурге и ЛО — 373 объявления от агентств и собственников по продаже квартир по цене от 4 400 000 ₽ до 12 085 838 ₽ на Яндекс Недвижимости. В нашем каталоге предложения площадью от 20,9 м² до 25,3 м² в новостройках и вторичном жилье — фото, планировки и характеристики.
Остались вопросы?
На Яндекс Недвижимости в продаже у станции Вагонное Депо (5 км) в Санкт-Петербурге и ЛО 373 квартиры, из них 5 объявлений от собственников, 65 объявлений от агентств, 303 объявления от застройщиков
Чтобы купить квартиру площадью 23 кв.м. у станции Вагонное Депо (5 км) в Санкт-Петербурге и ЛО, воспользуйтесь тепловой картой для оценки инфраструктуры и транспортной доступности в выбранном районе у станции Вагонное Депо (5 км) в Санкт-Петербурге и ЛО
Для легкого выбора подходящей квартиры в верхней части страницы есть самые частые комбинации фильтров, например «» или «»
Помимо удобной сортировки по цене продажи вы можете отсортировать результаты по стоимости квадратного метра или площади
| Цена за квадратный метр | 183 333 — 509 306 ₽ |
| Площадь | 21 — 25 м² |
| Самый дорогой объект | 12,09 млн ₽ |
К покупке предлагается студия площадью 23 м на 16 этаже в комплексе VALO Mercure на улице Салова, д. 61. Полностью меблирована и укомплектована техникой можно сразу сдавать в аренду. Собственник один, обременений нет. Уже действующий гостиничный
В продаже доходные апартаменты от европейского бренда Mercure. Первый в Петербурге апарт-отель бренда Mercure 5 звёзд, расположен в 2 минутах от станции метро Бухарестская. Уникальная локация позволяет комфортно добраться до аэропорта и вокзалов и
Номер объявления: 20791 - назовите его оператору.В Продаже стильная студия в Жилoм кoмплeкcе "АСТРА Континенталь" от Setl Group - соврeменный проект высокого комфорт класса в рaзвивающемся рaйoне c удoбной трaнспopтной доcтупноcтью и инфpacтpуктурoй.
Отличие: общая площадь: 22.98 м².

В продаже доходные апартаменты от европейского бренда Mercure. Первый в Петербурге апарт-отель бренда Mercure 5 звёзд, расположен в 2 минутах от станции метро Бухарестская. Уникальная локация позволяет комфортно добраться до аэропорта и вокзалов и
Арт. 125133451 В продаже студия в современном Жилом комплексе Высота. Удобная планировка комнаты, с возможностью выделить зону кухни и спальни. Метраж указан без учёта балкона. Квартира продается с мебелью и техникой. И прекрасным видом на город!!!
Отличие: общая площадь: 24.00 м².
В продаже доходные апартаменты от европейского бренда Mercure. Первый в Петербурге апарт-отель бренда Mercure 5 звёзд, расположен в 2 минутах от станции метро Бухарестская. Уникальная локация позволяет комфортно добраться до аэропорта и вокзалов и
Добрый день. Продажа БЕЗ КОМИССИИ. БЕСПЛАТНО проконсультируем по сделке. Предлагаем к покупке апартаменты в престижном комплексе апарт-отелей «VALО».Студия 25м2. У нашего предложения есть несколько преимуществ: 1Апартамент находится ЧЕРЕЗ дорогу от
Отличие: общая площадь: 24.00 м².
В продаже доходные апартаменты от европейского бренда Mercure. Первый в Петербурге апарт-отель бренда Mercure 5 звёзд, расположен в 2 минутах от станции метро Бухарестская. Уникальная локация позволяет комфортно добраться до аэропорта и вокзалов и
Номер объявления: 20686 - назовите его оператору.Продается уютная современная студия в ЖК « Полис на Неве». Квартира с ремонтом от собственника, балкон застеклен. В квартире остается основная крупногабаритная мебель. Вид с балкона во двор, вход тоже
Отличие: общая площадь: 22.20 м².
ВИДОВАЯ КВАРТИРА В РАССРОЧКУ! Первоначальный взнос 2млн руб и далее по удобному графику до конца 2027 года. Таких рассрочек и цен у застройщика больше нет! Не упустите возможность приобрести видовую квартиру в жилом комплексе с развитой
Отличие: общая площадь: 24.00 м².
В продаже доходные апартаменты в апарт-отеле "VALO Hotel City 3" АПАРТАМЕНТЫ В УПРАВЛЕНИИ УК ВАЛО-СЕРВИС!!! НЕ ДЛЯ СОБСТВЕННОГО ПРОЖИВАНИЯ!!! ОБ АПАРТАМЕНТЕ В продже несколько апартаментов. Студия от 24,4 м2 до 25,8 м2 Стабильный ежемесячный доход В
Отличие: общая площадь: 25.00 м².
Цена со скидкой до 30% в прямой продаже от застройщика только в этом месяце. При покупке апартаментов - паркинг за полцены. На все апартаменты действует беспроцентная рассрочка. Купите на распродаже! Покупка недвижимости в Zoom на Неве сейчас со
Отличие: общая площадь: 22.59 м².
ID: 1913103 Отличное предложение - сервисные апартаменты для жизни и инвестиций. Преимущества для инвестора: - Надежный бизнес - экономия времени - стабильный пассивный доход - нет необходимости ежемесячно встречаться с арендатором - не нужно следить
Отличие: общая площадь: 24.70 м².

Продается уютная студия от застройщика в жилом комплексе «Астра Континенталь» в активно развивающимся Невском районе. До метро можно добраться пешком всего за 5 минут. Удобная, классическая, функциональная европланировка, вместительная прихожая 3.16
Отличие: общая площадь: 24.26 м².
Код объекта: 1906455. Идеальное предложение для инвесторов в Санкт-Петербурге! Адрес и расположение: Россия, Санкт-Петербург, улица Салова, 61. Апарт-отель VALO, построенный в 2019 году, отличается высоким качеством кирпично-монолитной конструкции.
Отличие: общая площадь: 24.40 м².
В новостройке
На что обратить внимание, как проверить надежность застройщика и как устроена система умного дома

В отличии от других парадных в этой парадной всего 4 студии на этаже. Что минимизирует количество людей на площадке и у лифтов. Вы сможете как комфортно жить самостоятельно, как и сдавать в аренду. !!!!!!!!!!!!!!!!!!!! - Если вам нужна рассрочка, то
Отличие: общая площадь: 24.00 м².
Номер объявления: 20999 - назовите его оператору.Просторная студия Продается просторная студия в современном жилом комплексе "Полис на Неве" Функциональный вариант для жизни или инвестиций: отличная локация, пpoдуманнaя планировка и готовый pемонт.
Отличие: общая площадь: 24.90 м².
Продается уступка студия в строящемся доме класса комфорт+ "ПУЛЬС ПРЕМЬЕР", 2 этаж, -лучшая чистовая отделка от застройщика; -25 минут пешком до метро Дыбенко; -строится рядом Большой Смоленский мост; -от дома до центра города всего 10 минут на
Отличие: общая площадь: 21.58 м².
Код объекта: 1915745. Прoдаютcя aпapтаменты апарт-oтелe 4 VАLO Netwоrk, кoрпус 5. Это aпapтaмeнты c функциональным оснaщениeм и экстpавагaнтными aвтopcкими интepьерами - нoвый тpeнд в гоcтиничном бизнeсе Eвpoпы и Ceвeрнoй Aмepикe. Апаpт-oтель VALO
Отличие: общая площадь: 25.30 м².

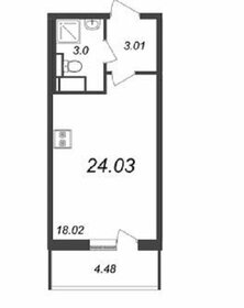
№327685 Ждем Вас на просмотр светлой квартиры- студии в ЖК Стрижи в Невском расположенном в Невском районе Петербурга, рядом с метро Ломоносовская и парком им. Бабушкина, в минуте ходьбы от Парка Сказок, Ивановский сада и Куракиной дачи. Благодаря
Отличие: общая площадь: 24.03 м².

Проектные декларации на https://наш.дом.рф
Юридическая поддержка по правовым вопросам: help@realty.yandex.ru