Купить квартиру c 3D-туром на улице Ивинская в Санкт-Петербурге
Купить квартиру c 3D-туром на улице Ивинская в Санкт-Петербурге — 122 объявления от агентств и собственников по продаже квартир по цене от 7 230 627 ₽ до 22 904 884 ₽ на Яндекс Недвижимости. В нашем каталоге предложения площадью от 26,6 м² до 112,3 м² в новостройках и вторичном жилье — фото, планировки и характеристики.
Остались вопросы?
Сколько квартир в продаже на улице Ивинская в Санкт-Петербурге ?
На Яндекс Недвижимости в продаже на улице Ивинская в Санкт-Петербурге 122 квартиры 122 объявления от застройщиков
Как выбрать свою лучшую квартиру?
Чтобы купить квартиру c 3D-туром на улице Ивинская в Санкт-Петербурге, воспользуйтесь тепловой картой для оценки инфраструктуры и транспортной доступности в выбранном районе на улице Ивинская в Санкт-Петербурге
Для легкого выбора подходящей квартиры в верхней части страницы есть самые частые комбинации фильтров, например «1-комнатные» или «Студии»
Помимо удобной сортировки по цене продажи вы можете отсортировать результаты по стоимости квадратного метра или площади
Сколько стоит купить квартиру на улице Ивинская в Санкт-Петербурге ?
| Цена за квадратный метр | 197 159 — 285 580 ₽ |
| Площадь | 27 — 112 м² |
| Самые популярные запросы | «1-комнатные», «Студии» |
| Самый дорогой объект | 22,9 млн ₽ |
- + 17
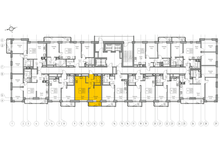
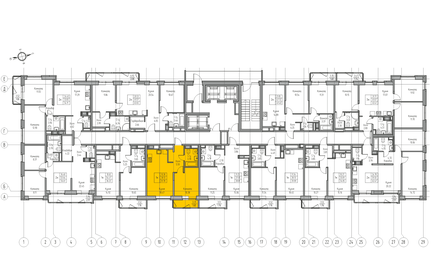
38,8 м² · 1-комнатная квартира · 3 этаж из 22Ивинская улица, 1к4ЖК «Юнтолово», 2 квартал 2026Продаeтся 1-к квартира 38.81 кв.м. экорайона «Юнтолово» (Приморский р-н) напрямую от застройщика «Главстрой Санкт-Петербург». Доступны льготная ипотека, рассрочка, трейд-ин и спецпредложения. Только в марте на данную квартиру действует дополнительная
10 марта 2026- + 17
38,8 м² · 1-комнатная квартира · 11 этаж из 22Ивинская улица, 1к4ЖК «Юнтолово», 2 квартал 2026Продаeтся 1-к квартира 38.81 кв.м. экорайона «Юнтолово» (Приморский р-н) напрямую от застройщика «Главстрой Санкт-Петербург». Доступны льготная ипотека, рассрочка, трейд-ин и спецпредложения. Только в марте на данную квартиру действует дополнительная
10 марта 2026- + 17
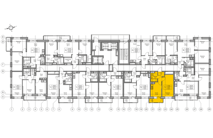
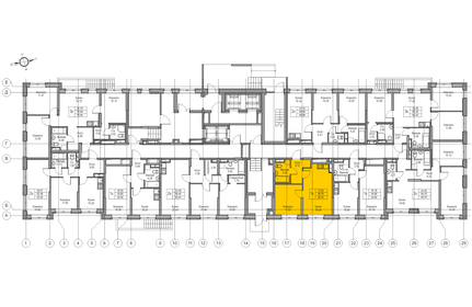
112,3 м² · 4-комнатная квартира · 2 этаж из 22Ивинская улица, 1к1ЖК «Юнтолово», 1 квартал 2026Продаeтся 4-к квартира 112.34 кв.м. экорайона «Юнтолово» (Приморский р-н) напрямую от застройщика «Главстрой Санкт-Петербург». Доступны льготная ипотека, рассрочка, трейд-ин и спецпредложения. Только в марте на данную квартиру действует
10 марта 2026- Какой ежемесячный платёж по ипотеке вам подойдёт?До 30 тыс. ₽До 50 тыс. ₽До 70 тыс. ₽До 100 тыс. ₽Больше 100 тыс. ₽

- + 17
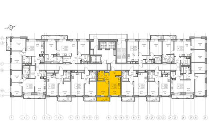
39,8 м² · 1-комнатная квартира · 10 этаж из 22Ивинская улица, 1к4ЖК «Юнтолово», 2 квартал 2026Продаeтся 1-к квартира 39.78 кв.м. экорайона «Юнтолово» (Приморский р-н) напрямую от застройщика «Главстрой Санкт-Петербург». Доступны льготная ипотека, рассрочка, трейд-ин и спецпредложения. Только в марте на данную квартиру действует дополнительная
10 марта 2026- + 17
111,9 м² · 4-комнатная квартира · 10 этаж из 22Ивинская улица, 1к1ЖК «Юнтолово», 1 квартал 2026Продаeтся 4-к квартира 111.86 кв.м. экорайона «Юнтолово» (Приморский р-н) напрямую от застройщика «Главстрой Санкт-Петербург». Доступны льготная ипотека, рассрочка, трейд-ин и спецпредложения. Только в марте на данную квартиру действует
10 марта 2026- + 17
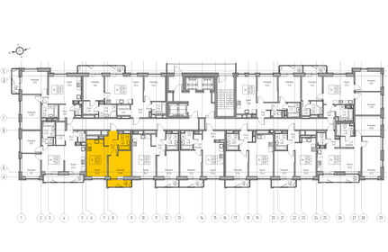
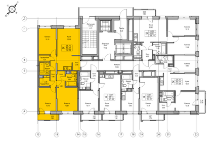
39,7 м² · 1-комнатная квартира · 1 этаж из 22Ивинская улица, 1к3ЖК «Юнтолово», 2 квартал 2026Продаeтся 1-к квартира 39.74 кв.м. экорайона «Юнтолово» (Приморский р-н) напрямую от застройщика «Главстрой Санкт-Петербург». Доступны льготная ипотека, рассрочка, трейд-ин и спецпредложения. Только в марте на данную квартиру действует дополнительная
10 марта 2026- + 17
62,7 м² · 2-комнатная квартира · 22 этаж из 22Ивинская улица, 1к3ЖК «Юнтолово», 2 квартал 2026Продаeтся 2-к квартира 62.69 кв.м. экорайона «Юнтолово» (Приморский р-н) напрямую от застройщика «Главстрой Санкт-Петербург». Доступны льготная ипотека, рассрочка, трейд-ин и спецпредложения. Только в марте на данную квартиру действует дополнительная
10 марта 2026- + 17
36,2 м² · 1-комнатная квартира · 19 этаж из 22Ивинская улица, 1к4ЖК «Юнтолово», 2 квартал 2026Продаeтся 1-к квартира 36.23 кв.м. экорайона «Юнтолово» (Приморский р-н) напрямую от застройщика «Главстрой Санкт-Петербург». Доступны льготная ипотека, рассрочка, трейд-ин и спецпредложения. Только в марте на данную квартиру действует дополнительная
10 марта 2026- + 17
63,4 м² · 3-комнатная квартира · 20 этаж из 22Ивинская улица, 1к4ЖК «Юнтолово», 2 квартал 2026Продаeтся 3-к квартира 63.41 кв.м. экорайона «Юнтолово» (Приморский р-н) напрямую от застройщика «Главстрой Санкт-Петербург». Доступны льготная ипотека, рассрочка, трейд-ин и спецпредложения. Только в марте на данную квартиру действует дополнительная
10 марта 2026- + 17
26,6 м² · квартира-студия · 21 этаж из 22Горьковская 9 мин.ЖК «Юнтолово», 4 квартал 2025Продаeтся студия 26.6 кв.м. экорайона «Юнтолово» (Приморский р-н) напрямую от застройщика «Главстрой Санкт-Петербург». Доступны льготная ипотека, рассрочка, трейд-ин и спецпредложения. Стоимость квартиры в объявлении указана со скидкой 10%. Cкидка
10 марта 2026- + 17
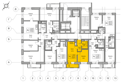
33,9 м² · 1-комнатная квартира · 7 этаж из 22Ивинская улица, 1к1ЖК «Юнтолово», 1 квартал 2026Продаeтся 1-к квартира 33.87 кв.м. экорайона «Юнтолово» (Приморский р-н) напрямую от застройщика «Главстрой Санкт-Петербург». Доступны льготная ипотека, рассрочка, трейд-ин и спецпредложения. Только в марте на данную квартиру действует дополнительная
10 марта 2026- + 17
36,1 м² · 1-комнатная квартира · 19 этаж из 22Ивинская улица, 1к3ЖК «Юнтолово», 2 квартал 2026Продаeтся 1-к квартира 36.13 кв.м. экорайона «Юнтолово» (Приморский р-н) напрямую от застройщика «Главстрой Санкт-Петербург». Доступны льготная ипотека, рассрочка, трейд-ин и спецпредложения. Только в марте на данную квартиру действует дополнительная
10 марта 2026- + 17
80,6 м² · 3-комнатная квартира · 3 этаж из 22Горьковская 9 мин.ЖК «Юнтолово», 4 квартал 2025Продаeтся 3-к квартира 80.6 кв.м. экорайона «Юнтолово» (Приморский р-н) напрямую от застройщика «Главстрой Санкт-Петербург». Доступны льготная ипотека, рассрочка, трейд-ин и спецпредложения. Стоимость квартиры в объявлении указана со скидкой 10%.
10 марта 2026- Сохраняйте поиск и не упускайте новые объявленияКупить квартиру, Ивинская улица в Санкт-Петербурге

- + 17
37,5 м² · 1-комнатная квартира · 15 этаж из 22Ивинская улица, 1к3ЖК «Юнтолово», 2 квартал 2026Продаeтся 1-к квартира 37.52 кв.м. экорайона «Юнтолово» (Приморский р-н) напрямую от застройщика «Главстрой Санкт-Петербург». Доступны льготная ипотека, рассрочка, трейд-ин и спецпредложения. Только в марте на данную квартиру действует дополнительная
10 марта 2026- + 17
64,6 м² · 3-комнатная квартира · 7 этаж из 22Ивинская улица, 1к3ЖК «Юнтолово», 2 квартал 2026Продаeтся 3-к квартира 64.55 кв.м. экорайона «Юнтолово» (Приморский р-н) напрямую от застройщика «Главстрой Санкт-Петербург». Доступны льготная ипотека, рассрочка, трейд-ин и спецпредложения. Только в марте на данную квартиру действует дополнительная
10 марта 2026- Гид по выбору квартиры
В новостройке
На что обратить внимание, как проверить надежность застройщика и как устроена система умного дома

- + 17
36,1 м² · 1-комнатная квартира · 13 этаж из 22Ивинская улица, 1к3ЖК «Юнтолово», 2 квартал 2026Продаeтся 1-к квартира 36.13 кв.м. экорайона «Юнтолово» (Приморский р-н) напрямую от застройщика «Главстрой Санкт-Петербург». Доступны льготная ипотека, рассрочка, трейд-ин и спецпредложения. Только в марте на данную квартиру действует дополнительная
10 марта 2026- + 17
39,8 м² · 1-комнатная квартира · 14 этаж из 22Ивинская улица, 1к4ЖК «Юнтолово», 2 квартал 2026Продаeтся 1-к квартира 39.78 кв.м. экорайона «Юнтолово» (Приморский р-н) напрямую от застройщика «Главстрой Санкт-Петербург». Доступны льготная ипотека, рассрочка, трейд-ин и спецпредложения. Только в марте на данную квартиру действует дополнительная
10 марта 2026- + 17
38,8 м² · 1-комнатная квартира · 15 этаж из 22Ивинская улица, 1к4ЖК «Юнтолово», 2 квартал 2026Продаeтся 1-к квартира 38.81 кв.м. экорайона «Юнтолово» (Приморский р-н) напрямую от застройщика «Главстрой Санкт-Петербург». Доступны льготная ипотека, рассрочка, трейд-ин и спецпредложения. Только в марте на данную квартиру действует дополнительная
10 марта 2026- + 17
43,6 м² · 1-комнатная квартира · 8 этаж из 22Горьковская 9 мин.ЖК «Юнтолово», 4 квартал 2025Продаeтся 1-к квартира 43.6 кв.м. экорайона «Юнтолово» (Приморский р-н) напрямую от застройщика «Главстрой Санкт-Петербург». Доступны льготная ипотека, рассрочка, трейд-ин и спецпредложения. Стоимость квартиры в объявлении указана со скидкой 10%.
10 марта 2026
- + 17
26,7 м² · квартира-студия · 3 этаж из 22Горьковская 9 мин.ЖК «Юнтолово», 4 квартал 2025Продаeтся студия 26.7 кв.м. экорайона «Юнтолово» (Приморский р-н) напрямую от застройщика «Главстрой Санкт-Петербург». Доступны льготная ипотека, рассрочка, трейд-ин и спецпредложения. Стоимость квартиры в объявлении указана со скидкой 10%. Cкидка
10 марта 2026

