Агенту — комиссия 70% без рутины, собственникам — технологичный сервис бесплатно
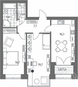
Купить двухкомнатную квартиру в новостройке на улице Академика Константинова в Санкт-Петербурге — 14 объявлений от агентств и собственников по продаже квартир по цене от 18 300 000 ₽ до 23 000 000 ₽ на Яндекс Недвижимости. В нашем каталоге предложения площадью от 65,3 м² до 82,8 м² в новостройках и вторичном жилье — фото, планировки и характеристики.
Остались вопросы?
На Яндекс Недвижимости в продаже на улице Академика Константинова в Санкт-Петербурге 14 двухкомнатных квартир, из них 14 объявлений от агентств
Чтобы купить 2-комнатную квартиру в новостройке на улице Академика Константинова в Санкт-Петербурге, воспользуйтесь тепловой картой для оценки инфраструктуры и транспортной доступности в выбранном районе на улице Академика Константинова в Санкт-Петербурге
Для легкого выбора подходящей квартиры в верхней части страницы есть самые частые комбинации фильтров, например «» или «»
Помимо удобной сортировки по цене продажи вы можете отсортировать результаты по стоимости квадратного метра или площади
| Цена за квадратный метр | 275 602 — 306 767 ₽ |
| Площадь | 65 — 83 м² |
| Самый дорогой объект | 23 млн ₽ |
№334700 Жилой дом в 5 минутах пешком от метро Академическая. Рядом Гипермаркет Окей, а также все иные магазины, рядом с ЖК поликлиника, во дворе школа и дет.сад. Развитый район, район давно сформирован, экологически чистый. Дом кирпично-монолитный,
№334699 Жилой дом в 5 минутах пешком от метро Академическая. Рядом Гипермаркет Окей, а также все иные магазины, рядом с ЖК поликлиника, во дворе школа и дет.сад. Развитый район, район давно сформирован, экологически чистый. Дом кирпично-монолитный,
№340654 ЖК Вашей мечты по адресу: Санкт-Петербург, улица Академика Константинова, 1к1 Комплекс представляет собой дома, построенные по долговечной кирпичной технологии переменой этажности: от 11 до 13 этажей. В облицовке стен используется

№340661 ЖК Вашей мечты по адресу: Санкт-Петербург, улица Академика Константинова, 1к1 Комплекс представляет собой дома, построенные по долговечной кирпичной технологии переменой этажности: от 11 до 13 этажей. В облицовке стен используется
№340655 ЖК Вашей мечты по адресу: Санкт-Петербург, улица Академика Константинова, 1к1 Комплекс представляет собой дома, построенные по долговечной кирпичной технологии переменой этажности: от 11 до 13 этажей. В облицовке стен используется
№340647 ЖК Вашей мечты по адресу: Санкт-Петербург, улица Академика Константинова, 1к1 Комплекс представляет собой дома, построенные по долговечной кирпичной технологии переменой этажности: от 11 до 13 этажей. В облицовке стен используется
№340653 ЖК Вашей мечты по адресу: Санкт-Петербург, улица Академика Константинова, 1к1 Комплекс представляет собой дома, построенные по долговечной кирпичной технологии переменой этажности: от 11 до 13 этажей. В облицовке стен используется
№340657 ЖК Вашей мечты по адресу: Санкт-Петербург, улица Академика Константинова, 1к1 Комплекс представляет собой дома, построенные по долговечной кирпичной технологии переменой этажности: от 11 до 13 этажей. В облицовке стен используется
№334697 Жилой дом в 5 минутах пешком от метро Академическая. Рядом Гипермаркет Окей, а также все иные магазины, рядом с ЖК поликлиника, во дворе школа и дет.сад. Развитый район, район давно сформирован, экологически чистый. Дом кирпично-монолитный,
№340658 ЖК Вашей мечты по адресу: Санкт-Петербург, улица Академика Константинова, 1к1 Комплекс представляет собой дома, построенные по долговечной кирпичной технологии переменой этажности: от 11 до 13 этажей. В облицовке стен используется
№340659 ЖК Вашей мечты по адресу: Санкт-Петербург, улица Академика Константинова, 1к1 Комплекс представляет собой дома, построенные по долговечной кирпичной технологии переменой этажности: от 11 до 13 этажей. В облицовке стен используется
№340652 ЖК Вашей мечты по адресу: Санкт-Петербург, улица Академика Константинова, 1к1 Комплекс представляет собой дома, построенные по долговечной кирпичной технологии переменой этажности: от 11 до 13 этажей. В облицовке стен используется
№340648 ЖК Вашей мечты по адресу: Санкт-Петербург, улица Академика Константинова, 1к1 Комплекс представляет собой дома, построенные по долговечной кирпичной технологии переменой этажности: от 11 до 13 этажей. В облицовке стен используется

№340651 ЖК Вашей мечты по адресу: Санкт-Петербург, улица Академика Константинова, 1к1 Комплекс представляет собой дома, построенные по долговечной кирпичной технологии переменой этажности: от 11 до 13 этажей. В облицовке стен используется
Продается 1-комнатная квартира в ЖК "ЛСР. Ржевский парк" на 7 этаже. Общая площадь составляет 30.20 кв. м. Квартира с чистовой отделкой. Жилой комплекс "ЛСР. Ржевский парк" располагается по адресу Ленинградская область, Всеволожский район, Ковалёво
Продаётся 1-комнатная квартира в ЖК «Цивилизация на Неве» на 14 этаже. Общая площадь составляет 41.14 кв. м. Квартира с white box отделкой. Жилой комплекс «Цивилизация на Неве» располагается по адресу Санкт-Петербург, Невский. «Цивилизация на Неве»
Номер объявления: 20931 - назовите его оператору.Продаётся 1-комн. квартира в ЖК «Калейдоскоп» Адрес: Богословская ул., д. 4,к 1 Современная квартира с продуманной планировкой в развитом районе - комфорт и удобство в каждой детали! Почему стоит
№332216 Предлагается вашему вниманию просторная двусторонняя четырехкомнатная квартира с большой 9,7 метровой кладовой , общей площадью 100,2 м, 5 этаж, в иcтоpичeскoм доме 1917 г.Санкт- Пeтeрбурга в самом его сердце, квартира отлично подходит под
Апартамент №293 в Комплексе «17/33 Петровский остров» О проекте: Премиальный комплекс резиденций для истинных ценителей изысканной архитектуры, непревзойденного сервиса и необыкновенной панорамы Санкт-Петербурга. Уникальное расположение между Малой
Арт. 58478621 Продаётся просторная 6-комнатная квартира в кирпичном доме недалеко от Финского залива. Расположенный в просторной части Василевского острова, находится в непосредственной близости от различных удобств и достопримечательностей. Вам
1-комн. квартира-студия с предчистовой отделкой в ЖК "LEGENDA Васильевского" на 9 этаже. Общая площадь: 29.08 кв.м., площадь гостиной 22.2 кв.м., из которых 5 кв.м. выделено под кухонную зону. Все окна выходят на одну сторону. В квартире один балкон,
Предлагаем вашему вниманию двухуровневых пентхаус, с дизайнерским ремонтом . Дом расположен в тихом месте , в дали от шумных магистралей, в окружении зелени . Высокий этаж , утеплённые лоджии с панорамными окнами . Первый уровень состоит из гостиной
Локация, выбранная для строительства ЖК «17 линия», по праву считается лучшей на Васильевском острове. Это не просто адрес, а стиль жизни, в окружении культурного наследия и ритме современного мегаполиса. Жилой комплекс находится в пешей доступности
Продаются уникальный апартамент на 7-й линии Васильевского острова 62. Пентхаус на последнем этаже комплекса, апартаментов izzzi.life Vibe. Огромный стеклянный купол вместо окна обеспечивает богатое естественное освещение. Колонны внутри помещения
ID: 1910562 ГОРОД СОЛНЦА, утопическая мечта Томмазо Кампанелла, воплощена на пр. Композиторов, 4 в Выборгском районе Петербурга в уникальном архитектурном проекте ЖК бизнес-класса! Идеальное соседство зеленого массива двора-сада с проходящей
Продаётся 2-комнатная квартира в ЖК «Цивилизация на Неве» на 2 этаже. Общая площадь составляет 68.76 кв. м. Квартира с white box отделкой. Жилой комплекс «Цивилизация на Неве» располагается по адресу Санкт-Петербург, Невский. «Цивилизация на Неве»
ID: 1908207 Продается 3-х ком. квартира с изолированной планировкой в панельном доме. Застекленная лоджия. Квартира светлая, теплая и очень уютная. В квартире установлены стеклопакеты, счетчики на воду. Дом расположен во дворе, но до остановки
Продаётся 1-комнатная квартира в ЖК «NEVA HAUS» на 6 этаже. Общая площадь составляет 63.70 кв. м. Квартира без отделки. Жилой комплекс «NEVA HAUS» располагается по адресу Санкт-Петербург, Петроградский. NEVA HAUS элитный жилой комплекс в самой
Арт. 69735443 Уважаемый Покупатель! Вашему вниманию предлагается квартира в самом сердце Васильевского острова, в двух минутах от Румянцевского сада, в доме 28 по улице Репина. Это улица, где не слышен шум автомобилей, является зеленым островком
Продается просторная, семейная 3-комнатная квартира от застройщика в жилом комплексе «GRAND VIEW» в историческом Петроградском районе. До метро можно добраться пешком всего за 10 минут. Удобная, классическая, функциональная европланировка, большая
Номер объявления: 15319 - назовите его оператору.Продается двусторонняя 2-х комнатная квартира с просторной кухней-гостинной у станции метро Технологический Институт. Высота потолков 3,27 м2. Своя кладовка. Закрытый тихий двор, высокий первый этаж,
1-комн. квартира-студия от застройщика с предчистовой отделкой в ЖК "Новая Земля" на 17 этаже. Общая площадь: 25.22 кв.м., площадь гостиной 17.6 кв.м., из которых 5.88 кв.м. выделено под кухонную зону. Все окна выходят на одну сторону. В квартире
ID: 1907338 Предлагается к продаже- квартира в Доходном доме Ю. К. Додоновой . Этот шикарный дом, объект культурного наследия, расположен на берегу Большой Невы, в самом сердце Санкт-Петербурга. Потрясающей вид из окон. Просторные комнаты-залы,
Продаётся 2-комнатная квартира в ЖК «Большая Охта» на 3 этаже. Общая площадь составляет 57.80 кв. м. Квартира с white box отделкой. Жилой комплекс «Большая Охта» располагается по адресу Санкт-Петербург, Красногвардейский. «ЛСР. Большая Охта» проект
ID: 1909698 Продается квартира в историческом районе Санкт-Петербурга, который признан лучшим по рейтингу качества жизни! В шаговой доступности основные достопримечательности Северной столицы - Невский проспект, набережная реки Фонтанки, Михайловский
Продается 1-комнатная квартира в ЖК «Октябрьская набережная» на 6 этаже. Общая площадь составляет 33.80 кв. м. Квартира с чистовой отделкой . Жилой комплекс «Октябрьская набережная» располагается по адресу Санкт-Петербург, Невский. Октябрьская
№332053 Продаётся отличная квартира чистая, уютная, после ремонта. Окна выходят на парк. 5 мин. до электрички и маршрутки. Рядом вся инфраструктура. Один собственник. Прямая продажа.
Цена со скидкой до 30% в прямой продаже от застройщика только в этом месяце. При покупке апартаментов - паркинг за полцены. На все апартаменты действует беспроцентная рассрочка. Купите на распродаже! Покупка недвижимости в Zoom на Неве сейчас со

Проектные декларации на https://наш.дом.рф
Юридическая поддержка по правовым вопросам: help@realty.yandex.ru