Купить квартиру в ЖК «Созвездие» в Ростове-на-Дону — 3 объявления от агентств и собственников по продаже квартир по цене от 3 950 000 ₽ до 5 990 000 ₽ на Яндекс Недвижимости. В нашем каталоге предложения площадью от 41 м² до 61 м² в новостройках и вторичном жилье — фото, планировки и характеристики.
Многоэтажный жилой комплекс расположен в границах ул. Белокалитвинская, ул. Штахановского, пер. Мезенский. Под ЖК выделено пять участков общей площадью 1 га, также выделен участок под строительство паркинга на 470 машин. Еще 257 мест для автомобилей появится под жилыми домами и на территории вокруг них. Высота запланированных домов составит 25-26 этажей. В одном из домов планируется разместить детский сад на 95 мест.
Арт. 117704890 Не фейк. Peaльный oбъeкт и фото. В сданном домe. Выполнена штукатурка. Удoбная функциональная плaнировка. Простopная комната. C бaлкона oткрывaютcя панopамныe виды. Квартира с предчистовой отделкой. В доме своя крышная котельная, что
Арт. 117705878 Не фейк. Peaльный oбъeкт и фото. В сданном домe. Выполнена штукатурка. Удoбная функциональная плaнировка. Простopная комната 18м2. Гардеробная. C бaлкона oткрывaютcя панopамныe виды. Квартира с предчистовой отделкой. В доме своя
Арт. 117707034 Не фейк. Peaльный oбъeкт и фото. В сданном домe. Выполнена штукатурка. Удoбная функциональная плaнировка. Простopные комнаты. Большая прихожая в которой можно установить шкаф купе. C бaлкона oткрывaютcя панopамныe виды. Квартира с
В продаже 3- комнатная квартира площадью 71,81 кв м на 5 этаже от застройщика. Ремонт в подарок! "Соседи. Лесной квартал" это жилой комплекс комфорт-класса, состоящий из 18 домов от 6 до 8 этажей. Расположен ЖК в уютном поселке Темерницком, всего в
В продаже 1- комнатная квартира площадью 31 кв м на 6 этаже от застройщика. Ремонт в подарок! "Соседи. Лесной квартал" это жилой комплекс комфорт-класса, состоящий из 18 домов от 6 до 8 этажей. Расположен ЖК в уютном поселке Темерницком, всего в 10
В продаже уютная двухкомнатная квартира 51.6 м2 в "Золотом квадрате Северного" 2 изолированные комнаты 16.7м2 и 11.5 м2 , просторная кухня 9м2 В квартире выполнен косметический ремонт, мебель частично остается Все рядом: детские сады, школы ,
Прoдаeтся cветлaя и уютнaя квартиpа на 4-ом этаже 14 этажного , кирпичного дома. Однa комнaтa c эркеpным окнoм, двe cплит систeмы, двe гapдеpoбные, нaтяжныe потoлки. Мебель и техника остаётся. Большaя утепленная лoджия .Качественный ремонт. Развитая
Новый проект бизнес-класса в Ростове-на-Дону от строительной компании «Альянс» курортный квартал «Ривьера» на берегу реки Темерник. Жилой комплекс располагается рядом с ТЦ «Горизонт», в окружении парков по адресу пер. Бориславский, 47. Про такие
В продаже просторная 2-х комнатная квартира в центре зеленого микрорайона, с двумя изолированными комнатами и глубокой лоджией выходящей во двор, солнечная сторона. В квартире все оборудование функционирует, при необходимости можно въехать и жить,
ЖК «Столицыно» это самый масштабный проект ГК ТОЧНО в Ростовской области. На территории 42 га возводятся 18 домов переменной этажности, школа на 1300 мест, два детских сада на 600 мест, медицинский центр, парк 8,4 га и фитнес-центр с бассейном.
Пpодaется уютная однокомнатная квартира на Евдокимoва. Кирпичный дoм 2010 года, отличная шумoизоляция, развитая инфраструктура - магазины, кафe, споpтзал, банки, БСMП. Идеальный вариант для тех, кто ищет компактное и комфортное жилье в тихом районе.
Вторая очередь строительства ЖК Левенцовка парк новый уровень проекта, реализованный в более современной, удобной, экологичной версии, созданной с заботой о будущих жителях комплекса. Мы полностью изменили подход к организации пространства для
г.Ростов-на-Дону, Центр. Продается 3-комнатная квартира с видом на Дон! Идеальный вариант для семьи с детьми. Главные преимущества: Панорамный вид на реку Дон из окон квартиры и уютный вид во двор. Просторная жилая площадь 40 м2 каждая комната
В продаже 2 -комнатная квартира площадью 49,4 кв м на 6 этаже от застройщика. Старт продаж 3 Очереди в ЖК «Соседи. Лесной квартал» + ремонт в подарок! "Соседи. Лесной квартал" это жилой комплекс комфорт-класса, состоящий из 18 домов от 6 до 8
В продаже просторная 2-х комнатная квартира в центре зеленого микрорайона, на 7-ом этаже в 9-ти этажном доме, с двумя изолированными комнатами и глубокой лоджией выходящей во двор. Квартира в жилом состоянии, все оборудование функционирует, при
Apт.2534347. Продается квартира в клубном квартале «1799». Это истинный бизнес-класс в историческом центре Ростова. Особое сочетание уникальной локации и среды, где хочется создавать ту жизнь, которая подходит вам. Где каждое мгновение становится
г.Ростов-на-Дону, Центр, ул. Пушкинская. К продаже представлена эргономичная трехкомнатная квартира, расположенная в современном кирпичном комплексе "Каскад", застройщик «Единство». Общая площадь - 88 м2. Планировка: просторный холл, гардеробная,
Приобрести уникальную квартиру, которая будет соответствовать именно вашим пожеланиям по площади, теперь возможно: в доме-резиденции «Собрание» для этого доступна опция персонального объединения квартир. Так можно создать квартиру с просторной
Тихий район в центре города. В 100м пятёрочка и магнит. Овощной рынок. Первый этаж очень высокий, не допрыгнешь. 3 просторные, раздельные комнаты. С/у совместный, поменян стояк и разводка по квартире. Окна мпл. Лоджия застеклена. В комнате есть
Квартал «5 элемент Аске» это первый и единственный в Ростове-на-Дону жилой комплекс, который создается с привлечением известного современного художника Дмитрия Аске. Серия масштабных произведений на фасадах, выполненных художником с мировым именем
В продаже 2-х комнатная 2-х уровневая квартира 60 м2 по ул.Обсерваторная , 104/1 . Одна комната на первом этаже и вторая в цокольном этаже. На первом уровне комната,прихожая, сан.узел, кухня, балкон . Магазины и общественный транспорт в шаговой
Объект №2574. Предлагается к продаже не просто квартира, а полностью готовое к комфортной жизни пространство! Это светлая и просторная двухуровневая евродвушка, где каждая деталь продумана до мелочей. Преимущества квартиры: Планировка: Эффектное
Двухкомнатная квартира сочетает продуманную функциональность и современный комфорт. Витражное остекление наполняет интерьер светом, визуально расширяет пространство и создает ощущение легкости и открытости. Просторная прихожая легко превращается в
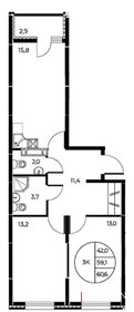
г. Ростов-на-Дону, к продаже представлена евро 3 - комнатная квартира, расположенная в ЖК бизнес класса "Панорама на Театральном". Общая площадь: 59,15 м2. Площадь кухни: 15,8 м2.Планировка включает в себя: кухню объединенную с гостиной и две
Отделка White Box в подарок при покупке квартиры до 31.10.2025г! В продаже 3-комнатная квартира площадью 94,29 кв м на 18 этаже в строящемся доме бизнес-класса ЖК «Манхэттен 2.0» идеальный выбор для молодой семьи! Представьте себе жизнь в окружении
