Агенту — комиссия 70% без рутины, собственникам — технологичный сервис бесплатно
| Фотография | Описание | Последняя цена | Дата снятия |
|---|---|---|---|
| Продажа 3-комн. квартиры 121,8 м² 14 этаж | 14,62 млн ₽ 120 099 ₽ м² | В продаже В экспозиции 1910 д. |
Скачайте подборку от экспертов Яндекс Недвижимости с выгодными предложениями от застройщиков

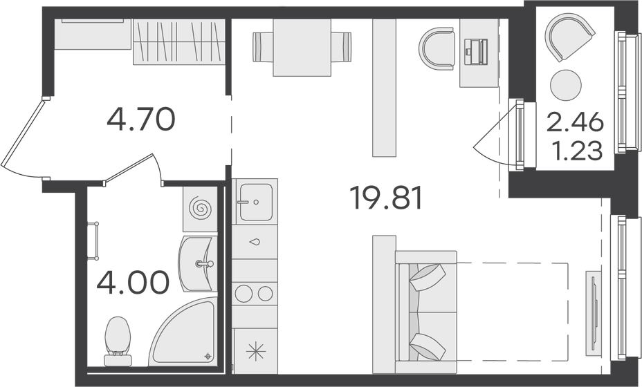
Продаётся студия на 14-м этаже в проекте комфорт-класса GloraX Парголово. Общая площадь лота составляет 29.74 кв. м. Номер квартиры - 172. Преимущества: - Квартира комфорт-класса с полной чистовой отделкой - Зеленый район, Шуваловский парк в 20 мин. пешком - 10 мин. до КАД, 15 мин. до ЗСД - 5 эт. паркинг на 451 м/м - Закрытые дворы с видеонаблюдением - Детские площадки с геопласткой и бизиборадми - Сады и школы в шаговой доступности - Спортивные площадки и велодорожки - Собственный комьюнити-центр - Келлеры для хранения - Коммерческие помещения на 1 этажах GloraX Парголово — масштабный проект комфорт-класса в Выборгском районе Санкт-Петербурга. Место, продуманное до мелочей, где все, что необходимо — рядом. Архитектурно-пространственное решение отличается лаконичностью и строгостью и придает проекту свой характер. Внутренние дворы закрыты от внешнего мира, создавая приватную территорию для жителей. Живите на природе, но с комфортом мегаполиса. Десять минут на велосипеде или полчаса пешком — и вы окажетесь в одном из культовых мест отдыха петербуржцев: Шуваловском парке, Орловском заказнике с их чистыми карьерами или на Суздальских озерах. До ж/д станции «Парголово» – 7 минут на автомобиле, до метро Проспект Просвещения – 25 минут, КАД – 10 минут, ЗСД – 15 минут. В шаговой доступности остановка общественного транспорта. В шаговой доступности — собственные школы и детские сады. Здесь все создано для максимального комфорта каждого жителя. Приватное пространство внутреннего двора с беседками с розетками для работы и отдыха, зеленый двор с уютным многоуровневым освещением, детскими эко-площадками и спортивными workout создает неповторимую атмосферу, заряжающую энергией на новые свершения. Квартиры сдаются с предчистовой отделкой White box, с возможностью дозаказа отделки в двух цветовых вариантах. Цена указана при 100% оплате или стандартной ипотеке. Узнайте подробности в Отделе продаж.
Подробнее
Проектные декларации на https://наш.дом.рф
Юридическая поддержка по правовым вопросам: help@realty.yandex.ru