| Фотография | Описание | Последняя цена | Дата снятия |
|---|---|---|---|
| Продажа 3-комн. квартиры 90 м² 18 этаж | 46 млн ₽ 511 112 ₽ м² | В продаже В экспозиции 22 д. |
Скачайте подборку от экспертов Яндекс Недвижимости с выгодными предложениями от застройщиков

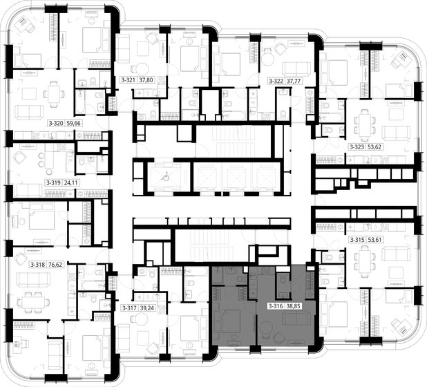
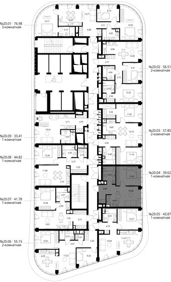
Стоимость указана с учетом скидки (5%)! Не упустите возможность приобрести жилье по выгодной цене - экономия составит 1 148 691 рублей. Стоимость квартиры без скидки 22 973 822 рублей. Продается 1-комнатная квартира от застройщика в жилом комплексе City Вау, площадью 38.77 м2 на 30 этаже. Срок сдачи 1 квартал 2025 года. Концепция жилого комплекса City Вау - настоящий город в городе с отлично развитой инфраструктурой и собственной благоустроенной набережной. На территории жилого комплекса расположено пять кварталов - Atlantic, Pacific, Indian, North, Cliff. Жилой квартал City Вау отличается оригинальной концепцией и выделяется среди других проектов такими характеристиками как: - Архитектура, - Виды из окон, - Природное окружение, вызывая гордость у жителей и восхищение у прохожих. Вся жизнь района Покровское-Стрешнево строится вокруг водных объектов: - Пойма реки Сходни с уникальной экосистемой, - Речка Химка и Химкинское водохранилище, - Москва-река, - Канал имени Москвы. Кругом вода, и местные с удовольствием этим пользуются. А сразу за рекой - центр водного спорта в Строгино с вейк-парком и яхт-клубами. Помимо воды, здесь очень много зелени: - Рядом Сходненский ковш памятник природы, естественный амфитеатр глубиной 40 метров; - Парк при усадьбе Братцево с фруктовым садом; - Дубовая роща «Маяк», - Алешкинский лес; - Лесопарк Покровское-Стрешнево с пляжами и бобрами. Главные транспортные артерии района: - Волоколамское шоссе, - Таганско-Краснопресненская линия метро и МЦД-2. Всего за 20 минут можно добраться до центра на машине или метро, а МЦД связывает ЖК City Вау с северными, восточными и юго-восточными районами.
Новостройки
С вас — пожелания, с нас — подходящие варианты
