| Фотография | Описание | Последняя цена | Дата снятия |
|---|---|---|---|
| Продажа 1-комн. квартиры 34 м² 8 этаж | 8,5 млн ₽ 250 000 ₽ м² | В продаже В экспозиции 382 д. |
Скачайте подборку от экспертов Яндекс Недвижимости с выгодными предложениями от застройщиков

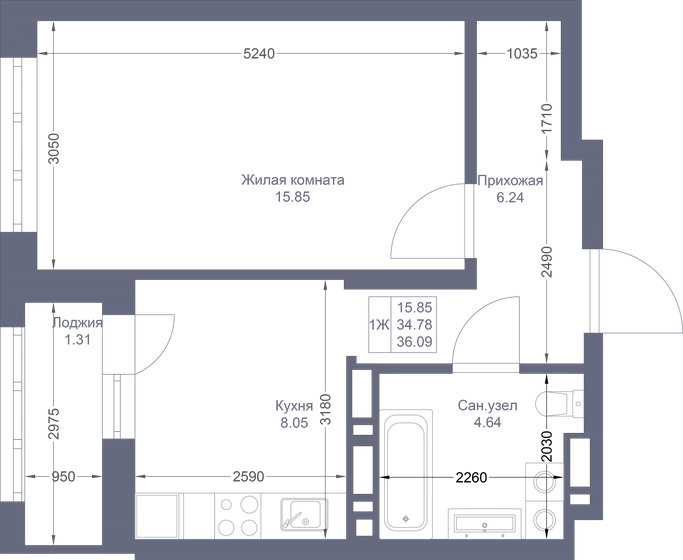
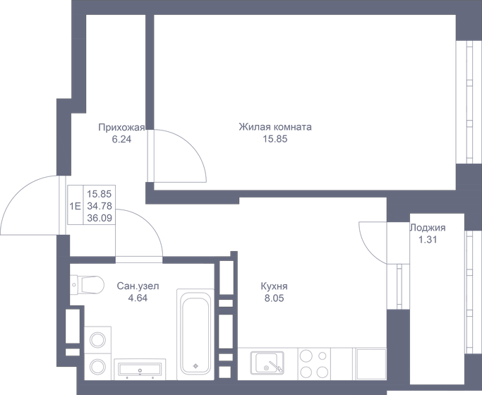
Продается 1-комнатная квартира № 505 площадью 36,09 кв.м на 18 этаже 22-ти этажного дома проекта «Мой Ритм» от «Ак Барс Дом». Купить квартиру можно в ипотеку со ставкой от 4,5%. «Мой Ритм» — современный жилой комплекс комфорт-класса в Советском районе Казани, на пересечении пр. Победы и ул. Сахарова. Удобная транспортная развязка, развитая сеть общественного транспорта, скоро откроется станция метро «Тулпар». На территории ЖК – Многопрофильный лицей и 2 детских сада, поликлиника. Рядом ТРЦ «МЕГА» и Горкинско-Ометьевский парк. «Мой Ритм» – призер Всероссийского конкурса от Единого ресурса застройщиков РФ «ТОП ЖК». Авторское благоустройство: детские эко-площадки, спортивные зоны с резиновым покрытием, пешеходный бульвар и озеленение. Скоро появится большой игровой парк «Озеро дракона» с зонами активности и отдыха. Для безопасности дворы закрыты от машин и посторонних, а по периметру установлено видеонаблюдение. Паркинги с заездом по считыванию номеров, система IP-домофонии с функцией Face-ID, возможности "умного" дома для вашей будущей квартиры. Просторная 1-комнатная квартира с гостиной в 15,85 кв.м. Высокие потолки 2, 7 м, правильная геометрия комнат для удобной меблировки. В прихожей достаточно места для создания вместительной гардеробной. Отдельная кухня, из которой открывается выход на лоджию. Уход за домом возьмёт на себя УК «Всегда рядом». Благодаря грамотно выстроенной системе, обслуживание квартиры через управляющую компанию «Всегда рядом» будет обходиться дешевле по сравнению с другими. Опытные специалисты помогут вам обеспечить комфортное проживание. Дом там, где мы.
Новостройки
С вас — пожелания, с нас — подходящие варианты
