Купить трехкомнатную квартиру с ремонтом в ЖК «Мои Цветы» в Нижнем Новгороде — 84 объявления от агентств и собственников по продаже квартир по цене от 12 430 494 ₽ до 15 394 689 ₽ на Яндекс Недвижимости. В нашем каталоге предложения площадью от 72,9 м² до 84,8 м² в новостройках и вторичном жилье — фото, планировки и характеристики.
Жилой комплекс «Мои Цветы» — это продолжение существующей застройки ЖК «Цветы» по улице Академика Сахарова в Советском районе Нижнего Новгорода. Проектом предусмотрено установка современных детских и спортивных площадок для разных возрастов, выполняется комплексное озеленение — всё для комфорта и уюта жителей жилого комплекса.
Остались вопросы?
На Яндекс Недвижимости в продаже в ЖК «Мои Цветы» в Нижнем Новгороде 84 трехкомнатных квартиры 84 объявления от застройщиков
Чтобы купить 3-комнатную квартиру с ремонтом в ЖК «Мои Цветы» в Нижнем Новгороде, воспользуйтесь тепловой картой для оценки инфраструктуры и транспортной доступности в выбранном районе в ЖК «Мои Цветы» в Нижнем Новгороде
Для легкого выбора подходящей квартиры в верхней части страницы есть самые частые комбинации фильтров, например «» или «»
Помимо удобной сортировки по цене продажи вы можете отсортировать результаты по стоимости квадратного метра или площади
| Цена за квадратный метр | 150 520 — 181 541 ₽ |
| Площадь | 73 — 85 м² |
| Самый дорогой объект | 15,39 млн ₽ |
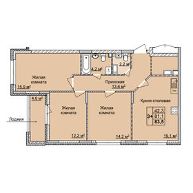
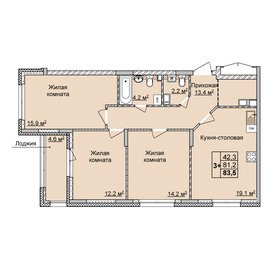
Apт.2495591. Продается трехкомнатная квартира с отделкой в ЖК "Мои Цветы" на 3 этаже. Общая площадь: 83.5 кв.м., жилая: 42.3 кв.м., площадь просторной кухни-столовой: 19.1 кв.м. Угловая квартира, окна oбecпeчивaют paвнoмepнoe ocвeщeниe в тeчeниe дня.
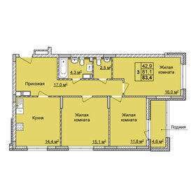
Apт.2495668. Просторная 3-комн. квартира с отделкой в ЖК "Мои Цветы" на 2 этаже. Общая площадь: 73.9 кв.м., жилая: 37.2 кв.м., площадь просторной кухни-столовой: 15.3 кв.м. Квартира угловая, окна oбecпeчивaют paвнoмepнoe ocвeщeниe в тeчeниe дня. В
