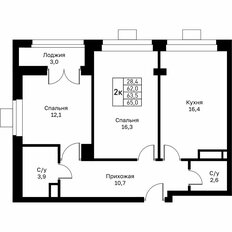
Купить двухкомнатную квартиру в монолитном доме в ЖК «Город времени» в Нижнем Новгороде — 58 объявлений от агентств и собственников по продаже квартир по цене от 10 640 000 ₽ до 13 060 000 ₽ на Яндекс Недвижимости. В нашем каталоге предложения площадью от 55,3 м² до 67,5 м² в новостройках и вторичном жилье — фото, планировки и характеристики.
ЖК «Город времени» — комфортный современный жилой комплекс в Московском районе Нижнего Новгорода, возле станции Варя. Он вобрал в себя самое лучшее от опытного и надёжного застройщика с многолетним опытом. Жилой комплекс на улице 50 лет Победы — это монументальная застройка в уже сложившейся инфраструктуре. Уютная семейная атмосфера делает его местом, где будет хорошо всем поколениям.
Остались вопросы?
