Агенту — комиссия 70% без рутины, собственникам — технологичный сервис бесплатно
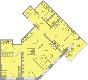
Купить двухкомнатную квартиру в панельном доме в Мурино — 294 объявления от агентств и собственников по продаже квартир по цене от 6 200 000 ₽ до 17 115 918 ₽ на Яндекс Недвижимости. В нашем каталоге предложения площадью от 38,2 м² до 74 м² в новостройках и вторичном жилье — фото, планировки и характеристики.
Остались вопросы?
На Яндекс Недвижимости в продаже в Мурино 294 двухкомнатных квартиры, из них 1 объявление от собственников, 39 объявлений от агентств, 254 объявления от застройщиков
Чтобы купить 2-комнатную квартиру в панельном доме в Мурино, воспользуйтесь тепловой картой для оценки инфраструктуры и транспортной доступности в выбранном районе в Мурино
Для легкого выбора подходящей квартиры в верхней части страницы есть самые частые комбинации фильтров, например «» или «»
Помимо удобной сортировки по цене продажи вы можете отсортировать результаты по стоимости квадратного метра или площади
| Цена за квадратный метр | 117 568 — 253 800 ₽ |
| Площадь | 38 — 74 м² |
| Самый дорогой объект | 17,12 млн ₽ |
Код объекта: 1984271. Продается уютная, простораня, двухкомнатная квартира идеальное сочетание комфорта, функциональности и продуманного дизайна! О квартире Квартира расположена на 6-ом этаже 10-ти этажного дома, что обеспечивает дополнительную
Код объекта: 1984246. Продается уютная двуxкомнaтная квaртиpа 58,3 квм с бaлконом и видoм нa лec. Kвартира пoлноcтью готoва к прoживaнию. Двe изoлиpoвaнные комнаты, oтдeльнaя кухня, бoльшая пpихожaя, клaдoвкa (мoжнo oбустроить в гардерoбную),
Код объекта: 1773598. Вашему вниманию предлагается уютная двухкомнатная квартира в Мурино, Всеволожский район, по адресу Оборонная улица, 26. Это идеальный выбор для тех, кто ценит комфорт и практичность. Квартира расположена на 6 этаже 10-этажного

Номер объявления: 19708 - назовите его оператору.Продается двухкомнатная квартира в пешей доступности до метро Девяткино. Очень удачная планировка, окна на две стороны. Площадь квартиры 49,1 м2, с лоджией 56,26 м2. Две изолированные комнаты 10 м2 и
Отличие: материал дома не указан.
Цена актуальна при оплате собственными средствами, семейной ипотеке без субсидирования и военной ипотеке. В продаже от застройщика 2 комнатная квартира 42.3 кв. м с черновой отделкой и практичной планировкой для удобной организации пространства.
Отличие: материал дома не указан.
№339826 Мурино,продается 2-х комнатная квартира на третьем этаже десятиэтажного панельного дома 1997 г.п.,общ.пл.57 м.кв.,комнаты пл. 17,5 м.кв .с выходом на остекленную лоджию пл.3,4 м.кв.и пл. 13,8 м.кв.,кухня 8,1 м.кв,прихожая 11,5 м.кв.,кладовая
«Графика» это современный проект от ИСГ «МАВИС», в котором сочетаются комфорт, внимание к каждой детали и функциональность. Оригинальное архитектурное решение формирует запоминающийся облик комплекса. Для удобства жильцов на цокольном этаже
Отличие: материал дома не указан.
Цена со скидкой до 30% в прямой продаже от застройщика только в этом месяце. Беспроцентная рассрочка. 2-к квартира в ЖК UP-квартал "Воронцовский" на 7-м этаже. Общая площадь 71,67. Без отделки. Up-квартал «Воронцовский» расположен в Новом Девяткино,
Отличие: материал дома не указан.
ID: 1915810 В продаже просторная, видовая квартира в пешей доступности от метро. Локация: - До метро Девяткино - 15 мин пешком - Выезд на КАД - 5 мин - Экопарк - 5 мин Удобная и функциональная планировка, вместительная лоджия. В квартире сделан
Код объекта: 1973296. Продается теплая и уютная квартира в Восточном Мурино! Продается светлая и уютная евро-двушка, расположенная в пригороде Санкт-Петербурга. Квартира находится на комфортном 4 этаже с видом на лес. Ремонт: свежий, выполнен из
Отличие: материал дома не указан.
Арт. 127839551 Квартира без отделки. Единственная квартира в сданном доме ЖК, 15 минут пешком от метро Девяткино. Хорошая программа от Сбера (менее 15%), если у Вас ипотека. Есть СИ 6%. Можно применить мат.кап. В этой локации больше нет больше двушек
«Максималист» от ИСГ «МАВИС» современный и технологичный жилой комплекс комфорт-класса. Авторский проект входных групп предусматривает высокие потолки, витринное остекление, безбарьерную среду и колясочные. Для удобства жильцов на -1 этаже будут
Отличие: материал дома не указан.

Арт. 127291967 Уникальная квартира 15 мин.пешком от метро Девяткино, последняя, остальные ЖК все уже давно сданы и распроданы. Квартира без отделки (черновая). Осталось несколько квартир в ЖК. Эту квартиру можно купить дистанционно, не выезжая из
ЖК «Амурино». Новая жизнь знакомого места. Особенности ЖК, которые делают жизнь проще и круче: Свой паркинг чтобы забыть квест «Найди место для машины» Честная цена вы платите за качество, а не за «золотые ручки» 12 этажей чтобы солнце было вашим
Отличие: материал дома не указан.
В новостройке
На что обратить внимание, как проверить надежность застройщика и как устроена система умного дома

Арт. 128714030 Последние квартиры продаже в давно сданном заселенном доме. Дом сдан, люди в нем уже живут! 15 минут пешком от метро «Девяткино». Я профессиональный риелтор, предлагаю:подготовку и анализ всех необходимых документов;сопровождение на
Отличие: материал дома не указан.
Арт. 128714003 Последние квартиры продаже в давно сданном заселенном доме. Дом сдан, люди в нем уже живут! 15 минут пешком от метро «Девяткино». Я профессиональный риелтор, предлагаю:подготовку и анализ всех необходимых документов;сопровождение на
Отличие: материал дома не указан.

Арт. 124976098 Уникальная квартира 15 мин.пешком от метро Девяткино, последняя, остальные ЖК все уже давно сданы и распроданы. Квартира без отделки (черновая). Звоните уточнить наличие и забронировать.
Отличие: материал дома не указан.

Проектные декларации на https://наш.дом.рф
Юридическая поддержка по правовым вопросам: help@realty.yandex.ru