Агенту — комиссия 70% без рутины, собственникам — технологичный сервис бесплатно
Купить квартиру-студию в небоскребе у метро МЦД Поклонная (мцд-4 ветка) в Москве и МО — 40 объявлений от агентств и собственников по продаже квартир-студий по цене от 26 849 734 ₽ до 270 000 000 ₽ на Яндекс Недвижимости. В нашем каталоге предложения площадью от 21,3 м² до 401 м² в новостройках и вторичном жилье — фото, планировки и характеристики.
Остались вопросы?
На Яндекс Недвижимости в продаже у метро МЦД Поклонная (мцд-4 ветка) в Москве и МО 40 квартир, из них 3 объявления от агентств, 37 объявлений от застройщиков
Чтобы купить квартиру - студию в небоскребе у метро МЦД Поклонная (мцд-4 ветка) в Москве и МО, воспользуйтесь тепловой картой для оценки инфраструктуры и транспортной доступности в выбранном районе у метро МЦД Поклонная (мцд-4 ветка) в Москве и МО
Для легкого выбора подходящей квартиры в верхней части страницы есть самые частые комбинации фильтров, например «» или «»
Помимо удобной сортировки по цене продажи вы можете отсортировать результаты по стоимости квадратного метра или площади
| Цена за квадратный метр | 482 277 — 1,33 млн ₽ |
| Площадь | 21 — 401 м² |
| Самый дорогой объект | 270 млн ₽ |
Двухуровневый пентхаус с собственной террасой в комплексе премиум-класса «Долина Сетунь» с живописными видами на весь город: панорама на Мосфильмовский пруд, Поклонную гору, все сталинские высотки, башни «Москва-Сити». Пентхаус общей площадью 401 м
Отличие: этажей в доме: 36.
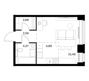
Продается студия площадью 36.3 кв.м. на 4-м этаже в жилом комплексе премиум-класса River Park Кутузовский в Башне Lazur Tower О жилом комплексе. Премиальный жилой комплекс River Park Кутузовский строится в одном из самых престижных районов столицы
id:855. К вашему вниманию квартира для воплощения ваших самых заветных желаний для создания уюта и индивидуальности! Ваш личный городской пейзаж! Квартира с уникальным видом на знаковые места. "Воробьевы горы" это не просто жилой комплекс, это образ
Отличие: этажей в доме: 38.

Строим кварталы для жизни с заботой о будущем. Предлагается студия премиум-класса площадью 29,39 кв.м в корпусе 1 на 2-м этаже, в жилом комплексе «NOVA». В Жилом комплексе будет предусмотрено 5 видов дизайнерской отделки. А также white box и квартиры
Продается студия площадью 40.1 кв.м. на 15-м этаже в жилом комплексе премиум-класса River Park Кутузовский в Башне Lazur Tower О жилом комплексе. Премиальный жилой комплекс River Park Кутузовский строится в одном из самых престижных районов столицы
Строим кварталы для жизни с заботой о будущем. Предлагается студия премиум-класса площадью 30,0 кв.м в корпусе 1 на 12-м этаже, в жилом комплексе «NOVA». В Жилом комплексе будет предусмотрено 5 видов дизайнерской отделки. А также white box и квартиры
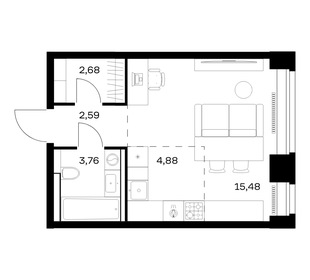
Продается студия площадью 36.3 кв.м. на 3-м этаже в жилом комплексе премиум-класса River Park Кутузовский в Башне Lazur Tower О жилом комплексе. Премиальный жилой комплекс River Park Кутузовский строится в одном из самых престижных районов столицы
Строим кварталы для жизни с заботой о будущем. Предлагается студия премиум-класса площадью 30,0 кв.м в корпусе 1 на 10-м этаже, в жилом комплексе «NOVA». В Жилом комплексе будет предусмотрено 5 видов дизайнерской отделки. А также white box и квартиры
Продается студия площадью 38.1 кв.м. на 13-м этаже в жилом комплексе премиум-класса River Park Кутузовский в Башне Lazur Tower О жилом комплексе. Премиальный жилой комплекс River Park Кутузовский строится в одном из самых престижных районов столицы
Продается студия площадью 41.0 кв.м. на 18-м этаже в жилом комплексе премиум-класса River Park Кутузовский в Башне Amber Tower О жилом комплексе. Премиальный жилой комплекс River Park Кутузовский строится в одном из самых престижных районов столицы
Строим кварталы для жизни с заботой о будущем. Предлагается студия премиум-класса площадью 30,0 кв.м в корпусе 1 на 10-м этаже, в жилом комплексе «NOVA». В Жилом комплексе будет предусмотрено 5 видов дизайнерской отделки. А также white box и квартиры
Продается студия площадью 37.9 кв.м. на 15-м этаже в жилом комплексе премиум-класса River Park Кутузовский в Башне Lazur Tower О жилом комплексе. Премиальный жилой комплекс River Park Кутузовский строится в одном из самых престижных районов столицы
Строим кварталы для жизни с заботой о будущем. Предлагается студия премиум-класса площадью 30,0 кв.м в корпусе 1 на 11-м этаже, в жилом комплексе «NOVA». В Жилом комплексе будет предусмотрено 5 видов дизайнерской отделки. А также white box и квартиры

Продается студия площадью 41.1 кв.м. на 6-м этаже в жилом комплексе премиум-класса River Park Кутузовский в Башне Lazur Tower О жилом комплексе. Премиальный жилой комплекс River Park Кутузовский строится в одном из самых престижных районов столицы
Продается студия площадью 37.4 кв.м. на 13-м этаже в жилом комплексе премиум-класса River Park Кутузовский в Башне Topaz Tower О жилом комплексе. Премиальный жилой комплекс River Park Кутузовский строится в одном из самых престижных районов столицы
Скачайте подборку от экспертов Яндекс Недвижимости с выгодными предложениями от застройщиков

Строим кварталы для жизни с заботой о будущем. Предлагается студия премиум-класса площадью 29,39 кв.м в корпусе 1 на 7-м этаже, в жилом комплексе «NOVA». В Жилом комплексе будет предусмотрено 5 видов дизайнерской отделки. А также white box и квартиры
Продается студия площадью 41.1 кв.м. на 3-м этаже в жилом комплексе премиум-класса River Park Кутузовский в Башне Lazur Tower О жилом комплексе. Премиальный жилой комплекс River Park Кутузовский строится в одном из самых престижных районов столицы
Строим кварталы для жизни с заботой о будущем. Предлагается студия премиум-класса площадью 30,0 кв.м в корпусе 1 на 10-м этаже, в жилом комплексе «NOVA». В Жилом комплексе будет предусмотрено 5 видов дизайнерской отделки. А также white box и квартиры
Продается студия площадью 41.1 кв.м. на 4-м этаже в жилом комплексе премиум-класса River Park Кутузовский в Башне Lazur Tower О жилом комплексе. Премиальный жилой комплекс River Park Кутузовский строится в одном из самых престижных районов столицы

Продается студия площадью 41.2 кв.м. на 13-м этаже в жилом комплексе премиум-класса River Park Кутузовский в Башне Lazur Tower О жилом комплексе. Премиальный жилой комплекс River Park Кутузовский строится в одном из самых престижных районов столицы
Продается студия площадью 42.6 кв.м. на 17-м этаже в жилом комплексе премиум-класса River Park Кутузовский в Башне Lazur Tower О жилом комплексе. Премиальный жилой комплекс River Park Кутузовский строится в одном из самых престижных районов столицы
Продается студия площадью 41.2 кв.м. на 11-м этаже в жилом комплексе премиум-класса River Park Кутузовский в Башне Lazur Tower О жилом комплексе. Премиальный жилой комплекс River Park Кутузовский строится в одном из самых престижных районов столицы

Проектные декларации на https://наш.дом.рф
Юридическая поддержка по правовым вопросам: help@realty.yandex.ru