Агенту — комиссия 70% без рутины, собственникам — технологичный сервис бесплатно
Купить однокомнатную квартиру в пятиэтажных домах у метро МЦД Шереметьевская (мцд-1 ветка) в Москве и МО — 299 объявлений от агентств и собственников по продаже квартир по цене от 3 990 000 ₽ до 14 609 000 ₽ на Яндекс Недвижимости. В нашем каталоге предложения площадью от 28,7 м² до 61,1 м² в новостройках и вторичном жилье — фото, планировки и характеристики.
Остались вопросы?
На Яндекс Недвижимости в продаже у метро МЦД Шереметьевская (мцд-1 ветка) в Москве и МО 299 однокомнатных квартир, из них 13 объявлений от собственников, 19 объявлений от агентств, 267 объявлений от застройщиков
Чтобы купить 1-комнатную квартиру в пятиэтажных домах у метро МЦД Шереметьевская (мцд-1 ветка) в Москве и МО, воспользуйтесь тепловой картой для оценки инфраструктуры и транспортной доступности в выбранном районе у метро МЦД Шереметьевская (мцд-1 ветка) в Москве и МО
Для легкого выбора подходящей квартиры в верхней части страницы есть самые частые комбинации фильтров, например «» или «»
Помимо удобной сортировки по цене продажи вы можете отсортировать результаты по стоимости квадратного метра или площади
| Цена за квадратный метр | 115 764 — 326 312 ₽ |
| Площадь | 29 — 61 м² |
| Самый дорогой объект | 14,61 млн ₽ |
В свободной продаже уютная, 1-к. квартира, в тёплом, кирпичном доме, близ жд.ст. Хлебниково. В квартире сделан качественный ремонт, квартира меблирована. Окна выходят, на тихий скверик, от дома до пляжа 200 метров. Один взрослый собственник.
ЖК «Шолохово» - это малоэтажный комплекс, расположенный на Дмитровском шоссе в 16 км и всего 20 минут езды от МКАД. С одной стороны комплекса протекает река, а с другой - раскинулся большой лесной массив. ЖК разделен на комфортные небольшие кварталы,
Предлагаем вашему вниманию уютную 1-комнатную квартиру в экологически чистом районе города Лобня! Этот вариант идеально подойдет для тех, кто ценит комфорт, тишину и близость к природе. Квартира обладает рядом преимуществ, которые делают ее

ЖК «Шолохово» - это малоэтажный комплекс, расположенный на Дмитровском шоссе в 16 км и всего 20 минут езды от МКАД. С одной стороны комплекса протекает река, а с другой - раскинулся большой лесной массив. ЖК разделен на комфортные небольшие кварталы,
Предлагается к продаже Однокомнатная квартира в Кирпичном доме. Общая площадь: 33.2 м2., Кухня: 6 м2. Балкон (выход из комнаты) 5/5. Тип перекрытий: Железобетонные. В квартире был затеян капитальный ремонт для дальнейшего проживания НО обстоятельства
ЖК «Шолохово» - это малоэтажный комплекс, расположенный на Дмитровском шоссе в 16 км и всего 20 минут езды от МКАД. С одной стороны комплекса протекает река, а с другой - раскинулся большой лесной массив. ЖК разделен на комфортные небольшие кварталы,
Код объекта: 1213210. Продаётся квартира в Лобне: идеальное место для комфортной жизни Ищете жильё в тихом и спокойном районе? Тогда эта квартира может стать идеальным выбором. Расположенная по адресу ул. Калинина, 30 в городе Лобня, она предлагает
ЖК «Шолохово» - это малоэтажный комплекс, расположенный на Дмитровском шоссе в 16 км и всего 20 минут езды от МКАД. С одной стороны комплекса протекает река, а с другой - раскинулся большой лесной массив. ЖК разделен на комфортные небольшие кварталы,
Продается однокомнатная квартира в г. Лобня. Развитая инфраструктура: школы, сады во дворе и вся городская инфраструктура в шаговой доступности. До наземного метро МЦД и станции ж/д Лобня 20 минут пешком, далее 30 минут до г. Москва. Также
ЖК «Шолохово» - это малоэтажный комплекс, расположенный на Дмитровском шоссе в 16 км и всего 20 минут езды от МКАД. С одной стороны комплекса протекает река, а с другой - раскинулся большой лесной массив. ЖК разделен на комфортные небольшие кварталы,
Продаётся 1кв.г.Лобня..микрорайон ,,Москвич,, 15мин.пешк.от ст МЦД Лобня. Дом кирпичный 1980г постройки..очень теплый..рядом вся инфраструктура детский сад,школа.магазинн Магнит .кинотеатр..в пеший доступности лесной массив
ЖК «Шолохово» - это малоэтажный комплекс, расположенный на Дмитровском шоссе в 16 км и всего 20 минут езды от МКАД. С одной стороны комплекса протекает река, а с другой - раскинулся большой лесной массив. ЖК разделен на комфортные небольшие кварталы,
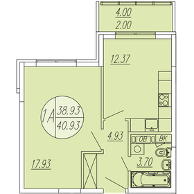
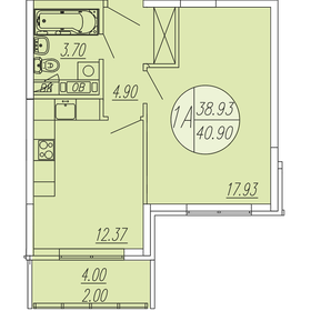
Продаётся уютная однокомнатная квартира площадью 28.7 квадратных метров на третьем этаже пятиэтажного панельного дома, расположенного по адресу: город Лобня, микрорайон Депо, улица Чайковского, дом 14. Дом построен в 1983 году и окружён развитой

ЖК «Шолохово» - это малоэтажный комплекс, расположенный на Дмитровском шоссе в 16 км и всего 20 минут езды от МКАД. С одной стороны комплекса протекает река, а с другой - раскинулся большой лесной массив. ЖК разделен на комфортные небольшие кварталы,
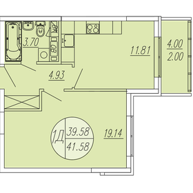
Продается 1-комнатная квартира в ЖК Город Набережных общей площадью 34, 2 кв.м., жилая 14,3 кв.м., кухня 8,1 кв.м. Вид из окон и с балкона на набережную р. Клязьма - в летнее время можно наблюдать за утками, бобрами и прочими водоплавающими. Квартира
Отличие: этажей в доме: 6.
Скачайте подборку от экспертов Яндекс Недвижимости с выгодными предложениями от застройщиков

ЖК «Шолохово» - это малоэтажный комплекс, расположенный на Дмитровском шоссе в 16 км и всего 20 минут езды от МКАД. С одной стороны комплекса протекает река, а с другой - раскинулся большой лесной массив. ЖК разделен на комфортные небольшие кварталы,
Продается 1-комнатная квартира в отличном состоянии. Проведен капитальный ремонт, отштукатурены все стены, новый ламинат, в ванной плитка, замена всех коммуникаций (трубы, проводка, полотенцесушитель), новая сантехника в ванной и на кухне, новая
ЖК «Шолохово» - это малоэтажный комплекс, расположенный на Дмитровском шоссе в 16 км и всего 20 минут езды от МКАД. С одной стороны комплекса протекает река, а с другой - раскинулся большой лесной массив. ЖК разделен на комфортные небольшие кварталы,
Вашему вниманию представляется 1 комнатная квартира г. Лобня , улица Калинина , дом 30 ., 1/5 этажного кирпичного жилого дома. Общая площадь -31,9 кв.м., кухня- 5,5 кв.м, жилая - 18, 0 кв.м. Рядом школа, детский сад,,сеть супермаркетов, парк, лес,

ЖК «Шолохово» - это малоэтажный комплекс, расположенный на Дмитровском шоссе в 16 км и всего 20 минут езды от МКАД. С одной стороны комплекса протекает река, а с другой - раскинулся большой лесной массив. ЖК разделен на комфортные небольшие кварталы,

Проектные декларации на https://наш.дом.рф
Юридическая поддержка по правовым вопросам: help@realty.yandex.ru