Агенту — комиссия 70% без рутины, собственникам — технологичный сервис бесплатно
Купить квартиру в небоскребе у метро Спартак (фиолетовая ветка) в Москве и МО — 232 объявления от агентств и собственников по продаже квартир по цене от 13 600 000 ₽ до 71 806 000 ₽ на Яндекс Недвижимости. В нашем каталоге предложения площадью от 28 м² до 111 м² в новостройках и вторичном жилье — фото, планировки и характеристики.
Остались вопросы?
На Яндекс Недвижимости в продаже у метро Спартак (фиолетовая ветка) в Москве и МО 232 квартиры, из них 1 объявление от собственников, 10 объявлений от агентств, 221 объявление от застройщиков
Чтобы купить квартиру в небоскребе у метро Спартак (фиолетовая ветка) в Москве и МО, воспользуйтесь тепловой картой для оценки инфраструктуры и транспортной доступности в выбранном районе у метро Спартак (фиолетовая ветка) в Москве и МО
Для легкого выбора подходящей квартиры в верхней части страницы есть самые частые комбинации фильтров, например «1-комнатные» или «2-комнатные»
Помимо удобной сортировки по цене продажи вы можете отсортировать результаты по стоимости квадратного метра или площади
| Цена за квадратный метр | 326 211 — 668 742 ₽ |
| Площадь | 28 — 111 м² |
| Самые популярные запросы | «1-комнатные», «2-комнатные» |
| Самый дорогой объект | 71,81 млн ₽ |
Арт. 117388659 Продаётся 3-комнатная квартира евроформата общей площадью 64,9 м, расположенная на 28 этаже 44-этажного монолитно-кирпичного дома бизнес-класса в жилом комплексе Sky Garden от надёжного застройщика ФСК. Клиенты «Прайм Самолёт Плюс»
Арт. 111522407 Продаётся 3-комнатная квартира евроформата общей площадью 69,6 м, расположенная на 12 этаже 44-этажного монолитно-кирпичного дома бизнес-класса в жилом комплексе Sky Garden от надёжного застройщика ФСК. Клиенты «Прайм Самолёт Плюс»
Арт. 99870647 Отличная цена за квадратный метр и низкий платёж. Быстрый выход на сделку. Агентам, просьба, звонить при наличии реального покупателя. ЖK бизнeс-клacса с видом на парк «Cходненcкий ковш» и pеку «Сxoдня» Oбщая плoщадь 77,2 кв.м., Cекция

Код объекта: 1996744. Продается однокомнатная видовая квартира SkyDarden бизнес-класса. Квартира видовая с видом на реку. Квартира куплена по ДДУ, один собственник. Дом сдан декабрь 2025 год. В ЖК установлена система Уютный Дом, обустроены игровые
Продается 2-комнатная квартира от застройщика в жилом мультиквартале CITYZEN на 11-м этаже в корпусе 6 урбан-блока VOLNA. Общая площадь лота составляет 55.60 кв. м Квартира имеет просторную кухню-гостиную с комфортной обеденной и диванной зонами и 1
Код объекта: 1677676. Продается отличная, светлая, видовая трёхкомнатная квартира евро формата. Панорамные окна на Москву реку. Качественный дизайнерский ремонт с дорогими материалами отделки на последних стадиях готовности, будет как на рендерах.
Продаётся 2-комнатная квартира 60 м. В премиальном квартале LIA ALIVE на 2-м этаже 42-этажного дома. Одна из самых ярких и впечатляющих частей жилого района ALIA премиальный квартал LIA ALIVE. Это две башни LIGHTHOUSE от бюро APEX на первой
Продается 2-комнатная квартира от застройщика в жилом мультиквартале CITYZEN на 44-м этаже в корпусе 6 урбан-блока VOLNA. Общая площадь лота составляет 59.50 кв. м Квартира имеет просторную кухню-гостиную с комфортной обеденной и диванной зонами и 1
Продается 1-комнатная квартира от застройщика в жилом мультиквартале CITYZEN на 47-м этаже в корпусе 6 урбан-блока VOLNA. Общая площадь лота составляет 33.00 кв. м Квартира имеет просторную кухню-гостиную с комфортной обеденной и диванной зонами
Продается 2-комнатная квартира от застройщика в жилом мультиквартале CITYZEN на 17-м этаже в корпусе 6 урбан-блока VOLNA. Общая площадь лота составляет 55.70 кв. м Квартира имеет просторную кухню-гостиную с комфортной обеденной и диванной зонами и 1
Продается 1-комнатная квартира от застройщика в жилом мультиквартале CITYZEN на 11-м этаже в корпусе 6 урбан-блока VOLNA. Общая площадь лота составляет 34.00 кв. м Квартира имеет просторную кухню-гостиную с комфортной обеденной и диванной зонами и 1
Продается 1-комнатная квартира от застройщика в жилом мультиквартале CITYZEN на 48-м этаже в корпусе 6 урбан-блока VOLNA. Общая площадь лота составляет 43.90 кв. м Квартира имеет просторную кухню-гостиную с комфортной обеденной и диванной зонами
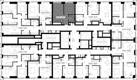
Продается 1-комнатная квартира от застройщика в жилом мультиквартале CITYZEN на 16-м этаже в корпусе 6 урбан-блока VOLNA. Общая площадь лота составляет 34.10 кв. м Квартира имеет просторную кухню-гостиную с комфортной обеденной и диванной зонами и 1

Продается 3-комнатная квартира от застройщика в жилом мультиквартале CITYZEN на 27-м этаже в корпусе 6 урбан-блока VOLNA. Общая площадь лота составляет 86.80 кв. м Квартира имеет просторную кухню-гостиную с комфортной обеденной и диванной зонами и 2
Продается 3-комнатная квартира от застройщика в жилом мультиквартале CITYZEN на 44-м этаже в корпусе 6 урбан-блока VOLNA. Общая площадь лота составляет 74.10 кв. м Квартира имеет просторную кухню-гостиную с комфортной обеденной и диванной зонами
Скачайте подборку от экспертов Яндекс Недвижимости с выгодными предложениями от застройщиков

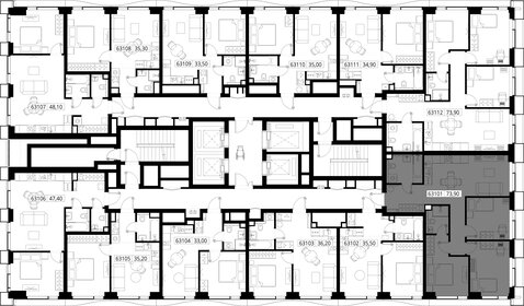
Продается 3-комнатная квартира от застройщика в жилом мультиквартале CITYZEN на 31-м этаже в корпусе 6 урбан-блока VOLNA. Общая площадь лота составляет 73.90 кв. м Квартира имеет просторную кухню-гостиную с комфортной обеденной и диванной зонами и 2
Продается 2-комнатная квартира от застройщика в жилом мультиквартале CITYZEN на 34-м этаже в корпусе 6 урбан-блока VOLNA. Общая площадь лота составляет 60.20 кв. м Квартира имеет просторную кухню-гостиную с комфортной обеденной и диванной зонами и 2
Продается 2-комнатная квартира от застройщика в жилом мультиквартале CITYZEN на 37-м этаже в корпусе 6 урбан-блока VOLNA. Общая площадь лота составляет 57.10 кв. м Квартира имеет просторную кухню-гостиную с комфортной обеденной и диванной зонами и 1
Продается 2-комнатная квартира от застройщика в жилом мультиквартале CITYZEN на 44-м этаже в корпусе 6 урбан-блока VOLNA. Общая площадь лота составляет 58.60 кв. м Квартира имеет просторную кухню-гостиную с комфортной обеденной и диванной зонами и 1

Продается 1-комнатная квартира от застройщика в жилом мультиквартале CITYZEN на 38-м этаже в корпусе 6 урбан-блока VOLNA. Общая площадь лота составляет 34.70 кв. м Квартира имеет просторную кухню-гостиную с комфортной обеденной и диванной зонами и 1
Продается 2-комнатная квартира от застройщика в жилом мультиквартале CITYZEN на 39-м этаже в корпусе 6 урбан-блока VOLNA. Общая площадь лота составляет 56.60 кв. м Квартира имеет просторную кухню-гостиную с комфортной обеденной и диванной зонами и 1
Продается 1-комнатная квартира от застройщика в жилом мультиквартале CITYZEN на 44-м этаже в корпусе 6 урбан-блока VOLNA. Общая площадь лота составляет 33.00 кв. м Квартира имеет просторную кухню-гостиную с комфортной обеденной и диванной зонами и 1
Продается 1-комнатная квартира от застройщика в жилом мультиквартале CITYZEN на 39-м этаже в корпусе 6 урбан-блока VOLNA. Общая площадь лота составляет 33.00 кв. м Квартира имеет просторную кухню-гостиную с комфортной обеденной и диванной зонами и 1

Проектные декларации на https://наш.дом.рф
Юридическая поддержка по правовым вопросам: help@realty.yandex.ru