Агенту — комиссия 70% без рутины, собственникам — технологичный сервис бесплатно
Купить квартиру маленькую у метро Корниловская в Москве и МО — 247 объявлений от агентств и собственников по продаже квартир по цене от 2 400 000 ₽ до 13 800 000 ₽ на Яндекс Недвижимости. В нашем каталоге предложения площадью от 12 м² до 33 м² в новостройках и вторичном жилье — фото, планировки и характеристики.
Остались вопросы?
На Яндекс Недвижимости в продаже у метро Корниловская в Москве и МО 247 квартир, из них 15 объявлений от собственников, 69 объявлений от агентств, 163 объявления от застройщиков
Чтобы купить квартиру маленькую у метро Корниловская в Москве и МО, воспользуйтесь тепловой картой для оценки инфраструктуры и транспортной доступности в выбранном районе у метро Корниловская в Москве и МО
Для легкого выбора подходящей квартиры в верхней части страницы есть самые частые комбинации фильтров, например «1-комнатные» или «Студии»
Помимо удобной сортировки по цене продажи вы можете отсортировать результаты по стоимости квадратного метра или площади
| Цена за квадратный метр | 75 000 — 475 962 ₽ |
| Площадь | 12 — 33 м² |
| Самые популярные запросы | «1-комнатные», «Студии» |
| Самый дорогой объект | 13,8 млн ₽ |
Сделка застрахована в АО "АльфаСтрахование". Предлагаем Вашему вниманию студию общей площадью 21кв.м. в ЖК "Новые Ватутина". Квартира с ремонтом от застройщика. окна выходят на зеленый двор. Совмещенный санузел. В пешей доступности расположены:
Умный дом. Тёплые полы, Натяжные потолки . Один собственник. Без обременений. Покупал в2018 году как новостройку.
Продаётся 1-к квартира 27.3 кв.м. на 18-м этаже 21 этажного дома, корпус 1 - Резиденция «Вологда». Без отделки. Легендарный квартал «Новая звезда» продолжается II очередью, которая спроектирована как мультифункциональный кластер. ЖК «Новая Звезда»

Апартамент 22,5 квадратных метров на втором этаже Аренда ставка высокая! ст. м. «Ольховая»: 15-минут на автобусе до станции. Инфраструктура Дом относится к жилому комплексу апартаментов Тройка с собственной инфраструктурой Транспортная доступность,
Прямая продажа от застройщика: Cтудия общей площадью 24.90 кв.м. на 4 этаже в жилом кластере Russian Design District, созданном профессиональными архитекторами в коллаборации со звездами российского дизайна, культуры и спорта. Квартира находится в
Уютная студия с свежим ремонтом в новом монолитном доме в Троицке. Идеальный старт или инвестиция! Ваша мечта о собственной студии в новом доме стала реальностью! Продается очень светлая и уютная студия 21 м с качественным чистовым ремонтом. Почему
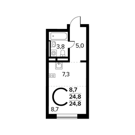
Продается Студия, без отделки в ЖК "Новые Ватутинки. Заречный". Общая площадь: 24.8 кв.м., жилая: 8.7 кв.м., площадь кухни: 7.3 кв.м. Этаж: 8. Район расположен всего в 14 километрах от МКАД по Калужскому шоссе, в центральной части Новой Москвы.
Апартамент 22,5 квадратных метров на втором этаже Аренда ставка высокая! ст. м. «Ольховая»: 15-минут на автобусе до станции. Инфраструктура Дом относится к жилому комплексу апартаментов Тройка с собственной инфраструктурой Транспортная доступность,
Прямая продажа от застройщика! Продаётся 1-к квартира 29.5 кв.м. в "ЖК "Новая Звезда"" на 4-м этаже 22 этажного дома.
Код объекта: 1689977. Продаётся уютная и светлая однокомнатная квартира в динамично развивающемся районе Троицка! Это идеальный выбор для тех, кто ищет комфортное жильё по доступной цене. Квартира расположена по адресу: улица Яворки, 1к5. Дом
Продаётся апартамент 21,3 м с ремонтом и мебелью в Троицке г. Троицк, ул. Городская, д. 20 (ЖК «Тройка», 2 этаж) Готовое решение для жизни или инвестиций: Современный ремонт + мебель и техника заезжайте и живите! 2 этаж удобный доступ, тишина и
Продается Студия, без отделки в ЖК "Новые Ватутинки. Заречный". Общая площадь: 24.8 кв.м., жилая: 8.7 кв.м., площадь кухни: 7.3 кв.м. Этаж: 10. Район расположен всего в 14 километрах от МКАД по Калужскому шоссе, в центральной части Новой Москвы.
Продаётся 1-к квартира 27.3 кв.м. на 18-м этаже 21 этажного дома, корпус 1 - Резиденция «Вологда». Без отделки. Легендарный квартал «Новая звезда» продолжается II очередью, которая спроектирована как мультифункциональный кластер. ЖК «Новая Звезда»

Код объекта: 1566548. Уникальное предложение для молодых специалистов и инвесторов! Продаётся уютная квартира-студия в Москве, район Троицк, по адресу: 3-я Нововатутинская улица, дом 4. Это идеальный вариант для тех, кто ценит комфорт, мобильность и
Продается Студия, без отделки в ЖК "Новые Ватутинки. Заречный". Общая площадь: 25.2 кв.м., жилая: 8.7 кв.м., площадь кухни: 7.3 кв.м. Этаж: 7. Район расположен всего в 14 километрах от МКАД по Калужскому шоссе, в центральной части Новой Москвы.
Скачайте подборку от экспертов Яндекс Недвижимости с выгодными предложениями от застройщиков

Продается студия в новой Москве район Троицк. Один взрослый собственник, полная стоимость в договоре, без залогов и обременений, никто не прописан, никто не проживает, свободная продажа. Арт. 124132268
Продаётся 1-к квартира 24.4 кв.м. на 4-м этаже 22 этажного дома, корпус 3 - Резиденция «Краснодар». Без отделки. Легендарный квартал «Новая звезда» продолжается II очередью, которая спроектирована как мультифункциональный кластер. ЖК «Новая Звезда»
Продается новая элегантная квартира с безупречным ремонтом. Собственник. Оперативный показ. Документы готовы к сделке.
Продается Студия, без отделки в ЖК "Новые Ватутинки. Заречный". Общая площадь: 25.2 кв.м., жилая: 8.7 кв.м., площадь кухни: 7.3 кв.м. Этаж: 4. Район расположен всего в 14 километрах от МКАД по Калужскому шоссе, в центральной части Новой Москвы.

Студия с Современным Ремонтом,
Продаётся 1-к квартира 27.3 кв.м. на 19-м этаже 21 этажного дома, корпус 1 - Резиденция «Вологда». Без отделки. Легендарный квартал «Новая звезда» продолжается II очередью, которая спроектирована как мультифункциональный кластер. ЖК «Новая Звезда»

Проектные декларации на https://наш.дом.рф
Юридическая поддержка по правовым вопросам: help@realty.yandex.ru