Агенту — комиссия 70% без рутины, собственникам — технологичный сервис бесплатно
Купить двухкомнатную квартиру на вторичном рынке в новостройке в районе Красносельский в Москве и МО — 1 объявление от агентств и собственников по продаже квартир по цене от 192 500 000 ₽ до 192 500 000 ₽ на Яндекс Недвижимости. В нашем каталоге предложения площадью от 77 м² до 77 м² в новостройках и вторичном жилье — фото, планировки и характеристики.
Уютная квартира с одной спальней площадью 77 м в клубном доме делюкс-класса «Тургенев». Выполнен дизайнерский ремонт от голландского бюро Wolterinck, на полу выложена инженерная доска AustriaWood, кухня с островом и бытовой техникой Gaggenau, санузлы
В жилом кластере Родина Парк рядом с природным заказником Долина реки Сетунь продаётся 3-комнатная квартира. Продуманная европланировка, которую легко зонировать под ваши запросы. Потолки от 3,1 м. «Родина Парк» премиальный семейный кластер с
Продается просторная трехкомнатная квартира в Москве на Мичуринском проспекте, 56. Общая площадь квартиры составляет 78.2 кв. м, Евро трешка. Кухня-гостиная занимает 26 кв. м. Расположенная на 42-м этаже 52-этажного монолитного дома, квартира
Представляем вашему вниманию прекрасную возможность стать обладателем 3-комнатной уютной и светлой квартиры №270, площадью 77.83 м, расположенной на 23 этаже в историческом районе Москвы. Квартира продаётся от застройщика ГК «КОРТРОС» одного из
Недвижимость стабильна , а в цене только растёт !!! Сталинский капитальный теплый дом. Великолепный двор. Тимирязевский лес , школа, поликлиника, больница , институт стоматологии, много магазинов, почта , метро МЦД Гражданская. Идеальная для
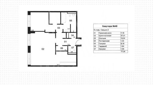
Цены указаны с условием 100% оплаты и стандартной ипотеки. Продается 2-к. квартира номер 676 общей площадью 65 кв.м. на 24-м этаже 40 этажного дома, корпус 2.3. С отделкой White Box. Moments ЖК бизнес-класса, расположен на расстоянии вытянутой руки
Продается 3-комнатная квартира, расположенная по адресу: Московская область, Щелковский р-н., г. Щелково, ул. Талсинская, дом 6. Общая площадь 57,3 кв.м, жилая 38 кв.м, кухня 8,7 кв.м., без балкона. Один собственник. В собственности с 2020 года.
Жилой комплекс бизнес-класса VEER от компании MR Group это футуристичный мультиквартал, расположенный в престижной локации на западе Москвы. Благодаря переменной высоте башен двух 22-этажных, 46-этажной и двух 59-этажных возникает динамичность в
Код объекта: 1996611. Прекрасная трехкомнатная квартира в экологически чистом районе города! Продам просторную квартиру с ИЗОЛИРОВАННЫМИ комнатами без газовой колонки! Квартира теплая, светлая, угловая, что позволяет зонировать большую комнату. Из
Указанная акционная стоимость доступна при 100% оплате или ипотеке без субсидирования. Цена действует до 18.01.2026 23:59:00. Стоимость без акции 34371000. Старт продаж! Продаётся 3-комнатная квартира от застройщика ГК «КОРТРОС» в жилом комплексе
Код объекта: 1849984. Уютная и светлая двухкомнатная квартира в Москве, Отрадном проезде, идеально подойдёт для комфортного проживания семьи. Квартира расположена на 8-м этаже 12-этажного панельного дома, построенного в 2007 году. Абсолютная гарантия
Продается 4к квартира 100,8 кв м в центральной части поселка городского типа Шатурторф. Квартира теплая, просторная, светлая с высокими потолками и раздельным санузлом. Все комнаты изолированные, просторный коридор. Рядом поликлиника, школа, детский
Скидка 15% на ограниченное количество квартир! Продается видовая квартира (площадь - 141.40 кв. м., комнат - 4, этаж 6) в клубном поселке премиум-класса Vnukovo Country Club. Комплекс расположен на Западе Москвы в экологически-чистом районе в
Продается светлая, теплая 2к мебелированная квартира с балконом на 3-ом этаже 5-и этажного кирпичного дома в центре г.Рошаль Московской области. Состояние жилое,отопление центральное ,окна ПВХ. Совместный с/у. Остаётся вся мебель, водонагреватель,
В жилом кластере Родина Парк рядом с природным заказником Долина реки Сетунь продаётся 3-комнатная квартира. Продуманная европланировка, которую легко зонировать под ваши запросы. Потолки от 3,1 м. «Родина Парк» премиальный семейный кластер с
В премиальном жилом квартале PRIDE продается 3-комнатная квартира в 1 корпусе, на 2 этаже, в секции 7. Её общая площадь составляет 90.2 м. Пространство включает 2 уютные спальни 13,5 м, 17,5 м, просторную кухню-гостиную 22,6 м и 2 ванные комнаты 7 м
Лот: 25140. На продажу предлагается пятикомнатная квартира площадью 160 кв.м в клубном доме с собственной инфраструктурой в самом центре Москвы. Функциональная планировка представляет собой просторную гостиную, кухню, три спальни, рабочий кабинет,
Представляем просторную 3-комнатную квартиру на 4 этаже Резиденций PHANTOM. Общая площадь лота составляет 185,6 кв.м. и включает мастер-спальню с собственной ванной и гардеробом, две спальни с собственной ванной, большую кухню-гостиную, прачечную и
Продается уютная двухкомнатная квартира в городе Истра, Московская область. Общая площадь квартиры 52,4 кв. м, расположена на 6-ом этаже панельного дома 2006 года постройки. Дом оборудован пассажирским лифтом. В квартире выполнен косметический
Четырёхкомнатная wellness-резиденция площадью 171.7 кв. м. на 3 этаже с видом на парк и центр в доме премиум-класса Springs. В квартире выполнена чистовая дизайнерская отделка. Резиденция наполнена светом и воздухом, благодаря панорамному остеклению
Добрый день! Продаём ПРОСТОРНУЮ квартиру в ЖК «Бунгало CLUB-KUROVO»! ПРО ДОКУМЕНТЫ: Один взрослый собственник. ПРЯМАЯ продажа, готовы сразу выходить на сделку. Покажем все документы, укажем ПОЛНУЮ стоимость в договоре. Квартира БЕЗ ПЕРЕПЛАНИРОВОК и
В продаже 1-к квартира площадью 43.4 м2. Функциональная планировка, кухня-гостиная, просторные санузел и гардеробная. Квартира расположена на 21-м этаже 24-этажного дома. Стоимость указана с учетом скидки 10%, экономия составит 2 715 538 рублей!
Продается просторная 3-комнатная квартира с дизайнерским ремонтом в доме бизнес-класса! -Большая кухня-гостиная: 38.7м2 -2 гардеробные -2 сан. узла (душ, ванная) -Постирочная -Потолки 3.1 метра, окна с панорамным видом на Москву О доме: -Бизнес-класс
В премиальном жилом квартале PRIDE продается 3-комнатная квартира в 1 корпусе, на 2 этаже, в секции 4. Её общая площадь составляет 72.5 м. Пространство включает 2 уютные спальни 13,2 м, 14,5 м, просторную кухню-гостиную 22,2 м и 2 ванные комнаты 8,1
Предлагается Вашему вниманию 2-ух комнатная квартира, общей площадью в 47 квадратов, на 2-м этаже 2-х этажного блочного дома в поселке городского типа Радовицкий, Московской области, Шатурского района. Квартира с изолированными комнатами, раздельным
Апартаменты для бизнеса с отделкой WhiteBox! Продаются 1-комнатные апартаменты 50.91 кв.м. на 19-м этаже 20-этажного комплекса. Преимущества лота: - Гардеробная - Отделка White box - Потолки 3,3 м - Доступ к сервисам комплекса класса Премиум DIUS

Проектные декларации на https://наш.дом.рф
Юридическая поддержка по правовым вопросам: help@realty.yandex.ru