Агенту — комиссия 70% без рутины, собственникам — технологичный сервис бесплатно
Купить 4-комнатную квартиру в кирпично-монолитном доме в районе Южное Тушино в Москве и МО — 64 объявления от агентств и собственников по продаже квартир по цене от 33 106 010 ₽ до 104 000 000 ₽ на Яндекс Недвижимости. В нашем каталоге предложения площадью от 95,3 м² до 194 м² в новостройках и вторичном жилье — фото, планировки и характеристики.
Остались вопросы?
На Яндекс Недвижимости в продаже в районе Южное Тушино в Москве и МО 64 4-комнатных квартиры, из них 1 объявление от агентств, 63 объявления от застройщиков
Чтобы купить 4-комнатную квартиру в кирпично-монолитном доме в районе Южное Тушино в Москве и МО, воспользуйтесь тепловой картой для оценки инфраструктуры и транспортной доступности в выбранном районе в районе Южное Тушино в Москве и МО
Для легкого выбора подходящей квартиры в верхней части страницы есть самые частые комбинации фильтров, например «» или «»
Помимо удобной сортировки по цене продажи вы можете отсортировать результаты по стоимости квадратного метра или площади
| Цена за квадратный метр | 316 501 — 721 416 ₽ |
| Площадь | 95 — 194 м² |
| Самый дорогой объект | 104 млн ₽ |
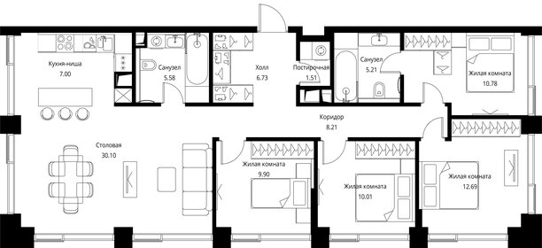
Квартира с тремя спальнями общей площадью 194 м в комплексе премиум-класса «Покровское-Глебово». Квартира без отделки расположена на третьем этаже в отдельном пяти-этажном особняке. Десять окон ориентированы на две стороны света на юго-запад и
Отличие: район: район Покровское-Стрешнево.
Новогодний марафон скидок! Выгода до 20% в декабре. ЮТУ-камерные небоскребы бизнес-класса с исключительной архитектурой, видовыми квартирами и подходом к большой воде-благоустроенной набережной канала имени Москвы. Проект ЮТУ создает идеальный баланс
Новогодний марафон скидок! Выгода до 20% в декабре. ЮТУ-камерные небоскребы бизнес-класса с исключительной архитектурой, видовыми квартирами и подходом к большой воде-благоустроенной набережной канала имени Москвы. Проект ЮТУ создает идеальный баланс

Новогодний марафон скидок! Выгода до 20% в декабре. ЮТУ-камерные небоскребы бизнес-класса с исключительной архитектурой, видовыми квартирами и подходом к большой воде-благоустроенной набережной канала имени Москвы. Проект ЮТУ создает идеальный баланс
Продается 4-комнатная квартира от застройщика в жилом комплексе Сити Бэй, квартале Норс, площадью 108.52 м на 17 этаже. Срок сдачи 1 квартал 2027 года. Концепция жилого комплекса Сити Бэй - настоящий город в городе с отлично развитой инфраструктурой
Отличие: район: район Покровское-Стрешнево.
Продается 4-комнатная квартира от застройщика в жилом комплексе Сити Бэй, квартале Пасифик, площадью 117.80 м на 57 этаже. Срок сдачи 2 квартал 2028 года. Концепция жилого комплекса Сити Бэй - настоящий город в городе с отлично развитой
Отличие: район: район Покровское-Стрешнево.
Продается 4-комнатная квартира от застройщика в жилом комплексе Сити Бэй, квартале Норс, площадью 140.22 м на 10 этаже. Срок сдачи 1 квартал 2027 года. Концепция жилого комплекса Сити Бэй - настоящий город в городе с отлично развитой инфраструктурой
Отличие: район: район Покровское-Стрешнево.
Продается 4-комнатная квартира от застройщика в жилом комплексе Сити Бэй, квартале Пасифик, площадью 104.60 м на 6 этаже. Срок сдачи 2 квартал 2028 года. Концепция жилого комплекса Сити Бэй - настоящий город в городе с отлично развитой
Отличие: район: район Покровское-Стрешнево.
Продается 4-комнатная квартира от застройщика в жилом комплексе Сити Бэй, квартале Норс, площадью 185.41 м на 47 этаже. Срок сдачи 1 квартал 2027 года. Концепция жилого комплекса Сити Бэй - настоящий город в городе с отлично развитой инфраструктурой
Отличие: район: район Покровское-Стрешнево.
Продается 4-комнатная квартира от застройщика в жилом комплексе Сити Бэй, площадью 104.80 м на 52 этаже. Срок сдачи 3 квартал 2025 года. Концепция жилого комплекса Сити Бэй - настоящий город в городе с отлично развитой инфраструктурой и собственной
Отличие: район: район Покровское-Стрешнево.
Продается 4-комнатная квартира от застройщика в жилом комплексе Сити Бэй, квартале Норс, площадью 126.84 м на 22 этаже. Срок сдачи 1 квартал 2027 года. Концепция жилого комплекса Сити Бэй - настоящий город в городе с отлично развитой инфраструктурой
Отличие: район: район Покровское-Стрешнево.
Продается 4-комнатная квартира от застройщика в жилом комплексе Сити Бэй, квартале Норс, площадью 95.27 м на 46 этаже. Срок сдачи 1 квартал 2027 года. Концепция жилого комплекса Сити Бэй - настоящий город в городе с отлично развитой инфраструктурой и
Отличие: район: район Покровское-Стрешнево.
Продается 4-комнатная квартира от застройщика в жилом комплексе Сити Бэй, квартале Норс, площадью 133.10 м на 27 этаже. Срок сдачи 1 квартал 2027 года. Концепция жилого комплекса Сити Бэй - настоящий город в городе с отлично развитой инфраструктурой
Отличие: район: район Покровское-Стрешнево.

Продается 4-комнатная квартира от застройщика в жилом комплексе Сити Бэй, квартале Пасифик, площадью 116.30 м на 53 этаже. Срок сдачи 2 квартал 2028 года. Концепция жилого комплекса Сити Бэй - настоящий город в городе с отлично развитой
Отличие: район: район Покровское-Стрешнево.
Продается 4-комнатная квартира от застройщика в жилом комплексе Сити Бэй, квартале Клиф, площадью 115.56 м на 2 этаже. Срок сдачи 4 квартал 2026 года. Клиф от Сити Бэй - это пять Клубных домов на первой линии озелененной набережной Реки Москвы. Со
Отличие: район: район Покровское-Стрешнево.
Скачайте подборку от экспертов Яндекс Недвижимости с выгодными предложениями от застройщиков

Продается 4-комнатная квартира от застройщика в жилом комплексе Сити Бэй, квартале Пасифик, площадью 117.80 м на 57 этаже. Срок сдачи 2 квартал 2028 года. Концепция жилого комплекса Сити Бэй - настоящий город в городе с отлично развитой
Отличие: район: район Покровское-Стрешнево.
Продается 4-комнатная квартира от застройщика в жилом комплексе Сити Бэй, квартале Пасифик, площадью 104.60 м на 6 этаже. Срок сдачи 2 квартал 2028 года. Концепция жилого комплекса Сити Бэй - настоящий город в городе с отлично развитой
Отличие: район: район Покровское-Стрешнево.
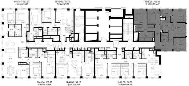
Продается 4-комнатная квартира от застройщика в жилом комплексе Сити Бэй, квартале Норс, площадью 105.42 м на 46 этаже. Срок сдачи 1 квартал 2027 года. Концепция жилого комплекса Сити Бэй - настоящий город в городе с отлично развитой инфраструктурой
Отличие: район: район Покровское-Стрешнево.
Продается 4-комнатная квартира от застройщика в жилом комплексе Сити Бэй, квартале Пасифик, площадью 107.20 м на 53 этаже. Срок сдачи 2 квартал 2028 года. Концепция жилого комплекса Сити Бэй - настоящий город в городе с отлично развитой
Отличие: район: район Покровское-Стрешнево.

Продается 4-комнатная квартира от застройщика в жилом комплексе Сити Бэй, квартале Норс, площадью 107.72 м на 22 этаже. Срок сдачи 1 квартал 2027 года. Концепция жилого комплекса Сити Бэй - настоящий город в городе с отлично развитой инфраструктурой
Отличие: район: район Покровское-Стрешнево.

Проектные декларации на https://наш.дом.рф
Юридическая поддержка по правовым вопросам: help@realty.yandex.ru