Купить помещение свободного назначения на улице 1-я Новокузьминская в Москве — 25 объявлений от агентств и собственников по продаже помещений свободного назначения на улице 1-я Новокузьминская в Москве. по цене от 18 500 000 ₽.
Остались вопросы?
На Яндекс Недвижимости в продаже на улице 1-я Новокузьминская в Москве 25 помещений свободного назначения, из них 25 объявлений от агентств
Чтобы купить помещение свободного назначения на улице 1-я Новокузьминская в Москве, воспользуйтесь тепловой картой для оценки инфраструктуры и транспортной доступности в выбранном районе на улице 1-я Новокузьминская в Москве
Для легкого выбора подходящего помещения свободного назначения в верхней части страницы есть самые частые комбинации фильтров, например «» или «»
Помимо удобной сортировки по цене продажи вы можете отсортировать результаты по стоимости квадратного метра или площади
| Цена за квадратный метр | 131 884 — 2,33 млн ₽ |
| Площадь | 17 — 859 м² |
| Самый дорогой объект | 114 млн ₽ |
Помещение занимает весь 5 этаж нежилого здания. В собственности физ. лица. Помещение с арендатором. МАП (месячный арендный поток) - 800 000 рублей. Два входа. Два лифта. 42 окна. Высота потолка 3 метра. Все коммуникации - свет, вода, отопление,
Предложение на продажу № 44037. Парковка: Обустроенная городская парковочная зона. Предлагается на продажу помещение на улице 1-я Новокузьминская, ЮВАО, г. Москва. Объект расположен на первом этаже, в непосредственной близости от станции метро
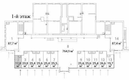
Продажа ПСН 17 кв.м на 1 этаже в жилом доме «1-я Новокузьминская улица, 21к2» по адресу Москва, 1-я Новокузьминская улица, 21к2. Помещение с отделкой Планировка open-space Вход отдельный с улицы Витринное остекление да Цена за кв.м: 2 334 706 руб.
Продажа ПСН 48.3 кв.м на 1 этаже в жилом доме «1-я Новокузьминская улица, 21к2» по адресу Москва, 1-я Новокузьминская улица, 21к2. Помещение с отделкой Планировка open-space Вход отдельный с улицы Витринное остекление да Цена за кв.м: 1 242 236 руб.
Продажа ПСН 24.1 кв.м на 1 этаже в жилом доме «1-я Новокузьминская улица, 21к2» по адресу Москва, 1-я Новокузьминская улица, 21к2. Помещение с отделкой Планировка open-space Вход отдельный с улицы Витринное остекление да Цена за кв.м: 1 244 813 руб.
Продажа ПСН 24.2 кв.м на 1 этаже в жилом доме «1-я Новокузьминская улица, 21к2» по адресу Москва, 1-я Новокузьминская улица, 21к2. Помещение с отделкой Планировка open-space Вход отдельный с улицы Витринное остекление да Цена за кв.м: 1 239 669 руб.
Продажа ПСН 48.3 кв.м на 1 этаже в жилом доме «1-я Новокузьминская улица, 21к2» по адресу Москва, 1-я Новокузьминская улица, 21к2. Помещение с отделкой Планировка open-space Вход отдельный с улицы Витринное остекление да Цена за кв.м: 1 242 236 руб.
Продажа ПСН 24.2 кв.м на 1 этаже в жилом доме «1-я Новокузьминская улица, 21к2» по адресу Москва, 1-я Новокузьминская улица, 21к2. Помещение с отделкой Планировка open-space Вход отдельный с улицы Витринное остекление да Цена за кв.м: 1 561 983 руб.
ID: o91891 Уважаемый Покупатель, предлагаем Вам приобрести помещение свободного назначения 68.0 м на 1 этаже в собственность на выгодных условиях. Приточно-вытяжная вентиляция. Интернет, телефония. Отдельный вход. ЮВАО Москвы. В 3 минутах от м.
Продаётся помещение свободного назначения общей площадью 48 кв.м. на 1 этаже в жилом доме, расположенном по адресу Москва, ул 1-я Новокузьминская, 21 к 2, в 1 минутах пешком от метро Рязанский проспект. Планировка смешанная. Состояние помещения:
Продаётся помещение свободного назначения общей площадью 68 кв.м. на 1 этаже в жилом доме, расположенном по адресу Москва, ул 1-я Новокузьминская, 21 к 2, в 1 минутах пешком от метро Рязанский проспект. Планировка смешанная. Состояние помещения:
Продаётся помещение свободного назначения общей площадью 17 кв.м. на 1 этаже в жилом доме, расположенном по адресу Москва, ул 1-я Новокузьминская, 21 к 2, в 1 минутах пешком от метро Рязанский проспект. Планировка смешанная. Состояние помещения:
Жилой дом, рядом с метро. Продаётся комната с санузлом на первом этаже площадью 24 кв.м с отдельным входом с улицы. Стандартная отделка.УСН. Лот № 221746. С риелторами не сотрудничаем!
Продажа ПСН 68 м2 м. Рязанский проспект в ЮАО ПРЕМИУМ-ПРЕДЛОЖЕНИЕ У МЕТРО РЯЗАНСКИЙ ПРОСПЕКТ! 68 м за 54 000 000 794 118 /м УНИКАЛЬНАЯ ТОРГОВАЯ ПЛОЩАДКА ПРЕМИУМ-КЛАССА 1 минута от метро пешеходный трафик 12 000+ человек/день Лучшее ценовое
В покупку предлагается помещение, в непосредственной близости от метро Рязанский Проспект, расположенное на 1-ом этаже. Окружение: Большой жилой массив. В окружении расположены: жилые комплексы "Микрорайон Квартал 126", "Дом на Новокузьминской", а
В покупку предлагается помещение, в непосредственной близости от метро Рязанский Проспект, расположенное на 1-ом и подвальном этажах. Окружение: Большой жилой массив. В окружении расположены: жилые комплексы "Микрорайон Квартал 126", "Дом на
Продажа ПСН 24 м2 м. Рязанский проспект в ЮВАО ТОРГОВОЕ ПОМЕЩЕНИЕ У МЕТРО РЯЗАНСКИЙ ПРОСПЕКТ! 24 м за 30 000 000 1-я линия ИДЕАЛЬНАЯ ТОРГОВАЯ ПЛОЩАДКА ДЛЯ: Мини-маркета Кофейни Аптеки Салона связи Бьюти-студии КЛЮЧЕВЫЕ ПРЕИМУЩЕСТВА:
Предложение на продажу № 41981. Парковка: Обустроенная городская парковочная зона. Продажа Street Retail помещения торгового назначения площадью на 1 этаже здания (встроенно-пристроенный к жилому дому). Планировка открытая, перекрытия ж/б, высота
Предложение на продажу № 59528. Парковка: Обустроенная городская парковочная зона. Предлагаетсяв продажу готовый арендный бизнес на 1-ом этаже встроенно-пристроенного здания. Площадь предлагаемого помещения 48,30 кв. м. Помещение на ул. 1-я
Предложение на продажу № 61134. Парковка: Обустроенная городская парковочная зона. Предлагается на продажу помещение на улице 1-я Новокузьминская, ЮВАО, г. Москва. Объект расположен на первом этаже, в непосредственной близости от станции метро
