Купить квартиру в высотках в ЖК «Теорема» в Липецке — 36 объявлений от агентств и собственников по продаже квартир по цене от 3 847 500 ₽ до 9 345 000 ₽ на Яндекс Недвижимости. В нашем каталоге предложения площадью от 39 м² до 88 м² в новостройках и вторичном жилье — фото, планировки и характеристики.
21-этажные дома спроектированы по монолитно-кирпичной технологии, одной из надежных и долговечных методов застройки. Находясь в собственной квартире, можно наслаждаться прекрасными видами из окон на городские пейзажи и парк «Европейский», дышать свежим воздухом и получать удовольствие от каждого дня.
Остались вопросы?
На Яндекс Недвижимости в продаже в ЖК «Теорема» в Липецке 36 квартир, из них 2 объявления от агентств, 34 объявления от застройщиков
Чтобы купить квартиру в высотках в ЖК «Теорема» в Липецке, воспользуйтесь тепловой картой для оценки инфраструктуры и транспортной доступности в выбранном районе в ЖК «Теорема» в Липецке
Для легкого выбора подходящей квартиры в верхней части страницы есть самые частые комбинации фильтров, например «» или «»
Помимо удобной сортировки по цене продажи вы можете отсортировать результаты по стоимости квадратного метра или площади
| Цена за квадратный метр | 85 500 — 121 700 ₽ |
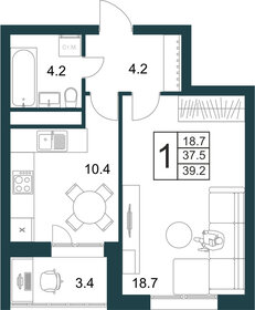
| Площадь | 39 — 88 м² |
| Самый дорогой объект | 9,35 млн ₽ |
Просторная, светлая трехкомнатная квартира станет лучшим приобретением для жизни или вложения средств. Продажа без посредников! Продуманная планировка позволит воплотить в реальность мечты об идеальной квартире! Просторная и светлая здесь есть все
Отличие: этажей в доме: 18.
