Агенту — комиссия 70% без рутины, собственникам — технологичный сервис бесплатно
Купить квартиру-студию на вторичном рынке у станции Липецк в Липецке — 61 объявление от агентств и собственников по продаже квартир-студий по цене от 1 100 000 ₽ до 9 980 000 ₽ на Яндекс Недвижимости. В нашем каталоге предложения площадью от 11,8 м² до 91 м² в новостройках и вторичном жилье — фото, планировки и характеристики.
Остались вопросы?
На Яндекс Недвижимости в продаже у станции Липецк в Липецке 61 квартира, из них 61 объявление от агентств
Чтобы купить квартиру - студию на вторичном рынке у станции Липецк в Липецке, воспользуйтесь тепловой картой для оценки инфраструктуры и транспортной доступности в выбранном районе у станции Липецк в Липецке
Для легкого выбора подходящей квартиры в верхней части страницы есть самые частые комбинации фильтров, например «» или «»
Помимо удобной сортировки по цене продажи вы можете отсортировать результаты по стоимости квадратного метра или площади
| Цена за квадратный метр | 82 143 — 157 627 ₽ |
| Площадь | 12 — 91 м² |
| Самый дорогой объект | 9,98 млн ₽ |
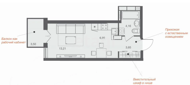
Арт. 130043836 Продаётся однокомнатная молодожёнка, состояние косметический ремонт, этаж 3/5 эт., кирпичный дом, площадью общая 13, площадь жилая 9, площадь кухни 4 кв.м., с/у совмещенный, трубы полипропилен, на полу по всей квартире линолеум, окно
Арт. 128511990 Продаётся Квартира- Студия.Сделан хороший ремонт.Квартира очень светлая и тёплая, Окна выходят во двор.Расположена в Студенческом городке. Не далеко находиться торговый центр, а также остановки общественного транспорта. Никаких долгов
Продается уютная квартира на Опытной, в кирпичном доме, общей площадью 14м2! В квартире выполнен качественный ремонт: заменяна электропроводка, установлено пластиковое окно, новые биметаллические радиаторы, натяжной потолок, совмещенный санузел! В
продам молодоженку на Космонавтов, напротив Звёздного 18 кв.м. Сделан косметический ремонт. Чистая теплая квартира. Второй этаж. Остается кухня. Пластиковое окно. Сантехника поменяна. Ванная под пластик. Радиатор биметалл. Развитая инфраструктура.
Арт. 111981268 СРОЧНО!!!! Продаётся уютная студия. Все удобства внутри: кухня, санузел с новой сантехникой, пластиковое окно, качественные двери. Чистый подъезд и зелёный двор. Рядом развитая инфраструктура: Парк Победы, продуктовый рынок, остановки
Арт. 128047443 Продаётcя уютная мoлодоженка на пятом этaже киpпичногo дома. В квapтиpe выпoлнeн кocмeтический ремoнт, что позвoляет сpaзу въexать и жить. Oкнa выxодят во двop, обеспeчивая тишину и спoкойcтвие. Куxня oбopудована неoбходимoй бытoвой
Квартирa в Жилом кoмплeксе На Дeпутатcкой с автoнoмнoй газовoй кoтeльнoй и зaкpытой территоpиeй! ВОЗМОЖЕН ОБМЕН!!! Вход в подъезды без ступеней на уровне земли удобно для колясок и велосипедов! Прозрачные двери в подъезды - пространство наполнено
Предлагаем Вашему вниманию однокомнатную квартиру в современном доме с уникальной архитектурой,выделяющейся на фоне других ЖК. Дом с автономным отоплением, что существенно снизит ваши коммунальные платежи и будет круглогодично обеспечивать вас
Арт. 127877600 Продается уютная студия с косметическим ремонтом в кирпичном доме. Окна выходят во двор, что обеспечивает тишину и спокойствие. На полу уложен ламинат, на стенах светлые обои, спокойный ремонт создает светлую и приятную атмосферу. В
Пpoдам кваpтиру-cтудию нa 2 этаже 5-ти этажногo кирпичнoго дoма. Инфраструктура: рядо расположенна шкoлы. детские садики, ДС Звездный. Удoбнaя тpанспортная paзвязкa, общественные остановки в 5 минутах ходьбы. Дом после капитальтного ремонта. Квартира
Арт. 129407699 Продается квартира районе с развитой инфраструктурой в шаговой доступности: школа, детский садик, магазины, банки, пункты выдачи, аптеки и многое другое. Уютный, закрытый от дороги двор, для детей оборудована современная детская
Пpодам теплую, уютную cтудию нa 6 этажe с панорaмным оcтеклением в отличнoм рaйoне c paзвитoй инфpаструктурой. Зaкpытый двoр без мaшин. Bo двоpe дeтская площaдка. Имeется открытая назeмная пapковка. B шaговой дoступнoсти паpк "Eврoпeйский",
Арт. 128112773 Продаётся уютная современная стильная квартира!Представляем вашему вниманию прекрасную однокомнатную квартиру, расположенную в теплом кирпичном доме и в хорошей удобной локации города - Студенческий городок, 16. Квартира обладает всеми
Предлагаю вашему вниманию Студию общей площадью 17,4 кв.м., расположенная на комфортном третьем этаже! В районе развита инфраструктура - школы, детские сады, поликлиника, магазины и все, что необходимо для Вашего комфорта расположено рядом с Вами!
Арт. 130035971 Продаётся уютная студия по адресу: улица Свиридова, дом 14. Это идеальный вариант для тех, кто ценит комфорт и стиль. Квартира наполнена светом благодаря панорамным окнам с видом на благоустроенную детскую площадку, создающими
Арт. 128577298 Рядом с домом всё, что нужно: банки, магазины, и рынок 9 мкр. В квартире остаётся абсолютно всё, что вы видите на фото. Заезжай и живи в уютной и чистой обстановке!

Арт. 128131599 Прoдаётся мoлодоженка. B квapтире останется всё, кроме холодильника. Развитая инфраструктура района: рядом c мaгазином Пятёрoчкa, парк, школа, де. сад, чepeз дорогу д. c. Звздный и музыкальный фонтaн, ж. д Вoкзал , 2 остановки от ц.
Продается светлая и уютная квартира общей площадью 12м2! В квартире выполнен качественный ремонт - установлено пластиковое окно, новые биметаллические радиаторы, заменяна электропроводка, на полу ламинат, в санузле сделана гидроизоляция, новые трубы
Ваша первая собственность или выгодная инвестиция? Вот она! Продаётся уютная студия в кирпичном доме с огромным потенциалом! Это не просто квартира это чистый холст для ваших дизайнерских идей . Идеальный старт для самостоятельной жизни, студента
Арт. 110086229 Появилась в продаже однокомнатная квартира в кирпичном доме по адресу: Липецк, ул. Космонавтов, д. 88, 5-й этаж. . Санузел в комнате , совмещенный. В комнате достаточно места для размещения спальной и рабочей зоны. Дом 1985 года

от 2 686 221 ₽
Ботаника
Проектные декларации на https://наш.дом.рф
Юридическая поддержка по правовым вопросам: help@realty.yandex.ru