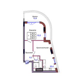
Купить однокомнатную квартиру в гостиничном комплексе «Балтийская Резорт» в Калининградской области — 35 объявлений от агентств и собственников по продаже квартир по цене от 12 499 200 ₽ до 23 773 944 ₽ на Яндекс Недвижимости. В нашем каталоге предложения площадью от 49,6 м² до 90,4 м² в новостройках и вторичном жилье — фото, планировки и характеристики.
Гостиничный комплекс «Балтийская Резорт» — первое место в Светлогорске, где жизнь продолжается до полуночи. Здесь можно: поужинать, встретиться, развлечься, провести время в атмосфере настоящего курорта. Гостиничный комплекс находится в курортной зоне федерального значения — статус, который получают только особенные места России с целебным климатом и природными ресурсами, признанными на государственном уровне.
Остались вопросы?
На Яндекс Недвижимости в продаже в гостиничном комплексе «Балтийская Резорт» в Калининградской области 35 однокомнатных квартир 35 объявлений от застройщиков
Чтобы купить 1-комнатную квартиру в гостиничном комплексе «Балтийская Резорт» в Калининградской области, воспользуйтесь тепловой картой для оценки инфраструктуры и транспортной доступности в выбранном районе в гостиничном комплексе «Балтийская Резорт» в Калининградской области
Для легкого выбора подходящей квартиры в верхней части страницы есть самые частые комбинации фильтров, например «» или «»
Помимо удобной сортировки по цене продажи вы можете отсортировать результаты по стоимости квадратного метра или площади
| Цена за квадратный метр | 250 000 — 272 950 ₽ |
| Площадь | 50 — 90 м² |
| Самый дорогой объект | 23,77 млн ₽ |
Балтийская Резорт новый гостиничный комплекс премиального формата в Светлогорске, созданный для тех, кто выбирает жизнь у моря без компромиссов или инвестиции с быстрой окупаемостью. А может быть все сразу. Первый в Светлогорске прямой и комфортный
Балтийская Резорт новый гостиничный комплекс премиального формата в Светлогорске, созданный для тех, кто выбирает жизнь у моря без компромиссов или инвестиции с быстрой окупаемостью. А может быть все сразу. Первый в Светлогорске прямой и комфортный
Балтийская Резорт новый гостиничный комплекс премиального формата в Светлогорске, созданный для тех, кто выбирает жизнь у моря без компромиссов или инвестиции с быстрой окупаемостью. А может быть все сразу. Первый в Светлогорске прямой и комфортный
Балтийская Резорт новый гостиничный комплекс премиального формата в Светлогорске, созданный для тех, кто выбирает жизнь у моря без компромиссов или инвестиции с быстрой окупаемостью. А может быть все сразу. Первый в Светлогорске прямой и комфортный
Балтийская Резорт новый гостиничный комплекс премиального формата в Светлогорске, созданный для тех, кто выбирает жизнь у моря без компромиссов или инвестиции с быстрой окупаемостью. А может быть все сразу. Первый в Светлогорске прямой и комфортный
Балтийская Резорт новый гостиничный комплекс премиального формата в Светлогорске, созданный для тех, кто выбирает жизнь у моря без компромиссов или инвестиции с быстрой окупаемостью. А может быть все сразу. Первый в Светлогорске прямой и комфортный
Балтийская Резорт новый гостиничный комплекс премиального формата в Светлогорске, созданный для тех, кто выбирает жизнь у моря без компромиссов или инвестиции с быстрой окупаемостью. А может быть все сразу. Первый в Светлогорске прямой и комфортный
Балтийская Резорт новый гостиничный комплекс премиального формата в Светлогорске, созданный для тех, кто выбирает жизнь у моря без компромиссов или инвестиции с быстрой окупаемостью. А может быть все сразу. Первый в Светлогорске прямой и комфортный
Балтийская Резорт новый гостиничный комплекс премиального формата в Светлогорске, созданный для тех, кто выбирает жизнь у моря без компромиссов или инвестиции с быстрой окупаемостью. А может быть все сразу. Первый в Светлогорске прямой и комфортный
Балтийская Резорт новый гостиничный комплекс премиального формата в Светлогорске, созданный для тех, кто выбирает жизнь у моря без компромиссов или инвестиции с быстрой окупаемостью. А может быть все сразу. Первый в Светлогорске прямой и комфортный
Балтийская Резорт новый гостиничный комплекс премиального формата в Светлогорске, созданный для тех, кто выбирает жизнь у моря без компромиссов или инвестиции с быстрой окупаемостью. А может быть все сразу. Первый в Светлогорске прямой и комфортный
Балтийская Резорт новый гостиничный комплекс премиального формата в Светлогорске, созданный для тех, кто выбирает жизнь у моря без компромиссов или инвестиции с быстрой окупаемостью. А может быть все сразу. Первый в Светлогорске прямой и комфортный
Балтийская Резорт новый гостиничный комплекс премиального формата в Светлогорске, созданный для тех, кто выбирает жизнь у моря без компромиссов или инвестиции с быстрой окупаемостью. А может быть все сразу. Первый в Светлогорске прямой и комфортный
Балтийская Резорт новый гостиничный комплекс премиального формата в Светлогорске, созданный для тех, кто выбирает жизнь у моря без компромиссов или инвестиции с быстрой окупаемостью. А может быть все сразу. Первый в Светлогорске прямой и комфортный
Балтийская Резорт новый гостиничный комплекс премиального формата в Светлогорске, созданный для тех, кто выбирает жизнь у моря без компромиссов или инвестиции с быстрой окупаемостью. А может быть все сразу. Первый в Светлогорске прямой и комфортный
Балтийская Резорт новый гостиничный комплекс премиального формата в Светлогорске, созданный для тех, кто выбирает жизнь у моря без компромиссов или инвестиции с быстрой окупаемостью. А может быть все сразу. Первый в Светлогорске прямой и комфортный
Балтийская Резорт новый гостиничный комплекс премиального формата в Светлогорске, созданный для тех, кто выбирает жизнь у моря без компромиссов или инвестиции с быстрой окупаемостью. А может быть все сразу. Первый в Светлогорске прямой и комфортный
Балтийская Резорт новый гостиничный комплекс премиального формата в Светлогорске, созданный для тех, кто выбирает жизнь у моря без компромиссов или инвестиции с быстрой окупаемостью. А может быть все сразу. Первый в Светлогорске прямой и комфортный
Балтийская Резорт новый гостиничный комплекс премиального формата в Светлогорске, созданный для тех, кто выбирает жизнь у моря без компромиссов или инвестиции с быстрой окупаемостью. А может быть все сразу. Первый в Светлогорске прямой и комфортный
Балтийская Резорт новый гостиничный комплекс премиального формата в Светлогорске, созданный для тех, кто выбирает жизнь у моря без компромиссов или инвестиции с быстрой окупаемостью. А может быть все сразу. Первый в Светлогорске прямой и комфортный
