Спальня рядом с прихожей, а кухня на проходе: исправляем неудачную планировку новостройки

Иногда в типовой новостройке попадается квартира, в которой всё будто бы не на своих местах: спальня рядом с входной дверью, кухня превращается в проход, а санузел не вмещает даже базовый набор техники. На плане такая квартира выглядит как головоломка — и именно так она часто ощущается в жизни.

К нам обратился читатель, который купил квартиру со специфической планировкой в ЖК «Театральный парк», а мы попросили Юлию Андрееву, арт-директора компании Domeo, разобраться в этой непростой квартире и предложить несколько сценариев — от решений без перепланировки до более радикальных вариантов. Ниже — три подхода с разной степенью вмешательства и логикой, на которую стоит опираться при выборе.

Первый вариант: в рамках существующей планировки

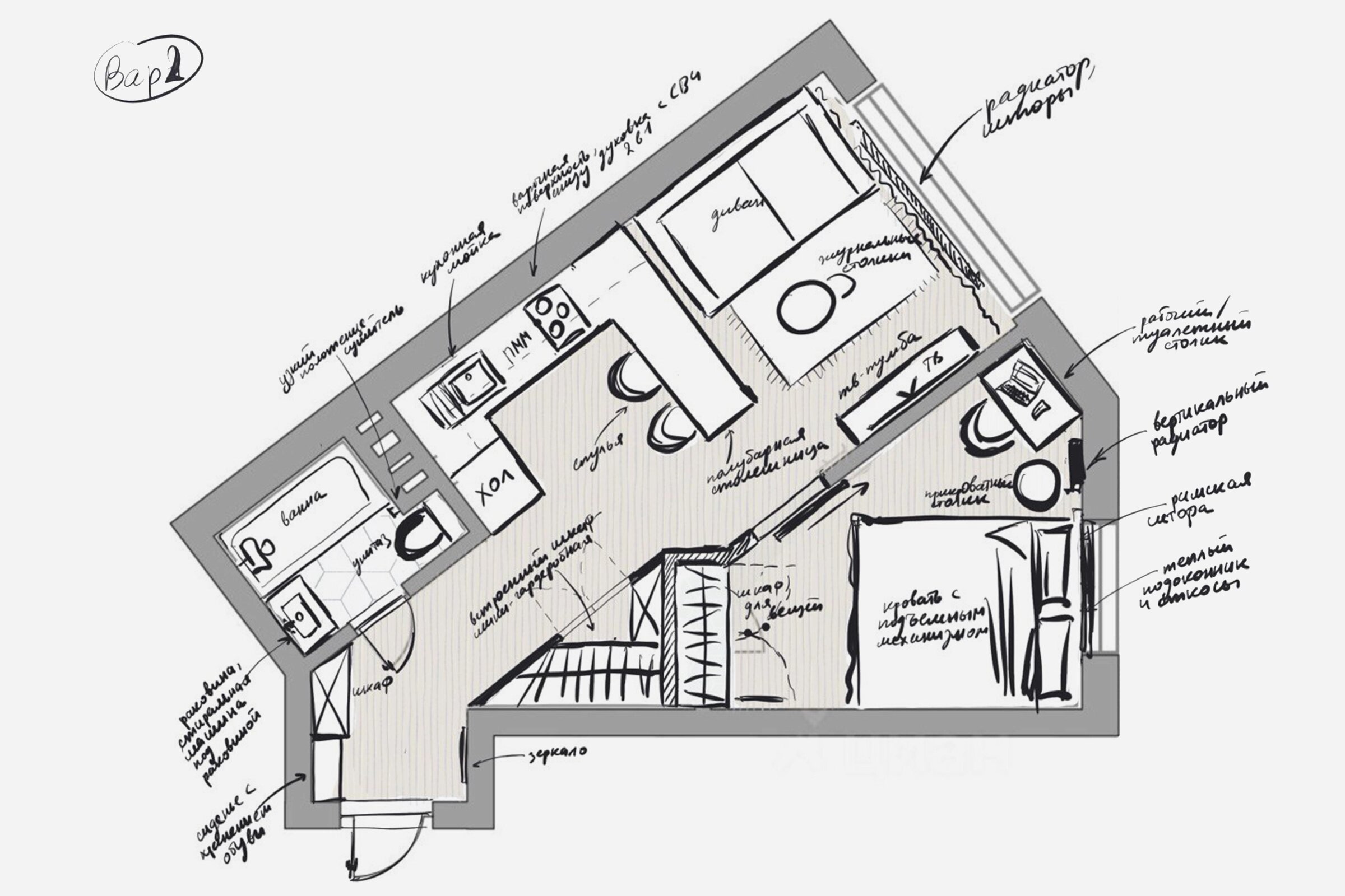
В первом варианте планировка осталась нетронутой. Я здесь ничего не меняла, построила только один простенок, который визуально отделяет холодильник от коридорчика между комнатами. Основная работа велась с расстановкой мебели и оборудования.

Изображение: компания Domeo

Спальня: кровать остаётся на своём месте, но я сделала её более функциональной, развернув вдоль окна. Вместо отдельно стоящей кровати — столярный подиум с выкатными ящиками внутри. Рядом — небольшой угловой шкаф. Чтобы компенсировать близость к окну, радиатор перенесла в сторону, сделала вертикальным, а также предусмотрела тёплый подоконник и откосы. Окна закрываются римской блэкаут-шторой.

Кухня-гостиная: кухонная зона осталась на своём месте, но получила длинную линейную компоновку. Холодильник — в углу, большой шкаф для мелкой техники, мойка, посудомоечная машина на 45 см. Для экономии места духовой шкаф и микроволновка объединены в один прибор, установленный под варочной поверхностью. Далее столешница продолжается к окну, под ней — дополнительное хранение. В зоне гостиной — диван (возможно, раскладной) и телевизор.

Прихожая и санузел: в прихожей размещена консоль для мелочей, большое зеркало, крючки и большие системы хранения для верхней одежды и сезонных вещей. В санузле ванна заменена на душевую кабину, что позволило разместить стиральную машину под раковиной. В нише организован хозяйственный шкаф для бытовой химии и откидная корзина для белья.

Второй вариант: лёгкая перепланировка с зонированием

Здесь уже предполагается перепланировка. Я сделала небольшой встроенный шкаф, который, по сути, получился как мини-гардеробная. Идея в том, чтобы компенсировать неровности пространства и выпрямить линии — все углы ушли внутрь шкафов.

Изображение: компания Domeo

Спальня: комната немного расширилась, и появился шкаф-ниша. Дверь рекомендуется сделать сдвижной из-за нехватки места для распашного открывания. Кровать — на месте от застройщика. В углу удалось разместить небольшой универсальный стол (рабочий или туалетный).

Кухня-гостиная: вместо обеденного стола — продолжение кухонной столешницы в виде полубарной стойки. Стандартный набор техники сохранён, но осталось место для дивана, тумбы и телевизора. В ванной удалось разместить компактную ванну, стиральную машину под раковиной и унитаз с инсталляцией.

Третий вариант: максимально открытое пространство для одного или пары

Этот вариант для тех, кому нужно больше воздуха и меньше перегородок. Зонирование достигается за счёт мобильных и визуальных решений.

Изображение: компания Domeo

Главное пространство: спальная зона перенесена в бывшую гостиную и отделена перегородкой, которая может полностью сдвигаться. Кровать расположена у окна.

Кухня: компактный линейный модуль с варочной поверхностью на три конфорки, посудомойкой на 45 см и комбинированной духовкой с СВЧ. Есть полубарная стойка.

Лаунж-зона: напротив кухни организован большой диван-лежанка на столярном подиуме с выдвижными ящиками — это и место отдыха, и дополнительное спальное место.

Хранение и санузел: вдоль стены — масштабная система хранения, включающая рабочий стол, комод, телевизор и шкафы до потолка. Ключевое изменение: стиральную и сушильную машины я вынесла в общую зону в отдельный шкаф, значительно разгрузив санузел. В ванной остался необходимый набор: ванна, раковина в нише, унитаз и полотенцесушитель.

Как определиться?

Даже самая неудобная на первый взгляд планировка поддаётся оптимизации. Выбор пути зависит от образа жизни, состава семьи и бюджета: можно обойтись расстановкой мебели и локальным зонированием, немного сдвинуть стены или кардинально переосмыслить пространство, объединив его. Главное — чётко определить свои ежедневные сценарии и подчинить им организацию каждого метра.

Какой из предложенных вариантов решения вам ближе?
Комментарии
0 комментов