Veer Park — это жилой комплекс комфорт-класса на севере Екатеринбурга. В комплексе продаются разные варианты квартир — от студий до трёхкомнатных. Жильё сдаётся с чистовой отделкой, цены начинаются от 6,3 млн рублей.
Первые два дома сданы, девелопер планирует достроить следующие дома во II-IV квартале 2025 года. Подробнее о плюсах и минусах ЖК — в нашем обзоре.
О жилом комплексе
Жилой комплекс Veer Park строится рядом с перекрестком проспекта Космонавтов и улицы Шефской. Рядом находятся крупный торговый центр Veer Mall и лесопарк Пышминские озерки. До ближайшей станции метро — полчаса ходьбы.
В проект входит 11 жилых домов, на данный момент продажи жилья идут в первых четырёх. На территории предусмотрен закрытый озеленённый двор с пешеходными дорожками, зонами отдыха, спорта и игр, в подъездах появятся колясочные.
Проект Veer Park
Цены
По данным Яндекс Недвижимости на март 2025 года, самая доступная квартира в продаже — однокомнатная площадью 39,6 кв. м и стоимостью 6,34 млн рублей. Самое дорогое предложение — трёхкомнатная квартира площадью 88,8 кв. м, которая стоит 11,9 млн рублей.
Средняя стоимость квадратного метра в самых маленьких квартирах (студиях) составляет 177,5 тыс. рублей, а в самых больших (трёхкомнатных) — 118,4 тыс. рублей.
Комплекс можно сравнить с соседними новостройками комфорт-класса. Например, в жилом районе «Изумрудный бор» цены на жильё начинаются от 7 млн рублей, средняя стоимость метра в однокомнатных квартирах — 170 тыс. рублей, а в трёхкомнатных — 128,7 тыс. рублей. В этом ЖК есть сданные дома, следующие достроят в течение 2025 года. В квартале «Моменты на Космонавтов» цены на квартиры стартуют от 4,3 млн рублей. Средняя стоимость квадрата в студиях — 156,4 тыс. рублей, в «трёшках» — 145,4 тыс. рублей. Первый дом планируют сдать в III квартале 2025 года.
Цены на квартиры в ЖК (по данным сервиса Яндекс Недвижимость)
Количество комнат | Площадь, м² | Минимальная стоимость, млн ₽ (март 2025) | Средняя цена за 1 м², тыс. ₽ (февраль 2025) |
Студия | от 37,1 | 6,64 | 177,5 |
1 | от 39,3 | 6,34 | 161,3 |
2 | от 53,8 | 8,34 | 144,5 |
3 | от 81,1 | 9,73 | 118,4 |
- 12,86 млн ₽Екатеринбург, жилой район Эльмаш, жилой комплекс Веер ПаркПроспект Космонавтов 12 мин.
- 9,28 млн ₽Екатеринбург, жилой район Эльмаш, жилой комплекс Веер ПаркПроспект Космонавтов 12 мин.
- 9,17 млн ₽Екатеринбург, жилой район Эльмаш, жилой комплекс Веер ПаркПроспект Космонавтов 12 мин.
- 12,84 млн ₽Екатеринбург, жилой район Эльмаш, жилой комплекс Веер ПаркПроспект Космонавтов 12 мин.
- 9,22 млн ₽Екатеринбург, жилой район Эльмаш, жилой комплекс Веер ПаркПроспект Космонавтов 12 мин.
- 12,91 млн ₽Екатеринбург, жилой район Эльмаш, жилой комплекс Веер ПаркПроспект Космонавтов 12 мин.
- 12,89 млн ₽Екатеринбург, жилой район Эльмаш, жилой комплекс Веер ПаркПроспект Космонавтов 12 мин.
- 13,13 млн ₽Екатеринбург, жилой район Эльмаш, жилой комплекс Веер ПаркПроспект Космонавтов 12 мин.
- 6,7 млн ₽проспект Космонавтов, 108/3Проспект Космонавтов 13 мин.
- 5 млн ₽проспект Космонавтов, 108/4Проспект Космонавтов 11 мин.
- 6,4 млн ₽проспект Космонавтов, 108/3Проспект Космонавтов 13 мин.
- 5,15 млн ₽проспект Космонавтов, 108/3Проспект Космонавтов 13 мин.
- 8,57 млн ₽проспект Космонавтов, 108/3Проспект Космонавтов 13 мин.
- 10,9 млн ₽проспект Космонавтов, 108/3Проспект Космонавтов 13 мин.
- 13,85 млн ₽проспект Космонавтов, 108/3Проспект Космонавтов 13 мин.
- 7,59 млн ₽проспект Космонавтов, 108/3Проспект Космонавтов 13 мин.
Архитектура
Проект Veer Park состоит из одиннадцати 25-этажных домов. Здания возводят по монолитно-каркасной технологии, которая считается одной из самых надёжных и долговечных. Для отделки фасадов используют белый цвет с яркими акцентами оранжевого, жёлтого, синего и зелёного оттенков.
Внешний вид зданий
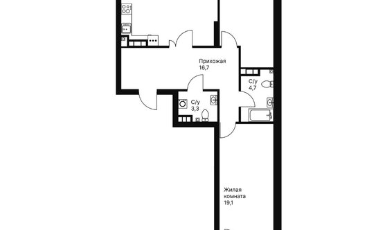
Планировки и отделка
На момент написания обзора (март 2025 года) в ЖК продаются:
- студии площадью 37,1 кв. м;
- однокомнатные квартиры площадью от 39,3 до 50,8 кв. м;
- двухкомнатные квартиры площадью от 53,8 до 68,7 кв. м;
- трёхкомнатные квартиры площадью от 81,1 до 90,8 кв. м.
Есть стандартные и евро-планировки с кухней-столовой или кухней-гостиной. Можно выбрать квартиру с двумя санузлами, кухней в нише, гардеробной, просторным коридором, нишами под хранение, окнами на две стороны дома. Во всех квартирах предусмотрены балконы, некоторые — с угловым остеклением. Высота потолков — 2,7 метра.
Все квартиры в Veer Park сдаются с чистовой отделкой:
- на стенах — обои под покраску;
- на полу — ламинат высокого класса;
- в санузле — керамическая плитка;
- на кухне — раковина, в санузлах — раковина и унитаз;
- межкомнатные двери и надежная входная сейф-дверь.
Чистовая отделка
Счётчики тепла, воды и электроэнергии будут располагаться в подъездах. Это позволит сэкономить пространство в квартирах и перекрыть стояки в случае аварийной ситуации. Самостоятельно снимать показания не придётся — они отправляются автоматически.
Инфраструктура комплекса
Входные группы. Входы в подъезды комплекса — прозрачные и безбарьерные. В каждом доме Veer Park предусмотрен уникальный дизайн холлов и других мест общего пользования. В холлах появится мягкая мебель и растения. Также на первых этажах разместятся колясочные.
Холл
Паркинги. На территории комплекса запланирована открытая парковка.
Двор. На территории озеленённого двора проложат пешеходные дорожки и организуют места для отдыха и работы на свежем воздухе. Также здесь появятся спортивные площадки с тренажерами и зонами для игр. Места для спокойного и активного отдыха будут разделены.
Двор в ЖК
Для детей. Во дворе установят игровые комплексы, сконструированные с учётом интересов детей всех возрастов. Строительство детского сада на территории проектом не предусмотрено.
Покупки и отдых. Комплекс Veer Park строится вокруг ТРЦ Veer Mall c кинотеатром, ресторанами, гипермаркетом и другими магазинами.
Игровые площадки
- Новые дома, новый двор. Небольшая детская площадка, но пока еще не весь жк достроился. Парковочных мест нет совсем, что очень неудобно. В самом доме чисто, квартиры с неплохой чистовой отделкой, главное что соседей не слышно. Нам с женой понравилось, но проблема с парковкой это большой минус, за это 4 звезды.
- Заехали в съемную квартиру в третий корпус. Всё хорошо, двор закрытый, чисто, спокойно, рядом ТЦ. Отнял одну звезду из-за слышимости между квартирами. Да, это не новость, что в новостройках такая слышимость, но мне есть, с чем сравнить как в Екб, так и в Мск, здесь слышно соседей просто идеально. Когда за стеной бегают дети, то чувство, что между нами не стена, а занавеска. Может, если посильнее обставить комнаты мебелью, то ситуация исправится, но пока так.
- Уже сдано 2 жилых дома на 576 квартир, мест для парковки всего 20!. Двор закрыт от машин. А ещё будет построено 7 домов. Единственная Большая парковка у торгового центра, но ее готовят к закрытию! В выходные дни огромные пробки из-за торгового центра. Школа рядом только одна. Разочарование в покупке квартиры в этом ЖК.
- Великолепный парк. Отличная транспортная развязка. Сам жилой комплекс имеет отличную парковку( и это за 5т.р.) охраняемую территорию. Тц напротив.👍👍
- Плюсы: рядом парк, недалеко метро. Минусы: нет школ рядом и детских садов. Парковок тоже. Нормально тем, у кого нет машины и ездят на общественном транспорте. И думается мне, что и парк тоже застроят когда-нибудь.
Транспорт
ЖК Veer Park расположен на проспекте Космонавтов, по которому можно добраться в центр города. Путь до Площади 1905 года займёт около 20 минут без учёта пробок. Также рядом находится улица Шефская, по которой можно доехать до других районов города и аэропорта «Кольцово» (30 минут). Выезд на ЕКАД расположен в 2,6 км от ЖК.
Около жилого комплекса расположена остановка скоростного трамвая, который ходит в Верхнюю Пышму. Ещё несколько остановок — в 7-13 минутах ходьбы. От них ходят маршруты до метро, центра города и других районов. Ближайшая станция метро «Проспект Космонавтов» — в 30 минутах пешком.
О застройщике
Застройщик комплекса Veer Park входит в группу компаний «Ривьера Инвест Екатеринбург». ГК занимает 20 место в топе застройщиков Свердловской области по объёмам текущего строительства. Из реализованных проектов — ЖК «Ривьера», «Сказы Бажова», «Белорецкий» и «Белорецкий II». Кроме Veer Park, компания возводит комплексы «Космос», «Галактика», «Белая башня» на Уралмаше, «Южный сад» на Вторчермете, «Новая Ботаника» в Ботаническом.
Об Орджоникидзевском районе
Жилой комплекс Veer Park находится на севере Екатеринбурга, в Орджоникидзевском административном районе, на границе микрорайонов Уралмаш и Эльмаш. Исторически это промышленный район с большим количеством заводов. При этом здесь сохранились большие лесопарковые зоны, озёра и карьеры.
Орджоникидзевский район — второй по численности населения в городе. На 2021 год на территории района проживало почти 264 тыс. человек.
История района
Территория района начала развиваться во время строительства Уральского завода тяжёлого машиностроения имени Орджоникидзе (сейчас — «Уралмашзавод»). Одновременно с заводом вокруг строили соцгород со всей необходимой инфраструктурой. Район образовался в 1934 году и получил название Орджоникидзевский в честь завода.
Раньше на территории, где сейчас строятся Veer Park, находился советский посёлок Веер. Такое название он получил из-за улиц, расположенных в виде спиц раскрытого веера. Посёлок вошёл в состав Екатеринбурга в 1933 году, но долгое время оставался отдалённым частным сектором. В последнее время эта территория начала развиваться. Здесь начали строить современные жилые комплексы, открыли большой ТРЦ VEER Mall, а также провели трамвайную линию.
Орджоникидзевский район. Фото: Vyacheslav Bukharov (Wikimedia Commons)
Инфраструктура района
Образование. Детский сад №529 находится в 11 минутах ходьбы от Veer Park. До ближайшей общеобразовательной школы №95 — 14 минут пешком. Немного дальше есть ещё несколько школ и лицей.
В районе несколько средних и высших учебных заведений, среди которых:
- Екатеринбургский электромеханический колледж;
- Екатеринбургский экономико-технологический колледж;
- Уральский юридический институт МВД России;
- Уральский государственный педагогический университет;
- Российский государственный профессионально-педагогический университет;
- Екатеринбургская академия современного искусства.
Вид на Уральский государственный педагогический университет. Фото: Vyacheslav Bukharov (Wikimedia Commons)
Медицина. Ближайшая городская клиническая больница №14 расположена в 7 минутах ходьбы от Veer Park. Детская городская больница №15 находится рядом со станцией метро «Проспект Космонавтов», в 26 минутах пешком.
Покупки и отдых. Кроме ТРЦ Veer Mal рядом расположены супермаркет Metro и строительный гипермаркет «Максидом».
Отдохнуть можно в лесопарке Пышминские озерки, с которым граничит ЖК. В Орджоникидзевском районе есть ещё несколько зелёных зон отдыха — парк Победы, Калиновский парк и Шувакишский лесопарк. За 20 минут на машине можно доехать до озера Балтым с многочисленными базами отдыха и пляжами.
Вид на посёлок Балтым и озеро Балтым. Фото: Vyacheslav Bukharov (Wikimedia Commons)
Спорт. В ТРЦ VEER Mall открыты скалодром, студия йоги «Место силы», спортивный комплекс «Сквош&Падел». В соседнем комплексе работают спортивная секция по единоборствам Godai и фитнес-клуб Bright Fit с бассейном, сауной и хамамом.
Экологическая обстановка
Орджоникидзевский входит в число районов с неблагоприятной экологией. Посты контроля воздуха неоднократно фиксируют превышения вредных веществ в воздухе. Виной тому большое количество автотранспорта и наличие крупных промышленных предприятий. Например, на территории района находятся Уральский завод тяжёлого машиностроения, Уральский турбинный завод, Екатеринбургский электровозоремонтный завод, Уралэлектротяжмаш и Машиностроительный завод имени Калинина. Ситуацию улучшают крупные зелёные парки, которые окружают район.
Шувакишский лесопарк. Фото: Vyacheslav Bukharov (Wikimedia Commons)
Будущее района
В 2023 году на Эльмаше построили ледовую арену в спортивно-оздоровительном комплексе «Калининец». Согласно стратегии развития Орджоникидзевского района, к 2030 году проведут капитальный ремонт Центральной государственной клинической больницы № 23 по адресу Старых большевиков, 9.
В соседнем микрорайоне Уралмаш до 2030 года планируют построить:
- культурно-досуговый центр (в границах улицы Уральских рабочих, переулка Соснового, улиц Калинина и Народного Фронта);
- торговый центр (в границах улицы Ильича, проспекта Орджоникидзе и улицы Машиностроителей).
Недостатки района
В стратегии развития обозначены следующие слабые стороны района:
- недостаточная обеспеченность социальной инфраструктурой — местами в школах, учреждениях дополнительного образования, учреждениях здравоохранения;
- плохая экологическая ситуация — высокий уровень шума и загрязнения атмосферы.
Также следует отметить, что на проспекте Космонавтов часто бывают пробки.
Резюме
Veer Park — жилой комплекс комфорт-класса на севере Екатеринбурга, в Орджоникидзевском районе. Проект состоит из 11 высотных корпусов. Два дома достроены, ещё два сдадут во II-IV кварталах 2025 года. В комплексе продаются квартиры от студий до трехкомнатных с чистовой отделкой. Цены начинаются от 6,3 млн рублей.
На территории ЖК запланированы пешеходные дорожки, места для отдыха, спортивные и детские площадки. Сходить на шопинг можно в соседний ТРЦ Veer Mall, а прогуляться — в лесопарк Пышминские озерки. В пешей доступности находятся детский сад, школа, больницы и остановки.
Из недостатков расположения комплекса можно отметить не самую лучшую экологию, недостаточное количество социальной инфраструктуры и пробки на проспекте Космонавтов.
Предложения застройщиков поблизости
Название ЖК | Цена квартир, млн ₽ | Застройщик | Площадь, м² | Сроки сдачи | Транспортная доступность | Отделка |
«УГМК-Застройщик» | от 39,7 до 97,9 | I-IV кв. 2025, есть сданные | 14 мин. на автобусе до метро Проспект Космонавтов | White Box, чистовая | ||
«Моменты на Космонавтов» | TETRIS Group | от 25,4 до 67,8 | III кв. 2025 - IV кв. 2027 | 13 мин. на автобусе до метро Проспект Космонавтов | Под ключ | |
«Твинс» | «Строительная компания UP» | от 38,5 до 79,1 | сдан | 18 мин. на автобусе до метро Проспект Космонавтов | Предчистовая | |
«Настоящий» | «УГМК-Застройщик» | от 44,8 до 147,1 | IV кв. 2026 | 16 мин. пешком до метро Проспект Космонавтов | White Box, чистовая |