«Тёплые края» — микрорайон комфорт-класса, который строится рядом со станицей Елизаветинской, в 16 км от центра Краснодара. Проект застройки включает жилые дома переменной этажности, школу, три детских сада, паркинги и другую инфраструктуру. ЖК строится очередями, первые две из них сдаются в 2025 году. Подробнее о жилом комплексе, его плюсах и минусах — в нашем обзоре.
О комплексе
ЖК «Тёплые края» состоит из 32 домов. Всего в новом микрорайоне, по плану, будут проживать около 13 600 человек. Жителям будет доступна разнообразная инфраструктура: на участке застройки в 70 гектаров появятся, помимо жилья, школа, три детских сада, поликлиника, культурно-досуговый центр, а также паркинги.
Комплекс строится в городской черте Краснодара, в Прикубанском внутригородском округе, напротив станицы Елизаветинской. Дорога от него до центра города занимает около сорока минут на машине, если нет больших пробок. Общественным транспортом придется добираться примерно час.
Микрорайон застраивается постепенно, всего запланировано 13 очередей строительства. Дома первой очереди (корпуса 1, 2 и 3) планируют сдать в эксплуатацию в первом квартале 2025 года, вторую очередь (корпуса 4, 5, 6, 7) — в третьем квартале 2025 года.
Цены
По данным сервиса Яндекс Недвижимость, в марте 2025 года цены на квартиры в ЖК «Тёплые края» начинаются от 4,2 млн рублей — это стоимость студии площадью 20,7 кв. м. Самая дорогая квартира — «трёшка» общей площадью 71,8 кв. м за 12,6 млн рублей. Средняя цена квадратного метра в ЖК, по данным за февраль, составляет от 154,3 тыс. рублей (трёхкомнатные квартиры) до 167,9 тыс. рублей (студии).
Сравнить комплекс можно с микрорайоном «Новая Елизаветка», который строится поблизости. В «Новой Елизаветке» цены начинаются от 3,7 млн рублей за квартиру-студию площадью 25,5 кв. м. Самая дорогая квартира — «двушка» общей площадью 50,9 кв. м за 8,2 млн рублей. Трёхкомнатных квартир в этом комплексе нет. Средняя цена квадратного метра в ЖК, по данным за февраль 2025 года, составляет от 133,9 тыс. рублей (двухкомнатные квартиры) до 154,2 тыс. рублей (студии).
Цены на квартиры в ЖК «Тёплые края» (по данным сервиса Яндекс Недвижимость)
Количество комнат | Площадь, м² | Минимальная стоимость, млн ₽ (март 2025) | Минимальная стоимость 1 кв. м, тыс. ₽ (февраль 2025) |
Студия | От 20,7 | 4,2 | 167,9 |
1 | От 31,3 | 5,1 | 162,5 |
2 | От 49 | 7,6 | 158,7 |
3 | От 71,8 | 10,8 | 154,3 |
- 3,72 млн ₽Краснодар, ЖК Тёплые Края
- 4,82 млн ₽Краснодар, улица имени Виктора Анфиногенова, 12
- 9,07 млн ₽Краснодар, улица им. Александра Гикало, 11
- 8,5 млн ₽Краснодар, улица им. Александра Гикало, 11
- 8,33 млн ₽Краснодар, улица им. Александра Гикало, 11к1
- 7,21 млн ₽Краснодар, улица имени Виктора Анфиногенова, 12к3
- 7,53 млн ₽Краснодар, улица имени Леона Орбели, 9
- 4,67 млн ₽Краснодар, улица имени Виктора Анфиногенова, 12к3
- 5 млн ₽улица им. Александра Гикало, 11
- 2,95 млн ₽улица им. Александра Гикало, 11
- 4,9 млн ₽улица им. Александра Гикало, 11
- 5,1 млн ₽Краснодар, ЖК Тёплые Края
- 2,95 млн ₽улица им. Александра Гикало, 11
- 2,9 млн ₽улица им. Александра Гикало
- 3,9 млн ₽улица им. Александра Гикало, 11
- 3,85 млн ₽улица им. Александра Гикало, 11
Архитектура
Жилой комплекс состоит из 32 кирпично-монолитных корпусов высотой от девяти до 18 этажей. Фасады — контрастные, но использованы нейтральные природные цвета (бежевый, тёмно-коричневый, рыжий и жёлтый). Стеклопакеты в ЖК тёмного цвета, на фасадах установлены блоки под кондиционеры.
Фасад
На первых этажах разместятся коммерческие помещения, но а также квартиры с террасами и высокими потолками — до 4,2 метров.
Во всех квартирах комплекса — увеличенная площадь остекления.
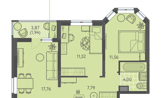
Планировки и отделка
В первых двух очередях покупатели могут выбрать квартиры от студий до трёхкомнатных общей площадью от 20,7 до 82,8 кв. м. Во всех квартирах предусмотрены лоджии, площадь которых в некоторых вариантах составляет почти 8 кв. м (туда можно выйти из кухни и жилой комнаты или двух жилых комнат). Есть квартиры с гардеробными или эркерами, а также распашные планировки с окнами на две противоположные стороны света (причём даже среди «однушек»).
Во многих студиях можно разместить ванну в санузле, что непривычно для этого формата жилья. А вот в некоторых «двушках» в основном санузле предусмотрено место только под душевую кабину. В двухкомнатных квартирах спроектированы, как правило, раздельные санузлы или один просторный совмещённый санузел плюс дополнительный гостевой, но есть и варианты с одним санузлом.
В большинстве трёхкомнатных квартир есть мастер-спальня (с выходом в собственный санузел), основной совмещённый санузел и дополнительный гостевой — это удобно для больших семей.
В стоимость квартиры включена предчистовая отделка. Застройщик выполнит оштукатуриваниеку стен, стяжку пола, проведёт разводку коммуникаций отопления и электричества, установит розетки и выключатели. Дополнительно можно приобрести ремонт под ключ в одном из двух цветовых решений — Sunrise (светлая) или Sunset (тёмная). Квартиры с отделкой расположены в так называемых «тихих» подъездах — то есть в этих подъездах все квартиры выделены под покупку с ремонтом под ключ, и здесь не будет шумных работ у соседей.
Предчистовая отделка
Инфраструктура комплекса
Входные группы. Входы в подъезды не имеют ступеней, но в целом территория не безбарьерная — дома отделены от уровня проезжей части бордюрами. В каждом подъезде есть колясочные, а рядом со входом — парковки для велосипедов.
Вход в подъезд
Двор. В ЖК большая придомовая территория, где будут сделаны детские и спортивные площадки, места для йоги, зона выгула собак, зона барбекю, лаунж-зона с шезлонгами, гамаками и навесами. Кварталы микрорайона будут соединены прогулочным бульваром, застройщик выполнит озеленение территории.
Существенный минус — территория не закрыта от машин, и дома соседствуют с наземными парковками и проезжей частью. Это снижает уровень комфорта и безопасности.
Центральный сквер
Для детей. В ЖК появится школа на 1800 учеников, а также три детских сада (суммарно на 950 детей).
Ход строительства школы
Покупки и отдых. Коммерческие помещения (всего 30 000 кв. м) под кафе, рестораны, сервисы и услуги расположены на первых этажах, а также в галереях между некоторыми зданиями. акже в проект застройки входят летний кинотеатр, библиотека и культурно-досуговый центр.
Первые этажи
Здоровье и спорт. В ЖК откроется поликлиника. Спроектирован также спорт-хаб с площадкой для командных видов спорта. Кроме того, в микрорайоне планируют открыть фитнес-центр с бассейном и спа.
Паркинг и кладовые. На территории комплекса запланировано несколько многоуровневых паркингов и открытых парковок. На каждом этаже есть кладовые для сезонных и крупногабаритных вещей.
- Привествую всем!!! Посевотовали брать квартиру же тёплая края!!! Взял год назад, блин комментарий читаю что там какой то вонь конкретно и ТД, но 99% народ здесь пишет хорошие отзывы, мне тоже сказали что не выходя из жк можно гулять прогуляться и сходить посидеть!!! Но большинство людей говорят о хорошем
- Оригинально подошли к благоустройству, все-таки территория-то немаленькая совсем. Больше всего порадовала идея с летним кинотеатром, прям как в детстве ☺️Бульвар свой, дог-парк, даже фитнес с бассейном и спа, кто-то на карте смотрит, где спа поближе, а у нас на территории будет)))
- Самое классное здесь – городская прописка, нам было важно ее сохранить. Хотели подальше жк какой-то со своей инфраструктурой, а тут прям отдельный микрорайон.
- Выбирали долго квартиру для дочери. Когда увидели застройку, сразу обратились в отдел продаж. Успели оформить по ставкам с гос.поддержкой. Ждали год сдачу 1 квартала. Получили ключи и приступаем к ремонту. ЖК расположен в 30 мин от центра Краснодара, возможно ездили не в час пик, но до ЮМР всегда одно и тоже время. Отделка качественная, предчистовая, высокие потолки 2,9 м. Вид уже знали какой будет. Вообщем всем довольны. Приступаем к ремонту.
- Один из лучших ЖК города Краснодара !!! Просторная территория, рядом школка и Детский Сад ! Очень удобный выезд в сторону Моря! не нужно стоять в пробках!
Транспорт
Путь от ЖК до центра Краснодара занимает около сорока минут на машине, а на общественном транспорте — примерно 1 час и 10 минут. Остановки автобусов, которые едут в центр, расположены с другой стороны шоссе, и пешком через безопасный переход до них придётся идти около 25-35 минут от центра микрорайона.
До железнодорожного вокзала «Краснодар-1» нужно ехать 40 минут на машине, а до ж/д вокзала «Краснодар-2» и центрального автовокзала — 35 минут, до аэропорта — около 1 часа.
О застройщике
ЖК «Тёплые края» строит компания «Семья», основанная в 2013 году. В марте 2025 года «Семья» входит в топ-5 по объёму текущего строительства в Краснодарском крае. По итогам 2024 года компания заняла восьмое место по объёму введённого в эксплуатацию жилья. «Семья» строит в Краснодаре ЖК «Друзья», а также уже сдала такие проекты, как «Все свои VIP», «Светлоград» и «Андресен».
О Прикубанском городском округе и станице Елизаветинская
ЖК строится в городской черте Краснодара, в Прикубанском внутригородском округе. Прикубанский — самый большой из четырёх внутригородских округов Краснодара, здесь проживают около 482 тыс. человек. Напротив ЖК находится станица Елизаветинская, а к западной границе участка застройки примыкает коттеджный посёлок «Новая Елизаветка».
Микрорайон «Новая Елизаветка»
История района
Прикубанский округ Краснодара был создан в 1975 году, он объединил территории Ленинского и Первомайского районов, посёлок Калинино и станицу Елизаветинскую. В 1990-х Прикубанский получил статус административного округа, а в 2004 году стал внутригородским. Сегодня в его составе более 20 населённых пунктов и три сельских округа. Здесь работают предприятия машиностроения, пищевой и строительной промышленности, а также множество фермерских хозяйств.
История станицы Елизаветинской начинается в конце XVIII века, когда на этом месте появился укреплённый пост черноморских казаков, названный в честь супруги Александра I — Елизаветы Алексеевны. В 1821 году пост преобразовали в куренное селение, а с 1842 года оно стало станицей. До 1920-х годов Елизаветинская входила в Екатеринодарский отдел Кубанской области. В 2004 году станица стала центром Елизаветинского сельского округа. Здесь находится Елизаветинское городище, а также курганы IV века до н. э., известные как «майские горы», где были обнаружены артефакты античного искусства, ныне хранящиеся в Эрмитаже.
Церковь Покрова Пресвятой Богородицы в Елизаветинской
Инфраструктура района
Образование. Ближайшая школа (№75) находится на территории «Новой Елизаветки». До неё можно дойти полчаса или доехать на машине за девять минут. Дорога до школы №76 в Елизаветинской займёт 11 минут. В пределах 15 минут езды расположены детские сады №206, №205, №50, «Академия детства» и «Лиса Патрикеевна».
Медицина. До городской поликлиники №23 в Елизаветинской можно доехать за 13 минут на машине, здесь работают отделения для взрослых и детей. Около 20 минут займёт дорога до клинической больницы №2. Ближайшие аптеки расположены примерно в 1 км.
Покупки. Продуктовые магазины (сети «Магнит», «Пятёрочка», а также другие магазины формата «у дома») находятся на другой стороне Елизаветинского шоссе, примерно в 1 км. Однако дорога до них займёт не меньше получаса. Также в 1,5 км работают сельскохозяйственная ярмарка и агрокомплекс «Выселковский». Путь до торговых центров West Mall, «Западный» и «Гипер Лента» составит около получаса.
Отдых и прогулки. Развлечения и крупные парки расположены ближе к центру Краснодара. Самое популярное место для прогулок у жителей и туристов — парк «Краснодар» рядом с одноимённым стадионом, до него можно доехать за час.
Жители комплекса могут также прогуляться по лесопарку «Приречный» или урочищам Верхняя Дубинка и Нижняя Дубинка. Примерно в 7 км расположено Шапсугское водохранилище, но добираться до него придется не менее часа.
Лесопарк «Приречный». Фото: Logvinov 53 (Wikimedia Commons)
Спорт. В Елизаветинской есть спортивные клубы «Русич», «Елизаветинский», детский бассейн «Мамонтёнок», студия каратэ. До сетевых фитнес-центров нужно ехать на машине. Дорога до ХFit и «Территории Фитнеса» займёт 30 минут, до World Class Lite — 37 минут, до Orange Fitness — 40 минут, до Alex Fitness — 50 минут.
Экологическая обстановка
Рядом с Елизаветинской пока нет крупных ЖК, в районе протекает река, рядом есть водохранилище и зелёные зоны. Промышленные предприятия расположены далеко от жилых массивов. Благодаря этим факторам качество воздуха рядом со станицей считается хорошим.
Ранее рядом с Елизаветинской находился крупный полигон бытовых отходов, который существовал здесь с 1975 года. В 1985 году полигон выработал свою мощность и был закрыт, но люди продолжали свозить туда мусор. Несмотря на частичную рекультивацию, ливневые стоки оттуда несколько лет загрязняли приграничные территории и реку Кубань. Полигон полностью рекультивировали только в 2024 году.
Лесопарк «Приречный». Фото: Koutcher (Wikimedia Commons)
Недостатки района
Главный минус района — удалённость от центра, а также недостаточно развитая инфраструктура. За покупками, развлечениями или в хороший фитнес-центр нужно добираться на машине. До ближайшей остановки придётся идти 25-35 минут пешком. Всё это снижает привлекательность района для тех, у кого нет собственного автомобиля.
Будущее района
В станице планируют построить промышленный экокластер. Плана застройки ещё нет, но известно, что под неё отдали 120 гектаров земли. Предполагается, что на территории, помимо промышленных зданий, появятся зелёные пространства и зоны для отдыха. Изначально этот участок выделяли под строительство многоквартирных домов.
Резюме
Жилой комплекс «Тёплые края» — это масштабный проект комфорт-класса, строящийся в 16 км от центра Краснодара. Микрорайон включает 32 дома переменной этажности, школу, три детских сада, поликлинику, культурно-досуговый центр и паркинги. Комплекс строится очередями, первые дома планируют сдать в 2025 году. В первых очередях покупатели могут выбрать квартиры от студий до трёхкомнатных общей площадью от 20,7 до 82,8 кв. м.
К преимуществам ЖК можно отнести развитую инфраструктуру, большую территорию с игровыми и спортивными площадками и бульваром для прогулок. Также среди плюсов — современная архитектура, разнообразие планировок, квартиры с террасами, панорамные окна. Главный минус — удалённость от центра города. Остановка автобусов находится далеко, а пешеходный путь до нее занимает до получаса. Территория комплекса не закрыта от машин, что снижает уровень комфорта.
Предложения застройщиков поблизости
Название ЖК | Цена квартир, млн ₽ | Застройщик | Площадь, м² | Сроки сдачи | Транспортная доступность | Отделка |
Микрорайон «Новая Елизаветка» | «Инсити Девелопмент» | от 25,5 до 59,8 | I кв. 2025, есть сданные | 19,9 км до ж/д вокзала «Краснодар-1» | Предчистовая | |
«Метрикс Development» | от 25,5 до 65,4 | II кв. 2026, есть сданные | 10,6 км до ж/д вокзала «Краснодар-1» | Предчистовая | ||
ЖК «Событие» | «Стройград» | от 33,1 до 77,4 | III кв. 2025 | 16,3 км до ж/д вокзала «Краснодар-1» | Без отделки, предчистовая, чистовая | |
«ЕкатеринодарИнвест-Строй» | от 24,7 до 188,3 | III кв. 2025, есть сданные | 10 км до ж/д вокзала «Краснодар-1» | Без отделки | ||
Клубный квартал «Станиславский» | «ГК Континент» | от 23,8 до 135,7 | III кв. 2026 | 13,3 км до ж/д вокзала «Краснодар-1» | Предчистовая | |
ЖК «Зелёный театр» | ГК «Европея» | от 22,9 до 60,3 | II кв. 2025, есть сданные | 13,7 км до ж/д вокзала «Краснодар-1» | Без отделки, под ключ | |
ЖК «Друзья» | «Семья» | от 27,5 до 82,7 | III кв. 2025, есть сданные | 16,5 км до ж/д вокзала «Краснодар-1» | Предчистовая, под ключ |