Подробный обзор ЖК «Мануфактура Джеймс Бек» в Санкт-Петербурге со всеми плюсами и минусами
ЖК «Мануфактура Джеймс Бек»
«Мануфактура Джеймс Бек» — готовый жилой комплекс бизнес-класса в Петроградском районе Санкт-Петербурга, в пешей доступности от Невы, Ботанического сада и трёх станций метро. Собственная инфраструктура включает подземный паркинг, коммерческие помещения, а также игровые и спортивные площадки. Подробнее о ЖК «Мануфактура Джеймс Бек», его плюсах и минусах — в нашем обзоре.
О жилом комплексе
ЖК «Мануфактура Джеймс Бек» появился на территории бумагопрядильной фабрики, которую в конце XIX века построил приехавший из Англии предприниматель. Новый жилой комплекс соседствует с историческими зданиями мануфактуры. Он был сдан в эксплуатацию во II квартале 2024 года.
Комплекс состоит из трёх секций переменной высоты: от шести до девяти этажей. В комплексе спроектировано 330 квартир — от однокомнатных до четырёхкомнатных. У жителей есть собственный подземный паркинг, а также закрытый двор и ландшафтный парк.
Цены
Самое дешёвое предложение в комплексе, по данным на сентябрь 2024 года, стоит 19,5 млн рублей. Это квартира общей площадью 52,5 кв. м с кухней-гостиной 18,4 кв. м и примерно такой же по размеру спальней. В квартире есть гардеробная, совмещённый санузел, небольшой балкон.
Самый дорогой вариант — двухэтажная квартира общей площадью 175,3 кв. м за 72,8 млн рублей. В ней спроектированы кухня-гостиная, а также четыре спальни, одна из которых — мастер-спальня с собственным санузлом. Всего в квартире четыре санузла, две гардеробные, есть выход на собственные террасы с обоих уровней.
Квадратный метр в ЖК «Мануфактура Джеймс Бек», по данным Яндекс Недвижимости за сентябрь 2024 года, стоит в среднем от 379,9 тыс. рублей (трёхкомнатные квартиры) до 430,9 тыс. рублей (четырёхкомнатные квартиры). Квадратный метр в «однушках» стоит в среднем 393,8 тыс. рублей, в «двушках» — 385 тыс. рублей.
Сравнить цены можно с ЖК «Сампсониевский, 32», который находится на противоположном берегу большой Невки, рядом с Выборгской набережной. Это также ЖК бизнес-класса, но со сроком сдачи во II квартале 2026 года. В ЖК «Сампсониевский, 32» цены начинаются от 18,8 млн рублей за квартиру площадью 41,5 кв. м. Квадратный метр в этом комплексе стоит в среднем от 360,8 тыс. рублей (трёхкомнатные квартиры) до 394,2 тыс. рублей (однокомнатные квартиры).
В элитном квартале Avant, который находится в 3,5 км от ЖК «Мануфактура Джеймс Бек», минимальная стоимость — 14,8 млн рублей за однокомнатную квартиру площадью 25 кв. м. Квадратный метр в этом ЖК стоит в среднем от 473,2 тыс. рублей (двухкомнатные квартиры) до 602,4 тыс. рублей (четырёхкомнатные квартиры). Квартал сдаётся в эксплуатацию в IV квартале 2026 года — II квартале 2027 года.
Цены на квартиры в ЖК «Мануфактура Джеймс Бек» (по данным застройщика и сервиса Яндекс Недвижимость)
Количество комнат | Площадь, м² | Минимальная стоимость, млн ₽ (октябрь 2024) | Средняя цена 1 кв. м, тыс. ₽ (сентябрь 2024) |
1 | От 51,1 | 19,5 | 393,8 |
2 | От 58,6 | 23,1 | 385 |
3 | От 82,9 | 31,2 | 379,9 |
4 | От 168,8 | 67,5 | 430,9 |
Архитектура
Жилой комплекс построен в стиле лофт, его отличают красные кирпичные фасады, которые напоминают фабричные здания и гармонируют с окружающей застройкой. С внутренней стороны часть фасадов оформлена в белом и сером цветах, у них другая, более гладкая, фактура по сравнению с внешним фасадом.
Комплекс состоит из трёх секций переменной этажности — от шести до девяти этажей. В некоторых квартирах есть балконы или выходы на собственные террасы. Есть квартиры с наклонной крышей в той секции, которая выходит на улицу и больше всего похожа на фабричное здание. В таких квартирах высокие потолки — до шести метров.
Фасады домов
Планировки и отделка
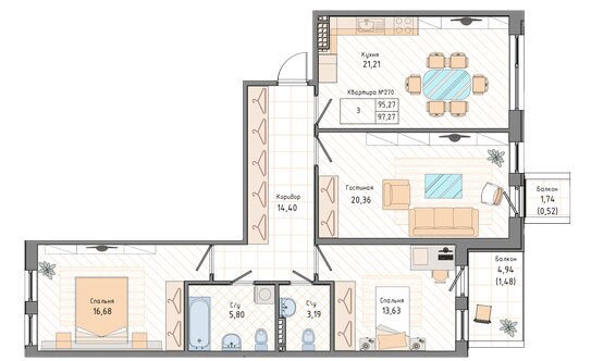
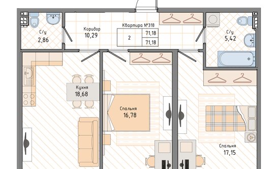
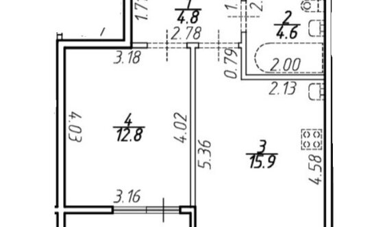
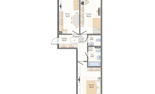
В ЖК спроектировано 330 квартир от однокомнатных до четрёхкомнатных с 50 разными планировочными решениями. Есть варианты с высокими потолками и вторым светом, с балконами и собственными террасами, с мастер-спальнями, а также двухэтажные. Во многих из них спроектированы просторные кухни-гостиные, а также есть гардеробные или кладовые помещения. Квартиры передаются покупателям с черновой отделкой.
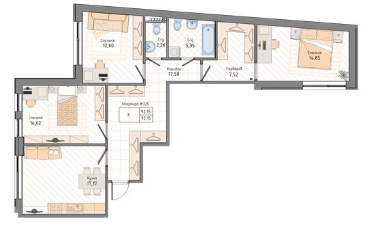
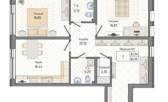
В октябре 2024 года в продаже от застройщика представлены квартиры общей площадью от 51,1 до 175,5 кв. м. Площадь однокомнатных квартир — от 51,1 до 64,5 кв. м, двухкомнатных — от 58,6 до 113,4 кв. м, трёхкомнатных — от 82,9 до 175,5 кв. м, четырёхкомнатных — от 168,8 до 175,3 кв. м (в них два уровня).
Планировка 1-комнатная квартира 51,1 кв. м.
Инфраструктура комплекса
Входные группы. Холлы оформлены в сером и бежевом цветах, в отделке использованы панели под светлое дерево. В каждом подъезде оборудованы места для хранения колясок и велосипедов. Сделана навигация с указанием этажей и номеров квартир.
Почтовые ящики и колясочные места
Двор. Двор жилого комплекса закрыт от машин и посторонних. Здесь оборудованы игровые и спортивные площадки, а также ландшафтный парк с дорожками и зонами для отдыха.
Двор
Для детей. В ЖК нет собственной образовательной или другой инфраструктуры для детей, помимо площадок во дворе.
Детская площадка
Покупки и досуг. Коммерческие помещения под магазины, сервисы и услуги выделены на первом этаже.
Коммерческие помещения
Паркинг и кладовые. В комплексе есть подземный паркинг на 203 машиноместа, а также гостевая наземная парковка на 29 машиномест. В паркинг можно спуститься с жилых этажей. Есть индивидуальные кладовые помещения площадью от 2 до 7 кв. м.
Въезд в подземный паркинг
- Дом великолепен и достоин быть в числе красивых видов на открытках Петербурга благодаря своей визуальной привлекательности! Неделю назад приобрели квартиру для нашей семьи после продолжительных, в течение года, поисков жилья в новостройках Центрального, Адмиралтейского, Василеостровского и Петроградского районов. От взаимодействия с представителями застройщика только положительные эмоции. Почему этот дом: любим гулять по набережным рек и каналов, до Авроры 10 минут пешком, далее Петровская наб., причал для прогулочных катеров и вся историческая красота города: мосты, Эрмитаж; любим жить в районах с исторической застройкой и шедеврами архитектуры, в том числе индустриальной. Вид из окна на соседнюю фабрику и звуки города не смущают, любим ритм и энергию городской среды. На мой взгляд у этого уголка петроградской стороны есть перспектива дальнейшего развития и преображения, если смотреть в плане долгосрочной инвестиции и в сравнении текущих цен на квартиры в готовых и будущих новостройках этого района. Плюс удобная автотранспортная доступность до набережных Большой Невки и Невы, выезд на крупные магистрали. Во дворе свои электрозарядные станции! Дополнительный плюс для нас – это близость к Финляндскому вокзалу и возможность добраться до него на трамвае (остановка в шаговой доступности), чтобы поехать не на авто, когда захочется в Выборг. Вывод: выбирайте то, что нравится лично Вам и наслаждайтесь жизнью в прекрасном Санкт-Петербурге!
- Дом великолепен и достоин быть в числе красивых видов на открытках Петербурга благодаря своей визуальной привлекательности! Дом подходит любителям гулять по набережным Невы, до Авроры 10 минут пешком, далее Петровская наб., причал для прогулочных катеров и вся историческая красота города: мосты, Эрмитаж. Дом построен в районе с исторической застройкой и шедеврами архитектуры, в том числе индустриальной. На мой взгляд у этого уголка петроградской стороны есть перспектива дальнейшего развития и преображения, если смотреть в плане долгосрочной инвестиции. Плюс удобная автотранспортная доступность до набережных Большой Невки и Невы, выезд на крупные магистрали. Во дворе собственные зарядные станции для электромобилей.
- Плюсы: Близко к центру, удобно добираться по работе. Окна прямо в пол, много света и балконы симпатичные. Архитектура конечно интересная, красный кирпич – как в Новой Голландии постройки свежие, одним словом лофт) Минусы: Дом конечно сдали, но на территории все еще доделывают по мелочи. Чтобы ремонт начать нужно еще подождать, пока уберут технику. Непонятно что там в коммерции будет.
- Редчайший случай, когда жилой комплекс в самом центре города привлекает не только прекрасным расположением, разнообразной квартирографией, насыщенной инфраструктурой и интересными планировками, но также и общими архитектурными решениями. Отличный проект и качественная реализация! В таком доме хочется жить! Настоящее украшение улицы Чапаева и всей Петроградки
- В данной локации не так много новостроек, тихий и спокойный уголок Петроградской. От трамвайных рельс ЖК находится далековато и шум от них не так слышен. Внешне очень приятный ЖК, Еще остались в продаже хорошие планировки. И относительно новостроек Петроградской цены очень гуманные.
Транспорт
Жилой комплекс находится в Петроградском районе, рядом с Петроградской набережной большой Невки. За пять минут можно доехать до Гренадерского и Сампсониевского мостов через Большую Невку. До Литейного моста через Неву — за 5-10 минут. За 10-15 минут можно доехать на машине до Финляндского вокзала и метро «Площадь Ленина».
Пешком до метро «Площадь Ленина» и Финляндского вокзала придётся идти около получаса. За 19 минут можно дойти до метро «Горьковская», за 23-24 минуты — до станций метро «Петроградская» и «Выборгская».
Расстояние до выезда на Западный скоростной диаметр (ЗСД) — 8 км, без пробок можно доехать за 15-20 минут. До выезда на Кольцевую автодорогу путь займёт около 40-50 минут. До Московского вокзала нужно ехать 20-25 минут на машине или около 40 минут общественным транспортом. До аэропорта «Пулково» — 40-50 минут на машине, а на общественном транспорте — около 1 часа и 15 минут.
Ситуация на дорогах в районе не такая напряжённая, как во многих других районах города. Однако и здесь в утренние и вечерние часы пик могут быть заметные пробки.
О застройщике
Жилой комплекс построила компания «Балтийская коммерция». Компания работает на рынке Санкт-Петербурга с 1997 года и специализируется на строительстве, реконструкции и реставрации жилых и коммерческих объектов. В портфеле компании такие проекты, как клубный дом «Квадрия», «Аристократ» и «Форсайт».
О Петроградском районе
Петроградский район расположен на семи островах в дельте Невы. Район граничит с Приморским, Выборгским, Василеостровским и Центральным районами. По данным за 2023 год, в Петроградском районе проживает около 115,8 тыс. человек.
Петроградская набережная. Фото застройщика
История района
Петроградский район был создан и получил своё название в 1917 году, а современные границы приобрёл в 1936 году. Но история района начинается с основания Санкт-Петербурга в 1703 году, когда на Заячьем острове Петр I заложил Петропавловскую крепость. Позднее главным в районе стал Петроградский остров, рядом с которым находятся Аптекарский остров с Ботаническим садом и Петровский остров с историческим парком и стадионом.
В XX веке, после появления Троицкого моста, район плотно застраивался жилыми кварталами. Промышленные предприятия, находившиеся на южной и западной части острова, к концу XX века закрыли или вывели за пределы района.
Троицкий мост. Фото: Florstein / Wikimedia
Инфраструктура района
Образование. За 13 минут можно дойти до школы № 75 с углублённым изучением немецкого языка, за 16 минут — до школы № 80, за 20 минут — до школы № 560 (относится к Выборгскому району). В 25 минутах ходьбы расположена школа № 91. В пределах 30 минут пешком есть несколько государственных и частных детских садов (№ 32, «Подрастай-ка», № 43, «Крылья», «Плим»).
В районе расположено несколько вузов. В их числе Санкт-Петербургский государственный электротехнический университет «ЛЭТИ», Первый Санкт-Петербургский государственный медицинский университет имени академика И. П. Павлова и Санкт-Петербургский филиал Финансового университета при Правительстве Российской Федерации.
Санкт-Петербургский государственный электротехнический университет «ЛЭТИ». Фото: Alex 'Florstein' Fedorov / Wikipedia
Медицина. В 10-20 минутах ходьбы от ЖК расположены разные корпуса больницы ПСПбГМУ им. И.П. Павлова Минздрава России, в том числе поликлиническое отделение. В 2 км находится городская поликлиника № 32, в 700 метрах от ЖК — детская городская поликлиника № 19. В 1,3 км расположен НИИ гриппа имени А. А. Смородинцева. За 15 минут можно доехать на машине до Городской клинической больницы № 31.
Покупки и отдых. Магазины, сервисы и услуги будут расположены на первом этаже жилого комплекса. Небольшой торговый центр есть у метро «Чкаловская». За крупными покупками нужно будет ехать в другие районы города.
В шаговой доступности от ЖК расположены театр «Палитра» и детский театр «Смешарики». В 1,2 км от ЖК находится киноцентр «Великан Парк». На территории района также есть несколько театров и музеев, зоопарк и планетарий.
Киноцентр «Великан Парк». Фото: Валерий. К / Яндекс Карты
Спорт и прогулки. В пределах 15 минут на машине от ЖК расположены несколько фитнес-центров и спортивных студий. В районе работают семь стадионов, восемь плавательных бассейнов, два дворца спорта. Есть крытые теннисные корты, тиры, спортивные площадки, два конных центра, несколько скейт-парков и другая спортивная инфраструктура.
В 700 метрах от жилого комплекса расположен Ботанический сад Петра Великого. Также к рекреационным зонам района относятся три острова: Елагин, Каменный и Крестовский. До 1917 года здесь находились загородные имения, а позже — зоны массового отдыха. На Елагином острове расположен Центральный парк культуры и отдыха, а на Крестовском — парк Победы и новый футбольный стадион «Газпром Арена». Каменный остров, несмотря на название, довольно зелёный, в нём есть Тихий парк с аллеями для прогулок.
Ботанический сад Петра Великого. Фото: culture.ru / Яндекс Карты
Экологическая обстановка
Специалисты Ecostandard Group оценили экологическую обстановку в Петроградском районе как «оптимальную» — это одна из лучших возможных оценок в рейтинге. Отмечается, что в районе достаточно зелёных насаждений, не так много объектов с потенциально вредным воздействием. Однако здесь высокая плотность застройки, а следовательно — плотность населения и загруженность шоссе.
Недостатки района
В районе редко появляются новые объекты, потому что здесь почти не осталось места под застройку. Большая часть недвижимости в Петроградском районе была построена на рубеже XIX и XX веков и относится к старому фонду.
Другой недостаток связан с ценами на недвижимость в районе — они считаются одними из самых высоких в Санкт-Петербурге.
Ещё один минус — пробки, которые образуются на некоторых улицах в часы пик.
Будущее района
В Петроградском районе появляется новая социальная инфраструктура, строятся детские сады и школы. Продолжается освоение бывших промышленных зон. В частности, выдано разрешение на строительство элитного жилого комплекса на территории завода «Ригель», а по соседству будет построен бизнес-центр.
Резюме
«Мануфактура Джеймс Бек» — это жилой комплекс бизнес-класса в Петроградском районе Санкт-Петербурга, построенный рядом с корпусами исторической бумагопрядильной фабрики. ЖК состоит из трёх секций высотой от шести до девяти этажей и включает 330 квартир от однокомнатных до четырёхкомнатных. В комплексе есть подземный паркинг на 203 места, а также коммерческие помещения на первых этажах.
ЖК «Мануфактура Джеймс Бек»
Основное преимущество ЖК «Мануфактура Джеймс Бек» — выгодное расположение в престижном Петроградском районе с удобной транспортной доступностью и развитой социальной инфраструктурой. Рядом есть школы, детские сады, больницы и поликлиники. У ЖК запоминающаяся архитектура, приватная территория с закрытым двором, есть детские площадки.
К недостаткам ЖК можно отнести отсутствие чистовой отделки, что отложит заселение как минимум на несколько месяцев. Кроме того, собственной инфраструктуры тут практически нет, кроме двора и коммерческих помещений на первом этаже, наполнение которых зависит от арендаторов.
Предложения застройщиков в Петроградском районе
Название ЖК | Цена квартир, млн ₽ | Застройщик | Площадь, м² | Сроки сдачи | Транспортная доступность | Отделка |
Квартал Avant | AAG | от 25,1 до 120,9 | 4 кв. 2026 – 2 кв. 2027 | 6 мин. пешком до метро «Чкаловская», 12 мин. транспортом до метро «Петроградская», 16 мин. транспортом до метро «Спортивная» | черновая, без отделки | |
Grand View | Setl Group | от 39,2 до 150,7 | сдан | 19 мин. пешком до метро «Крестовский остров», 21 мин. транспортом до метро «Чкаловская», 24 мин. транспортом до метро «Спортивная» | черновая | |
Клубный дом Villa Marina | «Ростехсистема» | от 163,3 до 312,5 | 4 кв. 2024 | 18 мин. пешком до метро «Крестовский остров», 21 мин. пешком до метро «Чкаловская», 25 мин. пешком до метро «Чёрная речка» | без отделки | |
NEVA RESIDENCE | «ЛСР. Недвижимость – Северо-Запад» | от 21,6 до 116,6 | 3–4 кв. 2024 | 23 мин. пешком до метро «Чкаловская», 15 мин. транспортом до метро «Спортивная», 16 мин. транспортом до метро «Крестовский остров» | без отделки | |
«ЛСР. Недвижимость – Северо-Запад» | от 22,6 до 173 | сдан | 22 мин. пешком до метро «Крестовский остров», 21 мин. транспортом до метро «Чкаловская», 27 мин. транспортом до метро «Василеостровская» | без отделки |
Фотографии: Яндекс Недвижимость