Жилой комплекс премиум-класса JOIS расположен на северо-западе Москвы, в районе Хорошёво-Мнёвники. Он будет представлять собой четыре небоскрёба высотой от 29 до 84 этажей. В них разместятся квартиры различной площади и планировок — от студий до трёхкомнатных, а также разнообразная инфраструктура. Срок сдачи комплекса — IV квартал 2027 года.
О жилом комплексе
JOIS — высотный жилой комплекс премиум-класса, который возводится в Северо-Западном административном округе Москвы, в районе Хорошёво-Мнёвники, на 3-м Селикатном проезде. В 7 минутах ходьбы от ЖК находится станция МЦК «Хорошёво», а до делового центра «Москва-Сити» можно доехать за 10 минут.
Комплекс будет состоять из четырех башен высотой 29, 47, 57 и 84 этажа. Квартиры — от студий до трёхкомнатных — сдаются с предчистовой отделкой white box. Помимо типовых планировок, в комплексе представлены уникальные форматы: квартиры с собственными зелёными террасами, зонами для барбекю, а также двухуровневые пентхаусы с потолками до 6 м высотой.
В JOIS будет создана разнообразная инфраструктура — фитнес-центр с бассейном, лаунж-зоны, коворкинг, общественная гостиная, игровые комнаты для детей, кафе, магазины и многое другое. На территории ЖК будет разбит ландшафтный парк с всесезонным озеленением и скульптурами.
Цены
На момент написания обзора (апрель 2025 года) цены на квартиры в ЖК JOIS начинаются от 15,9 млн рублей. За эту сумму можно приобрести студию площадью 22,55 кв. м на девятом этаже 57-этажной башни Anna. Самая дорогая из представленных на сайте застройщика студий (площадью 26,98 кв. м, на 50-м этаже той же высотки) стоит 17,8 млн рублей (цена указана с учётом 15-процентной скидки).
Самая бюджетная однокомнатная квартира площадью 35,1 кв. м на 19-м этаже 47-этажной башни Leo стоит 20,4 млн рублей. Максимальная стоимость «однушки» (площадью 66,96 кв. м, на 50-м этаже башни Anna) — 33,6 млн рублей.
Стоимость двухкомнатных квартир начинается от 28,7 млн рублей (площадь 58,33 кв. м, 25-й этаж башни Leo). Самая дорогая «двушка» стоит 42,7 млн рублей (площадь 82,04 кв. м, 13-й этаж башни Anna).
- 39,71 млн ₽Москва, ЖК ДжойсХорошёво 11 мин.
- 41,34 млн ₽Москва, ЖК ДжойсХорошёво 11 мин.
- 43,47 млн ₽Москва, ЖК ДжойсХорошёво 11 мин.
- 42,86 млн ₽Москва, ЖК ДжойсХорошёво 11 мин.
- 43,71 млн ₽Москва, ЖК ДжойсХорошёво 11 мин.
- 38,47 млн ₽Москва, ЖК ДжойсХорошёво 11 мин.
- 38,1 млн ₽Москва, ЖК ДжойсХорошёво 11 мин.
- 39,05 млн ₽Москва, ЖК ДжойсХорошёво 11 мин.
- 34,2 млн ₽Москва, ЖК ДжойсХорошёво 11 мин.
- 34 млн ₽Москва, ЖК ДжойсХорошёво 11 мин.
Трёхкомнатные квартиры на момент написания обзора представлены только две: обе — на 52-м этаже башни Anna. Квартира площадью 95,56 кв. м стоит 55,6 млн рублей, а квартира площадью 107,11 кв. м предлагается за 66,08 млн рублей.
Приобрести квартиру в ЖК JOIS можно с помощью стандартной ипотеки со ставкой от 20,2% годовых и семейной ипотеки со ставкой от 2,99%. Кроме того, возможна покупка по схеме Trade-In и приобретение квартиры онлайн.
Цены на квартиры в ЖК JOIS (данные сервиса Яндекс Недвижимость)
Количество комнат | Площадь квартиры, м² | Минимальная стоимость, млн ₽ (апрель 2025) | Средняя стоимость 1 м² тыс. ₽ (март 2025) |
Студия | 22,55 | 15,9 | 706,3 |
1 | 35,1 | 20,4 | 547,6 |
2 | 57,8 | 28,25 | 498,3 |
3 | 95,56 | 55,7 | 571,3 |
Архитектура
Архитектурную концепцию жилого комплекса JOIS разработало международное бюро Genpro, известное своими проектами в США, Европе и России. В их портфолио — небоскрёб Crown Building и апарт-комплекс на Пятой авеню в Нью-Йорке, Palmira Garden Hotel & SPA в Подмосковье, концепция парка «Три вулкана» на Камчатке и другие.
Особенность архитектурной композиции ЖК JOIS — плавный переход от широких террас на нижних уровнях к верхним этажам, создающий эффект «роста» зданий из земли. Такое решение обеспечивает не только эстетическое единство с окружающим ландшафтом, но и формирует современную визуальную идентичность комплекса.
Вид сверху
Ступенчатое расположение корпусов позволяет максимально раскрыть панорамы — из окон открываются виды на исторический центр и зелёные зоны запада столицы. Фасады выполнены в лаконичном стиле и дополнены индивидуальной архитектурной подсветкой, цвет которой меняется в зависимости от силы ветра, создавая живой образ зданий.
Основной акцент сделан на оконные конструкции: они обрамлены металлическими панелями, формирующими выразительный рельеф. Энергоэффективное покрытие стёкол защищает от перегрева и сохраняет тепло, одновременно наполняя квартиры естественным светом.
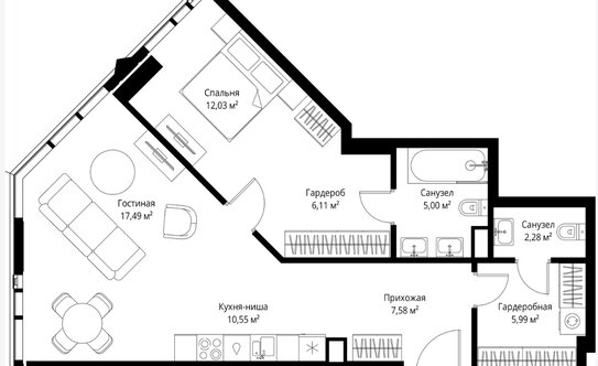
Планировки и отделка
В ЖК JOIS предлагаются квартиры с типовыми планировочными решениями и эксклюзивные варианты — с частными террасами. На всех террасах будет выполнено частичное озеленение, уход за которым сможет осуществлять обслуживающий персонал комплекса. Кроме того, в JOIS есть двухуровневые пентхаусы с полками высотой до 6 м. Большинство квартир имеет видовые характеристики, во всех сделано панорамное остекление.
Площадь студий в ЖК колеблется от 22,55 до 26,98 кв. м, однокомнатных квартир — от 35,1 до 66,96 кв. м, двухкомнатных — от 58,33 до 82,99 кв. м.
На момент написания обзора в ЖК представлены две трёхкомнатные квартиры: площадью 95,56 кв. м и площадью 107,11 кв. м
Квартиры в ЖК JOIS продаются с предчистовой отделкой MR Base (white box). В неё входят:
- грунтовка, штукатурка и шпаклёвка стен;
- стяжка пола;
- панорамное остекление;
- стальная входная дверь;
- установка силового и слаботочного щитков;
- вывод сетей интернет и IP-телефония;
- выводы ГВС/ХВС и выход под раковину и ХВС для посудомоечной машины;
- накладной потолочный светильник;
- вывод для блока кондиционера;
- напольный конвектор.
Инфраструктура комплекса
Входные группы. Дизайн интерьеров лобби в ЖК JOIS создала международная дизайнерская студия, признанная на мировом уровне и отмеченная ведущими профессиональными премиями. Пространства оформят в современном стиле с акцентом на комфорт и эстетичность. Мебель с мягкими, плавными формами органично дополнит интерьеры. Одним из визуальных акцентов станут арт-объекты, отобранные кураторами ярмарки современного искусства Cosmoscow.
Лобби продуманы с учётом приватности и комфорта: здесь предусмотрены отдельные сервисные лифты для перевозки стройматериалов и мусора, а также выделенные входы для персонала управляющей компании, курьеров и клининга. Резиденты и гости смогут воспользоваться круглосуточным консьерж-сервисом. На ресепшн всегда будут доступны питьевая вода и зонты на случай дождя.
Лобби
Двор. В жилом комплексе будет выполнено разноуровневое благоустройство территории и проведено зонирование пространств различного назначения: зоны отдыха, места для пикников, детские площадки, променад у воды. Благоустройство территории включает всесезонное озеленение и ландшафтный дизайн. Здесь появятся парящий мост со смотровой площадкой, амфитеатры и крытые павильоны для отдыха в любую погоду, а также площадка для выгула собак. Вдоль территории комплекса пройдёт пешеходный бульвар. В зимний период пешеходные дорожки будут подогреваться. Кроме того, здесь будет установлена переносная всепогодная уличная мебель.
Внутренний двор ЖК
Паркинг. В ЖК JOIS предусмотрен двухуровневый подземный паркинг с видеонаблюдением, системой распознавания номеров и пунктами для подкачки шин. Для электромобилей оборудуют зарядные станции. Спуститься в паркинг можно будет непосредственно из жилых корпусов на лифте.
Въезд в подземный паркинг
Безопасность. В жилом комплексе установят передовые системы охраны, контроля доступа, видеонаблюдения и сигнализации. Среди них:
- система автоматического водяного пожаротушения и противопожарного водопровода;
- система пожарной вентиляции;
- система контроля входа на территорию комплекса и в лобби;
- датчики пожарной и охранной сигнализации, а также контроля энергопотребления, защиты от протечек;
- система видеонаблюдения на территории комплекса и на парковке, а также в местах общего пользования.
Территория комплекса будет охраняться. Жильцы смогут связаться с охраной или консьержем через приложение, по телефону или через call-центр.
Для детей. В ЖК оборудуют частные игровые комнаты для детей разных возрастов. Кроме того, специально для подростков на первых этажах JOIS создадут многофункциональное пространство Teen’s Club, где можно будет поиграть в видеоигры на больших экранах или поучаствовать в развивающих и образовательных воркшопах.
В приватном дворе разместятся детские площадки. Для хранения колясок предусмотрена отдельная зона, из которой обеспечен прямой доступ к лобби и лифтам. Каждый резидент ЖК при необходимости сможет забронировать место для коляски. Кроме того, над каждым колясочным местом будут специальные места для хранения детских игрушек для улицы.
Игровая комната
Покупки и отдых. На момент написания обзора в непосредственной близости от ЖК JOIS имеется только один маленький магазин продуктов Mini Shop. Рядом с ним — несколько кафе и пиццерия.
На территории самого комплекса предусмотрены общественные пространства для отдыха и встреч. На входе в досуговую зону расположен лаунж, из него можно пройти на открытую территорию или в библиотеку. Кроме того, в ЖК оборудуют гостиные с мини-кухнями. Их можно будет использовать для проведения встреч, мероприятий или праздников. Предусмотрена возможность бронирования и организации питания через кейтеринг.
Лаунж-зона
- Нельзя рассматривать проект без привязки к локации. Особенно с ценником 500+ за метр. Слева автобусный парк, снизу 8 полосное Звенигородского шоссе, справа жд, сверху Хорошевское шоссе и тэц. Парковка у каждой 6 квартиры. До метро от 15 до 20 мин пешком вдоль крупных магистралей. Вокруг нет никакой инфраструктуры. Достроят целиком году в 2032, в 2035 наверное заселится.
- Дома очень красивые, давно МР групп не выводил новые проекты. Не припоминаю аналогов в Москве. Район считаю перспективным, за время строительства, окружение поменяется, обещают разбить парк для прогулок рядом, и для автомобилистов удобные выезды.
- Проект супер , локация огонь , шикарные виды , лучший застройщик , мечтаю там жить!
- ЖК «JOIS». Расположение: эта локация, где не будет старых построек. Да, времени пройдет не мало, прежде чем это место полностью преобразиться и засияет всеми яркими красками. Платная новая дорога, о которой многие пишут, вероятно пройдет с противоположной стороны от ЖК относительно жд путей, т.к. должна соединится с 3-ей Магистральной (см.карту) и есть еще ряд причин, которые указывают, что дорога будет именно там. Транспорт: хорошие развязки а/м дорог рядом с ЖК и близость остановок общ. транспорта и метро(МЦК), в т.ч. строительство новых дорог, тротуаров и скверов внутри развивающейся локации. Инфраструктура: школы и детсады, поликлиника - все есть, да может кому-то покажется далековато, но с учетом развития этой территории наверняка появятся новые дополнительные соц. объекты.
- Премиум сегмент, стройка в самом разгаре, залито 54 этажа. На очереди ещё несколько жилых построек и бизнес-центр. Своя инфраструктура и многое-многое ещё, вплоть до киберзон. Стоит присмотреться, виды замечательные.
Транспорт
ЖК JOIS находится в районе Хорошёво-Мнёвники, в 3-м Силикатном проезде. Комплекс расположен рядом с Хорошёвским шоссе, по которому можно доехать до Третьего транспортного кольца за 10 минут без учёта пробок. При благоприятной дорожной ситуации поездка до Садового кольца займёт около 25 минут, до центра города — порядка 30 минут. Станция МЦК «Хорошёво» находится в пяти минутах ходьбы от комплекса. До станций метро «Народное ополчение» и «Полежаевская» можно дойти за 15-20 минут.
О застройщике
MR Group — одна из крупнейших девелоперских компаний на российском рынке. Она основана в 2003 году и специализируется на строительстве жилой и коммерческой недвижимости. В рейтинге уверенности российских застройщиков Forbes за 2024 год MR Group занимает 12-е место, а среди крупнейших российских застройщиков бизнес-класса находится на втором месте.
В рейтинге Единого ресурса застройщиков за 2024 год компания заняла первое место в Москве по динамике развития с показателем 57 баллов. Кроме того, в 2024 году MR Group вошла в топ-10 российских застройщиков по вводу жилья.
Среди реализованных проектов MR Group — жилые комплексы City Bay, Fili City, «Савёловский Сити», Discovery, «Пресня Сити»и «Метрополия» в Москве, проект «Эко Видное» в Московской области и другие. Сейчас компания строит в Москве комплексы Slava, Symphony34, MOD, Famous и другие.
О районе Хорошёво-Мнёвники
Хорошёво-Мнёвники — спальный район в Северо-Западном административном округе Москвы. Большую часть его территории занимают зелёные зоны — особо охраняемые природные территории Серебряный бор, Карамышевская набережная, часть природно-исторического парка «Москворецкий», парки и скверы.
Массовое жилищное строительство началось здесь в 1960-е годы. Теперь часть домов вошла в программу реновации. Ранее значительную часть Хорошёво-Мнёвников занимали промзоны. Теперь большинство предприятий ликвидировано или выведено за пределы столицы, и освободившиеся территории активно застраиваются новыми жилыми комплексами, зачастую — высотными. Это приводит к постепенному увеличению плотности населения в районе и нагрузке на существующую инфраструктуру.
История района Хорошёво-Мнёвники
Люди жили на территории современного района Хорошёво-Мнёвники с древних времён: в результате археологических раскопок здесь обнаружили неолитическую стоянку III — начала II тысячелетия до нашей эры. В XIV веке эти земли, известные как Ходынский луг, принадлежали князю Дмитрию Донскому. Позднее, в XV веке, здесь находилось село Беседы — предположительно, из-за проходивших здесь переговоров с иностранными послами.
Село Хорошёво впервые упоминается в 1572 году. Предполагается, что название живописной и удобной для охоты местности дал сам Иван Грозный. С 1631 по 1861 годы село было центром дворцовой конюшенной волости, где разводили лошадей для царского двора.
Деревня Мнёвники, расположенная на левом берегу Москвы-реки, известна с XVII века. Её жители специализировались на ловле налима, что и отразилось в имени деревни: «мни» — старинное название этой рыбы.
В XIX веке в районе появились промышленные предприятия: химический завод купца Кибера в Хорошёве, бумаго-красильное производство в Терехове и ситцевая фабрика в Карамышеве. В 1930-х годах началось строительство Карамышевского гидроузла и судоходного канала, что повлияло на развитие района. С начала 1960-х годов стартовала массовая жилищная застройка, Хорошёво и Мнёвники были включены в состав Москвы.
Инфраструктура района
Образование. На территории Хорошёва-Мнёвников имеются муниципальные и частные детские сады, общеобразовательные школы №1522, №1515, №138, гимназия № 1517, лицей № 1560 «Лидер», частная Хорошёвская школа.
Кроме того, в районе расположены высшие учебные заведения, включая Московский технический университет связи и информатики, Московский государственный педагогический университет, Налоговый институт.
Медицина. На территории района работает детская поликлиника №94 с несколькими филиалами, городская поликлиника для взрослых №115, городская клиническая больница №67 имени Л. А. Ворохобова, а также частные медицинские центры «Мед-Лайт», «Ниармедик», стоматологические клиники.
Спорт. На улице Генерала Глаголева расположен физкультурно-оздоровительный комплекс «Серебряный», который включает 25-метровый бассейн, ледовую арену и залы для занятий различными видами спорта. На улице Живописная работает стадион «Октябрь», на улице Нижние Мнёвники — спорткомплекс ЦСКА.
В районе также находятся футбольная школа «Метеор», школа боевых искусств «Додзё», школа фигурного катания «Империя спорта», несколько фитнес-клубов и тренажёрных залов.
ФОК «Серебряный». Фото: Мосспортобъект
Покупки и отдых. В Хорошёво-Мнёвниках имеются супермаркеты практически всех крупных сетей, но торговых центров явно не хватает. Крупных ТРЦ в районе нет вообще. Несколько лучше обстоят дела с кафе и ресторанами, но все они концентрируются в Хорошёве, в Мнёвниках ничего подобного нет.
В районе есть крупные зелёные зоны — памятник природы регионального значения Серебряный бор, часть природно-исторического парка «Москворецкий», Карамышевская набережная реки Москвы.
Парк «Москворецкий». Фото: Daryona (Wikimedia Commons)
Экологическая обстановка
Экологию Хорошёво-Мнёвников по сравнению с другими районами Москвы можно назвать благоприятной. Этому способствует наличие обширных зелёных зон, отсутствие крупных промышленных предприятий (на месте бывших промзон теперь возводят жилые комплексы) и благоприятная роза ветров. Основной источник загрязнения воздуха — выхлопные газы от автотранспорта.
Памятник природы регионального значения Серебряный бор. Фото: Софья Тихонова (Wikimedia Commons)
Будущее района
К 2029 году на улицах Шеногина и 3-я Хорошёвская, а также в 1-м и 3-м Силикатных проездах построят пять бизнес-центров. В 3-м Силикатном проезде появится современный технопарк площадью 20 тыс. кв. м, там же проложат новые дороги и благоустроят территорию.
Район Хорошёво-Мнёвники включён в программу реновации жилищного фонда Москвы, рассчитанную до 2032 года. Один из домов по этой программе возведут на улице Маршала Жукова. Там выделен участок площадью почти 1,8 га, на котором построят здание площадью около 54 тыс. кв. м.
В районе возводят несколько крупных жилых комплексов: Emotion во 2-м Силикатном проезде, «Остров» на улице Нижние Мнёвники, «Квартал Серебряный Бор» на улице Берзарина, «Level Звенигородская» в 3-м Силикатном проезде и другие. Продолжается строительство Рублёво-Архангельской линии метро, её станции «Бульвар генерала Карбышева» и «Серебряный Бор» будут располагаться на территории района.
Недостатки района
- Хорошёво-Мнёвники активно застраивается многоэтажными жилыми комплексами, что приводит к увеличению нагрузки на инфраструктуру и сокращению свободных пространств.
- На автомагистралях нередки пробки, особенно на Звенигородском шоссе и при выезде на Третье транспортное кольцо.
- Из-за активного строительства жилья существующие образовательные учреждения перегружены, не всегда хватает мест в школах и детских садах.
- Вблизи от крупных автомагистралей и транспортных развязок (например, рядом со Звенигородским и Хорошёвским шоссе) наблюдается повышенный уровень шума и загрязнения.
Резюме
Жилой комплекс премиум-класса JOIS расположен на северо-западе Москвы, в районе Хорошёво-Мнёвники. Дорога от ЖК на автомобиле до «Москва-Сити» займёт около 10 минут, до станции МЦК «Хорошёво» можно дойти за 7 минут пешком. Комплекс состоит из четырёх башен высотой 29, 47, 57 и 84 этажа. В JOIS запроектированы квартиры различных планировок — от студий до трёхкомнатных, включая уникальные форматы — двухуровневые пентхаусы с потолками до 6 метров, квартиры с собственными террасами. Все квартиры продаются с отделкой white box.
В ЖК будет создана разнообразная инфраструктура: фитнес-центр с бассейном, лаунж-зона, коворкинг, библиотека, детские игровые комнаты, кафе и другие общественные пространства. Во дворе разобьют ландшафтный парк с всесезонным озеленением.
Завершение строительства жилого комплекса JOIS запланировано на IV квартал 2027 года.
К недостаткам можно отнести расположение ЖК в районе, где ведется активное строительство жилья. С вводом новых жилых комплексов увеличивается нагрузка на социальную инфраструктуру района: школы, детские сады, поликлиники.
Предложения застройщиков поблизости
Название ЖК | Цена квартир, млн ₽ | Застройщик | Площадь, м² | Сроки сдачи | Транспортная доступность | Отделка |
«Донстрой» | От 28,1 до 318,1 | II кв. 2025 – III кв. 2028, есть сданные | 6 минут пешком до станции метро «Терехово» | Под ключ | ||
Sydney Prime | «ГК ФСК» | От 56,6 до 134,5 | II кв. 2025 – III кв. 2027 | 16 минут транспортом до станции метро «Хорошёво» | Под ключ, white box | |
«Level Звенигородская» | «Level Group» | От 16,9 до 121,7 | I кв. 2028 | 7 минут транспортом до станции метро «Хорошёво» | Под ключ, без отделки, white box | |
«ГК ФСК» | От 29,1 до 162,2 | III кв. 2025 – III кв. 2027, есть сданные | 21 минута пешком до станции метро «Хорошёво» | Под ключ, без отделки, white box, чистовая | ||
«MYPRIORITY Мневники» | ГК «Гранель» | От 28 до 86,9 | II кв. 2028 – II кв. 2029 | 17 минут пешком до станции метро «Октябрьское поле» | Под ключ, без отделки, white box |