Подробный обзор ЖК «Город у реки» в Ростове-на-Дону со всеми плюсами и минусами
«Город у реки» — жилой комплекс комфорт-класса в Пролетарском районе Ростова-на-Дону. План застройки включает 13 жилых домов на общем стилобате, торговый центр, подземный паркинг и собственную котельную. Три дома уже введены в эксплуатацию, покупатели могут выбрать квартиры от студий до трёхкомнатных. Подробнее о ЖК «Город у реки», его плюсах и минусах — в нашем обзоре.
О жилом комплексе
«Город у реки» состоит из 13 жилых домов высотой 25-26 этажей. В 2024 году в эксплуатацию сдали три корпуса ( 7, 8 и 12). Также в проект застройки входит торговый центр с отдельным входом, подземный паркинг и котельная. В ЖК представлены квартиры площадью от 22,5 до 78 кв. м. Жильё передаётся без отделки или с предчистовой отделкой white box.
«Город у реки» — это проблемный объект. Первые дома должны были сдать в эксплуатацию в 2021 году, затем срок отодвинули на 2022 год, но в итоге ввели только в 2024 году. При этом за годы изменились параметры ЖК: жилья стало больше, а от части запланированной инфраструктуры застройщик отказался. В 2024 году власти Ростова-на-Дону поднимали вопрос о том, чтобы запретить компании запуск новых проектов в городе. Также застройщику на время запрещали принимать взносы от новых дольщиков.
Цены
По данным застройщика на начало марта 2025 года, цены на жильё в ЖК «Город у реки» начинаются от 2,9 млн рублей. Это стоимость квартиры-студии площадью 22,5 кв. м. Самый дорогой вариант — трёхкомнатная квартира общей площадью 78 кв. м за 8,6 млн рублей. Квадратный метр в ЖК, по данным сервиса Яндекс Недвижимость за февраль, стоит трёхкомнатных квартирах в среднем 126 тыс. рублей, а в студиях — 146,5 тыс. рублей. Цена машиноместа в подземном паркинге — от 800 тыс. рублей.
Цены на квартиры в ЖК «Город у реки» (по данным застройщика и сервиса Яндекс Недвижимость)
Количество комнат | Площадь, м² | Минимальная стоимость, млн ₽ (март 2025) | Средняя цена 1 кв. м, тыс. ₽ (февраль 2025) |
Студии | От 22,5 | 2,9 | 146,5 |
1 | От 32,2 | 3,9 | 135,1 |
2 | От 46 | 6,3 | 138,5 |
3 | От 62,6 | 6,3 | 126 |
Сравнить «Город у реки» можно с ЖК «Берег Дона» — проектом комфорт-класса, строящимся в 200 метрах. В этом комплексе минимальная стоимость квартиры — 3 млн рублей за студию площадью 24,4 кв. м. Самая дорогая квартира — «трёшка» площадью 74,2 кв. м за 8,2 млн рублей. Этот ЖК планируют сдать в эксплуатацию в третьем квартале 2028 года.
В ЖК бизнес-класса «Локация 9-11» (700 метров от ЖК «Город у реки») цены на жильё начинаются от 5,5 млн рублей — это стоимость однокомнатной квартиры общей площадью 36,5 кв. м. Самая дорогая квартира имеет общую площадь 73,7 кв. м и стоит 11,4 млн рублей. Запланированный срок сдачи этого ЖК в эксплуатацию — IV квартал 2026 года.
Архитектура
ЖК включает 13 монолитных домов высотой 25-26 этажей. Здания строятся на общем стилобате. Фасады оформлены в нейтральных цветах, от светло-жёлтого до тёмно-коричневого.
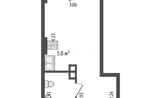
Планировки и отделка
В ЖК спроектированы квартиры от студий до трёхкомнатных общей площадью от 22,5 до 78 км. м. Жильё передаётся покупателям без отделки или с предчистовой отделкой white box. Последняя включает монтаж электропроводки, оштукатуривание стен, установку металлической входной двери. Отделка — это дополнительная опция, она оплачивается отдельно. Например, отделка студии площадью 28 кв. м стоит 364 тыс. рублей.
Отделка white box
Во всех квартирах есть лоджии, можно подобрать вариант с гардеробной или с нишей под хранение в коридоре. Минус планировок — один совмещённый санузел в двухкомнатных и даже в некоторых трёхкомнатных квартирах. В просторных «трёшках» (от 70 кв. м) есть дополнительный санузел. Кроме того, в ЖК нет распашных квартир с окнами на две противоположные стороны света. Отсутствуют также европланировки (с кухнями-гостиными), но в целом кухни в ЖК довольно просторные — 12-14 кв. м.
Вариант планировки студии 24 кв.м.
Инфраструктура комплекса
Входные группы. Входы в подъезды сделаны не на уровне земли, к ним ведёт небольшая ступенька — это не очень удобно для жителей с детьми в колясках и маломобильных граждан. У дверей в подъезд большая площадь остекления, по современным стандартами. В холлах выполнена отделка в нейтральных светлых цветах.
Вход в подъезд
Двор. Двор размещается на стилобате. Застройщик оборудовал игровые площадки, места для тренировок на открытом воздухе и беседки для гриля. Рядом с подъездами есть парковочные места для велосипедов и скамейки для отдыха.
Детские площадки
Для детей. В ЖК изначально был запланирован детский сад, но постепенно его убрали из проекта застройки.
Покупки. В комплексе планируют открыть торговый центр с отдельным входом. Здесь разместятся магазины, кафе, различные сервисы и услуги.
Паркинг. Есть подземный паркинг, где можно купить машиноместо, а также гостевые парковочные места на придомовой территории.
- Здравствуйте, ключи обещали дать 30 июня(в договоре этот срок прописан)уже август,каждый мой звонок ,говорят получите на следующей неделе, клининг ждут, очень разочарована и что с этим теперь делать не знаю 🤦♀️
- Плохие дороги подъезда к ЖК , узкие крартиры. Мало детских площадок , нет детского сада
- ДОБРЫЙ день дамые и господа. Начну я сдача жк была 30 декабря 2021 год. Идёт 10 февраля 2024 год. Да друзья . Сроки сдачи переносили трижды. Последние Сроки выдачи ключей были месяцы Апрель - Май 2024 года. Но тут сроки снова переносят до конца 2024 и выдача ключей в 2025 году. Теперь предлогают отказаться от неустойки и выбрать парковку. Помните эта парковка дешевле рядом! Застройщик освобождает себя от каких либо выплат и претензий в с вой адрес, и подписав вы можете принять квартиру без притензиий. Звонили неоднократно в порт Риф. Там и отвечают если даже начнут переезжать это 2 года пройдёт. И инфраструктура куда должен переехать порт не готова. Рядом с инфраструктурой и облагоустройством одни развалены из окон видны. Ранее застройщик обещал снести этот уродливый элеватор. Но так и не снёс его ( Есть информация, что тупа это дорогое удовольствие, и в ручную разбирать. А не как планировал МСК- Капитал.) и в итоге там делают Парк. Вопрос зачем эта разруха, где обязательно будет бегать ваш ребёнок и лазить. Это опасно ⛔. Вспомните детство своё и как это опасно было. Люди покупали квартиру с видом на Дон а не развалены. И цена была дороже на 700000 - 2.. Это Порт потенциальная опасность проживающих рядом людей. Вы скажите там и так люди всю жизнь и нормально живут. Порт строился ещё в СССР. И застройки такой не было тогда. В порту разгружают уголь, химию, пескоструят красят. Это экологически опасная работа и может вызвать рак. Остаётся вопрос почему так затягивают сроки передачи ключей. Я предполагаю что сроки тянут из за порта. И пока порт не закроют мы ключи не увидим. Если застройщик знал изначально это. Так зачем он начал строить!?. Порт мешает вводу в эксплуатацию наших 2 литров 7 и 8. Обещали по проекту детский садик. У них в офисе досехпор макет садика стоит. Но увы уже садика не будет строится. А зачем нам близость инфраструктуры езжайте к соседям Арасный Аксай или куда дальше это не проблема говорят. И за школу тоже самое. Реновация. Да прийдя в. будку - офис мск, на 27 линии. Сотрудники знатно хаят, обсираю ЮСИ. Начинается с того что газ очень опасен и газ можно максимум до 9 этажа тянуть и он не доходит выше, и и ресиверы которые поднимают давления могут сломаться. Давайте уберём нормы 60 тых годов. Сейчас 21 век на дворе и нормы другие. Да и они говорят в офисе будке, что оказывается Юси незаконно газ установили. Ребят вы серьёзно !?. Газ как минимум дешевле. А если свет выключат. Сидеть при свечах 🕯️ и еду греть на костре !? Я бы предложил вам проект от газ прома. Установка газа за счёт Газпрома бесплатно. А да котёл у них ломается часто и утечки. Поверьте в домах таких куча датчиков ⚠️⚠️⚠️ и это безопасно. Живу с газам всю жизнь и мои друзья и родственники. Не надо наговаривать. Мой совет. Если вы хотите жить в руинах с видом на развалены. То рекомендую вам брать жильё там. П.С. Просто они тянут время пока порт закроется и переедет, иначе то вопросы будут у С К. Уважаемые МСК почему вы не хотите собрать всех дольщиков в Конферент зале или ином мероприятии и провести Директору МСК Капитал собрание. Почему ваше отношение в ваших чатах Город у реки Ростов на Дону телеграм каналах идёт идеологическое разобщения дольщиков и вы баните нас в телеграм каналов. А агресеров нет. У нас 21 век на дворе и свобода. А затычек своих там уберите. Ещё хочу сказать про просмотры жк. 12 литер водят на просмотр 2 этаж. Ребят элементарно даже освещения нет. На вопрос почему они не хотят показывать 7 и 8 литер. Говорят там у них идут работы ранее говорили что там стройка и краны. Ок краны там нет, что мешает вам показать дольщикам их квартиры. Провести во внутрь домов и квартир. Или вам есть что скрывать от дольщиков!? Или проблемы с колоннами в которых стяжки стоят !? Да я и моя супруга являются дольщиками участия строительства 7. И сравнения идут всегда с соседом. В чатах находятся такие которые обвиняют нас виновными в задержки сроков. Такие прям, а я не пробовала на неустойку пусть лучше достроят. Или я подписала договор о переносе сроков. И самое смешное я продала квартиру по переуступке. Ну смешно ребят. Да если ты читаешь это СОСЕД. НАЙДИ НАС. Город у Реки соседи Pro . Присоединяйся к своим. ВСЕМ ДОБРА И ТЕРПЕНИЯ КТО СТОЛКНУЛСЯ С МСК.
- Купили студию в жилом комплексе «Город у реки». Эта покупка стала для нашего студента отличным решением! Выбрали вариант с панорамными окнами и видом на Дон — и ни разу не пожалели. Плюсы: ✔ Вид на реку— это главное преимущество. Просыпаться с видом на воду и закаты над Доном бесценно. Окна большие, света много, ощущение простора. ✔ Расположение— тихий район, но при этом недалеко от центра. Набережная рядом, есть где погулять. Машину ставить удобно, транспортная доступность нормальная. ✔ Инфраструктура— во дворе есть детская площадка, магазины в шаговой доступности. Для жизни всё необходимое есть. Если хотите уютную студию с красивым видом и без лишнего шума — «Город у реки» отличный вариант! Рекомендую.
- Приобрели с женой квартиру в ЖК "Город у реки". Побывав в этом жилом комплексе, нам понравилось его месторасположение. Это близость к центру, рядом находится "Зелёный остров", в пешей доступности набережная реки Дон, а также учебные и медицинские заведения. Рядом находятся остановки транспорта в любую точку города. Территория ЖК благоустроена, есть спортивные и детские площадки. Достаточное количество парковочных мест, есть подземный паркинг. С квартиры открывается красивый вид на левый берег Дона и стадион "Форте Арена". Очень довольны покупкой квартиры в ЖК "Город у реки"!!! Уррра, мы её собственники!!!
Транспорт
Комплекс «Город у реки» расположен на улице 23-я линия микрорайона Нахичевань. До центра города путь отсюда на машине займёт 20 минут, общественным транспортом — около получаса. В 10-20 минутах пешком от ЖК есть несколько остановок, через которые проходят маршруты автобусов, троллейбуса и трамвая. До ж/д вокзала «Ростов-Главный» — 25-30 минут езды, а на общественном транспорте — примерно на десять минут дольше. До аэропорта на машине добираться — 45 минут.
О застройщике
ЖК строит «МСК-Капитал» — дочернее предприятие «Московской строительной компании». Из-за задержек сроков строительства суд на время запрещал застройщику принимать деньги от новых дольщиков. Также рассматривался вопрос о возможном банкротстве компании или приостановке её деятельности на год.
«Московская строительная компания» была основана в 2011 году. Девелопер специализируется на строительстве жилья в Ростовской области и Краснодарском крае. Среди проектов группы в Ростове-на-Дону — ЖК «Легенда Ростова», «Донской Арбат» и Royal Towers. В начале марта 2025 года «Московская строительная компания» входит в топ-5 застройщиков Ростовской области по объёму текущего строительства.
О районе Пролетарский и микрорайоне Нахичевань
ЖК «Город у реки» строится в микрорайоне Нахичевань Пролетарского района. Пролетарский — один из восьми районов Ростова-на-Дону, здесь проживает около 121 тыс. человек.
Церковь Сурб Арутюн, микрорайон Нахичевань. Фото: GennadyL (Wikimedia)
История района
Пролетарский район Ростова-на-Дону появился в 1929 году, когда город объединился с Нахичеванью-на-Дону — армянским поселением, основанным в 1779 году переселенцами из Крыма. Екатерина II разрешила им создать свой город рядом с крепостью Святого Димитрия Ростовского, и Нахичевань быстро превратилась в промышленный центр. Здесь работали десятки фабрик, развивалась торговля, открывались учебные заведения.
Долгое время Ростов и Нахичевань существовали отдельно, их граница проходила по Театральной площади. В 1928 году границу убрали, и через год Нахичевань стала частью города, образовав Пролетарский район. В 1961 году к району присоединили территорию бывшей станицы Александровской. В Пролетарском районе сохранились особняки ростовской знати, здание Нахичеванского драматического театра и другие памятники архитектуры.
Здание Нахичеванского городского театра. Фото: Rost.galis (Wikimedia)
Инфраструктура района
Образование. За 13 минут от ЖК «Город у реки» можно дойти до школы №26 и лицея №1, за 18 минут — до школы №14. В шести минутах ходьбы находится лицей ЮФУ. В пределах 10-20 минут пешком есть несколько детских садов (№59, №152, №102). Также в пешей доступности расположено несколько колледжей: водного транспорта, автотранспортный, колледж культуры.
Медицина. В радиусе 1 км от ЖК есть несколько аптек, в том числе сетевых. До детского и взрослого отделений поликлиники №1, поликлиники №2, городской больницы №6 — около 17-20 минут пешком. До детской городской больницы №1 — девять минут на машине, можно также дойти за полчаса. До комплекса зданий городской больницы №1 им. Семашко путь на машине займёт около 25 минут.
Покупки и отдых. Ближайший продуктовый магазин расположен в 150 метрах от комплекса, чуть дальше (в 500-800 метрах) работают магазины сетей «Пятёрочка», «Чижик» и «Магнит». За 16 минут можно дойти до торгового центра «Площадь», а за 12-15 минут — доехать на машине до ТЦ «Прогресс» и «Гипер Лента». До крупных ТРЦ «РИО» и «Горизонт» нужно ехать на машине примерно 25-30 минут.
В районе есть несколько парков и скверов. За 11-14 минут можно доехать до парка им. Октябрьской революции, театра драмы им. Горького, Ростовского государственного музыкального театра и детского парка им. Черевичкина. До Ростовского-на-Дону Академического молодёжного театра и музея русско-армянской дружбы — 13 минут пешком.
Ростовский академический театр драмы имени М. Горького. Фото: pavljenko (Wikimedia)
Спорт. В предалах 1,5 км от ЖК расположены фитнес-центры «Ладное место» и «Арбат-Фитнес», в 2,5 км находится фитнес-центр Mango Gym. До сетевого фитнес-центра World Class Deluxe — 17 минут на машине, до World Class Exclusive — 20 минут, до DDX Fitness — 29 минут, до X-Fit — около 40 минут.
Экологическая обстановка
В Пролетарском районе работают крупные предприятия, включая «Донскую кондитерскую фабрику», «Ростовскую игрушку», «Красный Аксай» и завод «Ростсельмаш». Несмотря на развитую промышленность, район остается одним из самых экологически благополучных в Ростове благодаря близости Дона и обилию зеленых зон. Здесь есть несколько парков и скверов, среди них парк имени Октябрьской революции, парк Островского, детский парк имени Черевичкина и сквер Фрунзе.
Детский парк имени Вити Черевичкина. Фото: Липунов Г.А. (Wikipedia)
Недостатки района
В районе сохранилось много промышленных зданий, и у ЖК неоднородное окружение. Набережная Дона проходит в 120 метрах от ЖК «Город у реки», здесь есть несколько причалов для небольших судов. В то же время от берега ЖК отделяет грузовая железная дорога, ведущая к Ростовскому порту, который находится в 1,5 км. Рядом с ЖК сохранился элеватор мукомольного завода, здание завода шампанских вин, комплекс зданий нахичеванского водопровода.
Будущее района
В соседнем с Нахичеванью микрорайоном Красный Аксай может появиться новая станция электрички. Это часть проекта по улучшению транспортной доступности: жителям предложат пересадочные билеты, чтобы было удобно комбинировать автобус и электричку, а также скорректируют расписание с учётом спроса. Также в Пролетарском районе планируют построить новый водный комплекс с двумя бассейнами.
Резюме
ЖК комфорт-класса «Город у реки» расположен в Пролетарском районе Ростова-на-Дону. Комплекс состоит из 13 монолитных домов высотой 25–26 этажей, объединённых общим стилобатом. В комплексе предусмотрены подземный паркинг, торговый центр и котельная. Покупателям представлены квартиры от студий до трёхкомнатных площадью 22,5–78 кв. м. Застройщик предлагает жильё без отделки или с предчистовой отделкой white box.
К преимуществам ЖК относится развитая инфраструктура района. Поблизости есть школы, детские сады, магазины и медицинские учреждения. В пешей доступности расположены остановки общественного транспорта, а до центра города можно добраться за 20–30 минут. Также плюсом ЖК можно назвать наличие подземного паркинга и собственной котельной.
Главный минус заключается в том, что проект столкнулся с серьёзными задержками строительства: первые дома ввели в эксплуатацию только в 2024 году вместо запланированного 2021 года. Из набора инфраструктуры комплекса исчез детский сад. Наконец, в ЖК нет популярных планировок квартир — «распашонок» и евроформата. Ещё один минус — неоднородное окружение: рядом есть промышленные предприятия и грузовая железная дорога. На месте бывшего мукомольного комбината планировали создать современный парк, но этот проект пока так и не был реализован.
Предложения застройщиков в районе
Название ЖК | Цена квартир, млн ₽ | Застройщик | Площадь, м² | Сроки сдачи | Транспортная доступность | Отделка |
ЖК «Берег Дона» | «Московская Строительная Компания» | от 24,3 до 74,5 | III кв. 2028 | 24 мин. на машине до ж/д станции «Ростов-Главный», 46 мин. на машине до ж/д станции «Ростов-Западный» | без отделки, white box | |
ЖК «Локация 9-11» | СЗ «Магнум» | от 36,5 до 73,7 | IV кв. 2026 | 23 мин. на машине до ж/д станции «Ростов-Главный», 44 мин. на машине до ж/д станции «Ростов-Западный» | без отделки | |
«ЮгСпецСтрой» | от 31,8 до 186,2 | сдан | 14 мин. на машине до ж/д станции «Ростов-Главный», 30 мин. на машине до ж/д станции «Ростов-Западный» | без отделки, white box, под ключ | ||
«ЮгСтройИнвест» | от 28,5 до 96,8 | II–III кв. 2028 | 25 мин. на машине до ж/д станции «Ростов-Главный», 31 мин. на машине до ж/д станции «Ростов-Западный» | white box | ||
ЖК «Текучёв» | «СМУ №1» | от 17,9 до 64,8 | II кв. 2026 | 13 мин. на машине до ж/д станции «Ростов-Главный», 23 мин. на машине до ж/д станции «Ростов-Западный» | white box |