Подробный обзор ЖК «Событие» в Краснодаре со всеми плюсами и минусами
Жилой комплекс комфорт-класса «Событие» строится в Краснодаре, недалеко от улицы Западный Обход. В ЖК будет четыре девятиэтажных корпуса и благоустроенная территория. В комплексе представлены одно- и двухкомнатные квартиры с чистовой отделкой от застройщика. Подробности — в нашем обзоре.
О жилом комплексе
ЖК «Событие» строится в Прикубанском внутригородском округе Краснодара, на улице Крылатской. Рядом проходит улица Западный Обход. До центра города отсюда можно доехать на машине примерно за 45 минут. Комплекс расположен в современном районе с развитой коммерческой и социальной инфраструктурой, рядом есть образовательные учреждения и магазины.
В ЖК запланированы детские и спортивные площадки, места для отдыха, прогулочные зоны, парковка. На территории будет работать видеонаблюдение. Застройщик — компания «Стройград» — планирует окончательно сдать комплекс в III квартале 2025 года.
Цены
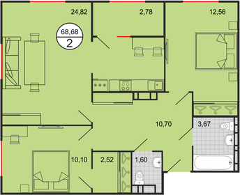
В комплексе «Событие» представлены квартиры с одной и двумя комнатами. В таблице ниже указаны планировки, которые есть в продаже в данный момент, и актуальные цены.
По данным Яндекс Недвижимости на июль 2025 года, средняя стоимость квадратного метра в однокомнатных квартирах составляет 126,9 тыс. рублей, а в двухкомнатных — 116 тыс. рублей.
Архитектура
ЖК «Событие» строится по кирпично-монолитной технологии. Он состоит из четырёх девятиэтажных корпусов. Фасады зданий будут светлыми с яркими вертикальными цветовыми акцентами. В оформлении фасадов застройщик использует белую и бирюзовую штукатурку, а также облицовочный кирпич коричневого цвета. В квартирах предусмотрено витражное остекление балконов. Высота потолков — от 2,9 м.
Планировки и отделка
По данным Яндекс Недвижимости на июль 2025 года, в комплексе есть два типа квартир:
- однокомнатные площадью от 34,51 до 46,82 кв. м. В них совмещённые санузлы, балконы, просторные кухни;
- двухкомнатные площадью от 67,8 до 68,68 кв. м. В них по две изолированные комнаты, раздельные санузлы, балконы, кухни-гостиные.
Жильё продаётся с чистовой отделкой. Во всех квартирах будет индивидуальное (автономное) отопление, там установят двухконтурные газовые котлы. Кроме того, предусмотрены тёплые полы в санузлах, кухнях и коридорах.
Инфраструктура комплекса
Входные группы. Входные группы будут расположены чуть выше уровня земли, в подъезды будут вести небольшие ступени. Двери будут прозрачными. Во всех корпусах запланирована дизайнерская отделка холлов, там также разместятся комнаты для хранения колясок и велосипедов.
Входные группы
Двор. Территория будет благоустроена и озеленена. Во дворах оборудуют места для отдыха, детские и спортивные площадки. На территории запланировано видеонаблюдение.
Внутренний двор
Покупки и отдых. Жилой комплекс строится в районе с развитой инфраструктурой. В пешей доступности работают супермаркеты, магазины, кофейни, пекарни, закусочные, аптеки, салоны красоты и пр. На территории комплекса застройщик запланировал прогулочные зоны.
Для детей. Во дворах будут оборудованы игровые площадки для детей с песочницами, горками, качелями. Рядом с ЖК есть несколько детских садов и школ.
Детские площадки
Паркинг и кладовые. В комплексе запланирована открытая наземная парковка.
Открытая парковка
- Были в поиске квартиры в г. Краснодар, позвонил менеджер и предложили рассмотреть этот комплекс. Сразу заинтересовало расположение, очень хороший район, много инфраструктуры, школа и детский сад прям рядом с домом. Договорились о встрече, сам комплекс понравился вариантами планировок, качеством строительства и грамотностью специалистов отдела продаж, которые помогали на всех этапах сделки!
- Очень хороший семейный Жилой комплекс. Будет вся инфраструктура для комфортного проживания. Детский сад, школа. Квартиры в ЖК просторные и светлые. В скором времени будет проложена трамвайная ветка и данный район станет ещё интересней.
- Этот комплекс отличается богатой инфраструктурой. Всё находится рядом. В округе есть несколько школ и детских садов, а также множество магазинов и других коммерческих объектов. Я бы назвал это место потребительским раем.
- Участвуем в строительстве данного комплекса и могу сказать, что застройщик использует качественные строительные материалы. Довольно таки понравились планировки квартир.
- Очень хороший застройщик Строит качественно Будет индивидуальное отопление Это для Краснодара очень редко Купила квартиру Очень довольна
Транспорт
Жилой комплекс «Событие» строится на окраине Краснодара, на улице Крылатской, рядом с улицей Западный Обход. От комплекса до остановки общественного транспорта «ССК Сокол» несколько минут ходьбы. В 2,5 км проходит Ростовское шоссе, а в 22 км — Южный обход и трасса А-146. В 20 км от ЖК находятся железнодорожный вокзал Краснодар-1 и автовокзал. До них можно добраться на машине за 45-50 минут. До центра города — 40 минут езды. Аэропорт Краснодара расположен в 32 км от жилого комплекса.
О застройщике
Застройщик ЖК «Событие» — группа компаний «Стройград», которая работает на рынке недвижимости с 2006 года. У «Стройграда» также есть жилые комплексы в Ставрополе («Респект», по проезду Чапаевский, «Семейный квартал») и Ростове-на-Дону (ЖК на Школьной).
О районе
Жилой комплекс «Событие» строится в Прикубанском внутригородском округе. Это самый большой из четырёх округов Краснодара, его площадь — 474 кв. км. Население округа составляет более 720 тыс. человек. В этом округе работает около 30 крупных и средних промышленных предприятий, а также более 65% всех сельскохозяйственных предприятий города. В округе расположены стадион «Краснодар» и одноимённым парк. Прикубанский округ активно развивается, здесь ведётся строительство новых кварталов и микрорайонов. ЖК «Событие» окружён современными жилыми комплексами, часть из них ещё продолжают строиться.
Стадион «Краснодар». Фото: I13Robin (Wikimedia)
История района
В 1975 году в Краснодаре сформировали Прикубанский район. В 1978 году в него вошли некоторые территории ближайших районов, в том числе станица Елизаветинская и посёлок Калинино. В 1994 году район преобразовали в Прикубанский административный округ. А в 2004 году он стал Прикубанским внутригородским округом.
Инфраструктура района
Образование. Рядом с ЖК «Событие» расположены детские сады и общеобразовательные школы. Ближе всего находится детский сад № 221, до него можно дойти пешком примерно за 15 минут. До детского сада № 188 — 25 минут ходьбы. Средняя общеобразовательная школа № 106 находится в 20 минутах ходьбы, школа № 45 — в 22 минутах ходьбы. На территории Прикубанского округа есть несколько вузов — Краснодарский университет культуры и искусств, Кубанский государственный аграрный университет, Краснодарский университет МВД РФ, Краснодарское высшее военное авиационное училище им. Серова.
Средняя общеобразовательная школа № 106. Фото: страница школы Вконтакте
Медицина. От жилого комплекса «Событие» до взрослых городских поликлиник № 12 и № 14 можно доехать на машине примерно за 15 минут. Детская поликлиника № 6 работает в 10 минутах езды. До краевой клинической больницы № 2 для взрослых и детской городской больницы № 1 — 15 минут езды на машине.
Детская городская больница № 1. Фото: Страница больницы Вконтакте
Покупки и отдых. ЖК «Событие» строится в районе с развитой коммерческой инфраструктурой. Рядом с жилым комплексом расположены сетевые супермаркеты «Магнит» и «Пятёрочка», продуктовые и хозяйственные магазины, пекарни и кофейни, закусочные и бары, заведения бытовых услуг, аптеки, салоны красоты. Примерно за полчаса можно дойти до торговых центров «Западный» и West Mall.
ТЦ «Западный». Фото: страница ТЦ Вконтакте
Прогуляться жители ЖК «Событие» могут в Ботаническом саду им. И.С. Косенко, до которого около 15 минут езды на машине, а также в Чистяковской роще, расположенная в 20 минутах езды.
Ботанический сад им. И.С. Косенко. Фото: Андрей Викторович Бутко (Wikimedia)
Спорт. В пешей доступности от ЖК работают спортивный клуб «Небеса», фитнес-клуб Sunfitino, спортивный центр «Разумный спорт», студия йоги «Лёгкий полёт», бассейн «Облака Сити», бассейн «Бассята», студия стретчинга Nuga.
Экологическая обстановка
Рядом с жилым комплексом «Событие» нет парков и больших природных зон. В Прикубанском округе работают промышленные предприятия — машиностроительные, электроизмерительные, радиоизмерительные и пищевые. Дороги в округе загружены автотранспортом. В Краснодаре также есть проблемы с нелегальными мусорными свалками, которые наносят вред окружающей среде. Как сообщает Росприроднадзор, больше всего подобных свалок именно в Прикубанском округе.
Будущее района
В Прикубанском округе активно строится новое жильё. Например, здесь планируется возвести новый микрорайон, который сможет принять около 220 тыс. жителей. В рамках проекта будут построены жилые дома, пять детских садов и две школы, поликлиники, библиотека, храм, а также подземные автостоянки.
Кроме того, в округе выделили 100 гектаров для комплексного освоения. Здесь построят жилые дома и социальные объекты: две школы на 1725 мест и семь детских садов на 230-350 мест.
Недостатки района
- Застройщики часто не укладываются в обещанные сроки при строительстве детских садов и школ. При этом возведение новых многоэтажных жилых комплексов значительно увеличивает нагрузку на инфраструктуру города.
- В часы пик на дорогах часто возникают пробки.
- В окрестностях жилого комплекса «Событие» недостаточно мест для прогулок, природных зон и парков.
Резюме
ЖК комфорт-класса «Событие» строится в Прикубанском внутригородском округе в Краснодаре. В его составе запланированы четыре жилых корпуса, детские и спортивные площадки, места для отдыха, прогулочные зоны, парковка. Комплекс расположен в современном районе с развитой коммерческой и социальной инфраструктурой. До центра Краснодара — 45 минут езды на машине. В продаже есть одно- и двухкомнатные квартиры с чистовой отделкой. Застройщик планирует сдать жилой комплекс в III квартале 2025 года. К минусам комплекса можно отнести отсутствие поблизости парков — до мест, где можно погулять на природе, придётся ехать на машине или автобусе.
Предложения застройщиков поблизости
Название ЖК | Цена квартир, млн ₽ | Застройщик | Площадь, м² | Сроки сдачи | Транспортная доступность | Отделка |
«Лето» | «Дарстрой» | от 23,2 до 80,9 | III кв. 2025 – II кв. 2026, есть сданные | 56 мин на транспорте до ж/д вокзала Краснодар-1 | Без отделки | |
«ФЛАГМАН» | от 33 до 88,4 | IV кв. 2025 – IV кв. 2026, есть сданные | 1 ч. 13 мин. на транспорте до ж/д вокзала Краснодар-1 | Предчистовая | ||
DOGMA | от 19,8 до 228,4 | I–IV кв. 2026, есть сданные | 1 ч. 13 мин. на транспорте до ж/д вокзала Краснодар-1 | Под ключ | ||
«Зелёный театр» | «Европея» | от 22,9 до 60,3 | сдан | 54 мин на транспорте до ж/д вокзала Краснодар-1 | Под ключ | |
«Станиславский» | «Континент» | от 22,3 до 154,7 | III кв. 2026 - III кв. 2027 | 1 ч. на транспорте до ж/д вокзала Краснодар-1 | Предчистовая |