Подробный обзор квартала-парка «Каменные Палатки» в Екатеринбурге со всеми плюсами и минусами
«Каменные Палатки» — жилой комплекс класса «комфорт+», расположенный рядом с одноимённым лесопарком на востоке Екатеринбурга. Большая часть корпусов уже сдана и заселена, закончить проект планируют во II-IV кварталах 2025 года.
В ЖК продаются разные квартиры — от однокомнатных до трёхкомнатных. Цены на жильё стартуют от 6 млн рублей. Подробнее о плюсах и минусах ЖК «Каменные Палатки» — в нашем обзоре.
О жилом комплексе
«Каменные Палатки» — комплекс с собственной инфраструктурой: детским садом, спортзалом, коворкингом. Сразу за домами ЖК начинается лесопарк «Каменные палатки». До озера Шарташ можно дойти за 15 минут. В комплексе есть квартиры с видом на лес и озеро. В пешей доступности расположены гипермаркеты, школы, детские сады, поликлиники, остановки, УрФУ и другие учебные заведения. До центра города можно доехать за 20-30 минут.
Цены
По данным сайта застройщика «Гринвич» на март 2025 года, самая доступная квартира в комплексе — однокомнатная площадью 37 кв.м., она стоит 6 млн рублей. Самая дорогая квартира в продаже — трёхкомнатная евроформата площадью 82,7 кв.м. Её стоимость — 13,2 млн рублей.
По данным сервиса Яндекс Недвижимость, средняя стоимость квадратного метра в самых маленьких квартирах («однушках»), составляет 165,8 тыс. рублей, а в самых больших («трёшках») — 150,6 тыс. рублей.
Цены на квартиры в ЖК «Каменные Палатки» (по данным сервиса Яндекс Недвижимость и сайта застройщика)
Количество комнат | Площадь, м² | Минимальная стоимость, млн ₽ (март 2025) | Средняя цена за 1 м², тыс. ₽ (февраль 2024) |
1 | от 37 | 6 | 165,9 |
2 | от 53 | 8,48 | 158,8 |
3 | от 76 | 10,8 | 158,8 |
В районе строится ещё один комплекс комфорт-класса — «Гранит», с которым можно сравнить ЖК «Каменные Палатки». В этом комплексе цены на жильё сопоставимые — минимальная стоимость однокомнатных квартир 6,12 млн рублей. Средняя стоимость метра в «однушках» — от 141,1 тыс. рублей, в «трёшках» — до 121,8 тыс. рублей.
Архитектура
«Каменные палатки» — это квартал, состоящий из домов переменной этажности (от 17 до 31 этажа). Здания строятся по монолитной технологии.
Четвертая очередь ЖК
Фасады имеют асимметричную отделку с акцентами в виде выступающих балконов и эркеров. Цветовая гамма — бело-коричневая. На балконах и лоджиях предусмотрено место для установки наружных блоков кондиционеров.
Планировки и отделка
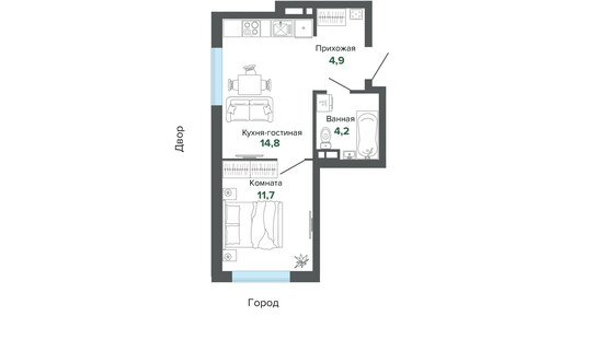
В марте 2025 года в комплексе «Каменные палатки» представлены квартиры от однокомнатных до трёхкомнатных. Есть стандартные и европланировки с кухней-гостиной. Можно подобрать вариант с мастер-спальней, нишей под шкаф-купе, гардеробной, дополнительным санузлом, окнами на две стороны дома, двумя балконами, эркером, видом на лесопарк и озеро, трехметровыми потолками.
В 13 секции отделку квартиры можно выбрать:
- предчистовая white box — выровненные оштукатуренные стены и финишная стяжка на полу;
- чистовая с предчистовой отделкой санузла — обои, ламинат, межкомнатные двери (ремонт санузла проводится самостоятельно);
- чистовая отделка с санузлом — обои, ламинат, межкомнатные двери, в с/у — керамогранит на стенах и полу, сантехника, меблировка пространства в скандинавском стиле.
Квартиры в 16 секции сдаются сразу с чистовой отделкой:
- обои под покраску;
- раковина и унитаз;
- износостойкий ламинат 32 класса;
- окна с двойным энергосберегающим стеклопакетом.
Чистовая отделка
В домах предусмотрена трёхступенчатая система очистки воды. Коммунальные услуги можно оплачивать в специальном приложении.
Инфраструктура комплекса
Входные группы. Входы в дома — прозрачные и безбарьерные. В дизайнерских холлах сданных корпусов установлена мягкая мебель, горшки с растениями. Также на первых этажах предусмотрены колясочные, велосипедные и санузлы с лапомойками.
Входная группа в 13 секции
Паркинги и кладовые. В комплексе спроектирован подземный одноэтажный паркинг. В него можно спуститься на лифте со своего этажа. Также на цокольном этаже расположены индивидуальные кладовые, где можно хранить сезонные и габаритные вещи (например, велосипед или колёса).
Двор. Дворовая территория закрыта от посторонних и машин. Здесь предусмотрены различные зоны для отдыха, спорта и игр:
- кресла-коконы;
- качели-скамейки;
- гамаки и шезлонги;
- терраса с навесом;
- воркаут-зона;
- поле для мини-футбола;
- столы для настольного тенниса;
- пешеходные, беговые и велодорожки.
Двор
Для детей. В ЖК построят муниципальный детский сад на 200 малышей. Также в комплексе работает клуб для детей и подростков «Киндер-Лэнд».
Игровые площадки рассчитаны для детей разных возрастов. Здесь запланирована зона активностей с холмами, интерактивная песочница, горки и качели.
Игровые площадки
Покупки и отдых. На первых этажах домов уже открыты супермаркеты «Монетка», «Пятёрочка», «Жизньмарт», кофейня Za_uglom, медцентры, пункты выдачи онлайн-заказов и другие сервисы.
Заведения на первых этажах
В 16 секции обустроят зону отдыха с панорамным видом с 32 этажа. В 13 секции откроют комьюнити-центр — бесплатное пространство для жителей. Здесь откроют лекторий, коворкинг, зал для групповых тренировок, тренажёрный зал, массажный кабинет и кофейню. Управляющая компания будет организовывать мастер-классы, праздники и мероприятий для жителей.
Из ЖК есть собственный выход в парк «Каменные палатки». По экотропам можно дойти до Шарташского лесопарка и озера Шарташ.
- Живу в 3й очереди уже больше года. В принципе всё нравится, но раньше я жил в обычном панельном доме с обыкновенной УК, так что для меня новый дом как квантовый скачок в уровне сервиса. Двор у 3й очереди очень уютный, но он для взрослых. Для детей и подростков будут дворы 1/2й и 4й очередей. По звукоизоляции: потолки изолированы очень хорошо, но вот звукоизоляция стен недостаточная (кое-где стены из пенобетона). В целом тихо. В первое время после сдачи по дому были протечки и т.д., сейчас уже большая часть проблем устранена, но всё равно бывает. У 3й очереди большой паркинг, на 2 уровня. Знакомые снимают там место. Вокруг дома запарковаться сложно в любое время дня. УК очень чутко реагирует на любые вопросы и проблемы, реализуется решение этих вопросов не очень быстро, но всё по объективным причинам. Из плюсов ЖК: вход в парк в минуте-двух, чистый воздух, простор. Из минусов: проблема с заездом. Вдоль леса идёт грунтовка, разъехаться крайне тяжело. Дорога от егоршинского подхода ещё хуже, можно сказать её нет, нормальный заезд через 1-2 очередь, но дворовые проезды тесные. Есть надежда, что по завершению работ с 4 очередью сделают хорошую дорогу от егоршинского подхода. Ещё один минус - сложность заезда в район: либо разворот под мостом, либо экстрим на егоршинском. Застройщик до сих пор ведёт работы по устранению недостатков - что-то переделывается по гарантии либо долелывается. Тариф на содержание жилья недавно был повышен до 43 с копейками рублей.
- Полностью согласна с предыдущим отзывом. Переехали из Челябинска в Екатеринбург очень сильно пожалели приобретя здесь квартиру. Отвратительно ВСЁ система вентиляции, подача воды, отопление минимальное и с парковками реально беда. Сделали красивую картинку в которой некомфортно жить. Единственный плюс за что 2 звёздочки - это расположение около парка и озера. А положительные отзывы похоже пишет тот кто здесь не жил либо сам застройщик чтобы были продажи.
- не понимаю откуда столько положительных отзывов. плюс: расположение у парка минусы: все остальное. Застройщик построил на тяп ляп. Сначала крыши протекали, потом зимой у людей на окнах снег и лед. При ветре дом дребезжит , что спать не возможно (откосы и фасады). Огромные счета за отопление МОПов, в три раза больше чем за квартиру со счетчиками. Оплата за ЖКХ по 4 (!) квитанциям, в которых не понятно откуда взяты цифры за МОП-ы, суммы гигантские. С парковой просто засада, мест после 18.00 нет. Обещанный переход/перекресток в сторону ЖБИ к Магниту (бывшему Мегамарту) так и не сделали, чтобы перейти дорогу приходится полЖБИ обойти пешком. УК принадлежит тем же что Гринвич, поэтому дерут деньги и закрывают глаза на то, как построил дом Гринвич
- Достойный ЖК Каменные палатки, Управляющая компания довольно быстро облагораживает дворовые территории, отличные детские площадки, футбольное поле с искусственным газоном, детский сад, оформленный в стиле Гарри Потера. Очень удачное месторасположение ЖК- рядом лесопарковая зона и озеро Шарташ, в то же время близко до центра -автобусные и трамвайные остановки в 3-5 минутах ходьбы. Из минусов: нет стилобата при въезде в ЖК-заезжай любой, в сданных в мае секциях до сих пор не убрали защитную плёнку с окон со стороны улицы.
- Стоит посетить с экскурсовод, который сможет рассказать об истории этого места. Ближняя часть с каменным уступами на парк мало похожа, но живописная. Если продолжить прогулку к берегу озера, советую взять гольфкар с экскурсией. Расстояния очень большие.
Транспорт
В нескольких минутах ходьбы от ЖК есть автобусные и трамвайные остановки. На общественном транспорте можно доехать до УрФУ, железнодорожного вокзала, центра города и других районов. Путь на трамвае до Площади 1905 года займёт около 20 минут.
Добраться на автомобиле до центральных локаций можно по улице Малышева. Путь до Площади 1905 года займёт 15 минут без учёта пробок. Недалеко от ЖК расположен выезд на дублёр Сибирского тракта, по нему до аэропорта «Кольцово» можно доехать за 22 минуты.
О застройщике
Четвёртую очередь проекта «Каменные палатки» возводят сразу два застройщика:
- 13 секция — BAZA Development;
- 16 секция — «Гринвич недвижимость».
BAZA Development работает на рынке Свердловской области с 2023 года. ГК находится на 39 месте в рейтинге застройщиков Свердловской области по объёмам строительства и на 7 месте — по качеству жилья. На данный момент компания строит ещё два проекта — Дом «Милый дом» и «ДНК: Дом на Куйбышева».
«Гринвич Недвижимость» существует с 1995 года. В портфеле компании более 60 проектов жилой и торгово-офисной недвижимости. Среди них — ТРЦ «Гринвич», клубный дом «Ривьера», жилые комплексы River Park, «Северное сияние», «Тёплые кварталы» и другие.
О Комсомольском микрорайоне
Жилой комплекс «Каменные Палатки» расположен в восточной части Екатеринбурга, в микрорайоне Комсомольский (ЖБИ). Он относится к Кировскому административному району города. Адрес ЖК — улица Владимира Высоцкого, 5.
Границы микрорайона: улица Владимира Высоцкого, автодорога к Ново-Свердловской ТЭЦ, западная граница микрорайона Университетского, дублёр Сибирского тракта, Егоршинский подход. В 2021 году в Комсомольском микрорайоне проживало более 66 тыс. человек.
История района
На месте района до середины 1950-х находился Чистовский торфяник с торфопредприятием. В 1957 году был построен завод ЖБИ, запущен первый автобусный маршрут. Появились улицы 40-летия Комсомола и Бетонщиков с жилыми домами. В западной части района в 1960-е годы возникли коллективные сады. В 1983 году в районе запустили трамвайную линию.
Инфраструктура района
Образование. В пешей доступности есть 7 общеобразовательных школ, включая гимназии. В пределах 20 минут ходьбы расположены 10 детских садов.
В микрорайоне работают детская музыкальная школа №13 имени И.О. Дунаевского, Екатеринбургская детская школа искусств имени Н.А. Римского-Корсакова, центр дополнительного образования «Лик».
МАОУ гимназия № 176. Фото: страница гимназии Вконтакте
До Уральского Федерального университета можно дойти за 20 минут. Недалеко от УрФУ расположены Уральский колледж строительства, архитектуры и предпринимательства, Екатеринбургский колледж транспортного строительства, Екатеринбургский автомобильно-дорожный колледж, Уральский политехнический колледж.
УрФУ. Фото: Кудрявцев Александр (Wikimedia)
Медицина. В микрорайоне расположены поликлиника для взрослых №3 ЦГБ №7 и поликлиника №2 детской городской больницы №13. Из частных медцентров — «АСК», «Гармония», «АнгиоЛайн», «Ваша стоматология», «Новодент» и другие.
Покупки и отдых. Через дорогу от ЖК расположен гипермаркет «Магнит Семейный». За 7 минут на авто можно доехать до торгового рынка «Кор» и строительного гипермаркета «Дом». Торговый центр «КомсоМолл» с кинотеатром и детским развлекательным центром находится в 10 минутах езды. Но многие посетители жалуются, что в ТЦ очень маленький выбор магазинов.
К ЖК примыкает лесопарк с геологическим и историческим памятником «Каменные Палатки». Горная вершина «Каменных палаток» состоит из гранитных глыб, которые образуют пирамиду. За «Каменными палатками» находится Шарташский лесопарк — природоохранная территория озера Шарташ. Здесь есть оборудованная тропа здоровья, базы отдыха, пляжи, парки развлечений и кафе.
Каменные палатки. Фото: MBH (Wikimedia)
Спорт. В пешей доступности от ЖК открыты «Уральская школа спортивного чирлидинга», школа «Футболика», фитнес-клуб Iron Gym, стадион «Буревестник», ФОК «Кировский». Также в районе работают фитнес-центр Bright Fit, спортивный клуб «Ратиборец», ДЮСШ «Старт» и другие спортивные секции.
Экологическая обстановка
Экологическая обстановка в Кировском административном районе считается приемлемой. Здесь нет крупных промышленных предприятий. Большие зелёные зоны вроде Шарташского лесопарка помогают очищать воздух. Близость озера Шарташ также положительно влияет на качество воздуха в районе. Но есть и недостатки. В Екатеринбурге ветер дует в основном с запада, поэтому может приносить вредные вещества из других районов.
Будущее района
Согласно стратегии развития Кировского административного района до 2030 года, в Комсомольском микрорайоне планируют:
- построить новую школу на 800 мест (2026-2028 годы);
- построить новое отдельно стоящее здание детской музыкальной школы №13 в квартале улиц Владимира Высоцкого – Сыромолотова – Сиреневого бульвара – улицы Новгородцевой (2024-2030 годы);
- сделать капитальный ремонт библиотеки №21 на ул. 40-летия Комсомола, 10 (2028) и библиотеки № 20 на ул. Новгородцевой, 17 (2030-2035 годы);
- реконструировать КОСК «Россия» со строительством бассейна на ул. Владимира Высоцкого, 14 (2026-2030 годы);
- реконструировать хоккейный корт (ул. Владимира Высоцкого, 10), стадион (ул. 40-летия Комсомола, 31) и футбольное поле (ул. Новгородцевой, 9а).
Недостатки района
В часы пик можно наблюдать большие заторы при въезде и выезде на улицу Малышева, по которой осуществляется основное движение из ЖБИ в центр. Население района выросло, и старый Малышевский мост уже не справляется с потоком машин. Эту проблему постепенно решают. В конце 2023 года власти выделили деньги на разработку проекта дорожной развязки. Предполагается, что сбоку от моста построят ещё один путепровод. Возможен вариант с выносом трамвайных путей на отдельную эстакаду, а также строительство отдельного автомобильного моста.
Резюме
Жилой комплекс класса «комфорт+» «Каменные Палатки» — проект квартальной застройки от застройщиков BAZA Development и «Гринвич недвижимость». В ЖК продаются разные квартиры от однокомнатных до трёхкомнатных, цены стартуют от 6 млн рублей. На территории комплекса уже открыты супермаркеты, кофейня и магазины, строится муниципальный детский сад. Запланировано открытие комьюнити-центра с коворкингом и тренажёрным залом. С территории ЖК есть выход в лесопарк «Каменные палатки». К недостаткам комплекса можно отнести расположение в районе, где постоянно образуются пробки на дорогах.
Предложения застройщиков поблизости
Название ЖК | Цена квартир, млн ₽ | Застройщик | Площадь, м² | Сроки сдачи | Транспортная доступность | Отделка |
«ГРАНИТ» | «Проспект Групп | от 28,3 до 98,2 | III кв. 2025 | 26 мин. на транспорте до метро Площадь 1905 года | нет данных | |
«Тёплые кварталы» | «Кургансельстрой», «Паритет Девелопмент», «Гринвич недвижимость» | от 40,4 до 87,9 | II кв. 2025 – III кв. 2026, есть сданные | 18 мин. на транспорте до метро Уральская | Чистовая | |
«Б.26» | «СКМ Девелопмент» | от 22,4 до 91,2 | IV кв. 2025 – IV кв. 2027 | 22 мин. на транспорте до метро Уральская | Предчистовая, чистовая | |
«Дом на Библиотечной» | «Сторинг» | от 28,2 до 75,2 | I кв. 2026 | 25 мин. на транспорте до метро Геологическая | Чистовая | |
«Малахит» | «ЛСР. Недвижимость-Урал» | от 22,4 до 77,7 | IV кв. 2025 – III кв. 2026, есть сданные | 28 мин. на транспорте до метро Геологическая | Под ключ |