Подробный обзор апарт-комплекса Logos в Москве со всеми плюсами и минусами
Logos — элитный комплекс с апартаментами, который строится в Даниловском районе Москвы, рядом с метро «Тульская» и выездом на ТТК. В комплексе будет собственная инфраструктура: коворкинг, кинотеатр, тренажёрный зал, общественная гостиная с камином. Подробности — в нашем обзоре.
О комплексе апартаментов
Logos — это комплекс апартаментов, который строится в Даниловском районе Москвы. Рядом находятся Даниловский рынок, метро «Тульская», школы и детские сады. В комплексе запланирована собственная инфраструктура: тренажёрный зал, коворкинг, кинотеатр, сауна. Отдохнуть можно будет в закрытом от посторонних дворе-патио или на террасе на крыше.
В 13-этажном здании разместились 255 апартаментов — от студий до вариантов с тремя спальнями. Площадь помещений — от 25,8 до 141,7 кв. м. Все апартаменты сдаются с предчистовой отделкой white box. Ввод комплекса в эксплуатацию запланирован на III квартал 2024 года.
Цены
По данным Яндекс Недвижимости на сентябрь 2024 года, студий в продаже уже не осталось. Самое дешёвое предложение в комплексе — однокомнатные апартаменты с европланировкой (отдельная спальня и кухня-гостиная) площадью 58,8 кв. м, которые продаются за 36,9 млн рублей. Самый дорогое предложение — пятикомнатные апартаменты общей площадью 222 кв. м, которые стоят 162,5 млн рублей.
Средняя цена квадратного метра находится в диапазоне от 592,7 тыс. рублей (трёхкомнатные апартаменты) до 732,2 тыс. рублей (пятикомнатные апартаменты).
Цены на апартаменты в доме Logos (по данным застройщика и Яндекс Недвижимости)
Количество комнат | Площадь, кв.м | Минимальная стоимость, млн ₽ (сентябрь 2024) | Средняя цена 1 кв. м, тыс. ₽ (сентябрь 2024) |
1 | от 58,8 | 36,8 | 652 |
2 | от 64,5 | 37,2 | 594,8 |
3 | от 100,5 | 65,3 | 592,7 |
5 | от 222 | 162,5 | 732,2 |
Сравнить цены можно с апарт-комплексом Deco Residence, который расположен в 400 метрах от дома Logos. Deco Residence — проект бизнес-класса, минимальная стоимость апартаментов в нём составляет 13,7 млн рублей за студию площадью 24 кв. М. Средняя цена кв.м в студиях составляет 652 тыс. рублей. В уже введённом в эксплуатацию ЖК «Данилов дом» (600 метров от дома Logos) цены начинаются от 28,6 млн рублей за однокомнатную квартиру площадью 46,2 кв. М. Средняя цена кв.м в «однушках» составляет 620 тыс. рублей.
Архитектура
Комплекс состоит из одного 13-этажного здания, тип дома — кирпично-монолитный. На крыше оборудована двухуровневая терраса, которая станет дополнительным общественным пространством для жителей комплекса. Есть также закрытый внутренний двор-патио, образованный П-образной формой дома.
У здания необычные фасады из металлической сетки. Круглые балконы расположены в шахматном порядке и оформлены такой же сеткой. Архитекторы проекта — специалисты бюро APEX. По их задумке, использованный в оформлении фасадов радиусный просечный алюминиевый лист должен напоминать стопки серебряных монет (отсылка к расположенному рядом Монетному двору).
Фасады
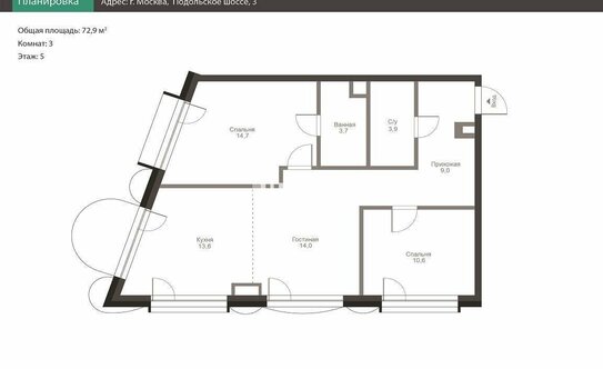
Планировки
В комплексе запланированы 255 апартаментов площадью от 25,8 до 141,7 кв. М. Спроектированы различные варианты: от студий до апартаментов с тремя спальнями. Высота потолков в помещениях — 3 м, а на последнем этаже — 3,6 м.
Площадь апартаментов с одной спальней — от 58,8 до 84,4 кв. м. Даже в компактных планировках есть гардероб и санузел с выходом из спальни, а также дополнительный гостевой санузел. Есть варианты с балконами и без, а в апартаментах на верхнем этаже есть собственная терраса площадью 19,2 кв. м.
Площадь апартаментов с двумя спальнями составляет от 64,5 до 141,7 кв. м. В них есть кухня гостиная, две спальни (одна из которых — мастер-спальня с собственным санузлом), а также дополнительный санузел. В самых больших апартаментах спроектированы две мастер-спальни с собственными санузлами и гардеробными, а также есть выход на террасу площадью 20,4 кв. м.
Площадь апартаментов с тремя спальнями — от 100,5 кв. м. В таких планировках предусмотрена одна мастер-спальня с собственным санузлом, дополнительный санузел, просторная кухня-гостиная. Есть апартаменты с постирочной комнатой или кладовой.
Есть также апартаменты площадью 222 кв. м с пятью спальнями, несколькими санузлами, большой кухней-гостиной и террасой.
Все апартаменты сдаются с предчистовой отделкой white box.
Вариант оформления квартиры
Инфраструктура комплекса
Входные группы. В здании всего один подъезд, вход в который расположен на уровне земли. Потоки жильцов будут разделяться: в правой и левой части здания расположены отдельные лифты. В лобби высокие потолки и стеклянные стены — пространство полностью просматривается с улицы.
Вход в подъезд
Двор. Во внутреннем дворе-патио будет организован амфитеатр и оборудованы зоны для отдыха и велопарковки. Дополнительное общественное пространство разместится на террасе на крыше здания. Здесь появятся зоны для отдыха с лежаками, зона для барбекю, летний кинотеатр и фонтан.
Внутренний двор
Для детей. В доме не предусмотрена детская инфраструктура. Ближайшие школы и детские сады расположены в шаговой доступности.
Спорт и досуг. Инфраструктура комплекса Logos включает гостиную с камином, небольшую библиотеку, приватный кинозал и коворкинг. Также спроектированы сауна, тренажёрный зал, зал для йоги и пространство для киберспорта.
Тренажерный зал
Покупки. Собственных магазинов в доме нет. В пешей доступности расположены Даниловский рынок, ТДК «Тульский» и ТРЦ «Ереван Плаза».
Паркинг. Собственный подземный паркинг рассчитан на 56 машиномест. Возможна установка зарядки для электрокара около каждого места. Предусмотрена также парковочная зона для велосипедов в паркинге и во дворе.
Паркинг
- Важно знать !!! В отделе продаж меня просто обманули по вопросу продажи парковки не предоставив полную информацию. Оказывается вы можете ее не купить в принципе так как их продают сначала владельцам апартаментов с большей площадью а кол-во парковок гораздо меньше кол-ва апартаментов. Мне лично без парковки такие площади не нужны да и электромобиль купленный из расчета заряжаться на парковке теперь тоже на авито !!! МОЛОДЦЫ продажники !!!
- Основной минус, который не исправить —локация. Шумно около дороги, дойти до Даниловского или Кофемании это перейти 10+ полос и 3 светофора. Второй минус который не исправить, это общежитие/отель, где постоянно меняются жильцы, тк 80%+ это мелкие студии, которые сдаются пересдаются. И минус который можно исправить, и я надеюсь, его исправят — это отношение к жильцам. Пожалуйста, сделайте уже консьержа не до 21:00, а круглосуточно. И топ1 функция ресепшн это принимать посылки и помогать с этим, а не отказываться оставить у себя маленький пакет, который должен забрать курьер. Бред же.
- Прекрасно. Есть даже лапомойка) два этажа парковки, -1 и -2. замечание: на стекло комнаты для йоги добавить наклейку, чтобы не "войти" в стеклянную дверь; добавить к инвентарю обруч.
- Отличный ЖК. Много интересных фишек внутри: фитнес-центр, сауна, коворкинг, библиотека и эксплуатируемая кровля Квартиры по планировке стандартные
- Лучший дом в Москве. Не пожалели что купили. Хоть застройщик молодой, сделал на совесть. Первый этаж весь в сервисах, от гостиной до кинотеатра и сауны. Наверху сад и смотровая, ждём лета чтобы прочувствовать
Транспорт
Дом Logos расположен на Подольском шоссе, недалеко от крупной развязки. Рядом находятся выезды на Даниловский Вал, Люсиновскую, Мытную и Большую Тульскую улицы. В часы пик часто возникают пробки.
До ТТК и Тульской эстакады — около 1 км от ЖК, до Садового кольца — 2,2 км, до Кремля — 4,5 км, до МКАД — 16 км. До аэропортов «Домодедово» и «Шереметьево» — 45-50 км, до «Внуково» — 30 км.
Ближайшая станция метро — «Тульская», она находится в 500 метрах (6 минут пешком). Также возле дома расположены остановки автобусов и трамваев, которые следуют до станций метро «Университет», «Чистые пруды», «Пролетарская», «Добрынинская», станции МЦК «ЗИЛ» и других станций и районов. Таким образом, у комплекса хорошая транспортная доступность и для автомобилистов, и для тех, кто пользуется общественным транспортом.
О застройщике
Девелопер проекта — компания Sense («Сенс Девелопмент»), которая специализируется на строительстве премиальной и элитной недвижимости в Москве. Застройщик — компания «Логос» (дочерняя структура Sense), для которой это первый проект. Sense — это относительно новый девелопер на рынке Москвы. Компания была основана в 2020 году. Помимо дома Logos, девелопер также работает над домом Phantom, который должен появиться в 2027 году около метро «Сухаревская».
О районе Даниловский
Даниловский район относится к Южному административному округу Москвы. Население района составляет около 104,7 тыс. человек. Здесь расположены станции метро «Автозаводская», «Технопарк», «Тульская», а также станции МЦК «ЗИЛ» и «Автозаводская».
Даниловский район, Парк Тюфелева роща. Фото: Яндекс Карты
История района
Археологические раскопки показывают, что уже в X-XI веках на территории современного Даниловского района были поселения славян. Более точно историю района можно проследить до XIV века, до появления села Даниловского, которое располагалось примерно в 5 км от Боровицкого холма, у реки Даниловки. В те времена село было одним из ближайших пригородов Москвы. В XVI веке здесь был основан Даниловский монастырь, который остаётся главной достопримечательностью района. А в XIX веке здесь появились первые предприятия, в том числе ткацкая фабрика, которая затем стала Даниловской мануфактурой — ещё один узнаваемый символ района.
Данилов ставропигиальный мужской монастырь. Фото: Яндекс Карты
До 1991 года территория современного Даниловского района была частью Пролетарского и Москворецкого районов Москвы. В 1991 году прошла административная реформа, в результате которой в Москве появились административные и муниципальные округа. В образованный Южный административный округ вошли в том числе временные муниципальные округа Симоновский, Павелецкий и Даниловский. В 1995 году эти округа объединились в Даниловский район, а современные границы он приобрёл в 2002 году, когда к району присоединили территории предприятия «ЗИЛ».
Инфраструктура района
Образование. В пешей доступности от дома Logos (130 метров) расположен корпус школы №1257. В 600-700 метрах от комплекса есть также корпуса школ №57 и №630. В 300-400 метрах находятся Медучилище №1, Спортивная школа олимпийского резерва № 41 и IThub college. Также в радиусе 1 км есть несколько детских садов.
Медицина. В 300 метрах от дома Logos находятся Павловская больница и городская поликлиника №67, в 600 метрах — челюстно-лицевой госпиталь и терапевтическая стоматология. В пешей доступности есть аптеки, платные стоматологии и диагностические лаборатории.
Павловская больница. Фото: Алексей Ломан (Яндекс Карты)
Спорт. Спортивные площадки расположены в парках Кожухово и Тюфелева роща. В районе есть несколько фитнес-клубов, студий йоги и пилатеса, а также два крупных спортивных объекта: спорткомплекс «ЦСКА Арена», где проводятся матчи хоккейных клубов, а также стадион «Торпедо» имени Эдуарда Стрельцова.
Культура и отдых. В районе находится Культурный центр «ЗИЛ» — символ конструктивизма и один из первых рабочих Дворцов культуры в Москве. Здесь есть различные пространства для мероприятий и клубов по интересам, проходят лекции, выставки. Другие музеи района: музей хоккейной славы, музей темноты, музей авангарда.
В Даниловском районе есть несколько парков. Один из самых известных — Тюфелева роща на территории бывшего завода им. Лихачева и ЖК «Зиларт». На его территории расположен пруд с системой очистки воды, спортивная зона с тренажёрами, игровые площадки для детей и зона для выгула собак. Также популярны скверы на Хавской улице, сквер у станции метро «Автозаводская» и сквер на улице Мастеркова. В народном парке «Кожухово» на берегу Кожуховского пруда есть детские площадки и спортивные зоны.
В детском парке «Липки» есть площадка с уличными тренажерами, детский городок и сцена для мероприятий. Парк расположен у стен Симонова монастыря и интересен видами на эту достопримечательность.
Культурный центр ЗИЛ. Фото: Olya Hamitova (Wikimedia)
Покупки. В пешей доступности от комплекса расположены Даниловский рынок, ТДК «Тульский» и ТРЦ «Ереван Плаза». На Даниловском рынке можно купить свежие фермерские продукты и посетить фуд-корт. В ТРЦ «Ереван Плаза» есть магазины одежды и обуви, кафе и рестораны, различные сервисы и услуги. В торгово-деловом комплексе «Тульский» расположены кафе и рестораны, офисы, оптика и аптека, супермаркет.
Даниловский рынок. Фото: Даниловский Р. (Яндекс Карты)
Экологическая обстановка
Рейтинг EcoStandard Group оценивает экологическую ситуацию в районе как удовлетворительную, но это считается негативной оценкой. В районе есть ТЭЦ и промышленные зоны. Впрочем, крупнейшая из них — бывшая территория автомобильного завода «ЗИЛ» — расформирована и застраивается жильём.
Недостатки района
Минусы района — не самая благоприятная экологическая обстановка, а также большое количество довольно крупных шоссе. Рядом с домом Logos расположены большие развязки.
Будущее района
Продолжается реконструкция стадиона имени Эдуарда Стрельцова — домашнего стадиона команды «Торпедо». Возведение центральной спортивной арены должно завершиться в 2025 году. Кроме того, новые объекты будут появляться на территории бывшего завода «ЗИЛ». В частности, здесь откроется Музей искусств, где будут располагаться постоянные и временные экспозиции живописи, графики, скульптуры. Также на транспортном узле «ЗИЛ» планируют сделать пересадки на Бирюлевскую линию метро и Троицкую ветку.
Стадион имени Эдуарда Стрельцова. Фото: A.Savin (WIkimedia)
Резюме
Дом Logos — апарт-комплекс в Даниловском районе Москвы, в пешей доступности от метро «Тульская». Это 13-этажное здание с 255 апартаментами площадью 25,8 до 141,7 кв. м. К плюсам можно отнести набор инфраструктуры, который направлен на создание разнообразного досуга и формирование добрососедских отношений. В комплексе появится гостиная с камином, коворкинг, тренажёрный зал, терраса с летним кинотеатром и зоной барбекю. Ещё одно преимущество дома — его расположение рядом с метро и остановками общественного транспорта. Рядом также находятся школы, детские сады, торговые центры.
Главный минус комплекса— это его правовой статус: в доме Logos продаются апартаменты, а не квартиры. В апартаментах нельзя оформить постоянную регистрацию по месту жительства, а также для них предусмотрены более высокие налоги и коммунальные платежи. К минусам можно отнести и отсутствие отделки «под ключ», так как ремонты в доме, скорее всего, растянутся надолго, и это будет доставлять неудобства. Также в комплексе всего 56 машиномест, что может быть недостаточно для 255 апартаментов.
Предложения застройщиков в районе (сентябрь 2024)
Название ЖК | Цена квартир | Застройщик | Площадь | Сроки сдачи | Транспортная доступность | Отделка |
«ЛСР. Недвижимость-Москва» | от 20,2 до 138,4 | 4 кв. 2025 – 4 кв. 2027 есть сданные | 16 мин. пешком до МЦК ЗИЛ, 14 мин. транспортом до метро «Тульская», 18 мин. транспортом до метро «Автозаводская» | под ключ, черновая, чистовая | ||
Forma | от 24,9 до 142,4 | 3 кв. 2024 | 15 мин. пешком до метро «Тульская», 22 мин. пешком до МЦК ЗИЛ, 14 мин. транспортом до метро «Автозаводская» | чистовая | ||
Дом на набережной INSIDER | «РКС Девелопмент» | от 20 до 103,7 | 2 кв. 2025 | 19 мин. пешком до МЦК ЗИЛ, 19 мин. пешком до метро «Тульская», 15 мин. транспортом до МЦК Верхние Котлы | под ключ | |
Deco Residence | ГК «Ташир» | от 24 до 103,7 | 2 кв. 2024 | 5 мин. пешком до метро «Тульская», 19 мин. пешком до метро «Шаболовская», 10 мин. транспортом до метро «Серпуховская» | без отделки, черновая, под ключ | |
ГК «Пионер» | от 24,2 до 186,1 | 1 кв. 2025 – 4 кв. 2027 | 19 мин. пешком до метро «Павелецкая», 22 мин. пешком до метро «Серпуховская», 19 мин. транспортом до метро «Крестьянская застава» | под ключ, без отделки, white box | ||
Клубный дом Opus | ГК «Пионер» | от 55,8 до 305,8 | 4 кв. 2025 | 15 мин. пешком до метро «Павелецкая», 19 мин. пешком до метро «Крестьянская застава», 21 мин. пешком до метро «Пролетарская» | без отделки | |
от 29,2 | Coldy | от 35,3 до 112,5 | 2 кв. 2027 | 10 мин. пешком до метро «Тульская», 17 мин. пешком до метро «Шаболовская», 13 мин. транспортом до метро «Ленинский проспект» | чистовая, white box |