«Западные Аллеи» — жилой комплекс бизнес-класса, расположенный в Советском районе на западе Ростова-на-Дону. ЖК состоит из девяти домов высотой от 9 до 19 этажей. На закрытой благоустроенной прилегающей территории появятся детские и спортивные площадки, велодорожки, общественные пространства и места для отдыха.
Девелопером проекта выступает СК «ДОННЕФТЕСТРОЙ». Жильё вводится поэтапно с конца 2023 года, завершение строительства запланировано на четвертый квартал 2025 года. Подробная информация о проекте — в нашем обзоре.
О жилом комплексе
ЖК «Западные Аллеи» возводится в центре Левенцовского микрорайона на участке площадью около 5 га, ограниченном проспектом Маршала Жукова, улицами Назарько и Курсантов, а также территорией соседнего ЖК. В состав комплекса входят девять жилых корпусов в общей сложности на 2 048 квартир.
Разрешение на строительство объекта было выдано в октябре 2021 года. Проект реализуется в три очереди. Первая фаза — девятиэтажный четырёхсекционный литер 4.1 и десятиэтажный двухсекционный литер 4.2 — была введена в четвёртом квартале 2023 года. Сдача второй очереди (литер 5.1, 5.2 и 5.3) ожидается в четвёртом квартале 2024 года, третьей (литер 6.1, 6.2, 6.3 и 6.4) — в четвёртом квартале 2025-го. Высота этих зданий составит 18-19 этажей.
Цены
По данным сервиса Яндекс Недвижимость на октябрь 2024 года, в проекте реализуются квартиры стоимостью от 3 359 010 до 10 500 000 рублей. Наиболее доступное предложение — студия общей площадью 24,9 кв. м. Самый дорогой вариант — трёхкомнатная квартира совокупной площадью 73,4 кв. м.
Цены на квартиры в ЖК «Западные Аллеи» (по данным сервиса Яндекс Недвижимость)
Количество комнат | Площадь, кв.м | Средняя стоимость, млн рублей (октябрь 2024) | Средняя цена за кв.м, тыс. рублей (сентябрь 2024) |
Студия | от 23 | 3,36 | 140,8 |
1 | от 34,2 | 4,52 | 137,1 |
2 | от 42,7 | 5,67 | 137,9 |
3 | от 65,2 | 8,01 | 132,1 |
Ближайшим строящимся проектом бизнес-класса является ЖК Times от девелопера СЗ «Феникс» (мкр. Западный, пр. Стачки / ул. Мильчакова). Ввод его намечен на третий квартал 2024 года.
В ЖК Times средняя стоимость студий составляет 6,07 млн рублей при средней цене «квадрата» 197,8 тыс. рублей. Для однокомнатных квартир эти показатели составили 7,9 млн и 171,9 тыс. рублей, для двухкомнатных — 11,2 млн и 158,7 тыс. рублей, для трёхкомнатных — 15,2 млн и 164,2 тыс. рублей соответственно.
Покупателям квартир в ЖК «Западные Аллеи» доступны кредитные программы с господдержкой. Также при покупке можно воспользоваться беспроцентной рассрочкой от застройщика (первый платёж составит от 30% стоимости квартиры) или траншевой ипотекой с первоначальным взносом от 20,1% и ежемесячными платежами в размере 1 рубля до окончания строительства (так называемая «ипотека за рубль»). Кроме того, есть возможность использовать в качестве первого взноса средства материнского капитала.
Среди других акций — скидка до 1% на квартиры для зарплатных клиентов Сбербанка, подарочные сертификаты сети гипермаркетов мебели и товаров для дома «Hoff» и ряд других.
- 9,8 млн ₽улица Назарько, 4
- 3,81 млн ₽улица Назарько
- 8,5 млн ₽улица Назарько, 4
- 7,08 млн ₽улица Назарько, 4
- 4,75 млн ₽Ростов-на-Дону, жилой комплекс Западные Аллеи
- 3,81 млн ₽Ростов-на-Дону, жилой комплекс Западные Аллеи, 6.1
- 8,2 млн ₽Ростов-на-Дону, жилой комплекс Западные Аллеи, 5.3
- 7,09 млн ₽улица Назарько, 4
- 5,85 млн ₽улица Назарько, 4
- 4,8 млн ₽проспект Маршала Жукова, 16/6
- 4,7 млн ₽проспект Маршала Жукова, 16/6
- 4,9 млн ₽проспект Маршала Жукова, 16/6
- 5,8 млн ₽проспект Маршала Жукова, 16/6
- 6,7 млн ₽проспект Маршала Жукова, 16/6
- 5,37 млн ₽проспект Маршала Жукова, 16/6
- 5 млн ₽улица Назарько, 4
Архитектура
В рамках проекта строятся кирпично-монолитные и монолитно-каркасные дома. К первым относятся здания высотой 9-10 этажей с вентилируемыми фасадами из керамогранита, ко вторым — корпуса высотой 18-19 этажей.
Визитной карточкой ЖК «Западные Аллеи» является яркая архитектурная подсветка фасадов.
Архитектура ЖК
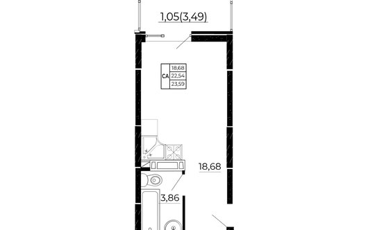
Планировки
В ЖК представлены студии, одно-, двух- и трёхкомнатные квартиры площадью от 23 до 73,4 кв. м. В корпусах первой очереди высота потолков составляет 2,8 метра, в остальных домах — 2,7 м.
В комплексе предлагаются преимущественно классические угловые и линейные квартиры с комнатами правильной формы в различных вариациях. Для студий разработано 15 планировочных решений, покупатели «однушек» могут выбрать из 33 планировок, «двушек» — из 11, «трёшек» — из трёх.
Покупателям доступны три варианта отделки: базовая комплектация (черновая), white box (предчистовая) и ремонт под ключ. В базовый вариант входят чистовая стяжка пола, установка внутренних перегородок, выводов под горячую и холодную воду, приборов учета ГВС и ХВС, радиаторов центрального отопления, металлопластиковых окон и металлической входной двери.
Опция white box дополнительно включает ряд отделочных работ, таких как штукатурка стен, а также разводку электрики.
В ремонт «под ключ» входит штукатурка стен гипсовой смесью по маякам, их шпаклёвка и оклейка обоями, монтаж натяжного потолка, укладка ламината и плинтусов, облицовка стен плиткой в санузлах, прокладка труб водоснабжения и канализации, установка конечного сантехнического оборудования, межкомнатных дверей, розеток, выключателей и люстр, закладка трасс для сплит-системы, вывод под интернет и отделка балконов. Предлагается три варианта интерьера — «Жемчужная классика», «Серебристый сканди» и «Кремовый прованс».
Вариант отделки «Серебристый сканди»
Инфраструктура комплекса
Входные группы. В вестибюлях домов разместятся консьерж-службы, колясочные и технические помещения, а перед входом предусмотрены велопарковки. Отделка подъездов выполняется с использованием премиальных материалов.
Входная группа
Двор. На огороженной придомовой территории девелопер намерен реализовать концепцию «двор без машин» и провести мероприятия по созданию безбарьерной среды для маломобильных граждан. Проект благоустройства включает организацию детских и спортивных площадок, развлекательных и развивающих функциональных зон (например, уличной библиотеки), мест отдыха с лавочками, беседками и гамаками, установку малых архитектурных форм (в частности, деревянной перголы), прокладку пешеходных и велодорожек, а также проведение работ по озеленению и ландшафтному дизайну.
Внутренний двор
В целях безопасности на территории комплекса будет вестись круглосуточное видеонаблюдение. ЖК оснащён системой «умный домофон», которая позволяет жильцам контролировать доступ в подъезд и на приватную территорию, в том числе удалённо.
Для детей. В ЖК спроектированы три детские площадки с горками, качелями, песочницами, скалодромом и так далее.
Девелопером анонсировано открытие двух детских садов на 100 и 250 мест и общеобразовательной школы на 1100 учеников. Однако фактически эти объекты разместятся в 10-м и 11-м микрорайонах на территории ЖК «Притяжение», который возведут по соседству, с другой стороны улицы Назарько. Сроки ввода детсадов и школы неизвестны, тогда как первые дома в «Притяжении» планируется сдать лишь в третьем квартале 2026 года.
Спорт, работа и досуг. На территории разместятся четыре спортивные зоны с различным наполнением: тренажёрами, площадкой для стритбола, столами для настольного тенниса и шахмат.
Часть помещений на первых этажах отведена под офисы площадью 50-100 кв.м.
Коммерческие помещения на первом этаже
Отдельной развлекательной инфраструктуры в ЖК не предусмотрено.
Покупки. Помимо офисов, на первых этажах жилых домов разместятся магазины, аптеки, салоны красоты, филиалы банков и другие коммерческие сервисы.
Паркинг. В комплексе три подземные парковки, оборудованные лифтами для подъёма на этаж. Две из них могут вместить по 100 машин, третья рассчитана на 157 автомобилей, однако 57 мест являются зависимыми (выехать с них можно только если отъедет рядом стоящий транспорт). Также на подземном уровне расположатся кладовые.
Въезд в подземный паркинг
На территории ЖК и рядом с ним предусмотрено ещё около 240 гостевых машиномест. При этом напомним, что в комплексе будет более 2000 квартир.
- Живу в ЖК Звезда Столицы, но приобрёл квартиру и в ЖК Западные Аллеи, читаю негативные отзывы о застройщике и прям как то не верится, что это всё о ДонНефтестрое, живу в доме прекрасного качества, прекрасная дворовая территория, управляющая компания ДонУк самая лучшая. Всегда приходят на помощь в случае проблемы, цены на коммуналку умеренные. Уважаемые люди выражающие свои негативные эмоции, добра вам и меньше нервничать. Научитесь видеть и в плохом хорошее и будет вам счастье
- Западная Аллея . Коротко : Общедомовое 63.4кв.- 5149руб + отопление по цене золота в частных руках +вода +свет (считайте сами столько будет выходить в месяц )Этот жилой комплекс Бизнес класса, только по оплатам . Остались вопросы ? Спросите жильцов дома.
- Мы как многодетная семья выбирали долго жилье ,выбар был сделан в пользу Доннефтестроя,т.к застройщик обещал маленькие платежи за отопление ,но какой был шок когда пришла первая квитанция платежи в 1.5 раза превышены по г.Ростов-на-Дону,управляющую компанию выбрал застройщик ,ДонУк выставленны платежи за содержание дома тоже 1.5 раза выше чем были указаны в договоре,выставлен счет на оплату за ворота которых нет ,двери которые открываются внутрь квартиры,дозвониться до застройщика тоде невозможно трубку не берут от слова совсем еще не заехали а уже полны разочерования,не рекомендую данного застройщика
- Находится в какой-то яме, застройщик обещал несколько въездов в итоге оказалось что это временные выезды на время стройки 😅Обещают премиальные холлы в итоге делают коридоры в обычной штукатурке шириной метр шестьдесят, дверь открываются внутрь квартиры чтобы естественно не перекрыть коридор. Пишут что бизнес класс и делают 12-16 квартир на этаже из которых всего 2 двухкомнатные остальные студии и однушки. Приходишь в офис продаж говорят одну цену потом когда подаёшь документы на оформление цены резко вырастают на ~200к Куча мать его заборов внутри ЖК которые ограждают не понятно что, дома стоят чуть ли не друг на друге. Дороги внутри узкие не разъехаться выезд из ЖК один на маршала Жукова другой а Батайске. И больше негде не пройти не проехать
- Купили там квартиру. Ждём сдачи, дома красивые, подсветка огонь, территория тоже красивая, а то что пишут что кого-то что-то не устраивает, так это в каждом сданном доме любого застройщика такое будет. Пока не сделают ремонты в квартирах везде будет грязь, где-то что сломают. Касаемо УК ещё не столкнулись, но надеюсь что все будет хорошо. А вообще я за ТСЖ, надеюсь мы нашим домом это организуем.
Транспорт
Автомобиль. Примерно в 7 минутах от комплекса находится выезд на улицу Малиновского, которая является центральной транспортной магистралью в западной части города. Это позволяет достаточно быстро выехать на Западное шоссе, которое огибает город с юга, или в северные пригороды по Таганрогскому шоссе. Расстояние до главного ж/д вокзала в центре Ростова составляет около 10 км (около 30 минут в пути).
Общественный транспорт. В 700 метрах от ЖК находится остановка «Микрорайон №8 Левенцовский», где можно сесть на автобусы №55 (идёт через центр города до микрорайона Александровка), №71 (следует до Центрального рынка) и №67А (до вокзала Сельмаш). До Центрального рынка можно доехать без пересадок примерно за 40 минут.
О застройщике
Основанная в 2016 году СК «ДОННЕФТЕСТРОЙ» является «дочкой» девелопера «ЕкатеринодарИнвест-Строй» — одного из крупнейших застройщиков в Краснодарском крае. Компания специализируется на возведении жилья в Ростове-на-Дону. За время работы застройщик ввёл в эксплуатацию 621 тыс. кв. м недвижимости, в построенных объектах проживают 13 890 семей. В стадии строительства находится 863 тыс. кв. м жилья.
По данным Яндекс Недвижимости, СК «ДОННЕФТЕСТРОЙ» сдала 21 дом в составе 8 ЖК, на стадии строительства находятся 16 домов в 3 проектах.
О Советском районе и микрорайоне ЗЖМ
Город Ростов-на-Дону состоит из восьми районов: Ворошиловского, Железнодорожного, Кировского, Ленинского, Октябрьского, Первомайского, Пролетарского и Советского. Вместе с тем в нём отдельно выделяют две крупные агломерации, известные как Западный и Северный жилые массивы (ЗЖМ и СЖМ). Несмотря на их полуофициальный статус, названия давно и активно используется как жителями, так и чиновниками. В отличие от районов, у жилых массивов нет своих администраций и органов местного самоуправления, при этом по площади эти образования могут превосходить районы и включать в себя сразу несколько районов или их частей, границы их не всегда чётко определены.
Фото: Луносвет (Wikimedia Commons)
История
Развитие юго-восточной части западной окраины Ростова-на-Дону началось в конце 1950-х — начале 1960-х годов со строительства подшипникового завода, рядом с которым стали появляться двухэтажные дома барачного типа для рабочих и первые объекты инфраструктуры.
Довольно быстро на территории Западного жилого массива, официальной датой основания которого считается 1963 год, сформировались две промышленные зоны (Западная и Северо-Западная), с началом периода индустриального домостроения существенно ускорились и темпы прироста населения. Благодаря этому, к началу 1970-х ЗЖМ вырос почти до города-спутника, получившего народное название Советск. В конце 1973 года он стал седьмым районом Ростова-на-Дону — Советским.
Историческая часть ЗЖМ состоит из 16 микрорайонов, расположенных преимущественно между улицами Малиновского, Мадояна, Доватора и 2-й Краснодарской. В конце 2000-х годов началась комплексная жилая застройка территорий Советского района к западу от ул. Малиновского, известных как Левенцовский жилой район (он же Левенцовский микрорайон) и составляющих новую часть ЗЖМ. С исторической точки зрения это место знаменито археологическими находками, которые датируются периодом около 2,1-1,97 млн лет назад и являются одними из первых следов пребывания человека на территории Восточной Европы.
Заселение первых домов в Левенцовском микрорайоне началось в апреле 2010 года, к 2014 году было построено 370 тыс. кв.м жилья. В общей сложности там планируется возвести около 2,2 млн кв.м жилой недвижимости, проектная численность населения составляет 86,4 тыс. человек.
Инфраструктура
Образование. На данный момент в Левенцовском микрорайоне работают две общеобразовательные школы — №72 и №115. Первая находится в 2 км от ЖК (около 25 мин пешком), расстояние до второй — 1,65 км (20 мин пешком). В сентябре 2024 года в 1 км от ЖК должен открыться новый корпус школы №115 по адресу просп. Маршала Жукова, 25/2.
Ещё несколько образовательных учреждений (школа №112, гимназия №117, лицей №103) работают во 2-м микрорайоне, в получасе ходьбы.
В радиусе 1,5 км от ЖК работают четыре государственных детских сада (№86, №87, №25 «Город детства», МБДОУ №25), а также частный детсад «Нью-Тон».
Медицина. Детская поликлиника №45 располагается в 1,3 км от ЖК (16 мин пешком), различные отделения взрослой поликлиники №42 — в 1,9-2,4 км (22-30 мин пешком). Детская и взрослая областные больницы находятся в 25 минутах пешком или 8 минутах на машине. Также в районе функционируют клиника «ЕвроДон», многопрофильный медицинский центр «Авеню», детский медцентр «Мой Малыш», центр остеопатии «Дыхание Жизни».
Спорт. В микрорайоне работает много фитнес-клубов и различных секций, есть спортивный комплекс «Дружба», спортивно-развлекательный центр «Левенцовский», физкультурно-оздоровительный комплекс и спортшкола «Чайка».
Физкультурно-оздоровительный комплекс «Чайка». Фото: ФК «Чайка»
Отдых и развлечения. Дефицита продуктовых магазинов и заведений общепита в микрорайоне нет: в пешей доступности есть несколько супермаркетов «Магнит» и «Пятёрочка», множество кофеен, пиццерия, бар, суши-маркет.
В 7 минутах на автомобиле находятся крупный торгово-развлекательный центр «Золотой Вавилон» с кинотеатром, игровыми зонами для детей и отделением МФЦ «Мои документы», гипермаркет «О`кей», строительный гипермаркет «Максидом», ТЦ «Мебельград» и мебельный магазин Hoff Mini. В районе ул. Доватора работают гипермаркеты Metro, «Гипер Лента» и строительный гипермаркет «Лемана Про».
В 12 минутах на автомобиле находится археологический памятник «Левенцовская крепость», в 16 минутах — парк «Сказка» с аттракционами, мини-зоопарком, дельфинарием, теннисными кортами и крытым катком, в 18 минутах — парк культуры и отдыха «Плевен» (назван в честь болгарского города-побратима) и Аллея роз с детским аквапарком. До одной из крупнейших зелёных зон города — Ботанического сада ЮФУ — можно доехать примерно за 20 минут.
Парк «Сказка». Фото: Юлия Ябурова (Яндекс Карты)
Экологическая обстановка
Несмотря на соседство с промзонами, экологическая обстановка в Левенцовском микрорайоне считается благоприятной. Уровень загрязнения воздуха здесь гораздо ниже, чем в центральной части города.
При этом в целом экологическая ситуация в Ростове-на-Дону остаётся очень напряжённой. Город часто попадает в списки городов РФ с самым высоким уровнем вредных веществ в воздухе.
Ботанический сад ЮФУ. Фото: Михаил Есипенко (Wikimedia Commons)
Недостатки
Темпы строительства социальной инфраструктуры в Левенцовском микрорайоне явно не поспевают за вводом жилья, в интернете много жалоб на нехватку школ, детсадов и поликлиник. Девелоперы нередко срывают и откладывают сроки сдачи объектов, а город новых зданий здесь пока также не строит.
Не всегда оперативно в новые кварталы приходит и общественный транспорт, некоторые остановки построены, однако маршруты не корректируются, и автобусы там не останавливаются.
Несмотря на хорошую в целом транспортную доступность, существует проблема с пробками, особенно в часы пик на улице Малиновского.
Будущее района
В обозримой перспективе в Левенцовском микрорайоне продолжится массовое строительство жилья, поэтому главные опасения связаны с растущей нагрузкой на инфраструктуру. В частности, уже сейчас необходимо решать вопрос с дефицитом соцобъектов.
Ситуация в транспортной сфере должна значительно улучшиться с вводом скоростного трамвая. В марте 2023 года власти города и компания «Синара-ГТР» подписали концессионное соглашение о создании современной трамвайной инфраструктуры в Ростове-на-Дону. Договор предполагает строительство и модернизацию 119 км путей, строительство и реконструкцию сервисных депо и тяговых подстанций, закупку новых трехсекционных трамваев и модернизацию имеющегося подвижного состава. Сообщалось, что реализация проекта стоимостью 61 млрд рублей, рассчитанного до 2028 года, должна решить вопрос транспортной доступности существующих микрорайонов (Левенцовского, Суворовского, Платовского, Вересаево), а также позволит приступить к комплексной застройке территории старого ростовского аэропорта, закрытого в марте 2018 года.
Первым этапом работ является как раз строительство ветки от Левенцовского микрорайона до улицы Станиславского в центре города. Изначально его планировалось завершить к середине 2026 года, однако недавно стало известно, что движение на этом отрезке запустят не раньше 2027 года.
Резюме
ЖК «Западные Аллеи» возводится в Левенцовском микрорайоне Ростова-на-Дону, где активно ведётся комплексная жилая застройка. Проект компании «ДОННЕФТЕСТРОЙ» включает девять корпусов, рассчитанных на 2 048 квартир. Здесь представлены студии, одно-, двух- и трёхкомнатные квартиры площадью от 23 до 73,66 кв.м и стоимостью от 3 309 210 до 10 977 750 рублей. Доступны три варианта отделки: черновая, предчистовая и «под ключ».
Благоустройство приватной внутренней территории предусматривает создание ландшафтных, развлекательных и развивающих функциональных зон.
Плюсы ЖК «Западные Аллеи»:
- качественное благоустройство;
- разнообразные варианты отделки;
- архитектурная подсветка фасадов.
Минусы ЖК «Западные Аллеи»:
- заявленные девелопером детсады и школа будут построены в рамках соседнего проекта, сроки их ввода неизвестны;
- общая нехватка социальных объектов в Левенцовском микрорайоне и транспортные трудности;
- низкий уровень обеспеченности парковочными местами.
Предложения застройщиков поблизости
Название ЖК | Цена квартир | Застройщик | Площадь | Сроки сдачи | Транспортная доступность | Отделка |
GraY | ГК «АльфаСтройИнвест» | от 22,7 до 42,2 кв.м | 2 кв. 2025 – 1 кв. 2026, есть сданные | 720 метров до остановки «Микрорайон №8 Левенцовский» | черновая | |
«Левенцовка парк» | «TEN девелопмент» | от 21,2 до 79,6 кв.м | 3 кв. 2024 – 4 кв. 2026, есть сданные | 480 метров до остановки «Микрорайон №8 Левенцовский» | без отделки, white box, под ключ | |
«ПРИТЯЖЕНИЕ» | «ДомСтрой» | от 21,2 до 84,5 кв.м | 3 кв. 2026 | 980 метров до остановки «Микрорайон №8 Левенцовский» | чистовая, предчистовая, черновая | |
Квартал «5 элемент Аске» | «TEN девелопмент» | от 20,7 до 73,6 кв.м | 3 кв. 2024 – 4 кв. 2025, есть сданные | 840 метров до остановки «Микрорайон №5 Левенцовский» | без отделки, чистовая, white box | |
«5 элемент-монолит» | «TEN девелопмент» | от 36 до 82,5 кв.м | сдан | 320 метров до остановки «Микрорайон №5 Левенцовский» | без отделки, white box, под ключ | |
Жилой парк «Сокольники» | ГК «Сокол» | от 26 до 100,7 кв.м | 1-3 кв. 2026 | 500 метров до остановки «Микрорайон №5 Левенцовский» | без отделки | |
«СК10» | от 23,3 до 81,9 кв.м | 4 кв. 2025 – 3 кв. 2026 | 740 метров до остановки «ТЦ METRO» | под ключ | ||
«Вместе» | «Неометрия» | от 25,6 до 86,5 кв.м | сдан | 90 метров до остановки «Автостоянка» | черновая, white box | |
«СОСТОЯНИЕ» | «Девелопмент-Юг» | от 41,5 до 116,6 кв.м | 3 кв. 2025 | 500 метров до остановки «Автостоянка» | предчистовая | |
Frame | ГК «АльфаСтройИнвест» | от 22,4 до 69 кв.м | 1 кв. 2025 – 2 кв. 2027 | 340 метров до остановки «Кустанайская улица» | предчистовая | |
СЗ «Феникс» | от 38,5 до 131,5 кв.м | 3 кв. 2024 | 420 метров до остановки «проспект Стачки» | без отделки |