«Верево Сити» — жилой комплекс эконом-класса в Гатчинском районе Ленинградской области. ЖК состоит из 14 малоэтажных корпусов, большинство из которых уже достроены. Застройщик — ГК «НСК» — планирует полностью закончить проект во втором квартале 2025 года. В комплексе продаются студии и квартиры с 1, 2 и 3 комнатами. Подробнее о ЖК «Верево Сити» — в нашем обзоре.
О жилом комплексе
Жилой комплекс эконом-класса «Верево Сити» строится в Ленинградской области в трёх километрах от Гатчины. ЖК занимает площадь 6,5 га на территории деревни Малое Верево. В состав «Верево Сити» войдут 14 четырёхэтажных корпусов, детские и спортивные площадки, зоны отдыха, места для выгула домашних питомцев, торговый центр. Первые четыре очереди уже сданы, пятую должны закончить во втором квартале 2025 года.
В пешей доступности от ЖК есть школа, два детских сада, магазины, амбулатория, ФОК, остановка общественного транспорта. Крупные магазины, торговые центры, парки и развлечения есть в ближайшем городе Гатчина. До центра Санкт-Петербурга можно доехать на машине за 50 минут.
Цены
По данным сайта застройщика, самая доступная квартира в продаже в августе 2024 года — студия без балкона площадью 18,6 кв. м в строящемся третьем корпусе. Её стоимость — 2 612 400 рублей. Самая дорогая квартира — трёхкомнатная площадью 84,9 кв. м в сданном доме. Она стоит 8 532 450 рублей.
Средняя стоимость квадратного метра в ЖК, по данным сервиса Яндекс Недвижимость на июль 2024 года, начинается от 91,8 тыс. рублей («трёшки») до 140,4 тыс. рублей (студии). Сравнить можно с другим комплексом комфорт-класса в Гатчинском районе. В квартале «IQ Гатчина» средняя цена метра — от 146,4 тыс. рублей («трёшки») до 186,3 тысяч («однушки»).
Цены на квартиры в ЖК «Верево Сити» (по данным застройщика и сервиса Яндекс Недвижимость)
Количество комнат | Площадь, м² | Минимальная стоимость, млн ₽ (август 2024) | Средняя цена за 1 м², тыс. ₽ (август 2024) |
Студия | от 17,6 | 2,6 | 140,3 |
1 | от 34,3 | 3,7 | 107,7 |
2 | от 50,4 | 5,6 | 104,5 |
3 | от 79,4 | 8,1 | 91,8 |
Купить квартиру в ЖК «Верево Сити» можно за наличный расчет, по программе классического кредитования или льготной ипотеки.
- 6,85 млн ₽деревня Малое Верево, жилой комплекс Верево-СитиМосковская 52 мин.
- 4,53 млн ₽деревня Малое Верево, жилой комплекс Верево-СитиМосковская 52 мин.
- 5,99 млн ₽деревня Малое Верево, жилой комплекс Верево-СитиМосковская 52 мин.
- 6,33 млн ₽деревня Малое Верево, жилой комплекс Верево-СитиМосковская 52 мин.
- 6,33 млн ₽деревня Малое Верево, жилой комплекс Верево-СитиМосковская 52 мин.
- 6,33 млн ₽деревня Малое Верево, жилой комплекс Верево-СитиМосковская 52 мин.
- 5,99 млн ₽деревня Малое Верево, жилой комплекс Верево-СитиМосковская 52 мин.
- 4,37 млн ₽деревня Малое Верево, жилой комплекс Верево-СитиМосковская 52 мин.
- 5,89 млн ₽деревня Малое Верево, жилой комплекс Верево-СитиМосковская 52 мин.
- 3,99 млн ₽деревня Малое Верево, улица Кутышева, 9к2Проспект Ветеранов 55 мин.
- 4 млн ₽деревня Малое Верево, жилой комплекс Верево-СитиМосковская 52 мин.
- 2,97 млн ₽деревня Малое Верево, Сиреневая улица, 25к1Проспект Ветеранов 59 мин.
- 7,99 млн ₽деревня Малое Верево, улица Кутышева, 9Вк10Проспект Ветеранов 57 мин.
- 5 млн ₽деревня Малое Верево, жилой комплекс Верево-СитиМосковская 52 мин.
- 8,1 млн ₽деревня Малое Верево, жилой комплекс Верево-СитиМосковская 52 мин.
- 4,2 млн ₽деревня Малое Верево, жилой комплекс Верево-СитиМосковская 52 мин.
Архитектура
Дома в ЖК «Верево Сити» построены по монолитной технологии, фасады утеплены. Корпуса расположены блоками, которые образуют закрытые дворы с зонами отдыха для взрослых и детей.
Фасад
Все дома в комплексе — четырёхэтажные. Фасады оформлены в спокойной бело-серой гамме с яркими акцентами красного, синего, жёлтого и зелёного цветов.
Планировки и отделка
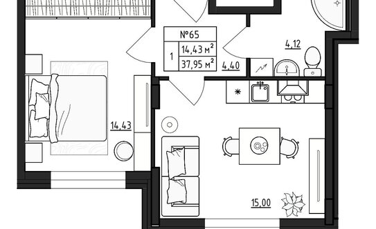
В комплексе можно купить студии и квартиры с одной, двумя и тремя комнатами площадью от 17,6 до 84,9 кв. м. В линейке есть классические планировки и евроварианты. В некоторых квартирах предусмотрены ниши под организацию хранения, кладовые, гардеробные, раздельные санузлы, просторные коридоры, небольшие лоджии. Есть варианты со свободными планировками.
Высота потолков в квартирах — 2,76 м, размеры окон — 1,8 х 1,8 м.
Студия
Квартиры сдаются с черновой отделкой, в которую входят следующие работы:
- стяжка пола;
- гидроизоляция в санузлах;
- установка металлической входной двери с комплектом фурнитуры;
- холодное остекление балконов и лоджий;
- горизонтальная разводка отопления, установка радиаторов;
- монтаж вводов канализации, холодного и горячего водоснабжения без внутриквартирной разводки;
- электропроводка с установкой розеток и выключателей белого цвета;
- установка счётчиков.
Инфраструктура комплекса
Входные группы. Двери в подъездах будут прозрачными. В холлах организованы колясочные. Так как дома четырёхэтажные, лифтов в домах нет.
Вход в подъезд
Двор. Дворы в ЖК «Верево Сити» закрыты от посторонних. Здесь высажены деревья, кустарники и травянистые растения, а вдоль домов тянется живая изгородь из жимолости, барбариса и сирени. Внутренняя территория разделена на зоны для активного детского и спокойного отдыха. Здесь есть скамейки, пешеходные тротуары, площадки для игр и спорта, места для выгула домашних животных. Все дворы освещаются и находятся под видеонаблюдением.
Двор в ЖК
Паркинги. Около каждого жилого корпуса во дворе выделены места для парковки автомобилей.
Парковка около дома
Для детей. Во дворах организованы детские площадки, которые максимально удалены от проезжей части. До школы и детского сада ведут пешеходные зоны.
Детская площадка
Покупки и отдых. На первых этажах домов откроются магазины, кафе, пекарни, аптеки и пр. При въезде на территорию ЖК будет построен современный торговый центр с супермаркетом, фитнес-клубом и другими сервисами.
Коммерческие помещения на первом этаже
- Купили квартиру, чисто, не многолюдно. Дома 4х этажные, с парковкой нет проблем. Детсад и школа в 1,2км(15мин) от домов. Есть валбериз и озон, продуктовый магазин, планируется магнит или пятерочка. До автобусной остановки на СПБ 1,2км пешком(15мин), до жд старое мозино 2,2км пешком(далековато). Вообщем хорошее место, не шумно, вони нет.
- 5я очередь построена хорошо, стены ровные, при приёмке замечаний ноль. Из минусов: балкон 70см в ширину, отопление проведено по полу, ввод воды под потолком. Деревня рядом, школа. Два детских сада, большая промзона, магазины, заправки. Все есть.
- Новый микрорайон. Дома невысокой застройки. Магазинов пока мало, но пункты выдачи маркетплейсов уже работают. Есть оборудованные детские площадки. С транспортом пока проблема, но хочется верить, что по мере застройки и заселения вопрос решится. Тихо, спокойно, чисто в квартире очень тепло.
- Квартал уютный, но близкой транспортной доступности пока нет, до автобуса идти мин 10- 15, сетевые магазины там же, у остановок, на территориии есть Кебаб 24,вкусно,кстати,и не дорого.Квартиры слеплены абы как, не продумано ничего. Окна стоят не по уровню и косолапо, заявляют о панорамных окнах, но их нет, есть французский балкон в некоторых, на этом панорамы закончились) Встречаются стены заваленые на 3- 4 см, углы кривые,розетки за полотенцесушителем, а так, все неполохо, рекомендую, людей живет мало, можно шуметь перфоратором)
- Внешне район выглядит современно но стоит в частном секторе где не совсем уместно смотрится. Сами дома построены с очень спорными решениями. Нет подвалов и чердаков, поэтому все коммуникации водопровод отопление и электрика со слаьоточной системой, которые в других домах идут по техническому этажу, здесь находятся за потолком коридора первого этажа. Первый этаж он же цокольный, находится на уровне земли, соответственно в мокрое время года первый этаж весь цветёт плесенью, с чем застройщик пытается бороться обработкой гидроизоляцией изнутри, что не решает проблем. В квартиры заведены тв, домофон и радио. А вот интернет кабель не позаботились ввести, очередной вопрос к проектировщикам.
Транспорт
Остановка общественного транспорта «Большое Верево» находится в 13 минутах пешком. От остановки ходят автобусы и маршрутки до Гатчины и станции метро «Московская», путь займёт 40 минут. Недалеко есть ж/д станция «Старое Мозино», от которой ходят электрички до Балтийского вокзала.
На автомобиле до Санкт-Петербурга можно доехать по Киевскому шоссе. Путь до Сенной площади в центре города займёт 50 минут, а до аэропорта Пулково — 25 минут.
О застройщике
Проект «Верево Сити» строит группа компаний «НСК». Организация основана в 1999 году и работает в Санкт-Петербурге и Ленинградской области. ГК построила жилые комплексы «Шоколад», «Брусничный», «Брусничный-3», «Альтернатива» и «Ладожский берег».
В настоящий момент компания также строит ЖК комфорт-класса «Аннино Сити» в Ломоносовском районе.
О деревне Малое Верево
Жилой комплекс «Верево Сити» расположен в деревне Малое Верево Гатчинского района на юго-западе Ленинградской области. Деревня находится в 22 км от Санкт-Петербурга и в 3 км от Гатчины.
Малое Верево — административный центр Веревского сельского поселения. Неподалеку расположены населённые пункты Большое Верево, Вайя, Новое Мозино, Старое Мозино, сельхозугодья и лесные массивы. В 2021 году в деревне проживало больше 5000 человек.
История района
На карте Санкт-Петербургской губернии 1792 года в этой местности была обозначена одна деревня — Верева. Согласно «Топографической карте частей Санкт-Петербургской и Выборгской губерний», в 1860 году деревня разделилась. Её меньшая часть состояла из трёх крестьянских дворов и получила название Малая Верева.
В начале 20 века население деревни было исключительно финским. В 1926 году, согласно переписи населения СССР, в деревне Малое Верево проживали 128 человек — финны и русские.
Поселение в разные годы носило разные названия, одно из них — финское Мюллюкюля. Современное название, возможно, происходит от шведского слова «ver» — огонь.
Инфраструктура района
Образование. Веревская общеобразовательная школа находится в 1,5 км от ЖК — до неё можно дойти за 17 минут. Рядом с ней — два филиала детского сада №16.
В Гатчине есть детская музыкальная школа, центр детского творчества, детская школа искусств и другие заведения дополнительного образования. Путь до них займёт около 15 минут на авто.
Медицина. Веревская сельская амбулатория находится в 14 минутах ходьбы. В районе открыта одна аптека «Мелодия здоровья». Частных медицинских центров в деревне нет.
В Гатчине есть центральная районная больница и детская поликлиника. Также там открыты частные медицинские центры и лаборатории.
Покупки и отдых. В деревне Малое Верево работают супермаркеты «Магнит», «Фасоль», «Пятерочка», пункты выдачи онлайн-заказов, косметический магазин «Магнит Косметик». Кафе здесь не много: «Ван», Orange Cafe и «Фингер-Фуд», пекарня «Мой Батуми», заведения быстрого питания. Также в деревне находится небольшой банный комплекс «Эко СПА».
Достопримечательности. В соседнем городе расположен Государственный дворцово-парковый музей-заповедник «Гатчина». Здесь можно отдохнуть на природе или заглянуть в дворцы-музеи. Парк и исторический центр города включены в список всемирного наследия ЮНЕСКО.
Дворцовый парк в Гатчине. Фото: Елена Тромме (Яндекс Карты)
Заповедник «Дудергофские высоты» с необычной холмистой местностью находится в 15 минутах на авто. До Пушкина с музеем-заповедником «Царское Село», Екатерининским парком и другими достопримечательностями тоже недалеко — 25 минут.
Царское село. Фото: Florstein (Wikimedia Commons)
Спорт. В деревне открыт ФОК «Верево» с детскими секциями по футболу, волейболу, единоборствам, настольному теннису и др. Для взрослых проводятся занятия по суставной гимнастике. В 800 метрах от ЖК «Верево Сити» находятся два конных клуба «Хорс Трэвел» и «Старт», в которых можно записаться на конную прогулку или спортивную тренировку.
В Гатчине открыты три детские спортивные школы. Также здесь расположено много фитнес-центров. В клубах «Атлантика», «Волна» и «Профит» есть бассейны.
За 20 минут от ЖК можно доехать до горнолыжного комплекса «Туттари-парк».
Туттари-парк. Фото: Сергей Локтионов (Яндекс Карты)
Экологическая обстановка
В Гатчине много промышленных производств. Например, Гатчинский завод порошковых красок, крупный домостроительный комбинат «Гатчинский ССК», производитель железобетонных изделий «ЛСР. Железобетон-СЗ», производство трубопроводной арматуры «Буревестник» и другие. В пяти километрах от деревни Малое Верево расположен мусорный полигон «Новый свет», который принимает отходы из 10 районов Санкт-Петербурга. Все эти предприятия могут загрязнять воду и воздух.
Дудергофские высоты. Фото: Алексей (Яндекс Карты)
Будущее района
Девелопер проекта «Верево Сити» — группа компаний «НСК» — в конце 2023 года начал обустраивать тротуар от Киевского шоссе до комплекса. По новой пешеходной дорожке можно будет безопасно и удобно добираться до остановки и магазинов.
Также рядом с жилым комплексом появится благоустроенный парк «Яблоневый сад» с тротуарами, велодорожкой, зонами отдыха и спорта. Его строительством занимается администрация в рамках муниципальной программы «Формирование комфортной городской среды» национального проекта «Жильё и городская среда».
ЖК «Верево Сити»
Недостатки района
В деревне Малое Верево нет медицинских учреждений (кроме амбулатории), торговых центров и других развлечений.
Недостаток Гатчинского района в целом — неудовлетворительная экологическая обстановка.
Резюме
Жилой комплекс эконом-класса «Верево Сити» расположен в деревне Малое Верево в 22 км от Санкт-Петербурга. В населённом пункте есть минимальный набор необходимой инфраструктуры: школы, детские сады, амбулатория, продуктовые магазины и кафе.
ЖК состоит из 14 четырёхэтажных домов, 10 из которых уже сданы. Комплекс полностью закончат во втором квартале 2025 года. На территории ЖК благоустроят и озеленят дворы, организуют парковочные места и построят торговый центр.
ЖК «Верево Сити»
В ЖК продаются студии, однокомнатные, двухкомнатные и трёхкомнатные квартиры. Площадь жилья — от 17,6 до 84,9 кв. м, стоимость — от 2,4 млн рублей.
К недостаткам можно отнести скудную инфраструктуру населённого пункта: кроме амбулатории, здесь нет других медицинских учреждений, также пока недостаточно торговых точек.
Предложения застройщиков в районе
В деревне Малое Верево нет других строящихся комплексов, поэтому мы добавили предложения из ближайшего города — Гатчины.
Название ЖК | Цена квартир, млн ₽ | Застройщик | Площадь, м² | Сроки сдачи | Транспортная доступность | Отделка |
«Орловский бульвар» | «СК Спутник» | от 32,3 до 89,1 | 3–4 кв. 2024 | 36 мин на транспорте до ст.метро «Московская», 8 мин до ж/д станции «Новое Мозино» | Без отделки | |
«IQ Гатчина» | «Ленстройтрест» | от 25,3 до 93 | 3 кв. 2025, есть сданные | 6 мин. на транспорте до вокзала «Татьянино», 30 мин. на машине до КАД | Под ключ, без отделки, чистовая | |
«Феникс» | «НЭК Холдинг» | от 33,3 до 175,4 | сдан | 30 мин. на машине до КАД, 7 мин. на транспорте до вокзала «Татьянино» | Без отделки, чистовая] |