Sport Village — жилой комплекс класса «комфорт+», строящийся на севере Краснодара. ЖК состоит из восьми корпусов и благоустроенной территории с прогулочными аллеями, детскими площадками, коммерческой зоной и спортивным кластером.
Комплекс сдаётся в три очереди, часть корпусов уже введена в эксплуатацию. Окончательное завершение строительства запланировано на I квартал 2025 года. Подробнее о комплексе Sport Village — в нашем обзоре.
О жилом комплексе
Sport Village строится в Прикубанском внутригородском округе Краснодара. Восемь среднеэтажных корпусов вместят в себя 1881 квартиру с разным количеством комнат. На закрытой озеленённой территории ЖК появятся игровые площадки, спортивные зоны с турниками и уличными тренажёрами, а также велодорожки. Запланированы также прогулочные аллеи с лавочками, беседками и зоной гамаков. На первых этажах домов предусмотрены коммерческие помещения, где откроются магазины, кафе, аптеки, салоны красоты и другие организации.
Вид на ЖК сверху
Цены
В Sport Village продаются квартиры с одной, двумя, тремя и четырьмя комнатами. Cамое дешёвое предложение в комплексе — однокомнатная квартира площадью 30,2 кв. м по цене 6 085 300 рублей, а самое дорогое — двухкомнатная квартира площадью 59,8 кв. м, которая продаётся за 10 584 600 рублей.
По данным сервиса Яндекс Недвижимость, cредняя цена квадратного метра в ЖК находится в диапазоне от 168 356 рублей (трёхкомнатные квартиры) до 195 911 рублей (однокомнатные квартиры).
Sport Village находится в активно застраиваемом районе Краснодара, рядом с ним много других ЖК со схожими предложениями. Ближайшие аналоги класса «комфорт+» — комплексы «Югге» и «Друзья». Оба предлагают более широкий выбор планировок: помимо квартир с 1-3 комнатами в них есть студии. Расценки в этих ЖК ниже, чем в Sport Village: квадратный метр в однокомнатной квартире в «Югге» в среднем стоит 143 725 рублей, а в «Друзьях» — 157 583 рублей.
Квартиры в Sport Village можно купить в кредит, в том числе и со льготами для военнослужащих и IT-специалистов. При покупке жилья можно использовать средства материнского капитала, как в качестве первоначального взноса, так и в качестве частично досрочного погашения. Расценки на жильё в Sport Village приведены ниже.
Количество комнат | Площадь, м² | Средняя стоимость, млн ₽ (декабрь 2024) | Средняя цена за 1 м², тыс. ₽ (ноябрь 2024) |
1 | 30-35 | 6,4 | 195,9 |
2 | 42-60 | 8,72 | 170,1 |
3 | 51-68 | 9,8 | 168,4 |
- 6,95 млн ₽улица имени Генерала Корнилова, 14к1
- 10,76 млн ₽улица имени Генерала Корнилова, 12к1
- 7,12 млн ₽улица имени Генерала Корнилова, 14к1
- 6,41 млн ₽улица имени Генерала Корнилова, 16к1
- 6,49 млн ₽улица имени Генерала Корнилова, 16
- 6,57 млн ₽улица имени Генерала Корнилова, 18
- 6,59 млн ₽улица имени Генерала Корнилова, 18
- 6,62 млн ₽улица имени Генерала Корнилова, 18
- 4,4 млн ₽улица имени Генерала Корнилова, 18
- 5,99 млн ₽улица имени Генерала Корнилова, 12к1
- 13,9 млн ₽улица имени Генерала Корнилова, 12
- 3,6 млн ₽улица имени Генерала Корнилова, 12
- 7,5 млн ₽улица имени Генерала Корнилова, 14к1
- 5,1 млн ₽улица имени Генерала Корнилова, 16к1
- 7,4 млн ₽улица имени Генерала Корнилова, 14
- 9,3 млн ₽улица имени Генерала Корнилова, 14
- 4 млн ₽улица имени Генерала Корнилова, 14к1
Архитектура
В состав жилого комплекса входят восемь девятиэтажных корпусов. Чтобы сохранить архитектурный облик зданий, застройщик предусмотрел фасадные корзины для наружных блоков сплит-систем. Дома в в Sport Village строятся по кирпично-монолитной технологии.
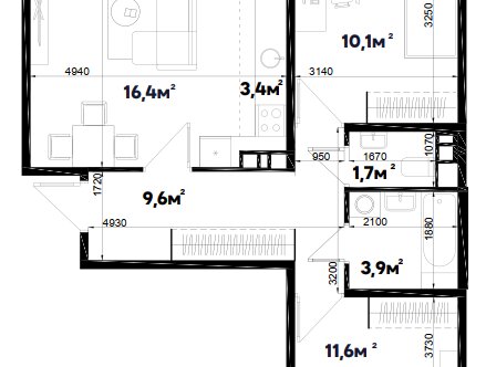
Планировки и отделка
В Sport Village можно купить квартиры с одной, двумя и тремя комнатами площадью от 30 до 68 кв. м. Предложения делятся на две категории: «стандарт» и «смарт». К первой категории относятся планировки с наибольшей площадью, а ко второй — варианты с меньшей квадратурой, но с оптимально спланированным пространством для всех необходимых помещений и мебели. Есть предложения с кухнями-нишами, совмещёнными и раздельными санузлами. Открытых балконов нет, во всех вариантах предусмотрены застеклённые лоджии.
Квартиры в комплексе сдаются с предчистовой отделкой: стены оштукатурены, выровнены и готовы для поклейки обоев или покраски, а также сделана стяжка с увеличенной шумоизоляцией, подготовлены электропроводка, выключатели и розетки, установлены батареи, проложены трассы-выводы для сплит-систем. Покупатели также могут заказать полную отделку под ключ.
Инфраструктура комплекса
Входные группы. Входы в здания расположены на уровне земли. В холлах сделан дизайнерский ремонт, там предусмотрены места для хранения колясок и велосипедов.
Подъезд
Паркинг. На придомовой территории запланированы парковочные зоны как для жильцов комплекса, так и для их гостей. Машиноместа отделены от аллей и площадок.
Парковка
Дворы. В ЖК будет закрытая благоустроенная территория с круглосуточным видеонаблюдением. Для детей сделают игровые площадки с горками, качелями и развивающими комплексами, а для любителей активного отдыха — спортивные зоны с турниками и уличными тренажёрами, а также велодорожки. Для тех, кто предпочитает спокойный досуг, проложат прогулочные аллеи с лавочками, беседками и зона гамаков.
Двор
Покупки и отдых. На первых этажах домов предусмотрены коммерческие помещения, где откроются магазины, кафе, аптеки, салоны красоты и другие организации.
- Район отличный, все в пешей доступности, планируется еще в ЖК открытие коммерции. Есть площадки для прогулки, фонтан и еще планируется открытие кинозоны
- Очень уютный жилой комплекс! Прекрасные оригинальные детские площадки,территория огорожена,что в наше время немаловажно. Внутренние дворики ухоженные, с особым микроклиматом ,есть свой фонтан. Район строящийся,поэтому инфраструктура только развивается,но с перспективой будет и детсад,и школа. Из магазинов Магнит и Гранат, и также имеются пункты Озон и WB. Ну,в общем, приятный спальный ЖК.
- Классный закрытый и ухоженный двор. Причём у каждого двора разный ландшафтный дизайн. Можно переходить от двора ко двору для разнообразия локации. Жк удалён от дороги, благодаря чему не слышен шум дороги. Рядом построен детский сад, который в скором будущем заработает.
- Качественные дома, парковочных мест достаточно. Закрытая территория, места для занятий спортом. Купили здесь квартиру, пока всё нравится, недочётов при приёме было мало, застройщик всё быстро устранил. Торговля вынесена за пределы забора, но это и не плохо :здесь живут , а не торговый кластер. Транспортная логистика в целом нормальная, ждём когда дотянут "железку". Девелопмент-юг честный застройщик, все обещания застройщика выполнены, респект!
- Современный, благоустроенный жилой комплекс. Система Умный дом, закрытая территория с охраной и откатными воротами, ландшафтный дизайн, зоны отдыха и каворкинг, красивые подъезды, дренажная система которая убрала с фасада дома касающиеся трубки кондиционеров. Расположен вдали от трассы, рядом, в шаговой доступности, уже функционирует новая школа и два садика. Магазинов поблизости ещё нет, но уже сдаются в эксплуатацию коммерческие помещения в соседних домах. Небольшая высотность и просторные дворы. Дворы без парковок. Из минусов пожалуй то, что недалеко аэродром. Ещё в одном из дворов фонтан который доступен только жителям ЖК и их гостям.
Транспорт
Дома строятся на улице Западный Обход, между улицами Генерала Корнилова и Кудухова. Дорога от Sport Village до центра Краснодара на машине займёт 45 минут, на автобусе — 1 час. В 1 км от комплекса (или в 10 минутах ходьбы), есть остановка общественного транспорта «ЖК „Спортивная деревня“». Ближайший крупный зелёный объект — Ботанический сад им. Косенко. Он находится в 6 км от ЖК или в 23 минутах на автомобиле, на автобусе можно доехать за 35 минут.
О застройщике
Строительно-инвестиционная корпорация «Девелопмент-Юг» была основана 1 марта 1995 года в Краснодаре. Сейчас застройщик входит в 30 самых крупных девелоперских компаний страны, его проекты реализуются в Краснодарском, Приморском и Пермском краях, а также в Свердловской, Ростовской и Астраханской областях. На данный момент компания строит в Краснодаре ещё один ЖК — Development Plaza.
О Прикубанском округе
Прикубанский внутригородской округ — самый большой по площади район Краснодара, при этом граничащий с центральной частью города. Его удобное расположение и масштабная территория привлекают внимание застройщиков, благодаря чему здесь активно появляются новые жилые комплексы. Кроме того, округ уже располагает развитой инфраструктурой.
История округа
В 1978 году, спустя всего три года после создания района, границы Прикубанского округа были расширены за счет присоединения новых территорий, включая Калинино и станицу Елизаветинскую. В 1990-х годах район стал административным округом, а с 2004 года часть его земель была включена в состав города Краснодара.
Стадион «Краснодар» в Прикубанском округе. Фото: Andrey Butko (Wikimedia Commons)
Инфраструктура округа
Медицина. В Прикубанском округе функционирует более 40 медицинских учреждений, включая городские больницы и поликлиники, краевые клинические больницы, психиатрическую и детскую инфекционную больницы. Помимо этого, здесь работают детские стационары и перинатальные центры, обеспечивающие широкий спектр медицинских услуг.
Аптечная сеть в округе развита хорошо: представлены как крупные бренды, такие как «Будь Здоров!», «Ригла» и «Магнит Аптека», так и пункты выдачи интернет-заказов, включая «Еаптека».
Образование. В Прикубанском районе действует более двухсот детских садов и яслей, включая частные заведения, центры раннего развития и детсады выходного дня. Открыто более 20 школ, среди которых гимназии, лицеи и частные учебные заведения, такие как «Квентин Дети».
На территории округа есть также несколько вузов: Краснодарский университет МВД России, Краснодарский филиал РЭУ им. Г. В. Плеханова, Кубанский государственный университет, Краснодарский филиал финансового университета при Правительстве РФ и другие.
Филиал РЭУ им.Плеханова. Фото: Антон Тимофеев (Wikimedia Commons)
Спорт. В самом крупном округе Краснодара функционирует свыше 100 фитнес-центров, в том числе известные сетевые клубы. Работают школы танцев, секции борьбы и теннисные клубы с собственными кортами.
Для любителей водных видов спорта есть бассейны, в том числе открытые, которые входят в инфраструктуру курортного комплекса Santorini. Кроме того, в Прикубанском районе находятся хоккейный и футбольный стадионы.
Покупки и отдых. На территории Прикубанского округа работают крупные торговые центры, такие как «Красная Площадь», «Московский», «Любимово», «Сказка» и другие.
ТЦ Любимово. Фото: Яндекс
Кроме того, открыты три кинотеатра, есть спа-салоны и центры красоты. Продуктовые магазины представлены как небольшими точками, так и популярными сетевыми супермаркетами «Магнит», «Пятёрочка» и «Перекрёсток».
Экологическая обстановка
Одной из главных проблем округа остаются свалки. По данным Росприроднадзора, именно в Прикубанском чаще всего фиксируются зоны скопления мусора, хотя значительная часть его постепенно ликвидируется.
Кроме того, в округе ощущается нехватка парков. Большинство зелёных зон находятся ближе к центральным районам Краснодара, что создаёт неудобства для жителей более удалённых территорий. Чтобы попасть в ближайший парк, многим приходится пользоваться общественным транспортом или личным автомобилем.
Ботанический сад им. И.С. Косенко. Фото: Александра (Яндекс Карты)
Будущее округа
- Планируется развитие одной или нескольких зелёных зон: Тургеневского сквера на пересечении улиц Тургенева и Яна Полуяна, бульвара им. Кирилла Россинского в посёлке Краснодарском, Шаляпинского бульвара и парка «Святоникольский» в посёлке Индустриальный.
- В 2024 году на улице Кирилла Россинского ожидается строительство газопровода высокого давления.
- Власти выделят 1,3 млрд руб на модернизацию очистных сооружений в округе.
- Администрация планирует потратить 1,5 млн рублей на ликвидацию стихийных свалок в районе
- В Прикубанском округе Краснодара под комплексное развитие территории отвели новые земли площадью 101 га.
Недостатки округа
К числу основных недостатков Прикубанского округа жители относят неблагоприятную экологическую обстановку, удалённость многих микрорайонов от центра города и парков, а также наличие промышленных объектов и мусорных полигонов на его территории.
Резюме
Sport Village — жилой комплекс класса «комфорт+», строящийся в Прикубанском округе Краснодара. В ЖК можно купить квартиры с одной, двумя и тремя комнатами. Инфраструктура комплекса будет включать в себя оборудованные прогулочные зоны, детские игровые площадки и пространства для занятия спортом, в том числе велодорожки. На первых этажах домов появится коммерческая зона с кафе, магазинами и т.д.
Благоустроенная территория и множество возможностей для проведения активного досуга делают Sport Village привлекательным вариантом для покупателей с детьми, однако на территории ЖК нет образовательных учреждений — до ближайших школ придётся ехать на автомобиле. Припарковать автомобиль можно будет только на открытой парковке, что может быть неудобно, особенно в жару и в холод.
Предложения застройщиков в районе
Название ЖК | Цена квартир, млн ₽ | Застройщик | Площадь, м² | Сроки сдачи | Транспортная доступность | Отделка |
«Облака» | «Кубанский Специализированный Застройщик» | от 50,7 до 79,9 | IV квартал 2025 – I квартал 2026, есть сданные | до центра города — 32 минуты на транспорте | предчистовая | |
«Друзья» | «Семья» | от 27,7 до 83,4 | IV квартал 2024 – III квартал 2025 | до центра города — 29 минут на транспорте | предчистовая | |
DOGMA | от 19,8 до 223,7 | I – IV квартал 2026, есть сданные | до центра города — 26 минут на транспорте | под ключ | ||
«Событие» | «Стройград» | от 33,1 до 77,4 | IV квартал 2024 | до центра города — 32 минуты на транспорте | нет информации | |
«Станиславский» | «ГК Континент» | от 23,8 до 135,7 | III квартал 2026 | до центра города — 25 минуты на транспорте | предчистовая |