«РАЗУМ в Академическом» — жилой комплекс на юго-западе Екатеринбурга от застройщика «РАЗУМ». Проект возводится в несколько очередей. Первые четыре дома построят в 2025-2027 годах.
В ЖК продаются квартиры от студий до трёхкомнатных с предчистовой отделкой. Особенность проекта — увеличенные окна. Цены на жильё начинаются от 5,1 млн рублей. Подробнее о комплексе «РАЗУМ в Академическом» — в нашем обзоре.
О жилом комплексе
Проект «РАЗУМ в Академическом» состоит из семи жилых корпусов. На данный момент возводят следующие дома:
- дома 1 и 2 — сдача IV квартале 2025 года;
- дом 3 — сдача в I квартале 2026 года;
- дом 4 — сдача в III квартале 2027 года.
Жилой комплекс строится на улице Амундсена, в новой части Академического района. Вокруг пока практически нет инфраструктуры, но со сдачей новостроек ситуация изменится: откроются магазины, кафе и сервисы, а также появится новый выезд из района в сторону ЕКАД.
Цены
По данным сервиса Яндекс Недвижимость на начало января 2025 года, самая доступная квартира в комплексе — студия площадью 26,24 кв.м. Её стоимость — 5 150 000 рублей. Самая дорогая квартира в продаже — трёхкомнатная площадью 66,58 кв.м. Она стоит 10 120 000 рублей.
Средняя стоимость квадратного метра находится в диапазоне от 148,3 тыс. рублей (трёхкомнатные) до 190,9 тыс. рублей (студии).
Для сравнения: в ЖК «Центральный Парк» стоимость метра меньше — от 137 (трёхкомнатные) до 167,1 тысячи рублей (студии). В квартале «Брусника в Академическом» цена на метр также ниже — от 131,1 (трёхкомнатные) до 186,9 тысячи рублей (студии).
Цены на квартиры в ЖК «РАЗУМ в Академическом» (по данным сервиса Яндекс Недвижимость и сайта застройщика)
Количество комнат | Площадь, м² | Минимальная стоимость, млн ₽ (январь 2025) | Средняя цена за 1 м², тыс. ₽ (декабрь 2024) |
Студия | от 26,2 | 5,1 | 190,9 |
1 | от 30,7 | 5,7 | 177,4 |
2 | от 47,5 | 7,2 | 154,3 |
3 | 66,6 | 9,7 | 148,3 |
- 8,11 млн ₽Екатеринбург, микрорайон Академический, 20-й кварталПлощадь 1905 года 31 мин.
- 7,35 млн ₽микрорайон Академический, 20-й кварталБотаническая 59 мин.
- 7,4 млн ₽Екатеринбург, микрорайон Академический, 20-й кварталПлощадь 1905 года 31 мин.
- 6,85 млн ₽Екатеринбург, микрорайон Академический, 20-й кварталПлощадь 1905 года 31 мин.
- 9,9 млн ₽микрорайон Академический, 20-й кварталБотаническая 59 мин.
- 7,07 млн ₽Екатеринбург, микрорайон Академический, 20-й кварталПлощадь 1905 года 31 мин.
- 7,35 млн ₽микрорайон Академический, 20-й кварталБотаническая 59 мин.
- 7,84 млн ₽микрорайон Академический, 20-й кварталБотаническая 59 мин.
- 5,95 млн ₽улица Амундсена, 3Чкаловская 17 мин.
- 5,4 млн ₽Екатеринбург, микрорайон Академический, 20-й кварталЧкаловская 36 мин.
- 4,49 млн ₽Екатеринбург, микрорайон Академический, 20-й кварталЧкаловская 15 мин.
- 6,15 млн ₽Екатеринбург, микрорайон Академический, 20-й кварталЧкаловская 15 мин.
- 5,75 млн ₽Екатеринбург, микрорайон Академический, 20-й кварталЧкаловская 15 мин.
- 6,65 млн ₽Екатеринбург, микрорайон Академический, 20-й кварталЧкаловская 15 мин.
Архитектура
Проект комплекса «РАЗУМ в Академическом» состоит из семи домов высотой от 12 до 24 этажей. Корпуса построены по блочной технологии.
Первые два этажа в домах облицованы жидким камнем. На фасадах выше — композитные панели латунного цвета. Оконные рамы выполнены в графитовом цвете и не выбиваются из общего архитектурного стиля. Арки придают домам выразительности.
Внешний вид домов
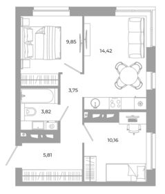
Планировки и отделка
В жилом комплексе представлено 25 планировок от студий до трёхкомнатных. Можно подобрать квартиру с нишей под хранение, дополнительным санузлом, угловым остеклением. Все варианты, кроме студий, имеют кухню-гостиную размером от 14 кв.м. Отличительная особенность проекта — увеличенные площади остекления с отступом от пола 60 см. Балконы в квартирах не предусмотрены.
Жильё сдаётся с предчистовой отделкой. В квартирах выровнены стены, установлены радиаторы отопления, выполнена разводка труб, введена электроразводка и кабель под ТВ и интернет.
Инфраструктура комплекса
Входные группы. Подъезды имеют безбарьерный вход, для удобного прохода жителей с колясками, велосипедами и чемоданами. Высота потолков в лобби — 3,7 метра, здесь также разместятся мягкие зоны ожидания. По периметру комплекса и в подъездных холлах установлено видеонаблюдение.
Входная группа
На первом этаже расположена просторная охраняемая колясочная с выходом во двор, на -1 этаже предусмотрено пространство для хранения велосипедов. В домах установлены по три бесшумных скоростных лифта KOYO.
Колясочная
Двор. Территория двора разделена на функциональные зоны для отдыха, общения и спорта. Выделена также зона с городскими грядками, на которых можно выращивать зелень. Также здесь появятся водные конструкции, бесплатный Wi-Fi и многоуровневое освещение. Озеленение займёт 60% площади двора.
Двор
Двор полностью закрыт от посторонних и машин, доступ на территорию будет только у жителей.
Для детей. Во дворе обустроят детскую площадку из натуральных материалов, которые не замерзают на морозе и не нагреваются на солнце. Также предусмотрены нестандартные игровые зоны — ростовые шахматы и тарзанка.
Детская площадка
Покупки и отдых. В лесу около комплекса обустроят экотропу для прогулок.
Экотропа
Паркинги и кладовые. В домах предусмотрено более 60 кладовых на цокольном этаже и по три кладовые на каждом жилом этаже. Для автомобилей есть открытые парковочные места.
Кладовая
- Странный застройщик. Все очень красиво описывают, но готовность объектов очень разница со словами. Цены не низкие, а инфраструктура при этом отсутствует. Вобщем одни обещания пока, посмотрим что в итоге построят. На фото дом со сроком сдачи в течении двух месяцев (по их заверениям)
- Будущие жители! Я вас расстрою, но зимой вы не заедете и даже весной, это точно! К сожалению, в сроки сдать дома не успеют. Обещали 1 и 2 дом в 4 квартале 2025 года сдать, но он уже подходит к концу! А дома только обшивать начали… я молчу о 3 доме, который по срокам должен быть в 1 квартале 2026 года… И да! На сайте уже перенесли сроки 1 и 2 дома, теперь их тоже обещают сдать в 26 году в 1 квартале, хотя, этого тоже не произойдет! Дай Бог заехать к лету, что тоже мало гарантировано… очень жаль… хотя времени у застройщика было достаточно. Зато мы еще 3 проекта запускаем в Екатеринбурге! Супер! Молодцы! Так держать! Ну а про дорожную развязку я вообще молчу, строительство улицы Амундсена уже как год стоит и не сдвигается, со стороны жк тоже ничего не делают, а там даже словами трудно описать, весь кошмар ситуации! (Болото, все перекопано, плиты разъехались! В общем, пока только растраиваться остаётся(((
- Благодарю застройщика Разум за работу . Купили квартиру , ждем ключи . Отличный район. Очень клиентоориентированны . Отдельная благодарность за подарок от застройщика .
- Выражаем благодарность менеджеру ЖК Разум Тимуру Ахмадиеву! Подобрал квартиру для нашей семьи, которую мы хотели. Рассказал подробно об проекте. Грамотный специалист, работающий на своём месте и знающий свою сферу деятельности на все 100 %.
- Застройка разноуровневая, много зелени вокруг будет - интересный проект. В отделе продаж хорошие менеджеры работают.
Транспорт
Общественный транспорт. Ближайшие остановки «ТК Академический», «Дворец дзюдо» и «Преображенский квартал» расположены в 25-30 минутах ходьбы. От них ходят маршруты в разные районы города. Путь от ЖК до станции метро «Чкаловская» или Площади 1905 года займёт чуть больше часа без пробок, до УрФУ — один час 15 минут.
Автомобиль. ЖК расположен на улице Амундсена, по которой можно выехать на Объездную дорогу и Московскую улицу — одни из главных транспортных магистралей города. Путь на автомобиле до ТРЦ «Гринвич» займёт около получаса, до аэропорта «Кольцово» — 35 минут.
О застройщике
Застройщик проекта — «РАЗУМ». Девелопер работает в Астраханской и Свердловской областях. По данным ЕРЗ, Компания занимает 11 место в рейтинге застройщиков РФ по потребительским качествам ЖК.
На данный момент, кроме ЖК «РАЗУМ в Академическом», застройщик возводит в Екатеринбурге комплексы «РАЗУМ на Матвеева», «РАЗУМ на Титова» и «РАЗУМ на Малышева».
Об Академическом районе
Жилой комплекс «РАЗУМ в Академическом» строится в юго-западной части Екатеринбурга, в Академическом районе. Территория ЖК расположена в границах строящихся улиц Амундсена и Академика Курчатова.
Границы Академического района проходят по Екатеринбургской кольцевой автодороге, Чусовскому тракту, Объездной дороге, улицам Амундсена и Мостовая. Академический граничит с Ленинским и Верх-Исетским районами города.
В 2024 году в районе проживает около 125 тысяч человек.
История района
История Академического района началась в середине XX века, когда в СССР начали создавать научные городки. В Свердловске (сейчас Екатеринбург) было создано Уральское отделение Академии наук. Следом в юго-западном направлении стартовало строительство зданий научных институтов, жилья и инфраструктуры для молодых учёных. В новом районе успели построить институты электрофизики, теплофизики, геофизики, металлургии и несколько жилых корпусов. Но в 1990-е годы планы поставили на паузу.
К идее застройки района вернулись в 2006 году, началось активное жилищное строительство. Новые дома начали заселяться с 2009 года. В 2020 году Академический получил статус восьмого административного района Екатеринбурга.
Предполагается, что население района к 2035 году будет составлять 300 тысяч человек, что сопоставимо с населением целого города.
Инфраструктура района
Образование. Путь на автомобиле до ближайших общеобразовательной школы №123 и детского сада №45 займёт 10 минут. Когда достроят продолжение улицы Амундсена, до учреждений можно будет дойти пешком. Ещё одна школа №133 находится в 15 минутах езды.
Медицина. В 10 минутах езды от ЖК на машине открылась новая взрослая поликлиника №3. Муниципальные детские поликлиники находятся в соседних микрорайонах — в Совхозном, Юго-Западном и на Широкой речке. Путь до них займёт 20-30 минут на автомобиле. В Академическом работает медцентр «Первая детская поликлиника», в котором можно получить услуги по ОМС. Также есть другие частные медцентры — «Фамилия», «MeдIV», «Доктор Плюс», «Инвитро», «Ситилаб» и другие.
Взрослая поликлиника №3. Фото: Яндекс Панорамы
Покупки и отдых. В районе есть крупный торговый центр «Академический». Здесь есть кинотеатр, фудкорт и гипермаркет «Магнит Экстра». До ТРЦ можно доехать за 20 минут. Путь до ТРЦ «Мега» займёт около 25 минут.
В 20 минутах ходьбы от ЖК расположен Преображенский парк. Зимой здесь можно покататься на коньках, а летом — поплавать на лодке или катамаране.
Преображенский парк. Фото: Vyacheslav Bukharov (Wikimedia Commons)
Спорт. В Преображенском парке расположены детская академия тенниса «Гринвич», Дворец дзюдо и фитнес-клуб Bright Prime с бассейном. В школе №123 открыта спортивная школа «Старт». Также в районе работают другие спортивные и фитнес-клубы, но добираться на них нужно на транспорте.
Экологическая обстановка
Считается, что в Академическом районе благоприятная экологическая обстановка. Здесь нет крупных промышленных производств, вокруг расположены крупные зелёные зоны, в числе которых Юго-Западный лесопарк.
Негативно на качество воздуха может влиять автотранспорт, количество которого увеличивается с ростом населения. Но рядом с ЖК «РАЗУМ в Академическом» пока нет оживлённых улиц и перекрёстков.
Юго-Западный лесопарк. Фото: Aleksej (Яндекс Карты)
Будущее района
В соседних проектируемых кварталах №9 и №10 планируют построить детский сад, школу, спортивные и медицинские учреждения. Вдоль реки Патрушихи в этой части района планируют обустроить набережную. Проект включает велодорожки, автостоянки, озеленение, прогулочные бульвары и скверы.
На данный момент ведётся строительство продолжения улицы Амундсена, на которой расположен ЖК. Новая дорога соединит Академический с ЕКАД. Строительство планируют полностью закончить к 2027 году.
Недостатки района
Пока улица Амундсена не достроена, жителям «РАЗУМ в Академическом» придётся выезжать из района в объезд и по грунтовой дороге. Но есть вероятность, что продолжение улицы Амундсена до ЖК закончат до сдачи комплекса.
На выездах из района по улицам Амундсена и Вильгельма де Геннина часто бывают пробки. Проблему стараются решить. Например, в течение ближайших лет должны построить развязку на перекрёстке Амундсена и Объездной дороги.
Резюме
Жилой комплекс комфорт-класса «РАЗУМ в Академическом» строится в новой части Академического района, на юго-западе Екатеринбурга. В проекте запланировано семь домов. Первые четыре корпуса сдадут в IV квартале 2025 года — III квартале 2027 года.
Внутри комплекса появится закрытый зелёный двор с городскими грядками, зонами отдыха, спорта и игр. В лесу рядом с ЖК благоустроят эко-тропу для прогулок. В холлах предусмотрены зоны ожидания, колясочная и велосипедная, на цокольном и жилых этажах — кладовые. По периметру комплекса будет работать видеонаблюдение.
К недостаткам можно отнести не развитую пока социальную и дорожную инфраструктуру вокруг ЖК. Поблизости пока нет магазинов и сервисов, но они откроются со сдачей новостроек. Ближайшие остановки — в получасе ходьбы. Путь на машине до взрослой поликлиники, школ и детских садов займёт 10-15 минут. За 20 минут можно дойти до Преображенского парка.
Предложения застройщиков поблизости
Название ЖК | Цена квартир, млн ₽ | Застройщик | Площадь, м² | Сроки сдачи | Транспортная доступность | Отделка |
Amundsen | «Прогресс» | от 23,7 | 1 кв. 2025 – 1 кв. 2027 | 45 мин. на транспорте до метро Чкаловская | Предчистовая | |
«PROGRESS Академический» | «Прогресс» | от 22,8 | 1 кв. 2026 – 2 кв. 2027 | 48 мин. на транспорте до метро Чкаловская | Предчистовая, чистовая | |
«Твоя Привилегия» | «АПРИ» | от 22,9 до 103,6 | 1–3 кв. 2025 | 39 мин. на транспорте до метро Чкаловская | Чистовая | |
«Брусника» | от 20,6 до 116,8 | 1 кв. 2025 – 2 кв. 2027, есть сданные | 39 мин. на транспорте до метро Чкаловская | Предчистовая, чистовая | ||
«Речной квартал» | «Атомстройкомплекс» | от 26,6 до 106,9 | 2 кв. 2026 – 2 кв. 2027 | 31 мин. на транспорте до метро Чкаловская | Предчистовая, чистовая | |
«Центральный Парк» | «ГК ИКАР» | от 23,7 до 77,1 | 3 кв. 2025 | 36 мин. на транспорте до метро Чкаловская | Чистовая | |
«Девелопмент-Юг» | от 26,1 до 90,8 | 3 кв. 2025 – 1 кв. 2026 | 35 мин. на транспорте до метро Чкаловская | Предчистовая |