Жилой комплекс комфорт-класса «Квартал Торики» расположен в Ломоносовском районе Ленинградской области, в посёлке Виллози, в 3 км от КАД. Комплекс включает в себя пять корпусов высотой 11–13 этажей с квартирами от студий до трёхкомнатных и тремя вариантами отделки. В проект также входят два детских сада, школа и три многоуровневых паркинга. Сроки сдачи — с конца 2025 года до IV квартала 2027-го. Подробности — в нашем обзоре.
О жилом комплексе
«Квартал Торики» — жилой комплекс комфорт-класса, расположенный на улице Колхозная в посёлке Виллози Ломоносовского района Ленинградской области. До железнодорожной станции «Горелое» от ЖК 1,8 км, до выезда на КАД — 3 км, а до ближайшей станции метро «Проспект Ветеранов» — 13 км.
ЖК «Квартал Торики» будет состоять из пяти корпусов высотой от 11 до 13 этажей с квартирами от студий до трёхкомнатных. Покупателям предоставляется на выбор три варианта отделки: под ключ, предчистовая и без отделки. Помимо жилья, проект будет включать в себя паркинги и объекты образовательной инфраструктуры.
Цены
В ЖК «Квартал Торики» представлены квартиры от студий до трёхкомнатных. В таблице ниже указаны планировки, которые сейчас есть в продаже, и актуальные цены.
По данным Яндекс Недвижимости на ноябрь 2025 года, средняя стоимость квадратного метра в студиях составляет 204,6 тыс. рублей, а в трехкомнатных квартирах — 190 тыс. рублей.
Приобрести квартиру в ЖК «Квартал Торики» можно с помощью различных ипотечных программ: стандартная ипотека, семейная, военная, а также ипотека для сотрудников IT-компаний. Застройщик также предлагает покупателям воспользоваться опцией «можнотека» (в этом случае в ипотечный кредит можно включить стоимость мебели, декора и покупки кладовой), рассрочкой до 3 месяцев, рассрочкой до 36 месяцев с выплатой ежемесячных взносов или скидкой 1% для льготных категорий населения. Кроме того, квартиры в ЖК «Квартал Торики» можно приобрести с использованием материнского капитала или различных жилищных субсидий.
Архитектура
Жилой комплекс «Квартал Торики» состоит из монолитно-кирпичных домов высотой 11–13 этажей. Их фасады оформлены в нейтральных спокойных тонах с яркими акцентами, напоминающими оттенки северных ягод. Такая палитра гармонирует с природным окружением и делает внешний облик ЖК выразительным, но сдержанным. Первые этажи зданий облицованы декоративным кирпичом трёх оттенков, а входные группы оформлены светлыми панорамными витражами. Архитектура комплекса лаконична и соответствует классу «комфорт».
Планировки и отделка
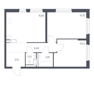
Самые маленькие квартиры в первом корпусе ЖК «Квартал Торики» — студии площадью 20,46 кв. м. Самые просторные студии имеют площадь 26 кв. м.
Габариты однокомнатных квартир варьируются от 29,97 до 48,73 кв. м, двухкомнатных — от 51,76 до 54,61 кв. м. Самая большая квартира из представленных на сайте застройщика — трёхкомнатная площадью 70,54 кв. м.
Все квартиры в ЖК «Квартал Торики» сдаются без отделки, но по выбору покупателя застройщик готов выполнить предчистовую отделку или готовую отделку в светлых нейтральных тонах. В готовую отделку входит укладка ламината и плитки, установка сантехники, дверей, плинтусов и натяжных потолков, поклейка обоев и проведение всех коммуникаций. Кроме того, у компании-застройщика покупатели могут заказать для своих квартир готовые мебельные сеты, текстиль и декор. Все сеты разработаны с учётом планировок квартир этого ЖК.
Инфраструктура комплекса
Входные группы. Входные группы комплекса расположены на уровне земли. Порогов и ступенек на входе нет, что облегчает доступ людям с колясками и маломобильным жильцам. Лобби оформлены в светлых пастельных тонах, в них будет выполнено панорамное остекление и размещена удобная навигация. В холлах установят бесшумные лифты, оборудуют лаунж-зоны, а также помещения для хранения колясок, велосипедов, самокатов.
Входная группа
Двор. Дворы жилого комплекса «Квартал Торики» спроектированы как закрытые от посторонних пространства, предназначенные для отдыха и активных игр. Их центральным элементом станут «лесные гостиные» — уютные лаунж-зоны с деревянными настилами, навесами и озеленением. Каждая «гостиная» оформлена в своей цветовой гамме с использованием растений и кустарников, при этом все дворы объединяет общий дизайн-код «Северные ягоды». Для детей оборудованы плейхабы, для любителей спорта — воркаут-зоны.
Внутренний двор ЖК
Паркинг и кладовые. На территории жилого комплекса «Квартал Торики» планируется возвести три многоуровневых паркинга на 900 машиномест. На подземных этажах ЖК разместятся кладовые помещения для хранения сезонных вещей.
Многоуровневый паркинг
Для детей. В непосредственной близости от жилого комплекса расположена общеобразовательная школа №391, до неё можно дойти пешком. Кроме того, в ЖК «Квартал Торики» разместятся два детских сада, рассчитанные на 160 и 180 мест соответственно, а также общеобразовательная школа на 525 учащихся.
Во дворах комплекса предусмотрены специальные зоны для детей: детский плейхаб, игровые и спортивные площадки.
Детский сад на территории ЖК
Покупки и отдых. Первые этажи жилого комплекса займут магазины, кафе и различные сервисные службы. На территории «Квартала Торики» оборудуют зоны для отдыха и занятий спортом, разобьют сквер и зелёный бульвар.
В пешей доступности расположены сетевые супермаркеты «Пятёрочка», «Лента», «Дикси», круглосуточный продуктовый магазин, пункты выдачи заказов, аутлет Fashion House, пекарня с кофейней, рестораны «У пруда», «Самовар» и другие объекты торговли и общепита.
Недалеко от «Квартала Торики» находится фитнес-клуб, скейт-парк, пруд с небольшим сквером, примерно за 20 минут можно дойти до Гореловского озера.
- Для сравнения мы смотрели ЖК в городе и в области, стоимость конечно существенно разница и мы понимаем, что в городе нам просто не потянуть, даже с учетом ипотеки. Будем брать в области, пока что остановились на этом ЖК, но пока что не оформляли. Хотим все таки принять правильное решение.
- Проект выглядит достойно. Дома в такой стилистике смотрятся гармонично, плюс продуманное благоустройство территории, очень уютно. Еще и озеро недалеко, речка, вообще хорошо. Да и от КАД всего полтора км, удобно будет добираться на работу. Планировки квартир приглянулись сразу, свободно, потолки высокие, лифты хорошие. И хорошо, что на территории будет много разных детских площадок, школа, садик. Оформляем сделку на двушку в этом ЖК.
- Район хороший! Также говорили что откроется рядом жд станция когда многие дома заселяться! Я вложилась в этот жк , как инвестицию!Застройщик хороший ! Окна смотрят во двор поэтому думаю шума электричек будет не слышно !
- Удивительно что разрешили строить жильё в таком загрязнённом пространстве.. тут отзыв был про близость ЖК к природе,.. очевидно автор не в курсе, что примерно в 500 метрах от ЖК находится огромный мусороперерабатывающий завод, на котором, в том числе, сжигают мусор..и если безветрие или ветерок от завода, то на ЖК веет не хвойными фитонцидами, а горелым пластиком.. можно упомянуть ещё про близость к ЖД ветке, шоссе, и маршруту самолётов с Пулково которые весело гудят набирая высоту.
- В отделе продаж помогли выбрать квартиру. Район нравится, по дальше от центра, рядом с природой. В стоимость входит отделка.
Транспорт
Расстояние от ЖК «Квартал Торики» до железнодорожной станции «Горелое» — около 1,8 км, его можно пройти примерно за 24 минуты. До ближайшей станции метро «Проспект Ветеранов» — 13 км, дорога на транспорте займёт около 40 минут, а на автомобиле — 20 минут. Выезд на КАД находится совсем близко, всего в 3 км от комплекса. До центра Санкт-Петербурга можно доехать на машине за 40 минут, до аэропорта Пулково — за 25 минут.
О застройщике
Группа компаний «Самолёт» — крупнейший российский девелопер с объемом текущего строительства свыше 5 млн кв. м в рамках более чем 60 жилых комплексов, включая многоквартирные дома и апартаменты. Застройщик работает в Московской и Ленинградской областях, Тюменской области, Приморском крае и других регионах.
Компания специализируется на строительстве крупных ЖК в сегменте массового жилья и комплексном освоении территорий. Согласно данным Единого ресурса застройщиков, ГК «Самолёт» находится на первом месте в России и на втором месте в Москве по объёму текущего строительства. Компания также имеет неплохую оценку по срокам ввода объектов в эксплуатацию — 4,5 балла из 5 возможных.
В рейтинге уверенности застройщиков Forbes за 2024 год ГК «Самолёт» занимает 1-е место. Среди завершённых проектов — жилые комплексы «Люберцы 2015», «Горки Парк», «Пятницкие луга» в Подмосковье, ЖК «Астрид» в Ленинградской области и другие.
О Ломоносовском районе
Ломоносовский район Ленинградской области расположен к западу от Санкт-Петербурга, вдоль побережья Финского залива. По административному составу он уникален — его административный центр (город Ломоносов) официально не входит в состав района, а является частью Петродворцового района Санкт-Петербурга.
Ломоносовский также отличается тем, что на его территории нет ни одного города — только четыре поселения городского типа, а остальные населённые пункты — сёла и деревни. Правда, в последнее время район активно застраивается многоэтажным жильём.
Все крупные поселения Ломоносовского района связаны между собой и с Санкт-Петербургом железной дорогой. Автодороги на большей части территории обычно свободны, но на подъезде к Петербургу часто бывают пробки.
Основа экономики Ломоносовского района — сельское хозяйство, в том числе частные фермы. Есть здесь и промышленные предприятия.
История Ломоносовского района
На территории современного Ломоносовского района в древности жили финно-угорские племена, главным образом ижора и водь. В XI–XII веках сюда начали проникать славянские поселенцы, в том числе новгородцы, которые постепенно осваивали новые территории. Уже в XIII веке край стал ареной столкновений между Новгородской республикой и крестоносцами. В 1240 году на скалистом плато близ Финского залива была возведена крепость Копорье, призванная защищать подступы к Новгороду. Эта крепость на протяжении столетий оставалась важным военным и административным центром, переживая многочисленные войны и осады.
Копорская крепость. Фото: Mari Smis / Wikimedia
Шведского королевства и Русского царства, становясь пограничной зоной между двумя государствами. После Северной войны и заключения Ништадтского мира 1721 года территория окончательно вошла в состав Российской империи. С этого времени началось активное развитие прибрежных земель, связанных с Петербургом. Южная часть района оказалась вблизи парадных резиденций и дворцово-парковых ансамблей, а сельские поселения продолжали оставаться крестьянскими.
После революции 1917 года эти территории претерпели административные изменения. В 1927 году был образован Ораниенбаумский район (город Ломоносов назывался в то время Ораниенбаум). В 1930-е годы он развивался как аграрный, здесь существовали колхозы и совхозы, но появлялись и промышленные предприятия.
В годы Великой Отечественной войны район стал одним из ключевых участков блокады Ленинграда. Северная часть, известная как Ораниенбаумский плацдарм, удерживалась советскими войсками и играла стратегическую роль в обороне города. Южные земли были оккупированы и сильно пострадали от боевых действий.
После войны район восстановили, а в 1948 году переименовали в Ломоносовский. В последующие десятилетия Ломоносовский район развивался как пригородная зона Ленинграда, сочетая сельскохозяйственное производство, промышленность и жилую застройку.
Вид на посёлок Виллози. Источник: Яндекс Панорамы
Инфраструктура района
Образование. Инфраструктура Ломоносовского района развита довольно слабо. В некоторых посёлках и деревнях имеются школы и детские сады — в посёлках Новоселье, Аннино, Ропша, Большая Ижора, Лебяжье, деревнях Низино, Оржица, Гостилицы, Горбунки, Пеники, Лопухинка, Яльгелево. Учреждений средне-специального и высшего образования на территории района нет.
Медицина. Медучреждений в Ломоносовском районе также немного. В посёлках Большая Ижора, Лебяжье, Новоселье, Ропша и некоторых деревнях есть поликлиники, амбулатории и здравпункты. В посёлках Лебяжье, Ропша и в селе Русско-Высоцкое имеются больницы. Несколько частных медцентров работают в посёлке Новоселье.
Спорт. Физкультурно-спортивные комплексы есть в посёлках Аннино, Новоселье, в деревне Горбунки. В посёлке Новоселье также работает ледовая арена, детский спорткомплекс «КидКорт», спортивная школа «Полёт», а в посёлке Аннино — бассейн, теннисный корт, футбольное поле. Во многих сёлах и деревнях также имеются спортплощадки.
Покупки и отдых. В посёлках, сёлах и некоторых деревнях района работают супермаркеты сетей «Магнит», «Пятёрочка», «Светофор», «Монетка», а также локальные продуктовые магазины и магазины смешанных товаров. Торговых центров — несколько на весь район, они есть в посёлках Новоселье, Ропша, деревне Горбунки и некоторых других.
С кафе и закусочными дело обстоит несколько лучше — они работают во многих населенных пунктах Ломоносовского района, а в некоторых имеются даже рестораны.
Досуговая инфраструктура представлена базой отдыха, горнолыжными курортами, несколькими музеями (в том числе — крепость Копорье), старинными усадьбами.
Крепость Копорье. Фото: Андрей Бобровский / Wikimedia
Экология
На севере Ломоносовский район ограничен Финским заливом, который обеспечивает приток свежего морского воздуха. Большую часть района составляют леса и сельскохозяйственные земли. Промышленных предприятий здесь сравнительно немного, автодороги в основном не перегружены. Скопление автотранспорта наблюдается только на участках, примыкающих к границам с Санкт-Петербургом. В целом Ломоносовский район можно считать одним из самых экологически чистых в Ленинградской области.
Вид на финский залив. Источник: Яндекс Панорамы
Будущее района
По данным на 2025 год, в Ломоносовском районе строится более 23% из всех жилых комплексов, возводимых в Ленинградской области — около 1 млн кв. м.
До 2035 года в деревне Низино возведут жилой квартал с объектами торговли, спорта и досуга, а также проведут комплексное благоустройство территории. Крупные ЖК с различной инфраструктурой планируется также построить в деревнях Куттузи, Михайловка и других локациях.
В начале 2026 года в Яльгелево должны ввести в эксплуатацию фельдшерско-акушерский пункт. К 2027 году в промышленной зоне «Пески» построят завод электрогенерирующего оборудования. До 2028 года в посёлке Новогорелово планируется построить дом культуры со зрительным залом на 200 мест и поликлинику на 260 посещений в смену. В Лаголово и Виллози возведут врачебные амбулатории, в Виллози также начнут проектирование и строительство школы на 550 учеников.
Недостатки района
- Неравномерное развитие территорий: активно застраиваются только прилегающие к Санкт-Петербургу районы.
- Слабо развитая инфраструктура, особенно в отдалённых от города населённых пунктах.
- Перегруженность дорог в северо-западной, примыкающей к Санкт-Петербургу части района.
Резюме
ЖК «Квартал Торики» относится к сегменту комфорт-класса и возводится в посёлке Виллози Ломоносовского района Ленинградской области, примерно в 3 км от КАД. Ближайшая железнодорожная станция «Горелое» расположена в 1,8 км, а до метро «Проспект Ветеранов» около 13 км. Застройка включает пять корпусов высотой от 11 до 13 этажей. В продаже — квартиры от студий до трёхкомнатных, которые предлагаются в трёх вариантах: без отделки, с предчистовой отделкой или с готовым ремонтом. Преимуществом ЖК является наличие образовательной инфраструктуры: в проект входят два детских сада и школа.
В числе недостатков ЖК — проходящие очень близко к нему железнодорожная ветка и автомагистраль, которые создают шум и загрязнение. Дополнительную звуковую нагрузку даёт близость к аэропорту «Пулково».
Предложения застройщиков поблизости
Название ЖК | Цена квартир, млн ₽ | Застройщик | Площадь, м² | Сроки сдачи | Транспортная доступность | Отделка |
«ПИК» | от 24,9 до 85,9 | IV кв. 2027, есть сданные | 1 час 10 минут транспортом до станции метро «Проспект Ветеранов» | чистовая, предчистовая | ||
«Брусника в Новоселье» | «Брусника» | от 28 до 96,1 | IV кв. 2027 | 1 час 15 минут транспортом до станции метро «Проспект Ветеранов» | предчистовая | |
«Кронунг ЮГ» | CRONUNG GROUP | от 24,8 до 96,8 | I кв. 2027 | 32 минуты транспортом до станции метро «Проспект Ветеранов» | чистовая, без отделки |