«Дом 7 Даниловский» — элитный жилой комплекс, который строится в Даниловском районе Москвы, в нескольких минутах пешком от станции метро «Тульская». Проект включает три жилых корпуса с приватным садом и объекты инфраструктуры для жителей. Подробности — в нашем обзоре.
О жилом комплексе
«Дом 7 Даниловский» расположен на улице Серпуховской вал, недалеко от Даниловского рынка и станции метро «Тульская». Это небольшой комплекс из трёх жилых зданий, на территории которого застройщик планирует создать тихий и просторный сад, скрытый от посторонних глаз. В ЖК также предусмотрена собственная клубная инфраструктура: фитнес-клуб, детские игровые пространства, дизайнерские лобби, коворкинг, ресторан и паркинг с кладовыми. В комплексе можно купить квартиры от компактных студий до пентхаусов с террасами.
Цены
В комплексе представлены квартиры с одной, двумя и тремя комнатами, а также пентхаусы. В таблице ниже указаны планировки, которые сейчас есть в продаже, и актуальные цены.
По данным Яндекс Недвижимости на ноябрь 2025 года, средняя стоимость кв. м в однокомнатных квартирах составляет 1,01 млн рублей, а в трёхкомнатных — 1,04 млн рублей.
Архитектура
Жилая часть комплекса представлена тремя 15-этажными корпусами. Здания строятся по монолитно-кирпичной технологии. Фасады будут утеплены и облицованы доломитом светло-серого оттенка.
Планировки и отделка
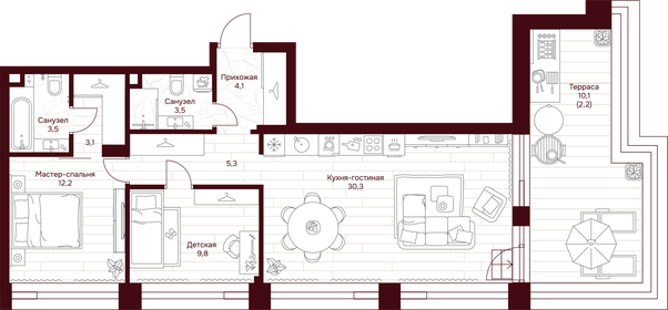
В ЖК «Дом 7 Даниловский» всего 202 квартиры — от однокомнатных (в том числе со студийными планировками) до трёхкомнатных. Площади — от 31,1 до 110,7 кв. м. Во всех квартирах спроектированы кухни-гостиные и функциональные прихожие с гардеробными нишами и выделенными зонами для верхней одежды и обуви. Часть квартир оснащена прачечными и дополнительными санузлами. Есть также варианты с гардеробными. Кроме того, в комплексе представлены пять пентхаусов с собственными просторными террасами.
Жильё в ЖК «Дом 7 Даниловский» сдаётся с отделкой white box и минималистичной дизайнерской отделкой в светлых и тёмных тонах.
Инфраструктура комплекса
Входные группы. Входы в дома будут расположены на уровне тротуара. Входные группы будут просторными, с панорамным остеклением и двумя выходами — на улицу и во двор-сад. Дизайн холлов выполнят в единой стилистике, но с индивидуальными цветовыми акцентами.
В лобби будут организованы зоны с мягкой мебелью, кофе-пойнтами и точками для зарядки гаджетов. Там также предусмотрены места для почтовых ящиков и постаматов, гостевые санузлы, помещения для хранения колясок и специальные места для мытья лап домашних питомцев. Помещения украсят авторские светильники и элементы декора. Из лобби будет открываться вид на сад.
В лобби будут дежурить консьержи, чтобы помочь жильцам с решением любых вопросов — от организации уборки до бронирования билетов или столика в ресторане.
Двор. Проект двора-сада разработан бюро GAFA. На территории площадью 1 га будут высажены различные виды клёнов, дубы, ясени, горные ели, сосны, кустарниковая ива, чубушник и гортензии. Там появятся зоны отдыха и прогулочные маршруты.
Для детей. Для детей в ЖК организуют благоустроенные детские площадки с безопасным покрытием и игровыми комплексами. Предусмотрена также детская комната.
Спорт. Во дворе появятся спортивные площадки и столы для настольного тенниса. В ЖК также откроется фитнес-клуб с залами для персональных и групповых тренировок. В клуб можно будет попасть из любого корпуса, не выходя на улицу.
Паркинг и кладовые. Инфраструктура комплекса включает подземный паркинг на 136 машино-мест с 38 кладовыми помещениями. Для владельцев электромобилей предусмотрена возможность установки зарядных станций. Для мотоциклов будет выделена специальная парковочная зона. В паркинге будет работать система распознавания номеров.
Покупки и отдых. Магазины в ЖК не предусмотрены, но на территории откроется ресторан. Запланированы также переговорные комнаты, коворкинг и лаунж-зоны с мягкой мебелью.
- Я наверное соглашусь с хорошими комментариями, нежели негативными. Локация огонь, очень удобно!Пообщались с сотрудниками отдела продаж. Приятные, на все вопросы ответили, разжевали мне и маме, что было непонятно. Планировка мечты, как мы и хотели С застройщиком уже сталкивалась, когда знакомые брали квартиру, остались довольными, собственно поэтому и пошли смотреть у Coldy. По поводу того, что соседние дома страдают от шума и вид портится, очень жаль, но сейчас так везде( Пока ставлю для себя 9/10, что бы было, что улучшать))
- Очередной тяп-ляп от худшего застройщика Москвы. Соответствие реальности обещаниям = 1% (совпадает только адрес). В процессе стройки убирают 2/3 обещанной инфраструктуры, меняют окна с обещанного алюминия на самый дешевый пластик, отделочные материалы с премиальных на эконом и мн.мн.др. Посмотрите другие проекты застройщика (например, NiceLoft) и бегите подальше от покупки чего бы то ни было от них.
- Пока не было шоурума, не решались на покупку квартиры с отделкой. Выжидали. Когда открылся офис продаж, съездили, посмотрели, нам отделка понравилась, приобрели квартиру с дизайнерским ремонтом.
- Интересный и красивый проект. Новый дом своей архитектурой хорошо впишется в историческое окружение района. При этом он удачно расположен в удалении от шумных улиц за другими домами на первой линии.
- Живем в надежде что жк перестанут строить по ночам, спать вообще не возможно. В радиусе километра жуткий грохот. Можно как-то уважать пространство людей, живущих рядом.
Транспорт
Комплекс строится на улице Серпуховский вал. Отсюда за 5-7 минут можно дойти пешком до станции метро «Тульская», а за 15 минут — до станции метро «Шаболовская». Расстояние до Садового кольца составляет около 3,5 км, а до Третьего транспортного кольца — всего 900 метров.
О застройщике
«КОЛДИ» — девелоперская компания, основанная в 2003 году. Она специализируется на строительстве жилья и коммерческой недвижимости. В структуру группы входят генеральный подрядчик «КОЛДИ Констракшн» и управляющая компания, отвечающая за эксплуатацию построенных объектов. Среди построенных объектов в Москве — комплексы Loft FM, Klein House, KAZAKOV Grand Loft, N’ICE LOFT. В настоящий момент, кроме ЖК «Дом 7 Даниловский», компания возводит комплекс «Хамовники 12».
О Даниловском районе
Даниловский район расположен в Южном административном округе Москвы. Это единственный район столицы, который занимает оба берега Москвы-реки. Он граничит с центральными районами Замоскворечье и Таганский, а также с районами Нагатино-Садовники, Донской, Южнопортовый и Нагатинский Затон. Исторически значительная часть этой местности была занята предприятиями. В советское время район тоже был преимущественно промышленным. Сейчас промзоны находятся в процессе реорганизации.
История района
С ХIII-XIV веков на месте района находилось село Даниловское, возникшее рядом с Даниловым монастырём. Он, в свою очередь, был назван в честь князя Даниила Александровича (сына Александра Невского) — он изображён на гербе района.
Территория Данилова монастыря. Фото: Яндекс Панорамы
Село, которое позднее стали называть Даниловской слободой, долго было одним из ближайших московских пригородов. Формирование промышленного района в Даниловской слободе началось в 1860-х годах с постройки Даниловской мануфактуры — крупного текстильного предприятия, в которое входили ткацкая, ситценабивная и бумагопрядильная фабрики. После революции мануфактура была национализирована и получила название Московская хлопчатобумажная фабрика имени М.В.Фрунзе. Ещё одно крупное предприятие, которое размещалось на территории Даниловского района, — автозавод имени И.А.Лихачёва (ЗИЛ). К настоящему времени оба они, как и многие другие, закрыты, на их территориях расположены офисы и жильё.
Даниловская мануфактура. Фото: Яндекс Панорамы
В советские годы территория нынешнего Даниловского входила в состав Москворецкого и Пролетарского районов. Самостоятельной административной единицей район стал в 1995 году. В 2002 году к нему присоединили территорию ЗИЛа.
Инфраструктура района
Образование. В окрестностях комплекса расположено несколько государственных детских садов (от школ №630 и №1257), а также частные Smile Fish, «Горница-узорница» и «Обыкновенное чудо». В 5-7 минутах ходьбы находятся два отделения школы №630, а в 8 минутах — частная Академическая гимназия.
Медицина. В Даниловском работает несколько отделений городской поликлиники №67 (до ближайшего — 15 минут пешком) и детские поликлиники №61 и №91 (до ближайшей — 7 минут пешком). На территории района есть также челюстно-лицевой госпиталь, детская офтальмологическая поликлиника, несколько частных медцентров, лабораторий и аптек.
Покупки и отдых.В Даниловском районе открыты два крупных торговых центра — «Ривьера» и «Ереван Плаза» (последний находится в 9 минутах пешком от ЖК). Помимо магазинов, там работают кинотеатры и детские развлекательные центры. За 5 минут можно дойти от ЖК до Даниловского рынка. Вокруг комплекса много продуктовых магазинов (в том числе сетевые супермаркеты «ВкусВилл», «Перекрёсток», «Фасоль», «Пятёрочка», «Мираторг», «Азбука вкуса»), ресторанов и кофеен. Торговые точки, общепит и отделения банков открыты, в частности, на первых этажах расположенного по-соседству «Дома-корабля» («Дома атомщиков»).
Одной из точек притяжения в районе является культурный центр «ЗИЛ», где работают библиотека, театральные, танцевальные, интеллектуальные и детские студии. На территории бывшего автозавода расположен также парк «Тюфелева роща» со смотровой площадкой. До него можно дойти за 40 минут пешком или доехать за 15 минут на машине. Пешая прогулка до Нескучного сада займёт полчаса. В 20 минутах пешком (на территории соседнего Донского района) расположен парк «Бекет» с прудом и детскими площадками.
Спорт. В Даниловском районе работают многофункциональный спортивный комплекс «ЦСКА Арена», бассейн «Китёнок», Европейский гимнастический центр. В 7 минутах пешком от ЖК находится спортивная школа олимпийского резерва №41. Рядом с комплексом есть также фитнес-центры и студии йоги.
Экологическая обстановка
Эксперты компании EcoStandard Group оценивают экологическую обстановку в Даниловском районе как удовлетворительную (8 баллов из 10, где 10 — худший результат). Несмотря на то, что многие промышленные зоны в районе расформированы, некоторые объекты негативного воздействия на окружающую среду остаются (в их числе, например, ТЭЦ-9). Кроме того, по территории Даниловского проходит участок Третьего транспортного кольца, другие дороги в в часы пик тоже часто загружены автотранспортом. При всём этом в районе нет крупных парков, хотя дворы в микрорайонах старой застройки — довольно зелёные.
Недостатки района
Основные недостатки Даниловского района — отсутствие парков, загруженность улиц транспортом и проблемы с парковкой.
Будущее района
В районе проходит реновация жилого фонда. По данным на ноябрь 2025 года, под снос пойдёт 31 дом. Четыре новых дома уже заселяются, два — строятся, утверждены стартовые площадки для 12 новостроек.
Продолжается также застройка бывшей территории ЗИЛа, там сдача крупных жилых комплексов запланирована на 2027-2028 годы.
Ожидается также, что будет построен пешеходный мост через Москву-реку, который соединит набережную Марка Шагала с Новоданиловской набережной и Варшавским шоссе.
Резюме
«Дом 7 Даниловский» — небольшой элитный жилой комплекс, который строится в Даниловском районе Москвы, рядом со станцией метро «Тульская». В нём всего три корпуса на 220 квартир. Преимуществами проекта являются собственный приватный сад и клубная инфраструктура для жителей: фитнес-клуб, ресторан, паркинг и коворкинг с переговорными. К плюсам также можно отнести наличие интересных планировок с кухнями-гостиными, гардеробными, мастер-спальнями и постирочными. К недостаткам отнесём не лучшую экологическую обстановку и нехватку зелёных зон в районе.
Предложения застройщиков поблизости
Название ЖК | Цена квартир, млн ₽ | Застройщик | Площадь, м² | Сроки сдачи | Транспортная доступность | Отделка |
«Мангазея на Тульской» обзор | «Мангазея» | от 28,1 до 107,6 | IV кв. 2027 | 5 мин. пешком от ст. метро «Тульская» | без отделки | |
INSIDER | «РКС Девелопмент» | от 22,1 до 134,7 | I кв. 2026 | 15 мин. пешком от ст. метро «Тульская», 22 мин. пешком от ст. метро «Автозаводская». 5 мин. на машине от ТТК | под ключ | |
PAVE | FORMA | от 33,4 до 104,7 | IV кв. 2028 | 24 мин. пешком от ст. метро «Тульская». 5 мин. на машине до ТТК | без отделки | |
«Павелецкая Сити» | Level Group | от 23,6 до 158,9 | I кв. 2026 – IV кв. 2027, есть сданные | 15–20 мин. пешком от ст. метро «Серпуховская», «Павелецкая», «Тульская» | без отделки или white box | |
«ЗИЛАРТ» | «ЛСР.Недвижимость-Москва» | от 18,9 до 126,8 | IV кв. 2025 – IV кв. 2027, есть сданные | 20 мин. пешком от ст.метро «Тульская», 15 мин. пешком от ст. МЦК «ЗИЛ». 6 мин. на машине до ТТК | без отделки, под ключ | |
Дом «А» | «Брусника» | от 29,3 до 177,4 | IV кв. 2027 | 15-20 мин. от ст. метро «Серпуховская» или «Павелецкая» | предчистовая |