В Пресненском районе Москвы, возле Белорусского вокзала строят элитный жилой квартал Republic из десяти высотных башен. На территории будет своя инфраструктура с детским садом, спа-комплексом и гастромаркетом, а также закрытый зелёный бульвар. В продаже пока квартиры в первых трёх башнях. Изучаем плюсы и минусы нового ЖК.
О жилом комплексе
Жилой комплекс Republic строится на территории бывших вагоноремонтных мастерских, располагавшихся между улицей Пресненский вал и железной дорогой Белорусского направления. Адрес новостройки: Пресненский вал, вл. 27.
До станции метро «Белорусская» можно дойти за 15 минут, до станции метро «Улица 1905 года» — за 15–20 минут.
Башня Platinum и две башни Reds сдаются в III квартале 2025 года, сроки строительства остальных семи башен застройщик пока не объявил.
Цены
Продажи в ЖК Republic начались в июле 2022 года. Комплекс позиционируется как элитный. Средняя цена за квадратный метр, по данным Яндекс Недвижимости, на май 2023 года составила 645 тысяч рублей. Это на 166 тысяч дороже средней цены за квадратный метр на престижной Остоженке.
- 75,6 млн ₽Москва, ЖК Репаблик, к2.3Улица 1905 года 15 мин.
- 52,71 млн ₽Москва, ЖК РепабликУлица 1905 года 15 мин.
- 70,6 млн ₽Москва, улица Пресненский Вал, 27к5Белорусская 12 мин.
- 41,79 млн ₽Москва, улица Пресненский Вал, 27к5Белорусская 12 мин.
- 37,57 млн ₽Москва, улица Пресненский Вал, 27к5Белорусская 12 мин.
- 85,6 млн ₽Москва, ЖК Репаблик, к2.3Улица 1905 года 15 мин.
- 75,41 млн ₽Москва, ЖК РепабликУлица 1905 года 15 мин.
- 108,97 млн ₽Москва, ЖК Репаблик, к2.1Улица 1905 года 15 мин.
- 71 млн ₽Москва, ЖК Репаблик, к2.3Улица 1905 года 15 мин.
- 115 млн ₽Москва, ЖК Репаблик, к2.2Белорусская 15 мин.
- 69 млн ₽Москва, ЖК Репаблик, к2.3Улица 1905 года 15 мин.
- 33,9 млн ₽Москва, ЖК Репаблик, к2.2Улица 1905 года 15 мин.
- 46 млн ₽Москва, ЖК Репаблик, к2.3Белорусская 15 мин.
- 52 млн ₽Москва, ЖК Репаблик, к2.1Белорусская 13 мин.
- 39,5 млн ₽Москва, ЖК Репаблик, к2.2Белорусская 14 мин.
- 55 млн ₽Москва, ЖК Репаблик, к2.3Улица 1905 года 15 мин.
- 62,9 млн ₽Москва, ЖК Репаблик, к2.3Белорусская 15 мин.
- 72,33 млн ₽Москва, ЖК РепабликБелорусская 16 мин.
Цены на квартиры в ЖК Republic, по данным сервиса Яндекс Недвижимость
Количество комнат | Площадь, м² | Минимальная цена, млн ₽ (май 2023) |
студии | От 26,86 | 21,6 |
1-комнатные | От 39,62 | 29,3 |
2-комнатные | От 62,39 | 38,4 |
3-комнатные | От 95,59 | 54,0 |
4-комнатные | От 126,16 | 86,1 |
Архитектура
Комплекс Republic будет состоять из 10 башен высотой от 24 до 45 этажей. Корпуса называются Reds (включает в себя две башни), Platinum, Purple, Whites (две башни), Brown, Green, Silver, Gold. Первую очередь — Reds и Platinum — планируется сдать в III квартале 2025 года, по остальным точные даты не называются, строительство пока не началось.
Проекты каждого из корпусов разработаны разными архитекторами или бюро. Среди участников — специалисты из России, Англии и Швейцарии. Также на территории ЖК сохранят памятники промышленной архитектуры — помещения цехов и мастерских, построенные в 1869–1907 годах. Их отреставрируют, и внутри разместят объекты инфраструктуры.
Корпуса Reds и Platinum строятся по монолитно-кирпичной технологии. Автор Reds — британец Стив Браун — придумал дом в виде двух башен по 26 этажей, соединённых функциональной галереей-лобби с панорамным остеклением. Фасад Reds будет полностью построен из терракотового кирпича в голландском стиле, чтобы дом вписался в окружающий ландшафт.
Фасад башен Reds из кирпича
Проект башни Platinum разработали британские архитекторы Ян Симпсон и Рейчел Хаф. В его основе волнистые пластичные фасады, которые должны максимизировать освещённость помещений. Южная сторона будет состоять из лоджий. Первый этаж Platinum, как и Reds, будет облицован клинкерной плиткой, чтобы создать гармонию с историческими зданиями из красного кирпича.
«Волнистый» фасад башни Platinum
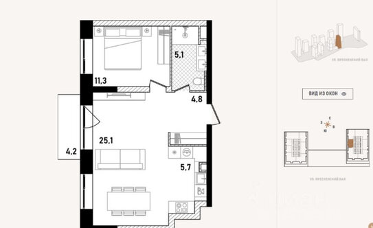
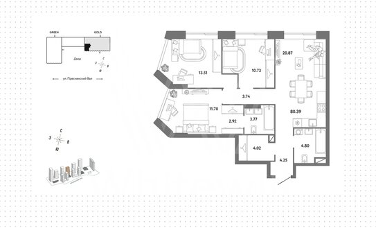
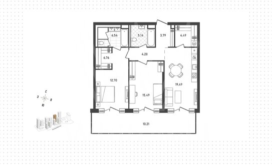
Планировки
Всего в ЖК Republic планируется сдать 2651 квартиру, из них в башне Platinum — 302, в башнях Reds 389 квартир и 8 двухуровневых апартаментов. Площадь лотов — от 26,9 до 140,8 м2. Высота потолков от 3,1 до 4,25 метра.
Благодаря ступенчатой архитектуре башен Reds на 8-м, 11-м и 18-м этажах этих башен будут приватные террасы. На последних этажах планируются пентхаусы с дровяным камином, витражным остеклением и окнами в ванных. Студии — стандартные, с одним окном, остальные квартиры просторные, с европланировками. Можно выбрать лоты с предчистовой отделкой white box или без отделки.
Дровяной камин в пентхаусе
Инфраструктура комплекса
Входные группы. Вход в Reds и Platinum будет через двухэтажное лобби башен Reds. В нём со стороны улицы Пресненский вал расположатся рестораны и кафе, банк и мини-маркет, а также клубная гостиная, где жители смогут проводить встречи. Со стороны двора будут расположены двухуровневые апартаменты формата Work&Live: наверху жилые комнаты, внизу рабочие пространства. На крыше лобби разместится терраса с баром.
Кладовые и паркинг. В комплексе предусмотрен двухуровневый подземный паркинг. Вместе с первой очередью будут сданы 353 машино-места, всего же в комплексе планируется 1 687 мест. Кладовые помещения будут оборудованы и на подземном паркинге, и на жилых этажах.
- Неплохой вариант на Пресне. Безопасно, уютно, приватно, все как я люблю.
- Кусочек старой Москвы вблизи от белорусского вокзала. Жаль что большинство пойдет под снос. Проект оставляет очень двоякое впечатление: идея вроде неплоха, но дальше очень много НО: Конечно же это совсем не премиум, обычный современный человейниковый бизнес класс с огромным колвом микроквартир и однушек, к примеру в редс их почти что половина. Коэф паркинга 0.4, в первой очереди 0.5, с учетом муниципального дома на этом же участке - коэф 0.35 (350 мест на 690 квартир в продаже + 311 квартир для переселенцев). Изначально обещали 1600 мест на 2600 квартир, но пока вырисовывается меньше, 1200 примерно Редс + Платинум 351 место на 691 квартиру Башня Меганом (железный рыцарь) 184 места на 424 квартиры Башни Волл 218 мест на 482 квартиры Башни Макса Дудлера 264 места на 631 квартиру По Вайтс не понятно, но исходя из обьемов Редс скорее всего будет 200 мест на 360 квартир Итого: 1017 (1217) мест на 2228 (2588) квартир или 0.46 (0.47). Самый низкий коэффициент парковки в Пресненском среди новостроек Бизнес и Премиум Застройщик деликатно об этом умалчивает что дом для переселенцев (30 этажей, и уже практически построен находится на том же земельном участке в 8.2 га и в нем нет в принципе парковок. Все его жители будут парковаться на улицах вокруг репаблик. Те 319 квартир переселенцев + почти 1400 квартир ПРЕМИАЛЬНЕЙШЕГО класса в принципе без парковок, даже если авто есть у каждого десятого члена этих семей это почти 400 авто. Те ад. Касательно видов - 25% жк на жд, 50% вдоль жд и окна в окна, 15% туннельного вида с 2 линии. Нормальные виды из С1 в сторону БЦ и из С2 на юг. Их примерно 5%. Удивительно но неплохие виды должны быть между корпусами Редс. Расстояние от 50 до 60 метров между корпусов в Редс против 30-40 между башнями. Жд шум и вибрации, прописано даже в декларации (предпоследняя страница), но застройщик об этом слышать не хочет и блокирует всех , кто об этом пишет в комментариях Более того эту проблему пытались поднять на арх совете, где эксперты в разной степени высказали недоумение показателями проекта. Сомнения вызвала не только социальная инфраструктура, но и инсоляция башен, стоящих близко друг к другу и вытянутых вдоль северного края участка, и близость железной дороги: «метров 18 до нее», недостаточность предложенного заказчиком 7-метрового защитного экрана. «Ряд деревьев и 7-метровая стена не защищают от шума выше 2 этажа. Достаточно сделать диаграмму шума, чтобы понять, что это имитация шумозащиты. Это не решает проблемы», – подчеркнул Сергей Скуратов. Заказчик парировал: вся сложная инсоляция просчитана, а от шума будет защищать не только экран, но и шумозащитные окна. Владимир Плоткин также указал на недопустимость близкого соседства железной дороги: «нужна буферная зона; или первые этажи, до пятого или шестого, можно насытить нежилыми помещениями; или хотя бы можно решить планировку квартир так, чтобы до шестого или даже десятого этажа в сторону железной дороги выходили не жилые комнаты, а технические помещения». Михаил Посохин и Александр Асадов предложили накрыть железную дорогу, может быть, даже устроить над ней парк; Александр Асадов высказал идею пешеходной связи над путями в сторону Ипподрома. По нормам от жд должно быть не менее 100 метров. Допускается 50 при шумозащитных мероприятиях. Здесь меньше 18. Вентиляция нормальная не предусмотрена, только через клапана в окнах, соответственно запах и пыль, потолки будут ниже 3 метров в чистоте. И вишенкой на торте - генподрядчик строительства - компания БВС из 27 сотрудников. Когда то в начале 2000-х годов специалисты компании участвовали в создании и реализации знаковых московских проектов Кристалл Хаус и Copper House, расположенных в «Золотой Миле» и удостоенных международных премий. В 2005 году группа профессионалов и единомышленников основала строительную компанию BVS. Опыт работы в сегменте элитной недвижимости мы распространили на сегмент доступного жилья, строительство которого в настоящее время занимает значительную долю в деятельности компании. Сайт не обновлялся с 2017. Последний проект премиум класса был в 2010. Последние пару лет строили МИКРОГОРОД «В ЛЕСУ» эконом класса и ЖИЛОЙ РАЙОН GREEN PARK от ПИК. Не думаю что в компании осталось много специалистов из 2000-х (более 20 лет прошло если что). Те строить будет компания с опытом из эконом сегмента Резюмируем: Высотный высокоплотный проект среднего бизнес класса с невысоким коэф парковки (ниже 0.5), с средними планировками, большим количеством квартир на этаже (в среднем выше 10), низкими по меркам премиум, но приемлемыми по меркам бизнеса потолками около 3 метров в чистоте, реализуемый руками и опытом компании ПИК и ее подрядчиками эконом сегмента под брендом Формы. Хочется верить что в результате получится что то похожее по уровню и качеству уже реализованной Пресни сити по соседству. P.s. Конечно же в офисе продаж железку не слышно, от офиса продаж ее отделяет ряд зданий и забор. Звук как известно распространяется по прямой. Железку будет шикарно слышно с высоты +1 метр к экрану (экран 6 метров) и до высоты метров 30-40. На высотах 40-100 ее будет просто слышно. От экрана толку 0 на любом жилом этаже в сторону жд. (Первый жилой на уровне 10 метров) Если сравнивать с другими проектами премиум уровня в Пресненским или Хамовниках проект смотрится крайне блекло. Но тут и цена. Как говориться за что платишь - то и получаешь. Проект для тех кому важнее казаться чем быть. В мечтах люди покупают “Премиум на Пресне» и жутко гордятся этим судя по отзывам, а по факту это обычный бизнес класс с видом на ЖД и около вокзала, примерно по уровню близкий к небезызвестному Дому На Беговой от Донстрой. Те же 2600 квартир, таже плотность. Те же вопросы к паркингу. Потенциальным покупателям рекомендую пройтись по дворам у беговой чтоб оценить какие трудности с парковкой ждут в дальнейшем. Писать про бомжей на белорусском, ночлежки для них по соседству, грызунов на вокзале, кучу приезжих, палатки с шаурмой и беляшами, тысячами приезжих которые будут радостно проводить время на общественной территории репаблик не буду, думаю это и так очевидно. С другой стороны - если нравится локация, то по цене ниже 500 за метр с видом противоположным жд, в редс (примерно в 130 метрах от жд фасад в стороны пресненского вала) на высоком этаже и заранее озаботившись о паркинге и кладовке наверное можно подумать. Но очень важно понимать что это стандартный бизнес класс по всем параметрам. И еще момент - срок реализации всего проекта 2030, причем стройка в 2030 будет с обоих сторон Редс - будут строить на последнем этапе башни Вайтс слева в 50 метрах от Редс и БЦ справа в 140 метрах от Редс. Те до 2030 какой то инфраструктуры в комплексе скорее всего не будет.
- Купили тут квартиру под новый год. Понравился проект. Но мой взгляд и место хорошее и всё сделано для удобства: закрытая территория, подземный паркинг и дворы без машин. Рядом Патриаршие пруды, больничный комплекс, два бизнес-центра.
- Застройщик решил сохранить островок старой Москвы на Пресне. Я имею в виду 4 здания бывших мастерских 19 века. Здания стильные, красивые, застройщику категорическое спасибо.
- Район тихий, и в то же время близкий к метро Понравилась двушка в доме Gold с двумя санузлами и панорамными окнами.
Для детей. В одном из исторических зданий откроется частный детский сад. Во дворе комплекса планируются игровые площадки и озеленённый бульвар с фонтанами.
Проект внутреннего двора
Дворы. Концепцию благоустройства двора в Republic разработало британское бюро ландшафтной архитектуры Gillespies. Территория площадью 4 гектара будет отдана под приватный парк с дворами, бульварами и арт-галереей, еще на 2 гектарах разместятся городские пространства. Двор будет закрытым, с системой видеонаблюдения и контролем доступа.
Покупки и развлечения. Висторических зданиях — бывших цехах и мастерских, помимо детского сада, откроют также wellness-центр с бассейном, торговый центр с гастромаркетом и пространство для мероприятий с кинотеатром.
Транспорт
В пешей доступности от ЖК Republic три станции метро: «Белорусская», «Улица 1905 года», «Баррикадная». До «Белорусской» и «Улицы 1905 года» можно дойти примерно за 15 минут, до «Баррикадной» за 22 минуты.
На автомобиле можно выехать на Звенигородское шоссе, Ленинградский проспект, улицу 1905 года и Тверскую улицу. За 8–10 минут можно доехать до Садового кольца или Третьего транспортного кольца (ТТК).
Возле ЖК расположена остановка общественного транспорта «Малая Грузинская улица», откуда ходят автобусы до Рижского вокзала, Сити, Филёвского парка.
О застройщике
Группа компаний Forma основана в 2021 году. На портале «Единый ресурс застройщиков» у компании пока нет рейтинга, потому что нет опыта ввода жилья в эксплуатацию. Всего на момент написания статьи компания строит шесть ЖК, в том числе FØRST, Portland, Moments и SOUL.
О Пресненском районе
Пресненский район расположен в Центральном административном округе Москвы. Здесь есть Московский зоопарк и Планетарий, рядом с ЖК Republic находятся Белорусский вокзал и престижный деловой квартал «Белая площадь». За 10 минут можно доехать до небоскрёбов Москва-Сити.
В Пресненском районе работают семь станций метро: «Баррикадная», «Краснопресненская», «Улица 1905 года», «Выставочная», «Международная», «Деловой центр» и «Шелепиха», а также ж/д платформы МЦК и МЦД-1.
История района
Существует две версии происхождения названия «Пресня». По одной — район назван так по пресной и чистой речке, протекавшей в этой местности. По другой — «пресня» это трансформировавшееся с годами слово «приездня». В годы правления князей в Москве иностранцам положено было останавливаться в этом районе до получения разрешения на въезд, отчего район и называли «приездня» — для приезжающих.
При Петре I в районе селились знатные особы из Грузии, бежавшие от войны на Кавказе — отсюда названия улиц Большая и Малая Грузинские. А нынешняя улица Красная Пресня была преобразована из части древней Волоцкой дороги, которая вела к одному из старейших московский поселений — Кудрину. По нему названы Кудринская площадь и Садовая-Кудринская улица, часть Садового кольца.
Инфраструктура района
Образование. В Пресненском районе много детских садов и школ. Ближайшие к ЖК Republic муниципальные сады — это подразделения Романовской школы № 1 и 7, дошкольные отделения школ № 1241 и 1950. Из частных садиков есть Smile Fish на Беговой улице, One! International School на Гашека и Sun School на Тишинке. Из школ — Романовская, школа № 2123 имени Мигеля Эрнандеса, школа № 1520 имени Капцовых и другие муниципальные школы.
Медицина. Консультативно-диагностический центр детской Филатовской больницы на Зоологической улице — ближайшая детская городская поликлиника. Для взрослых ближе всего поликлиника № 220 в Расторгуевском переулке. Из частных клиник удобнее всего расположены два центра «МЕДСИ» в Грузинском переулке и на улице Красная Пресня. На Красной Пресне также работает центр «Семейный доктор».
Спорт. В районе есть два фитнес-клуба World Class — на улицах Климашкина и Сергея Макеева. На 1-й Тверской-Ямской работает клуб Reshape, а неподалёку от ЖК, на 3-й улице Ямского поля есть большой фитнес-центр «Фитленд» с бассейном и саунами.
Покупки и отдых. До парка «Декабрьского восстания» на улице 1905 года можно дойти за 17 минут, до парка «Красная Пресня» за полчаса. Вблизи самой новостройки нет больших зелёных территорий. Для покупок рядом с ЖК работают много супермаркетов известных торговых сетей: «Азбука Вкуса», «ВкусВилл», «Пятёрочка», «Лента». Крупных торговых центров в районе нет, но можно поехать в «Авиапарк» в соседнем районе, дорога на машине займёт 15 минут.
Парк Красная Пресня. Фотография: Gennady Grachev
Достопримечательности. В пешей доступности от ЖК расположены Дом кино, Московский зоопарк и Планетарий, а также ипподром на Беговой улице. Близость к Садовому кольцу открывает жителям широкие возможности посещать все центральные «места силы», такие как Патриаршие пруды, а также культурные и досуговые учреждения города.
Патриаршие пруды. Фотография: Alina Vozna
Экологическая обстановка
По оценке компании EcoStandard Group, экологическая обстановка в Пресненском районе неплохая, 6 баллов из 10. Из негативных факторов указаны недостаток зелёных насаждений, загруженность шоссе и высокая плотность населения.
Будущее района
Вблизи новостройки нет домов под снос по программе реновации и нет площадок для будущего строительства. Самое масштабное изменение в районе — это сам ЖК Republic, который преобразит окружающий ландшафт, увеличит количество проживающих в районе людей и обогатит инфраструктуру района. На форумах пишут, что стройка будет продолжаться до 2030 года.
Недостатки района
Недостатки почти всех районов в ЦАО — это загруженность основных магистралей и маленькая площадь зелёных насаждений. Также к недостаткам расположения ЖК можно отнести близость Белорусского вокзала с железной дорогой и большое количество заведений общественного питания, работающих допоздна и продающих алкоголь.
Резюме
ЖК Republic с десятью высотными корпусами в историческом центре Москвы — это амбициозный проект, который изменит облик района и всего города. Жильё позиционируется как элитное, цены соответствуют, однако у застройщика пока нет опыта сдачи жилья в эксплуатацию. Неизвестны и сроки завершения строительства семи из десяти башен комплекса: по слухам, оно будет продолжаться до 2030 года.
Возле ЖК расположены старые строения с офисами, автосервисами и автомойками. Вероятнее всего, в процессе благоустройства участка их снесут, но на данный момент соседство не самое удачное. Железная дорога, ограждающая территорию с северной стороны, будет создавать шум. И ещё один вопрос, на который стоит обратить внимание, — потенциальная нехватка машино-мест, их в комплексе запланировано на тысячу меньше, чем квартир.
Предложения застройщиков в соседних районах
Название ЖК | Цена квартир, млн ₽ | Застройщик | Площадь, м² | Сроки сдачи | Транспортная доступность | Отделка |
Комплекс апартаментов SLAVA | От 19,8 до 60,0 | MR Group | От 28,4 до 93,2 | II кв. 2023, есть сданные | 10 минут пешком до ст. метро «Белорусская» | White box |
«GloraX Premium Белорусская» | От 21,3 до 55,2 | GloraX | От 31,4 до 96,5 | III кв. 2024 | 12 минут пешком до ст. метро «Белорусская» | White box |