Жилой комплекс «Level Мичуринский»
Рассказываем про «Level Мичуринский», который расположился на западе Москвы, в Очаково-Матвеевском районе. Этот жилой комплекс бизнес-класса строится на берегу реки Очаковка. Во дворе комплекса появится видовой мост, с которого можно будет любоваться местными пейзажами.
О жилом комплексе
В жилом комплексе «Level Мичуринский» будет построено шесть корпусов высотой от 20 до 53 этажей. Комплекс находится недалеко от перекрёстка улицы Лобачевского и Мичуринского проспекта. В 10 минутах ходьбы от комплекса расположена станция метро «Мичуринский проспект». Комплекс будет сдан в III квартале 2024 г. — II квартале 2025 г.
Цены
Количество комнат | Площадь, м² | Цена за м², тыс. ₽ | Стоимость, млн ₽ (февраль 2023 года) |
1 | 22,8—23,1 | от 455,8 | 10,39—11,43 |
2 | 34,6—55,6 | от 332,4 | 14,6—21,8 |
3 | 58,5—76,4 | от 326,0 | 20,9—28,6 |
4 | 86—105 | от 317,9 | 31,1—38,2 |
5 | 92,8—180,9 | от 327,5 | 36,9—59,9 |
6 | 112,3—180,1 | от 372,2 | 41,7—71,1 |
7 | 178 | 335,7 | 59,77 |
8 | 245,5—249 | от 347,4 | 85,2—87,6 |
При покупке квартиры доступна ипотека с господдержкой, семейная ипотека, ипотека для IT.
- 105 млн ₽Москва, ЗАО, район Очаково-Матвеевское, жилой комплекс Левел Мичуринский, к3Мичуринский проспект 16 мин.
- 29 млн ₽Москва, ЗАО, район Очаково-Матвеевское, жилой комплекс Левел Мичуринский, к4Мичуринский проспект 15 мин.
- 14,7 млн ₽Москва, ЗАО, район Очаково-Матвеевское, жилой комплекс Левел Мичуринский, к4Мичуринский проспект 15 мин.
- 23 млн ₽Москва, ЗАО, район Очаково-Матвеевское, жилой комплекс Левел Мичуринский, к4Мичуринский проспект 15 мин.
- 21,9 млн ₽Москва, ЗАО, район Очаково-Матвеевское, жилой комплекс Левел Мичуринский, к4Мичуринский проспект 15 мин.
- 54,85 млн ₽Москва, ЗАО, район Очаково-Матвеевское, жилой комплекс Левел Мичуринский, к5Мичуринский проспект 15 мин.
- 45 млн ₽Москва, ЗАО, район Очаково-Матвеевское, жилой комплекс Левел Мичуринский, к1Мичуринский проспект 15 мин.
- 22,5 млн ₽Москва, ЗАО, район Очаково-Матвеевское, жилой комплекс Левел Мичуринский, к1Мичуринский проспект 14 мин.
- 15,5 млн ₽Москва, ЗАО, район Очаково-Матвеевское, жилой комплекс Левел Мичуринский, к4Мичуринский проспект 15 мин.
- 55 млн ₽Москва, ЗАО, район Очаково-Матвеевское, жилой комплекс Левел Мичуринский, к2Очаково 13 мин.
Архитектура
Проект разработан архитектурным бюро СПИЧ. Расположение домов специально спланировано так, чтобы из каждого окна открывались виды на реку или столицу.
Расположение корпусов
Каркас домов будет монолитным, внешние стены — блочные. Для отделки фасадов застройщик использует кирпич, нержавеющую сталь, бетонную фасадную плитку и алюминиевые фасадные кассеты. В зависимости от погоды металл будет по-разному отражать свет, и цвет фасадов будет меняться. Для кондиционеров предусмотрены технические балконы, чтобы они не портили облик фасадов зданий.
Фасад дома
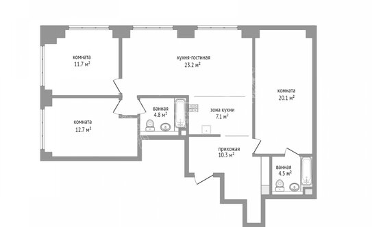
Планировки
В жилом комплексе «Level Мичуринский» большой выбор квартир разной площади. Самые маленькие — однокомнатные, около 23 м². Застройщик не использует такое понятие, как «студия», но по сути — это они и есть.
Начиная с двухкомнатных квартир появляется большое разнообразие планировок, что можно понять уже по разнице в размерах квартир: между самой маленькой и самой большой — более 20 м². Высота потолков в обычных квартирах будет 3,1 м.
Верхние этажи зданий будут отданы под пентхаусы с панорамным остеклением и потолками высотой от 3,9 до 6,3 м. Там будут располагаться пяти-, шести-, семи- и восьмикомнатные двухуровневые квартиры. Также можно будет выбрать квартиры с панорамными окнами, выходящими на три стороны света.
Двухуровневая квартира
Застройщик предлагает разные варианты отделки: white box, дизайнерская отделка под ключ или черновой вариант со свободной планировкой.
Отделка под ключ есть в двух вариантах: классическая — в нейтральных бежевых тонах и модерн — со светлой холодной палитрой.
Отделка в стиле модерн
Для дизайнерской отделки применят качественные материалы: дубовую паркетную доску для пола, стеклохолст для стен, межкомнатные двери из МДФ, покрытые белой эмалью, подоконники из влагостойкой фанеры с отделкой из массива дерева. Подвесной потолок смонтируют из гипсокартонного листа.
Вариант отделки
В санузлах сделают натяжные потолки, уложат керамогранитную плитку, установят душевую кабину или ванну из искусственного камня, подвесной унитаз. Также в санузлах будут сделаны тёплые полы. В прихожей установят видеодомофон.
Санузел
Инфраструктура комплекса
В лобби с высокими потолками (5,6 м) и панорамными окнами установят системы кондиционирования воздуха, чтобы летом помещение не перегревалось, а зимой не было холодно. Также там разместят диваны, где можно будет поработать или провести деловую встречу. На первых этажах комплексов оборудуют гостевые туалеты.
Лобби
Будущие жители комплекса «Level Мичуринский» могут приобрести парковочное место в подземном трёхуровневом паркинге и кладовые. Эти помещения будут отапливаться, температура там никогда не опустится ниже 5⁰С.
Паркинг
В каждом корпусе будет 4 лифта. Предусмотрена отдельная зона погрузки/разгрузки для сервисного лифта, которая будет находиться отдельно от пассажирских лифтов.
Лифт
В квартирах будет установлена приточная вентиляция, предусмотрена возможность дополнить её индивидуальной приточной установкой. Внутрипольные конвекторы в каждой квартире позволят даже зимой ходить босиком. А во время планового отключения горячей воды будут подключать централизованные системы водонагрева.
Входы на придомовую территорию, в лобби, диспетчерские и паркинги оборудуют системой контроля и управления доступом. Детские площадки, лобби, лифты и паркинг будут находиться под постоянным видеонаблюдением. При необходимости можно будет получить доступ к записям прямо с телефона.
Главной достопримечательностью жилого комплекса будет видовой мост длиной 268 м и шириной 3 м. Он будет начинаться на уровне земли, проходить через весь двор и постепенно подниматься до эксплуатируемой кровли с тихими пространствами для отдыха.
Видовой мост. Источник: stroi.mos.ru
Вдоль стены стилобата для детей построят вертикальную досуговую площадку, состоящую из нескольких этажей, соединённых лестницами, лифтами и пандусами. Там будут горки, качели, скалодром и другое оборудование для игр.
По стенам стилобата будут расти многолетние лианы, лимонник, виноград и другие растения.
Кроме того, во дворе оборудуют спортивные площадки для баскетбола и футбола, зоны для тренировок на улице, установят столы для пинг-понга. Также во дворе появятся лаундж-пространства, где можно будет отдыхать или работать на свежем воздухе, террасы с видом на парк, амфитеатр и большая площадь с фонтаном.
Прогулочная зона в ЖК Level Мичуринский
На территории квартала застройщик обещает построить школу и детский сад, но не анонсирует, когда именно это произойдёт и на сколько мест они будут рассчитаны.
На первых этажах зданий откроются магазины, кафе и аптеки.
- Очень разочарована застройщиком. Выбирали как надежного , а получилось наоборот. Купили квартиру в ЖК Мичуринский. Очень плохие въезды на подземную парковку. Территория узкая, коридор для открытия входной двери в квартиру максимально узко и неудобное открывание, заносить что-то во время ремонта ужасно неудобно. Самый неприятный факт, что полы были настолько не ровные, буквально ямами. Пришлось поднимать где-то на 7 см. при заливание пола . Потолок сильно занижается. Вот как так можно было сделать ??? Такое наплевательское отношение.Это очень расстраивает. Школу обещали открыть по завершению строительства. Мы на это рассчитывали. Теперь менеджеры отмахиваются, что вопросы про школу не к ним и даже номера не знают. Когда покупали квартиру-знали и номер школы и когда откроют)). А еще возмущает надпись- Продуманно все до мелочей! Я, если честно не ожидала такого от застройщика, было какое-то доверие.
- Как по мне, тут идеальное сочетание удобства и природы. Расположение отличное: 10 минут до метро, рядом парки и заказник, а до центра — минут 20 на такси. Менеджеры помогли подобрать просторную планировку с видом на зелень. В самом ЖК будут детсады, школа, фитнес и много магазинов, но и вокруг полно социалки. Так что мы очень довольны выбором: здесь есть всё для комфортной жизни с детьми!
- Крайне разочарован как застройщиком, так управляющей компанией от застройщика. Позиционируют себя как бизнес или комфорт +, но по факту красивый эконом. Машиноместа дорогие, но самая большая проблема, что въезд на каждое парковочное место очень узкий из-за боковых балок, расстояние до стены напротив парковочного места мало, паркуясь приходиться тыркатся туда сюда. Между балками и боковыми зеркалами при въезде на парковочное место всего несколько сантиметров. При получении квартиры были выявлены существенные недостатки. Представители застройщика клятвенно обещали устранить в течении 60 дней, однако по истечении срока большая часть не устранена. При обращении создают заявки и результат ноль. Сдали и забыли. Управляющая компания застройщика не помогает в решении вопроса. Так что 1000 раз подумайте, перед покупкой квартиры в данном ЖК.
- Купили квартиру на этапе первых этажей в 2022 году, рассчитывали на реальный бизнес класс. По итогу от бизнеса пока только тарифы и отделка МОПов все остальное печально - постоянные протечки, холод в квартирах и МОПах, максимально неудобный заезд на паркинг с отпиской застройщика что все по нормам. White Box от застройщика полное дно - приходится переделывать буквально все кроме стяжки - дождаться каких-то исправлений от застройщика не реально. Еще не заселились, идет ремонт а уже сильно разочаровались в проекте и особенно в застройщике с навязанной УК.
- Жесть полная. В лифтах написан слоган "все продумано до мелочей"... на самом деле одно большое недоразумение. Во всяком случае про корпус 4 и парковку. 1. Делали стяжку выяснилось что перепады по полу до 16 см. 2. окна текут... в сентябре/октябре когда на улице был дождь, на полу были лужи. На словах обещали устранить...посмотрим, когда будут опять дожди. 3. Батареи холодные. Сейчас, когда были холода в Москве, у некоторых температура в квартире была в районе 16 градусов!! Оставляем заявки, но от УК Левел реакции нет. 4. Паркинг... с первого раза не въехать на среднеразмерном авто. Проезды между этажами узкие. Владельцам внедорожников искренне сочувствую) 5. Понятное дело, что детская площадка выглядит не так как было на рендерах в 2021 году)) Из плюсов: вид на академию и парк, у кого окна выходят на ту сторону. Да, и Холл в целом выглядит хорошо, мебель, елочка....правда там тоже батареи не греют, поэтому комфортно только в зимней куртке. Вообщем, кто думает о покупке в этом ЖК квартиры..подумайте) Если каким-то чудом УК и Застройщик все исправят, отзыв поменяю, но пока увы, если мы говорим о бизнес классе, то оценка 1 звезда самое то.
Транспорт
В 10 минутах ходьбы от жилого комплекса находится станция метро «Мичуринский проспект». Эта станция Солнцевской линии, которая связана переходом с одноимённой станцией новой Большой кольцевой линии. Также недалеко от одного из корпусов находится автобусная остановка, через которую проходят маршруты автобусов № 42, 219, 688. На них можно добраться до станций метро Сокольнической линии «Проспект Вернадского» и «Юго-Западная», а на автобусе 688 — доехать до Крылатского, где расположен Москворецкий парк.
Дорога на автомобиле до Третьего транспортного кольца (ТТК) и МКАД займёт 10—15 минут.
Станция метро «Мичуринский проспект» на Солнцевской линии. Источник stroi.mos.ru
О застройщике
Девелоперская компания Level Group была основана в 2016 году. Компания занимается строительством в Москве и специализируется на постройке жилья комфорт-, бизнес- и элит-класса. За это время застройщик сдал 13 домов в 5 ЖК и строит 34 корпуса в 10 ЖК. Также компания построила бизнес-центр класса А «Wall Street» и частную школу пансионного типа «Летово».
На Едином ресурсе застройщиков компания входит в топ-50 по объёму строящегося жилья и в топ-100 по потребительским качествам ЖК.
О районе Очаково-Матвеевское
Район расположен в Западном административном округе Москвы. Жилой комплекс стоит у нижней границы района, которая проходит по оси Мичуринского проспекта. Об этом надо помнить, планируя посещение районной поликлиники или при записи детей в школы и детские сады.
История района
Когда-то на месте Очаково-Матвеевского района находилось несколько населённых пунктов: Очаково, Матвеево, Аминьево, Волынское и Троекурово — они вошли в состав Москвы в 1960 году. Тогда же там началось массовое жилищное и промышленное строительство. В 1991 году были созданы муниципальные округа Очаково и Матвеевское, а в 1997 году эти два района объединили в один.
Инфраструктура района
Прогулки
Природный комплекс района занимает 143,16 га. На границе районов Очаково-Матвеевское и Фили-Давыдково находится крупнейший в черте города заказник Долина реки Сетунь, в который также входят Матвеевский и Троекуровский леса. В заказнике есть множество архитектурных памятников и усадебных парков, таких как Западная усадьба Троекурово, пятиглавый храм Спаса Нерукотворного Образа на Сетуни, шатровый храм Троицы Живоначальной в Троицком-Голенищеве и множество других.
Шатровый храм Троицы Живоначальной в Троицком-Голенищеве. Фотография: Max Makarevich
Если пройти вдоль реки Очаковки, можно оказаться в Очаковском парке, где находится Большой Очаковский пруд. В 2017 году было проведено благоустройство пруда. Его очистили, на берегах установили площадки для отдыха, проложили новые пешеходные дорожки и обновили освещение.
Фотография: Tookser
В 15 минутах от комплекса находится Парк Олимпийской деревни. Его открытие приурочили к началу Олимпийских игр 1980 года, но после этого за парком не ухаживали, и он пришёл в запустение. В 2016 году парк открыли после реконструкции. Там появились велодорожка протяжённостью 4 км, беговой маршрут длиной 2,7 км, который зимой превращается в трассу для лыжников, а также верёвочный городок, два пункта проката инвентаря, 10 спортивных площадок, среди которых волейбольная, баскетбольная, столы для настольного тенниса. Для детей оборудовали игровые площадки, в том числе с пружинистым покрытием, сетками для лазания и другими интересными конструкциями. Кроме того, в парке есть площадка для танцев, пикниковая зона, место для выгула собак.
Фотография: Пресс-служба Правительства Москвы
Образование
Рядом с жилым комплексом есть две школы и детский сад, которые входят в один образовательный комплекс «Школа № 2025».
Фотография: Школа 2025 (Яндекс Карты)
Медицина
Детская поликлиника № 131 находится около станции метро «Мичуринский проспект», дорога до неё пешком займёт около 20 минут. Поликлиника для взрослых № 8 (филиал № 3) расположена на Большой Очаковской улице. Путь до неё займёт 26 минут пешком или 22 минуты на автобусе.
Также недалеко есть несколько медицинских центров, стоматология, исследовательские лаборатории, аптеки, множество магазинов, ресторанов и кафе.
Экологическая обстановка
Состояние окружающей среды в районе удовлетворительное. Негативное влияние оказывает ТЭЦ-25, расположенная в 2 км от комплекса. В воздухе может быть повышенное содержание оксидов азота, углерода и серы.
Также негативное воздействие оказывают завод «РТИ-Каучук», пиво-безалкогольный комбинат «Очаково» и другие производственные объекты, находящиеся в промзоне Южное Очаково.
Впрочем, жилой комплекс «Level Мичуринский» находится в зелёной зоне на берегу реки, и поэтому экологическая обстановка там заметно лучше, чем в остальном районе, так как ощутимо влияние рельефа, воды и обилия растений.
Источник: ecostandardgroup.ru
Будущее района
Основные изменения должны затронуть промзону Очаково. Власти Москвы приняли решение реорганизовать и благоустроить эту территорию. Там будут размещены высокотехнологичные производства, появятся офисы, банки, магазины, что создаст более 2 тыс. рабочих мест. Пока сложно судить, какое влияние окажет новое производство на экологическую обстановку района.
Солнцевскую линию метро продлят. Сейчас ветка заканчивается станцией «Рассказовка», но в 2023 году будут открыты станции «Пыхтино» и «Внуково», в результате чего до аэропорта можно будет добраться на метро.
Недостатки района
Основным недостатком района Очаково-Матвеевское можно считать влияние промзоны на окружающую среду. Иногда жители района жалуются на неприятные запахи, которые чувствуются в воздухе. Впрочем, можно надеяться, что с реорганизацией промзон эти проблемы будут решены.
Резюме
В жилом комплексе «Level Мичуринский» большой выбор жилья разной площади от 23 до 249 м². Рядом есть станция метро, на автомобиле легко добраться в центр и выехать за пределы города.
Плотность населения неизбежно повысится, в связи с чем могут появиться сложности с парковкой. Эту проблему можно решить, приобретя или арендовав место на подземной парковке.
Экологическая обстановка по району Очаково-Матвеевское не слишком благоприятная, но так как комплекс расположен на границе района на берегу реки и около парка, там ситуация значительно лучше.
Предложения других застройщиков в этом районе
ЖК | Застройщик | Площадь,
м²
| Стоимость, млн ₽ | Срок сдачи | Транспортная доступность | Отделка |
Клубный дом «Река» | Донстрой | 56,9—289,6 | 42,0—252,8 | ll квартал 2024 года (есть сданные) | 11 минут пешком до станции метро «Мичуринский проспект» | Под ключ |
«Инноватор» | Мосреалстрой | 21—71 | 9,76—27,3 | l квартал 2024 года | 3 минуты пешком до станции метро «Мичуринский проспект» | Черновая, чистовая |
«ОМ» | Трансстройинвест | 28,2—102,9 | 9,98—29,3 | ll квартал 2025 года | 10 минут транспортом до станции метро «Озёрная» | Без отделки |