В этом обзоре рассказываем о жилом комплексе бизнес-класса «е.волюция», который возводят в южной части Санкт-Петербурга, в Московском районе. Здесь построят 3 корпуса переменной этажности с подземным паркингом, закрытым двором и собственным детским садом. Из некоторых квартир будет открываться вид на Московский проспект и Московские триумфальные ворота.
О жилом комплексе
ЖК «е.волюция» находится на пересечении Московского и Лиговского проспектов, около станции метро «Московские ворота». Сейчас эта территория активно застраивается жилыми комплексами бизнес-класса. Строительство планируют завершить в III квартале 2024 года.
Цены
Средняя цена за квадратный метр в этом жилом комплексе составляет 299,8 тыс. рублей. При покупке можно оформить семейную ипотеку, использовать материнский капитал, а также получить скидку по 25 тыс. рублей с квадратного метра. Кроме того, действует система «трейд-ин», по которой с доплатой можно обменять свою квартиру на новую.
- 35,67 млн ₽Санкт-Петербург, Московский район, муниципальный округ Московская Застава, жилой комплекс Е.волюцияМосковские ворота 6 мин.
- 35,67 млн ₽Санкт-Петербург, Московский район, муниципальный округ Московская Застава, жилой комплекс Е.волюцияМосковские ворота 6 мин.
Количество комнат | Площадь, м² | Минимальная цена, млн ₽ (май 2023) |
Студии | 20,9–47,5 | 6,1 |
1 | 44,8–71,5 | 11,6 |
2 | 72,0–96,1 | 18,1 |
3 | 118,9–135,5 | 29,8 |
4 | 147,5–166,2 | 45,3 |
Архитектура
Фасад здания
В жилом комплексе построят 3 монолитных корпуса высотой в 5, 10 и 11 этажей. Облик зданий будет созвучен с архитектурными особенностями района — монументальный объём и сдержанность в декоре напомнят сталинский ампир.
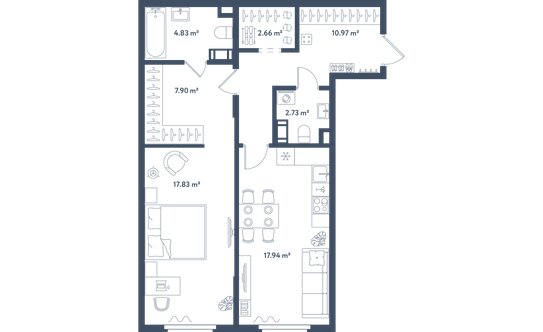
Планировки
В ЖК «е.волюция» доступны квартиры от студий до 4-комнатных. Застройщик предлагает более 100 планировочных решений, в которых есть:
- мастер-спальни с доступом к собственной ванной;
- гардеробные;
- террасы;
- лоджии;
- балконы;
- хозблоки;
- постирочные;
- сауны.
В отдельных секциях запланировано всего по 2 квартиры на этаж. В жилом комплексе установят панорамные окна, из некоторых вид будет открываться на Московские триумфальные ворота и Московский проспект.
Кухня-гостиная. Визуализация проекта
Инфраструктура комплекса
Входные группы. В лобби можно выпить кофе, провести встречу или собеседование персонала, принять курьера. Для гостей комплекса предусмотрен главный вход в 1-й секции 1-го корпуса, через который можно будет попасть на ресепшн.
Лобби
Паркинг. На подземном этаже расположен отапливаемый паркинг на 477 мест. Спуститься туда можно на лифте. В паркинге есть семейные места — с увеличенной площадью для двух автомобилей, а также места для маломобильных граждан, включая 4 места для тех, кто пользуется инвалидной коляской. Кроме того, большинство парковочных мест может быть оборудовано системами клаус-подъёмников. Это позволит разместить две машины на одном парковочном месте.
Персонал поможет зарядить электромобиль, подкачать колёса или помыть машину.
Для детей. В жилом комплексе появится частный детский сад на 90 мест.
Дворы. Двор разделится на две зоны. В одной части — детские игровые и спортивные площадки, другая будет предназначена для спокойного отдыха.
Покупки и развлечения. В комплексе откроется клуб для жителей «е.волюции», где можно будет найти собеседников и единомышленников, организовать игру или тематическую встречу. Кроме того, на первых этажах появятся киноконцертный зал, коворкинг, спортклуб, творческие мастерские, кафе с собственной пекарней и магазины.
Сервис. Также в жилом комплексе будет находиться офис управляющей компании. Это позволит обеспечивать необходимый уровень сервиса и поддерживать чистоту и порядок на территории.
Безопасность. Территория жилого комплекса будет закрыта от посторонних. Каждую квартиру подключат к системе IP-домофонии. Входные двери и ворота оборудуют вызывными панелями. Внутри помещений разместят сенсорные мониторы, которые позволят удалённо управлять системой умного дома и поддерживать связь с охранной службой и консьержами.
Кроме того, территория вокруг дома, а также входные группы, паркинг и лифтовые кабины будут под круглосуточным видеонаблюдением.
- очередной недострой, обидно за дольщиков, которых кинул застройщик, основатель в СИЗО
- С домом будет тоже самое что с любым питерским долгостроем - его достроят! но процесс конечно затянется. К самой концепции дома претензий вообще нет. Топовое место. Отличные планировки. Под сдачу идеально, можно забахать квартиру на сталинском вайбе аля Покровские ворота на радость хипстоте. Отличный БЫЛ прайс плюс программа под 0%. Одна звезда чисто за отношение застройщика.
- Новый ЖК, Цены высокие. Близость к метро. Однако окружение: завод Заслон с котельной, пожарная часть, заводы и склады со стороны ул. Коли Томчака нивелируют "элитность" стройки. Материал стен монолит и газобетон. Сдаётся без отделки
- спорный ценник ,плохие планировки ,место на любителя . Компанию штормит , в Москве продают свои земельные участки . По срокам строительства ощущение ,что уже не успевают сдать в срок .
- Дом уже год как вообще не строят всю технику вывезли , на стройке не души. Если и достроят, то очень нескоро. Покупателям квартир в данном ЖК можно только посочувствовать
Транспорт
Жилой комплекс возводят на пересечении двух крупных магистралей города — Московского и Лиговского проспектов. За 7 минут на автомобиле можно добраться до Западного скоростного диаметра, до Кольцевой автомобильной дороги — за 10 минут, до аэропорта Пулково — за 26 минут, а до Невского проспекта — за 15 минут.
Ближайшая к жилому комплексу станция метро — «Московские ворота», до неё можно дойти за 5 минут. Рядом находятся остановки троллейбусов, автобусов и трамваев.
О застройщике
Компания e. Development существует с 2017 года и входит в группуSeven Suns Development. ЖК «е.волюция» — третий проект застройщика. В Подмосковье компания возводит жилой комплекс бизнес-класса на 80 квартир «Точка отсчёта», в Сестрорецке на берегу Финского залива — комплекс апартаментов «Мир внутри».
О Московском районе
Район расположен в юго-западной части Санкт-Петербурга. На его территории расположен аэропорт Пулково. Кроме того, здесь проходят две крупные автомагистрали — Московское и Киевское шоссе, идущие с северо-запада страны. Наверное поэтому район часто называют «Южными воротами» города. Этот район считается престижным. В 2017 году он занял 1-е место среди районов Санкт-Петербурга в рейтинге Urban Awards, как самый комфортный для деловых людей, и 2-е — в рейтинге по комфорту для семей с детьми.
История района
Территория современного Московского района была заселена раньше, чем появился Санкт-Петербург. Район формировался вдоль современного Московского проспекта, на месте которого раньше была дорога, ведущая к Великому Новгороду. При Петре I там появилась Московская застава со шлагбаумом и караульной. Первый шлагбаум стоял на месте Московских триумфальных ворот. А сами Московские триумфальные ворота построили в 1836 году. Поводом для их возведения послужили победы России в войнах с Персией и Турцией.
Московские триумфальные ворота. Фотография: Selemir Grig
Инфраструктура района
Образование. Около жилого комплекса в 4 минутах ходьбы находится лицей № 373. Другие ближайшие к жилому комплексу школы — № 703 и Православная Свято-Владимирская школа. Дойти до них можно за 13–15 минут. Также в 20 минутах ходьбы от комплекса есть Морская школа. Кроме того, недалеко от жилого комплекса находятся 2 государственных и 2 частных детских сада, до которых можно добраться пешком за 13–16 минут.
Медицина. В 14 минутах ходьбы от комплекса расположены 2 филиала поликлиники для взрослых № 48, в одном из них есть травмпункт. Кроме того, в 500 м от жилого комплекса есть частная клиника «Будь здоров» со стоматологическим кабинетом. Два филиала детской поликлиники находятся в 12–15 минутах ходьбы от ЖК «е.волюция».
Спорт. Около жилого комплекса есть несколько спортивных клубов. На Лиговском проспекте есть футбольный комплекс, до которого можно дойти за 20 минут. На Московском проспекте в 700 м от ЖК «е.волюция» расположен спортклуб с бассейном «Волна».
Покупки. Рядом с ЖК, в 15 минутах езды на автомобиле, есть два крупных торговых центра: «Радуга» и «Рио». А за 30 минут можно доехать до целого комплекса торговых центров на Пулковском шоссе, таких как «Лето», «ОБИ», Hoff, «О’кей».
Достопримечательности. В 700 м от ЖК «е.волюция» расположены Воскресенский Новодевичий женский монастырь. А также Новодевичье кладбище, на котором установлено много дореволюционных памятников, имеющих историческую и художественную ценность.
Недалеко от жилого комплекса находится шоу-музей «Гранд макет Россия», его экспозиция воплощает образ нашей страны на площади 800 м².
Гранд макет Россия. Фотография: Anna V (Z)
Прогулки. Через дорогу от комплекса расположен «Московский сад». Кроме того, в 3 км находится парк Победы, до которого можно дойти за 30 минут или доехать на автомобиле за 10.
Экологическая обстановка
Плюсы. Московский район достаточно хорошо озеленён, это отчасти компенсирует влияние промышленных объектов на окружающую среду.
Минусы. В районе из-за загруженности дорог сильная загазованность воздуха и повышенный уровень шума. Кроме того, проблемы создают стихийные свалки, одна из которых находится между станциями метро «Московская» и «Звёздная».
Будущее района
- На территории бывшего совхоза «Цветы» построят новый жилой квартал со школой и двумя детскими садами. Квартал озеленят, проложат бульвар, дорожки для прогулок.
- В 2023 году разработали проект благоустройства сквера на проспекте Космонавтов около домов 28/1 и 30/1. Планируется построить детскую площадку, замостить дорожки плиткой, установить качели и скамейки, а также посадить дополнительные растения.
- В 2023 году запланировано благоустроить парк Авиаторов. Там появится круговая дорожка для бега и скандинавской ходьбы, памп-трек для велосипедистов, верёвочный парк, а детскую площадку стилизуют под парк аттракционов.
- Также планируют озеленить сквер Раисы Штрейс вдоль Пулковского шоссе.
Недостатки района
- Инфраструктура недостаточно быстро развивается, жилая застройка её опережает.
- Экологическая обстановка хуже, чем в других районах Санкт-Петербурга.
Резюме
ЖК «е.волюция» задуман как клубный дом, в котором соседи смогут общаться, встречаться в кафе или кинозале комплекса. Здесь можно купить квартиру от студий до 4-комнатных, выбрать варианты с лоджиями, террасами и балконами. На территории комплекса откроется частный детский сад.
В районе хорошо развита транспортная сеть, а по Московскому проспекту легко добраться в центр города или выехать за его пределы.
Предложения застройщиков в районе
Название ЖК | Цена квартир, млн ₽ | Застройщик | Площадь, м² | Сроки сдачи | Транспортная доступность | Отделка |
«е.волюция» | 6,1–49,0 | e.Development | 20,9–166,2 | III квартал 2024 года | 5 минут пешком до станции метро «Московские ворота» | Черновая |
iD Park Pobedy | 11,4–40,5 | Euroinvest Development | 35,3–145,4 | IV квартал 2023 года – I квартал 2024 года | 16 минут пешком до станции метро «Электросила» | Предчистовая |
«Дефанс» | 6,1–47,9 | «Лидер Групп» | 24,2–119,5 | IV квартал 2025 года | 18 минут пешком до станции метро «Московские ворота» | Черновая |
«Сенат в Московском» | 5,8–26,3 | Setl Group | 23,9–111,1 | III квартал 2025 года | 13 минут на транспорте до станции метро «Московские ворота» | Черновая |