Подробный обзор клубного дома Turgenev в центре Москвы со всеми плюсами и минусами

Клубный дом Turgenev достраивается в самом центре Москвы, между Садовым и Бульварным кольцом. Потенциальных жильцов ждёт собственный спа-центр, фитнес-клуб, бассейн, сигарная комната и даже кинотеатр. А театры, рестораны и магазины — в пешей доступности. Что такое жизнь в клубном доме в центре столицы — в нашем обзоре.

О жилом комплексе

Turgenev — 8-этажный элитный дом клубного типа. Всего в здании 93 квартиры площадью от 56 до 151 м², в том числе пять двухэтажных пентхаусов на верхних этажах. Застройщик обещает сдать дом в сентябре 2023 года.

ЖК возводят по адресу: Костянский переулок, 13. Это в Красносельском районе Москвы. И до Садового, и до Бульварного кольца идти не больше 300 метров. Рядом — Чистые Пруды и проспект Академика Сахарова.

Цены

Средняя стоимость жилья в Turgenev в мае 2023 года.
Количество комнат
Площадь, м²
Средняя цена за 1 м², тыс. ₽
Средняя стоимость, млн ₽
1
56–86
1 716
147,78
2
101–124
1 298
150,25
3
145–150
1 487
224,55
4
210
1 645
340,45

Такие цены сопоставимы с предложениями в строящемся неподалёку элитном клубном доме «Чистые Пруды». Там средняя стоимость 1-комнатной квартиры составляет 163,01 млн рублей, 2-комнатной — 169,76 млн, 3-комнатной — 202,98 млн, а за 4-комнатную застройщик просит в среднем 228,9 млн. Cтоимость квартир в соседнем доме примерно на 10% выше, чем в Turgenev за счёт того, что квартиры в «Чистых Прудах» просторнее — от 77,9 до 387,4 «квадратов». 

Архитектура

Внешний облик жилого комплекса — образец современной архитектуры, характерной для дорогих районов европейских столиц. Архитектурную концепцию разработала британская компания Squire & Partners. Она занимается проектированием и строительством зданий в Лондоне и других городах мира.

Фасад первых шести этажей облицован песочно-белым натуральным камнем и патинированной латунью. По заверениям застройщика, такое покрытие без проблем выдержит 240 зим. 

Последние два этажа комплекса облицованы натуральным гранитом тёмно-коричневого оттенка. Так архитекторы подчеркнули особый статус расположенных здесь пентхаусов. Также 7-й и 8-й этажи здания украшают террасы, обрамлённые закалённым стеклом. Они придают лёгкость и воздушность строгой архитектуре дома.

Turgenev возводят по монолитной технологии на участке площадью 0,49 га. Стены кирпичные. При строительстве используются энергосберегающие материалы. Класс энергоэффективности А. Это значит, что дом потребляет меньше ресурсов, а жильцы экономят на оплате коммунальных услуг.

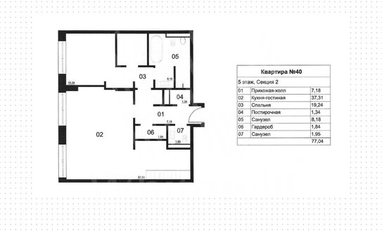
Планировки

Застройщик предлагает варианты планировок с количеством спален от одной до пяти. Однако на деле в квартирах на одну комнату больше — в каждой также предусмотрена просторная кухня-гостиная. 

В планировках большинства квартир дизайнеры разделили гостевую зону и «хозяйскую». Кухню-гостиную разместили в конце коридора, по пути туда — небольшой санузел для гостей. 

А так выглядит планировка двухуровнего пентхауса с пятью спальнями, четырьмя открытыми галереями и двумя дровяными каминами:

В каждой квартире также установят систему умного дома, с помощью которой можно удалённо управлять освещением и климатом. Например, когда в квартире никого нет, система снизит температуру отопления до 16–18°C, а к возвращению жильцов начнёт плавно поднимать её к комфортным 22 °C. 

Все квартиры комплекса сдаются с финишной чистовой отделкой — заезжай и живи. Концепцию интерьеров разрабатывали при участии голландского архитектурного бюро Wolterinck. В отделке используют материалы премиальных брендов. Например, санфаянс от итальянского CIELO, ванны от немецкого KNIEF, паркетная доска от австрийского Austriawood. В ванных комнатах на полу, стенах и душевых — мрамор.

А в кухне по желанию покупателя установят гарнитур от итальянской компании CESAR. 

1/6

Вариант финишной чистовой отделкой

Инфраструктура комплекса

Входная группа, покупки и развлечения. На первом этаже в Turgenev разместится просторное лобби с местом для организации кейтеринга и сигарной комнатой с ящиками для хранения сигар.

Визуализация лобби

Также на первом этаже клубного дома предусмотрена зона фитнеса, велнеса и спа. Там появится и зал для йоги, сауна, бассейн с двумя дорожками длиной 23 м. В велнес-зоне поставят даже дорожку Кнейпа для закаливания — вымощенная «дорожка» с небольшими ванночками, которые поочерёдно наполняют водой разной температуры.

Всё это, а также ресторан и кинотеатр на 12 мест, будут доступны только для жильцов дома и их гостей.

Бассейн в клубном доме Turgenev

Чтобы посетить общую клубную зону, нужно будет спуститься из квартиры на лифте на первый этаж и пройти по переходной галерее, которая соединяет все пять секций дома.

Комплекс оснастят бесшумными лифтами с интеллектуальным управлением и возможностью спуска в паркинг.

Кладовые и паркинг. На двухэтажной подземной парковке предусмотрено 168 мест (то есть почти по два на квартиру). Здесь установят зарядные станции для электрокаров. На одном из уровней паркинга оборудуют 45 кладовых площадью 4–6 м². Везде — системы вентиляции, пожаротушения и видеонаблюдения.

Управляющая компания. Также на первом этаже обустроят помещение для сотрудников управляющей компании ЖК. По словам застройщика, они обеспечат круглосуточный сервис электриков, сантехников и лифтёров, ежедневную уборку территории, вывоз мусора и снега и работу садовников.

В ЖК будет круглосуточно работать консьерж-сервис. Система клубного дома напоминает пятизвёздочный отель: любой срочный вопрос решается звонком на ресепшн. Сотрудники сервиса могут встретить и проводить гостей, подобрать службу по уборке квартир, личного повара и водителя или даже няню для детей.

Визуализация двора

Дворы. На закрытой и охраняемой территории обустроят зелёные лужайки, ландшафтное освещение, места для отдыха, тропинки, уличную лаундж-зону, площадку для детей, водные каналы и вымостят тропинки. На территории сада будет Wi-Fi и точки для зарядки мобильных устройств. 

Безопасность. Территория комплекса огорожена и оборудована системами видеонаблюдения и контроля доступа по технологии FaceID. Благодаря ей жильцам не придётся носить с собой магнитные карты и ключи.

Транспорт

Из дома удобно выехать на автомобиле на улицу Сретенку, Бульварное и Садовое кольцо. В последнем случае можно повернуть и направо, и налево — такое на Садовом редкость. Большинство улиц в округе с односторонним движением.

Сретенский бульвар. Фотография: Sergey Norin

В 100–200 м от дома несколько автобусных остановок. А в радиусе полукилометра четыре станции метро: «Сухаревская», «Тургеневская», «Чистые Пруды», «Сретенский бульвар». Станции метро «Трубная», «Лубянка», «Кузнецкий Мост», «Красные ворота» в радиусе 1–3 км. 

До площади трёх вокзалов — Казанского, Ярославского и Ленинградского — 2 км.

О застройщике

Turgenev возводит проектно-строительная организация «Неострой». Это первый проект застройщика. Компания не имеет задолженностей, не состоит в списке недобросовестных застройщиков, а земельный участок под строительство находится в собственности.

Бесплатный подбор новостройки
Мы знаем о них всё. Предложим вариант под ваши пожелания и бюджет всего за один звонок. Расскажем об акциях и льготных ставках по ипотеке.

О Красносельском районе

Красносельский район начинается от Сретенского бульвара и заканчивается почти у границ парка «Сокольники». Значительную часть его территории занимают железнодорожные пути — сказывается близость к трём вокзалам.

При этом здесь, особенно вокруг клубного дома Turgenev, сохранился дух старой Москвы. В Красносельском множество храмов, памятников, дореволюционных домов. А вот парковки постоянно в дефиците.

Стрелкой отмечено место строительства Turgenev (Яндекс Карты)

История района

В XV веке на территории Красносельского района располагалось Красное Село. Отсюда начиналась дорога на Ярославль. Эту деревню пожаловали Василию Тёмному, сыну князя Василия I.

Первая геодезическая карта Москвы

В середине XVIII века Красное Село включили в состав столицы. В ХХ веке район превратился в промышленный центр. Здесь появились производственные цеха и фабрики, в том числе кондитерский концерн «Бабаевский». Сейчас Красносельский входит в Центральный административный округ Москвы и остаётся одним из самых престижных в столице.

Инфраструктура района

Образование. В районе 9 средних школ (4 из них — частные) две музыкальные школы, две спортивные школы и два колледжа. Самые известные учебные заведения — частный лицей «Ступени», Пушкинский лицей № 1500 и школа № 1525 (ранее лицей «Воробьёвы горы»).

Московский частный лицей «Ступени». Фотография: Михаил К. (Яндекс Карты) 

Медицина. В распоряжении жителей 12 государственных поликлиник и 18 коммерческих, например, многопрофильный медцентр «Бест клиник на Красносельской» и стоматологическая клиника Esperanto Dental Clinic. 

Спорт. Стадионов, бассейнов и других масштабных объектов в Красносельском районе практически не найти, зато вокруг Turgenev сразу несколько фитнес-центров.

Покупки и отдых. Плюс расположения в центре — концентрация музеев, театров, ресторанов. Кафе и другие заведения сконцентрированы на Мясницкой улице, а у площади трёх вокзалов в 2023 году открылся фудмолл «Депо. Три вокзала».К главным торговым точкам района ещё относится универмаг «Московский», расположенный на той же привокзальной площади. А вот крупных современных ТРЦ в районе не хватает.

Фотография: Svetlov Artem

Экологическая обстановка

Красносельский ещё и индустриальный район. Промышленные предприятия и загруженные магистрали негативно влияют на экологическую обстановку. По оценке проекта «Экологическая карта Москвы», качество воздуха в Красносельском районе — на «шестёрку» по 10-балльной шкале.

Будущее района

Грандиозных проектов на территории района пока не планируется. Это объясняется плотной застройкой и густой транспортной инфраструктурой. Однако власти столицы и района постоянно проводят работы по благоустройству территорий. Например, летом 2022 года стартовала реставрация здания Дома Юшкова — яркого памятника московского классицизма. Планируется, что работы завершатся в 2024 году.

Дома Юшкова. Фотография: Vladimir OKC

Всерьёз занялись и реконструкцией трёхэтажного здания санатория-профилактория в Новом переулке. Его высота увеличится до семи этажей, а на подземном уровне организуют автостоянку.

Район также вошёл в программу реновации. Первая новостройка на Русаковской улице уже заселяется.

«В этом районе в программу реновации включено ещё семь домов. Кроме того, приводим в порядок улицы, реконструируем поликлинику, строим транспортную инфраструктуру. Здесь уже есть МЦД-2, в планах — новая трамвайная линия», — рассказывал о мэр Москвы Сергей Собянин в феврале 2023 года.

Новостройка на Русаковской улице построенная по программе реновации. Источник: Фонд реноваци

Недостатки района

  • Неоднородность застройки. Внутри Садового кольца можно встретить бывшие усадьбы и дореволюционные доходные дома, а за его пределами — «панельки», частично обветшавшие и попавшие под программу реновации. 
  • Небольшой выбор нового жилья. Плотная историческая застройка внутри Садового и большое количество промзон за его пределами делают квартальную застройку практически невозможной. Поэтому новые проекты здесь появляются лишь точечно.
  • Напряжённая экологическая обстановка. Мало парков, много промзон и железнодорожных развязок.

Резюме

Turgenev подойдёт как постоянное место жительства для состоятельных людей, которым важны приватность, безопасность, расположение и окружение. Охраняемая закрытая территория, парковка, рассчитанная на несколько машин для каждой семьи, обустроенные вестибюли и холлы — всё это объясняет высокие цены на квартиры.

Покупка квартиры в Turgenev — это ещё и доступ в закрытое сообщество жителей, у которых будет отдельный ресторан, кинотеатр, сигарная, баня, бассейн, спа. То есть инвестиция не только в недвижимость, но и в комьюнити, что и подчёркивает название «клубный дом».

Предложения застройщиков в Красносельском районе

ЖК
Цена квартир (млн ₽)
Застройщик
Площадь (м²)
Сроки сдачи
Транспортная доступность
Отделка
Клубный дом Turgenev
147,78–340,45
«НеоСтрой»
86,1–151
II кв. 2023
ст. м. «Сретенский бульвар» — 900 м
чистовая
Клубный дом «Чистые Пруды»
134,7–1 308,9
«Sminex-Интеко»
77,9–387,4
II кв. 2025
ст. м. «Чистые пруды» — 700 м
чистовая
ЖК «Абрикосов»
93,8–221
MR «Group»
68,2–150
II кв. 2023
ст. м. «Чистые пруды» — 900 м
чистовая
Комментарии
0 комментов