Зачем нужно 60 розеток в двушке? Спросили у эксперта, как спланировать электрику без удлинителей

В новостройке всё выглядит аккуратно и логично ровно до того момента, пока вы не начинаете в ней жить. Телефон разряжается не там, где есть розетка. Робот-пылесос чаще нужен в коридоре, а для его зарядной станции место нашлось только в спальне. Фен приходится включать через удлинитель, потому что в ванной специальная розетка не предусмотрена.

Чтобы разобраться, сколько розеток действительно нужно в квартире, где их чаще всего забывают и почему электрику от застройщика почти всегда приходится переделывать, мы поговорили с экспертом, который регулярно работает с новостройками.

Евгения Сорокина — дизайнер в компании Domeo. Она работает с квартирами в новостройках — от типовых планировок до сложных индивидуальных решений. В этом материале она расскажет, как планирует электрику в двушках, почему в квартире площадью около 59 м² спокойно может быть 50+ розеток и как избежать бесконечных удлинителей, тройников и переделок после ремонта.

Сколько розеток нужно в двушке

Возьмём, к примеру, типовую двушку ПИК около 59 м². Здесь для комфортной жизни нам нужно примерно от 45 до 60 розеток. Современные тенденции диктуют комфорт для проживания, чтобы жильцам не приходилось пользоваться удлинителями. Количество розеток зависит от состава семьи и сценариев жизни. Например, если молодая семья с ребёнком живёт в квартире с совмещённой кухней-гостиной, то на каждую зону потребуется много точек.

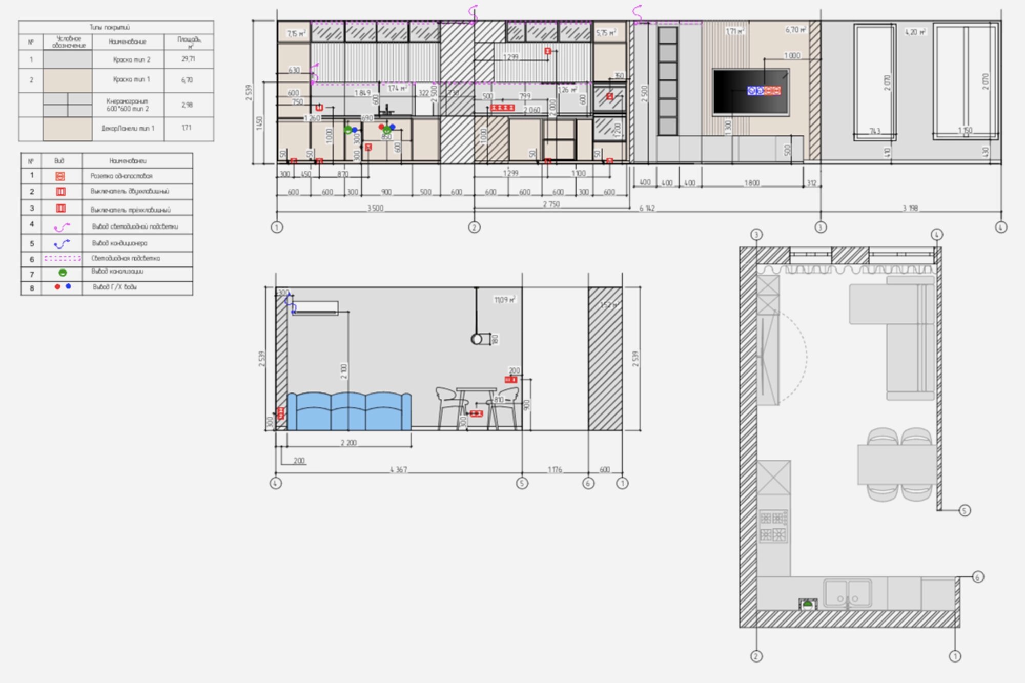
1/2

Всё начинается с чертежей: как мы размечаем розетки на этапе проекта. Изображение: Domeo

Как спланировать розетки в спальне

Спальня — это пространство, где ошибки с электрикой особенно заметны. Именно здесь люди чаще всего понимают, что розеток не хватает: телефон разряжается ночью, фен приходится включать в другой комнате, а пылесос негде хранить и заряжать.

Я всегда начинаю с расстановки мебели. В типовой спальне почти всегда есть кровать с тумбами по обе стороны, шкаф, телевизор и иногда туалетный столик. Исходя из этого, схема розеток получается довольно понятной.

Что нужно обязательно

По обе стороны от кровати я предусматриваю тумбы, а над каждой тумбой — по две розетки. Этого хватает для зарядки телефонов, часов, наушников и ночников. Если заказчики пользуются дополнительными гаджетами, количество точек можно увеличить.

За телевизором я закладываю отдельный блок розеток — под сам экран и сопутствующую технику. Даже если сейчас телевизор не планируется, я предпочитаю предусмотреть эту точку заранее, чтобы потом не вскрывать стены.

Отдельный момент — шкаф. В нём я почти всегда закладываю розетку для хранения и зарядки пылесоса. Это сильно упрощает быт и избавляет от необходимости тянуть провод через всю комнату.

Если в спальне предусмотрен туалетный столик, рядом с ним обязательно появляются розетки под фен и другие приборы. И да, я часто добавляю отдельную декоративную розетку — под гирлянду или мягкий ночной свет. Это мелочь, но именно она делает пространство более удобным.

1/3

Фото: Domeo

Детская «на вырост»: почему нужно подумать о розетках заранее

С детской почти всегда совершают одну и ту же ошибку: проектируют её под текущий возраст ребёнка. Кроватка, пеленальный столик, ночник. А через пару лет комната перестаёт работать как нужно: появляется рабочий стол, техника, зарядки, и снова маячат удлинители и переделки.

В своей практике я всегда проектирую детскую с заделом на будущее, даже если ребёнок совсем маленький.

1/3

Фото: Domeo

Как закладывать розетки в детской

Даже если сейчас в комнате стоит только кроватка и комод, я заранее предусматриваю:

  • розетки в зоне будущего рабочего стола;
  • блок розеток над комодом;
  • отдельную точку под декоративный свет — ночник или гирлянду.

Это особенно важно в квартирах, где детская изначально небольшая и нет запаса для свободной перестановки мебели. Когда ребёнок подрастает, рабочее место появляется почти неизбежно, и оно должно быть удобно подключено без дополнительных решений.

Я также всегда думаю о безопасности и доступности. Розетки размещаются так, чтобы ими было удобно пользоваться позже, но при этом они не мешали в раннем возрасте. Этот баланс проще заложить на этапе проекта, чем пытаться исправлять по факту. Детская — это пространство, которое меняется быстрее всего. И если электрика не готова к этим изменениям, квартира начинает буквально тормозить развитие сценариев жизни семьи.

Санузлы: где розетки нужны больше всего, но о них забывают

С санузлами часто поступают по остаточному принципу: сделали одну-две розетки — и кажется, что этого достаточно. Но в современных проектах санузел — это не только место для стиральной машины и электрической бритвы: он предусматривает другую технику и ежедневные ритуалы. Поэтому я всегда планирую розетки здесь максимально внимательно.

1/2

Фото: Domeo

Как распределить розетки в санузлах

Если в квартире предусмотрены стиральная и сушильная машины, под каждую из них закладывается отдельная розетка с учётом мощности. Это базовый уровень безопасности и комфорта.

Отдельный блок — зона раковины и зеркала. Сегодня всё чаще заказчики просят розетки рядом с умывальником: для фена, электробритвы, ирригатора и других приборов, которыми пользуются регулярно. Я поддерживаю этот запрос и всегда закладываю точки так, чтобы ими было удобно пользоваться каждый день, а не тянуть провод через весь санузел. Также я думаю о мелочах, которые сильно упрощают жизнь: розетки для дополнительного освещения, подсветки зеркал, бытовых приборов, которые появляются со временем. Санузел — одно из тех помещений, где сценарии использования меняются быстрее, чем кажется.

Кухня: почему здесь нельзя действовать без плана

Кухня — это место, где ошибки с электрикой обходятся дороже всего. Именно здесь больше всего техники с разной мощностью, размерами и сценариями. Поэтому я всегда говорю заказчикам: кухню невозможно спланировать без чёткого плана электрики.

На этом этапе я уже точно знаю расстановку мебели, типы техники и рост человека, который чаще всего готовит. Без этого ни одна схема не будет работать корректно.

Фото: Domeo

Как подойти к размещению розеток на кухне

У каждого прибора есть свои нормы по высоте, и их важно соблюдать. Для холодильника и духового шкафа розетки обычно располагаются примерно в 50 мм от пола. Для вытяжки — на высоте около двух метров. Эти параметры завязаны не только на удобство, но и на безопасность.

Розетки над столешницей я размещаю в среднем на высоте около 1000 мм от пола, но этот показатель никогда не бывает универсальным. Он всегда корректируется под рост заказчика и высоту кухонной столешницы. Если этим пренебречь, пользоваться техникой будет неудобно каждый день.

Отдельное внимание я уделяю количеству точек в рабочей зоне. Здесь редко бывает достаточно двух розеток. Чайник, кофемашина, блендер, тостер, зарядка для телефона — всё это используется параллельно. Задача электрики — не заставлять человека выбирать, что включить сейчас, а что потом.

На кухне я также заранее учитываю технику, которая может появиться не сразу. Это позволяет избежать переделок, когда через полгода или год привычки и сценарии жизни меняются.

Фото: Domeo

Неочевидные точки, о которых вспоминают слишком поздно

Когда я показываю заказчикам план электрики, многие удивляются количеству розеток вне жилых комнат. Но именно эти точки потом оказываются самыми востребованными.

Я всегда исхожу из простой логики: если в этом месте есть техника или планируется какое-то действие, там должна быть розетка.

Где обязательно заложить дополнительные точки

В проектах я всегда предусматриваю розетки:

  • в технических помещениях;
  • в местах хранения пылесоса и уборочного инвентаря;
  • рядом с зеркалами и раковинами;
  • в зонах, где могут появиться гладильные системы или другая бытовая техника.

Когда все эти точки предусмотрены заранее, квартира будто спокойно живёт своей жизнью. Ничего не нужно переносить, подключать временно или обходить.

Очень часто именно на этом этапе становится понятно, почему электрика от застройщика не справляется с реальной жизнью. Она усреднённая и не учитывает конкретных привычек людей. А сценарии всегда сложнее, чем кажется на этапе покупки квартиры.

Высоты и стандарты: на каком уровне размещать розетки

Когда речь заходит о высоте размещения розеток, многие ждут строгих правил и универсальных цифр. Базовые ориентиры действительно есть, но я всегда подчёркиваю: это не догма, а лишь отправная точка.

Базовые уровни, от которых надо отталкиваться

Если говорить о стандартных значениях, то чаще всего я использую следующие ориентиры:

  • розетки у пола — около 300 мм;
  • розетки над тумбами — примерно 600 мм от пола;
  • розетки над рабочим столом — около 900 мм.

Эти параметры хорошо работают в большинстве случаев, но дальше начинается самое важное — адаптация под конкретных людей.

Например, высота кухонной столешницы почти всегда регулируется под рост заказчика. А значит, и розетки над ней тоже смещаются. То же самое касается рабочих столов, туалетных столиков, зеркал. Если оставить всё по стандарту, пользоваться электрикой будет неудобно каждый день. Я всегда проверяю высоты на этапе проекта и привязываю их к мебели, технике и росту человека.

Фото: pvproductions / Freepik

УЗО, отдельные линии и два щита: что обязательно сегодня

Когда мы доходим до обсуждения щитов и отдельных линий, у заказчиков часто возникает ощущение, что это уже избыточная инженерия. На самом деле всё наоборот: современная техника попросту не рассчитана на старую логику электрики.

В своих проектах я всё чаще закладываю два щита: электрический и слаботочный. Это даёт больше контроля и упрощает обслуживание системы. Если что-то выходит из строя или выбивает, нужный элемент можно заменить или отключить точечно, не оставляя квартиру без электричества целиком. Это особенно важно в квартирах, где много техники, систем хранения, освещения и сценариев использования.

Да и в целом современные бытовые приборы требуют отдельных линий. Это подтверждает и инженерная практика. По экспертизе нашего инженера-сметчика из Domeo Павла Табатадзе, отдельные линии обязательно нужны:

  • для духового шкафа,
  • варочной панели,
  • стиральной и посудомоечной машин,
  • кондиционеров,
  • проточных водонагревателей,
  • тёплого пола.

Такое разделение необходимо, чтобы в случае неполадок не отключался целый контур с другими приборами. Это напрямую связано с безопасностью и долговечностью системы. Я всегда объясняю заказчикам: хорошая электрика — это та, о которой вы не вспоминаете.Она просто работает и не создаёт проблем в повседневной жизни.

Сколько стоит переделать электрику в новостройке

Вопрос бюджета всегда возникает одним из первых у клиентов, и здесь важно сразу снять иллюзии: переделка электрики в новостройке — это ощутимая статья расходов, особенно если квартира уже с чистовой отделкой.

Я всегда стараюсь проговаривать цифры заранее, чтобы у людей не было ощущения, что что-то «вдруг всплыло» в процессе.

Из чего складывается стоимость

По опыту нашего инженера-сметчика Павла Табатадзе, стоимость одной дополнительной точки под ключ в новостройке с чистовой отделкой обычно составляет от 20 до 40 тысяч рублей. В эту сумму входит:

  • сам механизм розетки или выключателя (в среднем от 5 до 10 тысяч рублей);
  • работа мастера — около 15–20 тысяч рублей за точку, с учётом штрабления, материалов и прокладки кабеля.

Итоговая сумма всегда индивидуальна и зависит от того, сколько точек и где именно нужно перенести или добавить.

Если речь идёт о переносе до 10 точек в разных помещениях, ориентироваться можно на бюджет от 200 тысяч рублей. Полноценная капитальная замена электросети в двушке, с учётом отделки стен, может обойтись уже в 250–600 тысяч рублей.

Я всегда подчёркиваю: чем раньше продумана электрика, тем меньше переделок и лишних расходов. Исправлять готовый ремонт значительно дороже, чем один раз спокойно всё спланировать на старте.

Фото: pvproductions / Freepik

Помогают ли программы для планирования и зачем нужен специалист

Меня часто спрашивают, можно ли спланировать розетки самостоятельно — с помощью программ или онлайн-сервисов. Такие инструменты действительно существуют, и я не считаю их бесполезными. Они помогают на первом этапе — понять логику пространства и прикинуть сценарии.

Но на практике программы работают только как вспомогательный инструмент. Они не знают ваших привычек, роста, сценариев жизни и того, как именно вы будете пользоваться пространством через год или два.

В своей работе я всегда совмещаю схемы и живой диалог. Мне важно понять, где человек сушит волосы, как часто готовит, пользуется ли техникой параллельно, где хранит пылесос и гладильную доску. Эти вещи невозможно корректно заложить автоматически.

Изображение: Domeo

Поэтому я считаю, что индивидуальный подход здесь решает всё. Программа может помочь визуализировать идею, но финальное решение всегда рождается в связке с дизайнером и инженером. Только так электрика начинает работать не на плане, а в реальной жизни.

В чём главная ошибка застройщиков

Работая с новостройками, я вижу одну и ту же картину: электрика от застройщика почти всегда усреднённая. В типовой квартире это примерно 20 розеток на всю площадь — решение, удобное для оптимизации строительства, но не для реальной жизни.

Застройщик не знает, где у конкретного человека будет стоять кровать, как именно он готовит, работает ли из дома и сколько техники использует ежедневно. Поэтому схема делается универсальной и минимальной.

На практике это приводит к тому, что после переезда люди начинают менять пространство под себя. Кровать хочется сдвинуть к другой стене, диван разворачивается иначе, на кухне появляется больше техники. И именно здесь выясняется, что почти всю электрику приходится переделывать, особенно в кухонной зоне.

Количество и мощность бытовых приборов постоянно растут, а изначальная схема под них не рассчитана. Поэтому я всегда говорю: электрика от застройщика — это отправная точка, но не готовое решение.

При этом важно помнить: жизнь меняется, и предусмотреть абсолютно всё невозможно. Но если электрика продумана на старте, квартира остаётся гибкой и готовой к этим изменениям.

Фото на обложке: Zdravinjo / Shutterstock / Fotodom

Вы переделывали электрику после покупки квартиры?
Комментарии
0 комментов