Агенту — комиссия 70% без рутины, собственникам — технологичный сервис бесплатно
Купить двухкомнатную квартиру с отделкой под ключ в районе Первомайский в Ижевске — 345 объявлений от агентств и собственников по продаже квартир по цене от 2 700 000 ₽ до 13 499 000 ₽ на Яндекс Недвижимости. В нашем каталоге предложения площадью от 34,1 м² до 77 м² в новостройках и вторичном жилье — фото, планировки и характеристики.
Остались вопросы?
На Яндекс Недвижимости в продаже в районе Первомайский в Ижевске 345 двухкомнатных квартир, из них 3 объявления от собственников, 70 объявлений от агентств, 272 объявления от застройщиков
Чтобы купить 2-комнатную квартиру с отделкой под ключ в районе Первомайский в Ижевске, воспользуйтесь тепловой картой для оценки инфраструктуры и транспортной доступности в выбранном районе в районе Первомайский в Ижевске
Для легкого выбора подходящей квартиры в верхней части страницы есть самые частые комбинации фильтров, например «» или «»
Помимо удобной сортировки по цене продажи вы можете отсортировать результаты по стоимости квадратного метра или площади
| Цена за квадратный метр | 63 679 — 241 120 ₽ |
| Площадь | 34 — 77 м² |
| Самый дорогой объект | 13,5 млн ₽ |
Продаётся 2-х комнатная квартира 53.2 кв м на 3/5 этаже Кирпичный дом в историческом центре города Ижевска. Потолки 3 метра. Сделана современная планировка. Квартира полностью готова к проживанию, оставляем всю мебель и технику. В шаговой доступности
Продаётся просторная 2-комнатная квартира в ЖК "А14 Умные кварталы", дом №6, на ул. Камбарской! План развития микрорайона включает новую общеобразовательную школу и 2 красивых детских сада на 105 и 200 мест каждый. Рядом расположены: школа №74,
Найдена Ваша идеальная квартира в сердце города. Не ищите компромиссов здесь есть ВСЁ. Представьте себе жизнь, где не нужно выбирать между духом старины и комфортом нового района, между динамикой центра и уютом тихого двора. Эта двухкомнатная

Старт продаж! Успейте забронировать квартиру по ценам 2025-го года. Два дома уже построены и заселены. Идёт строительство последнего дома комплекса можно переехать сразу в готовую инфраструктуру в центре Ижевска. «Квартал на Горького» современный
Продается светлая и уютная квартира в центре! Это отличное предложение для тех, кто хочет жить в самом сердце города и иметь всё необходимое под рукой! Удобная планировка, расположение на 3 этаже отличный вариант для комфортного проживания.
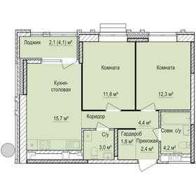
Продаётся 2 - комнатная квартира в ЖК "Механикон", на ул. Комсомольской в Первомайском районе города Ижевска. Наш новый проект расположится в тихом и живописном районе. Односекционный дом высотой 17 этажей стильный и графичный, будет выделяться и
Уютная 2-комнатная квартира с дизайнерским ремонтом ваш идеальный вариант! Представляем вам чудесную квартиру площадью 45.3 м, расположенная на 2 этаже в 6-этажном кирпичном доме. Кирпич это не просто стена, это надежность, тепло и долговечность!
58,59 квадратных дружных метров для семьи. Приветствуем вас в квартире ЖК РИО, где каждый уголок говорит: "Да, мы семья!" Кухня-гостиная: Это сердце дома, где мама готовит вкусности. Здесь можно не только смотреть телевизор, но и проводить семейные
Продаётся квартира улучшенной плпноровки в кирпичном доме. С лоджией на первом этаже. Комнаты изолированные, санузел раздельный. В связи с переездом продаётся с мебелью.Ремонт в подьезде. Во дворе, оборудована детская площадка. Тихий спальный район с
Продаётся просторная 2-комнатная квартира в ЖК "А14 Умные кварталы", дом №6, на ул. Камбарской! План развития микрорайона включает новую общеобразовательную школу и 2 красивых детских сада на 105 и 200 мест каждый. Рядом расположены: школа №74,
Уютная квартира улучшенной планировки в кирпичном доме. Идеальное решение для тех, кто ценит комфорт и пространство! Эта квартира настоящая находка! Изначально двухкомнатная, она была переделана в полуторку, при этом перепланировка полностью
Продаётся 2 - комнатная квартира в ЖК "Механикон", на ул. Комсомольской в Первомайском районе города Ижевска. Наш новый проект расположится в тихом и живописном районе. Односекционный дом высотой 17 этажей стильный и графичный, будет выделяться и
В новостройке
На что обратить внимание, как проверить надежность застройщика и как устроена система умного дома

О доме: -Кирпичный дом. -Дом расположен в самом центре города. -Торец дома утеплили в декабре этого года. -Транспортная развязка в любую точку города. -Недалеко трамвайные, автобусные, троллейбусные остановки. О квартире: -Комнаты изолированные.
58,72 квадратных дружных метров для семьи. Приветствуем вас в квартире ЖК РИО, где каждый уголок говорит: "Да, мы семья!" Кухня-гостиная: Это сердце дома, где мама готовит вкусности. Здесь можно не только смотреть телевизор, но и проводить семейные
Арт. 123238507 Уникальное предложение! Продается не просто квартира, а полностью оборудованный и готовый к работе тату-салон с клиентской базой и высоким пешеходным трафиком. Готовый бизнес «под ключ»: Начните зарабатывать с первого дня. Помещение
Продаётся просторная, удобная 2-комнатная квартира в ЖК "А14 Умные кварталы", дом №7, на ул. Камбарской! План развития микрорайона включает новую общеобразовательную школу и 2 красивых детских сада на 105 и 200 мест каждый. Рядом расположены: школа

В продаже уютная 2 комнатная квартира, общей площадью 50,6 кв.м., расположенная в центральной части города ул. Красноармейская 73. Идеальный вариант как для жизни так и для сдачи в аренду. В квартире остается кухонный гарнитур с встроенной техникой,

Продаётся 2 - комнатная квартира в ЖК "Механикон", на ул. Комсомольской в Первомайском районе города Ижевска. Наш новый проект расположится в тихом и живописном районе. Односекционный дом высотой 17 этажей стильный и графичный, будет выделяться и
В продаже 2 комнатная квартира Ленинградской планировки, общей площадью 50,6 кв.м., расположенная по адресу: г. Ижевск, ул. Красноармейская 88. Отличное расположение как для жизни так и для сдачи в аренду. Развитая инфраструктура: школа №91
58,72 квадратных дружных метров для семьи. Приветствуем вас в квартире ЖК РИО, где каждый уголок говорит: "Да, мы семья!" Кухня-гостиная: Это сердце дома, где мама готовит вкусности. Здесь можно не только смотреть телевизор, но и проводить семейные

Проектные декларации на https://наш.дом.рф
Юридическая поддержка по правовым вопросам: help@realty.yandex.ru