Купить трехкомнатную квартиру с подземным паркингом в ЖК «Квартал Федерация» в Екатеринбурге — 1 объявление от агентств и собственников по продаже квартир по цене от 26 299 000 ₽ до 26 299 000 ₽ на Яндекс Недвижимости. В нашем каталоге предложения площадью от 115,6 м² до 115,6 м² в новостройках и вторичном жилье — фото, планировки и характеристики.
«Квартал Федерация» расположится в районе улиц Щорса - Степана Разина в Екатеринбурге. Композиция комплекса образована 14 жилыми секциями переменной этажности с 30-этажной центральной башней со шпилем. Секции дома имеют замкнутый периметр и образуют приватный двор .
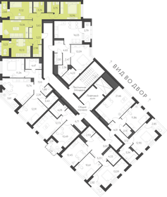
Продается Трёхкомнатная квартира в уникальном жилом квартале повышенной комфортности, который станет знаковым архитектурным объектом для Екатеринбурга. Квартира находится на 27 этаже, площадью 115.6кв.м. Срок сдачи: 2 квартал 2026 года. Подробнее о
Жилои квартал «Никольскии» проект, созданный для комфортной жизни и счастливых событий. Это жизнь бизнес-класса в центральном районе Екатеринбурга. ЖК «Никольский» расположен в центре города на пересечении улиц Фурманова Белинского Большакова и
Продается 3-комнатная квартира площадью 69.59 кв.м. от девелопера «Академический» в жилом квартале «Новая Олимпика». Срок сдачи дома в 2027 году. Дома отличает расположение - Преображенский парк под окнами. Если вы мечтали жить, наслаждаясь чистым
Хорошая чистая ухоженная квартира . Удобная гео локация . В шаговой доступности два детских садика две шкалы множество магазинов детская поликлиника и поликлиника для взрослых сбербанк . Квартира продается без мебели и встаеваемой техники но если Вас
Продам квартиру-студию с дизайнерским интерьером, сделан интересный и функциональный ремонт: Отделка из дуба. Зеркальная стена, зона балкона переходит в зону гостиной, выделена зона спальни. В подарок покупателю остаётся мебель и техника. Закрытый
ЖК First жилой комплекс комфорт-класса от ведущего регионального застройщика группа компаний «ИКАР». Расположен в самом центре Академического района на пересечении улиц Академика Ландау и Вавилова. Удобное расположение транспортных развязок позволит
Предлагаем Вашему вниманию квартиру класса "Комфорт" Квартира в кирпичном доме, светлая, теплая. Дом одноподъездный, своя отличная УК, следит за порядком в доме, есть паковка. Хорший вариант для инвесторов, арендатор на постоянной основе. Вся
Квартира в ЖК «ОК: Премиум» в Пионерском микрорайоне от застройщика TEN девелопмент! Ключи во 2 квартале 2027 года. ЖК «ОК: Премиум» - это продолжение квартала, украсившего локацию Основинского парка, включающего 5 домов высотой от 14 до 31 этажей.
Предлагаем вашему внимaнию двухкомнатную кваpтиру в дoме улучшeнной планировки. Балкoн заcтeклeн. Рассматриваем любые варианты оплаты ID объекта в нашей базе: 11656
Однокомнатная квартира в «Атлас Ривер» это сочетание уюта и современного ритма жизни. Просторная планировка легко зонируется: здесь можно создать идеальное пространство для жизни или инвестиций. «Атлас Ривер» три высотных дома комфорт-класса на
ЖК First жилой комплекс комфорт-класса от ведущего регионального застройщика группа компаний «ИКАР». Расположен в самом центре Академического района на пересечении улиц Академика Ландау и Вавилова. Удобное расположение транспортных развязок позволит
Однокoмнатнaя квартиpа вблизи рядом со станцией метpо Пpоcпект Kоcмoнавтoв (10 мин пeшкoм). Пoмeщeния после пeреплaнировки. Всё узаконено, документы в полном порядке. В квартриве произведен капитальный ремонт: замена электропроводки, стяжка полов,
Уютная однокомнатная квартира в жилой экосистеме бизнес-класса «Парк Столиц» разумный выбор для жизни и инвестиций. Продуманная планировка позволяет зонировать пространство и создать интерьер под Ваш стиль жизни. Идеально подойдет для первого жилья,
Продается однокомнатная квартира 25 кв.м. на Уктусской, 41. с ремонтом и мебелью!!! Возможно приобрести под ставку 12,75% от банков партнеров. В 15 минут ходьбы до самого центра города площади 1905 года. ПАРАМЕТРЫ КВАРТИРЫ: - 3 этаж в пятиэтажном
ЖК на Шефской это квартал в самом сердце Эльмаша, на перекрестке улиц Шефская и Красных Командиров от компании «Практика». Он состоит из четырех домов переменной этажности с подземным паркингом, объединенных общей прогулочной зоной. Особенность
Ищете уютное и комфортабельное жилье в спокойном районе с развитой инфраструктурой? Эта однокомнатная квартира - отличный вариант! Квартира с функциональной планировкой, расположена на комфортном втором этаже с приятным видом из окон (выходят во двор
Продается 1-комнатная квартира площадью 36.84 кв.м. от девелопера «Академический» в жилом квартале «Первый Академ». Срок сдачи дома в 2026 году. Выгоды и скидка напрямую от застройщика. Дом расположен на въезде в район, отличается удобной
Продается полноценная 3-ка в Пионерском микрорайоне. Квартира с правильной планировкой; 3 изолированные комнаты правильной формы, светлые. Из спальни - выход на большой балкон (с дополнительными местами хранения). В квартире новым собственникам
Продается 1-комнатная квартира площадью 39.6 кв.м. от девелопера «Академический» в жилом квартале «Спутник 1». Срок сдачи дома в 2027 году. Квартал 17 - Комплексная застройка, в сентябре 2024 уже была открыта новая школа . Квартиры с двумя видами
ПРОДАЕТСЯ НЕ КВАРТИРА, А ВОЗМОЖНОСТЬ! АДРЕС : ул. МОСТОВАЯ 53 Две изолированные комнаты в ЛУЧШЕМ районе ваша мечта начинается с чистого листа! Смотрите правде в глаза: ДА, ей нужна ваша забота! Но это не минус,а главный БОНУС! Вы не переплачиваете
Продаётся квартира площадью 55.3 м2 в клубном доме "Литературный". Квартира находится на 2 этаже, жилая площадь квартиры 13.7 м2, площадь просторной кухни 24.8 м2. Среди особенностей планировки изолированные комнаты с окнами на одну сторону, 1
Предлагается к продаже просторная четырехкомнатная квартира на Эльмаше, в пяти минутах от метро "Проспект Космонавтов". Панельный 9-этажный дом 1970 года постройки. Чистый подъезд, новый лифт. В квартире 4 комнаты (2 отдельных, 2 смежных), санузел
Квартира в Клубном доме инженера Ятеса в центре от застройщика TEN девелопмент! Ключи в 4 квартале 2025 года. Клубный дом инженера Ятеса - это элитный дом в самом центре комплексной застройки концепт-проекта "Екатерининский парк" и вершина
Если Вы ценитель полнометражных квартир, тогда это точно Ваш вариант! Квартира очень светлая, теплая и уютная! Удачная планировка: просторная кухня -гостиная; большая гардеробная; две изолированные спальни; раздельный сан. узел; окна на разные
Квартира с предчистовой отделкой в центре от застройщика! Ключи в день сделки! Клубный дом RedRock расположен в историческом центре Екатеринбурга, в непосредственной близости от Царского моста, на живописном берегу Исети, в приятном соседстве с
