Агенту — комиссия 70% без рутины, собственникам — технологичный сервис бесплатно
Купить квартиру дешёвую и в многоэтажном доме - микрорайон ЖБИ, в Екатеринбурге — 41 объявление от агентств и собственников по продаже квартир по цене от 3 440 000 ₽ до 4 840 000 ₽ на Яндекс Недвижимости. В нашем каталоге предложения площадью от 21 м² до 46,7 м² в новостройках и вторичном жилье — фото, планировки и характеристики.
Остались вопросы?
На Яндекс Недвижимости в продаже - микрорайон ЖБИ, в Екатеринбурге 41 квартира, из них 7 объявлений от агентств, 34 объявления от застройщиков
Чтобы купить квартиру дешёвую и в многоэтажном доме микрорайон ЖБИ в Екатеринбурге, воспользуйтесь тепловой картой для оценки инфраструктуры и транспортной доступности в выбранном районе - микрорайон ЖБИ, в Екатеринбурге
Для легкого выбора подходящей квартиры в верхней части страницы есть самые частые комбинации фильтров, например «Студии» или «»
Помимо удобной сортировки по цене продажи вы можете отсортировать результаты по стоимости квадратного метра или площади
| Цена за квадратный метр | 89 915 — 195 238 ₽ |
| Площадь | 21 — 47 м² |
| Самые популярные запросы | «Студии» |
| Самый дорогой объект | 4,84 млн ₽ |
АО "Банк ДОМ.РФ" реализует квартиру площадью 46,70 кв. м., расположенную по адресу: Свердловская область, Екатеринбург г., 40-летия Комсомола,32г. Информация об объекте: Один собственник (юридическое лицо). Кадастровый номер объекта недвижимости:
Продается студия, площадью 21.7 м2 в монолитной новостройке. Возможен вариант покупки с использованием ипотечных средств, есть рассрочка. Жилая площадь 10 м2, кухня 4.7 м2, чистовая отделка. Раздельных санузлов - нет, балконов - нет, лоджий - нет.
Продается светлая, квартира-студия в живописном районе. Квартира расположена на 25-м этаже. Вид на лес! Окна на юго-восток. Низкие коммунальные платежи. Двор оборудован для детей, им всегда есть, чем заняться. Детский сад - перед домом. До школы -

Продается студия, площадью 22.5 м2 в монолитной новостройке. Возможен вариант покупки с использованием ипотечных средств, есть рассрочка. Жилая площадь 10.1 м2, кухня 5 м2, чистовая отделка. Раздельных санузлов - нет, балконов - нет, лоджий - нет.
Предлагаем вашему вниманию уютные апартаменты площадью 27.1 квадратных метров, расположенные на 15 этаже современного монолитного дома 2017 года постройки в микрорайоне ЖБИ по адресу город Екатеринбург, улица 40-летия Комсомолы, дом 32г. Эти
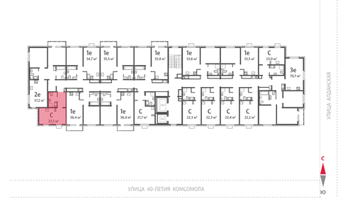
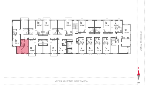
Продается студия, площадью 23 м2 в монолитной новостройке. Возможен вариант покупки с использованием ипотечных средств, есть рассрочка. Жилая площадь 10 м2, кухня 5 м2, чистовая отделка. Раздельных санузлов - нет, балконов - нет, лоджий - нет.
Продается уютная студия с красивым видом на озеро Шарташ в ЖК Малахит. Дом 2022 года. Просторная комната оснащена стильным диваном и вместительным шкафом. Кухня оборудована необходимой техникой, включая холодильник и микроволновую печь. В сан.узле
Продается студия, площадью 22.2 м2 в монолитной новостройке. Возможен вариант покупки с использованием ипотечных средств, есть рассрочка. Жилая площадь 10.2 м2, кухня 5 м2, чистовая отделка. Раздельных санузлов - нет, балконов - нет, лоджий - нет.
Продается светлая студия 27 кв.м. с мебелью по договоренности, с панорамными окнами на южную сторону в современном монолитном доме 2018 года постройки. В квартире выполнен качественный косметический ремонт с практичной отделкой: для комфорта сделана
Отличие: этажей в доме: не указано.
Продается студия, площадью 22.2 м2 в монолитной новостройке. Возможен вариант покупки с использованием ипотечных средств, есть рассрочка. Жилая площадь 10.2 м2, кухня 5 м2, чистовая отделка. Раздельных санузлов - нет, балконов - нет, лоджий - нет.
Продается студия, площадью 22.3 м2 в монолитно-кирпичной новостройке. Возможен вариант покупки с использованием ипотечных средств, есть рассрочка. Жилая площадь 9.9 м2, кухня 4.7 м2, чистовая отделка. Раздельных санузлов - нет, балконов - нет, лоджий
Продается студия, площадью 21.7 м2 в монолитной новостройке. Возможен вариант покупки с использованием ипотечных средств, есть рассрочка. Жилая площадь 10 м2, кухня 5 м2, чистовая отделка. Раздельных санузлов - нет, балконов - нет, лоджий - нет.
В новостройке
На что обратить внимание, как проверить надежность застройщика и как устроена система умного дома

Продается студия, площадью 22.3 м2 в монолитной новостройке. Возможен вариант покупки с использованием ипотечных средств, есть рассрочка. Жилая площадь 10.2 м2, кухня 5 м2, чистовая отделка. Раздельных санузлов - нет, балконов - нет, лоджий - нет.
Продается студия, площадью 22.3 м2 в монолитной новостройке. Возможен вариант покупки с использованием ипотечных средств, есть рассрочка. Жилая площадь 10.2 м2, кухня 5 м2, чистовая отделка. Раздельных санузлов - нет, балконов - нет, лоджий - нет.
Продается студия, площадью 22.2 м2 в монолитной новостройке. Возможен вариант покупки с использованием ипотечных средств, есть рассрочка. Жилая площадь 10.2 м2, кухня 5 м2, чистовая отделка. Раздельных санузлов - нет, балконов - нет, лоджий - нет.
Продается студия, площадью 23.5 м2 в монолитной новостройке. Возможен вариант покупки с использованием ипотечных средств, есть рассрочка. Жилая площадь 10.1 м2, кухня 5 м2, чистовая отделка. Раздельных санузлов - нет, балконов - нет, лоджий - нет.

Продается студия, площадью 23 м2 в монолитной новостройке. Возможен вариант покупки с использованием ипотечных средств, есть рассрочка. Жилая площадь 10 м2, кухня 5 м2, чистовая отделка. Раздельных санузлов - нет, балконов - нет, лоджий - нет.

Продается студия, площадью 23.5 м2 в монолитной новостройке. Возможен вариант покупки с использованием ипотечных средств, есть рассрочка. Жилая площадь 10.1 м2, кухня 5 м2, чистовая отделка. Раздельных санузлов - нет, балконов - нет, лоджий - нет.
Продается студия, площадью 22.3 м2 в монолитной новостройке. Возможен вариант покупки с использованием ипотечных средств, есть рассрочка. Жилая площадь 10.3 м2, кухня 5 м2, чистовая отделка. Раздельных санузлов - нет, балконов - нет, лоджий - нет.
Продается студия, площадью 23 м2 в монолитной новостройке. Возможен вариант покупки с использованием ипотечных средств, есть рассрочка. Жилая площадь 10 м2, кухня 5 м2, чистовая отделка. Раздельных санузлов - нет, балконов - нет, лоджий - нет.

Проектные декларации на https://наш.дом.рф
Юридическая поддержка по правовым вопросам: help@realty.yandex.ru